| ||||||||||||||||||||||||||||
Скачать Серия 1.420-35.95 Выпуск 0-1. Материалы для проектирования каркаса зданий с сеткой колонн 6х6 мДата актуализации: 10.08.2017
|
| Обозначение: | Серия 1.420-35.95 |
| Обозначение англ: | Series 1.420-35.95 |
| Статус: | не определен законодательством |
| Название рус.: | Выпуск 0-1. Материалы для проектирования каркаса зданий с сеткой колонн 6х6 м |
| Дата добавления в базу: | 01.09.2013 |
| Дата актуализации: | 05.05.2017 |
| Дата введения: | 01.03.1998 |
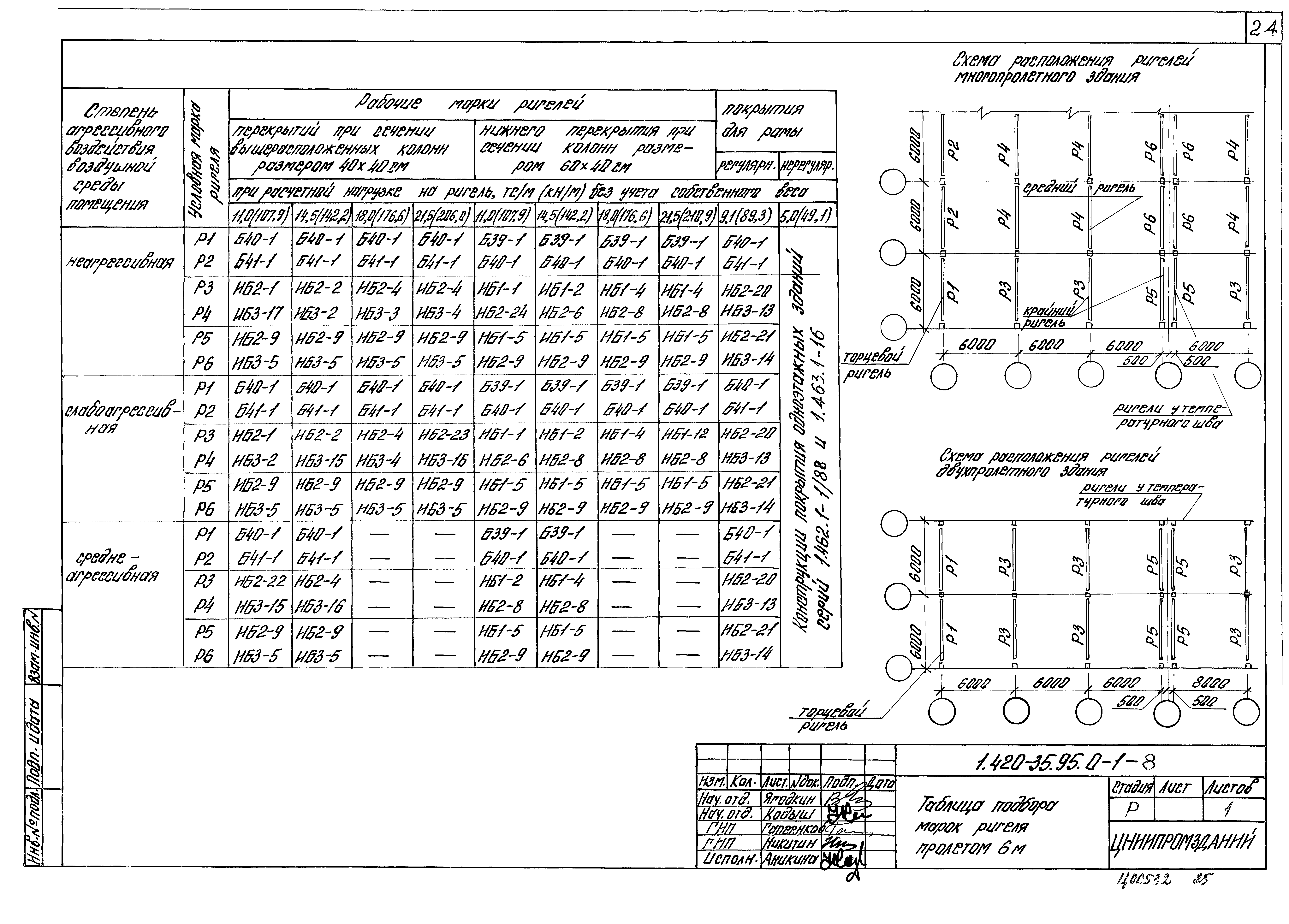
| Оглавление: | 1.420-35.95.0-1-ПЗ Пояснительная записка 1.420-35.95.0-1-1 Схемы поперечных рам 1.420-35.95.0-1-2 Маркировочные схемы рам: 2-6-3(48), 12-6-3(48), 2-6-4(48), П-6-4(48), 2-6-5(48), П-6-5(48) 1.420-35.95.0-1-3 Маркировочные схемы рам: 2-6-3(60,48), П-6-3(60,48), 2-6-4(60,48), П-6-4(60,48), 2-6-5(60,48), П-6-5(60,48) 1.420-35.95.0-1-4 Маркировочные схемы рам: 2-6-3(60), П-6-4(60), 2-6-4(60), 11-6-4(60), 2-6-5(60), П-6-5(60) 1.420-35.95.0-1-5 Маркировочные схемы рам: 2-6-3(72,60), П-6-3(72,60), 2-6-4(72,60), П-6-4(72,60), 2-6-5(72,60), 11-6-5(72,60) 1.420-35.95.0-1-6 Маркировочные схемы рам: 3-6-3(48,48,72), 3-6-4(48,48,72), 3-6-5(48,48,72) 1.420-35.95.0-1-7 Маркировочные схемы рам: 3-6-3(60,60,72), 3-6-4(60,60,72), 3-6-5(60,60,72) 1.420-35.95.0-1-8 Таблица подбора марок ригеля пролетом 6м 1.420-35.95.0-1-9 Маркировочная схема расположения плит в перекрытии и узлов сопряжения для зданий с жесткими узлами 1.420-35.95.0-1-10 Усилия на фундаменты рядовых колонн 1.420-35.95.0-1-11 Дополнительные усилия на фундаменты колонн торцевых рам и колонн у деформационных швов от одностороннего загружения ригелей и действия ветра в продольном направлении 1.420-35.95.0-1-12 Усилия на фундаменты связевых колонн от ветровой нагрузки в продольном направлении 1.420-35.95.0-1-13 Схема расположения вертикальных связей в плане и таблица для подбора рабочих марок связей для зданий с высотой этажей 4,8м ( вариант разреженной постановки ) 1.420-35.95.0-1-14 Схема расположения вертикальных связей в плане и таблица для подбора рабочих марок связей для зданий с высотой этажей 6,0;4,8м (вариант разреженной постановки ) 1.420-35.95.0-1-15 Схема расположения вертикальных связей в плане и таблица для подбора рабочих марок связей для зданий с высотой этажей 6,0м (вариант разреженной постановки ) 1.420-35.95.0-1-16 Схема расположения вертикальных связей в плане и таблица для подбора рабочих марок связей для зданий с высотой этажей 7,2;6,0м (вариант разреженной постановки ) 1.420-35.95.0-1-17 Схема располож. вертикальн. связей в плане и таблица для подбора рабоч. марок связей для зданий с высотой этажей 4,8;4,8;7,2м (вариант разреженной постановки ) 1.420-35.95.0-1-18 Схема располож. вертикальн. связей в плане и таблица для подбора рабоч. марок связей для зданий с высотой этажей 6,0;6,0;7,2м (вариант разреженной постановки ) |
| Разработан: | АО ЦНИИпромзданий |
| Утверждён: | 09.12.1997 Департамент развития научно-технической политики и проектно-изыскательских работ Госстроя России (Department of Technical Research Policy and Design and Survey Operations, Russian Federation Gosstroy 9-1-1/160) |
| Расположен в: | |
| Заменяет собой: |







































