Информационная система
«Ёшкин Кот»

Скачать базу одним архивом
Скачать обновления
История создания базы
Карта сайта

Скачать Шифр БТ 1991 Выпуск 0. Материалы для проектирования

Дата актуализации: 10.08.2017

Шифр БТ 1991

Выпуск 0. Материалы для проектирования

Обозначение: Шифр БТ 1991
Обозначение англ: БТ 1991
Статус:не определен законодательством
Название рус.:Выпуск 0. Материалы для проектирования
Дата добавления в базу:01.09.2013
Дата актуализации:05.05.2017
Дата введения:01.10.1989
Оглавление:БТ1991 0-ПЗ Пояснительная записка
БТ1991 0-01 Габаритные схемы зданий
БТ1991 0-02 Колонна-диафрагма, сечение ветви 400х400 мм. Номенклатура
БТ1991 0-03 Колонна-диафрагма, сечение ветви 400х500 мм. Номенклатура
БТ1991 0-04 Колонна-диафрагма, сечение ветви 500х500 мм. Номенклатура
БТ1991 0-05 Расчетные нагрузки на колонны
БТ1991 0-06 Габаритные схемы зданий с металлическим стропильными конструкциями
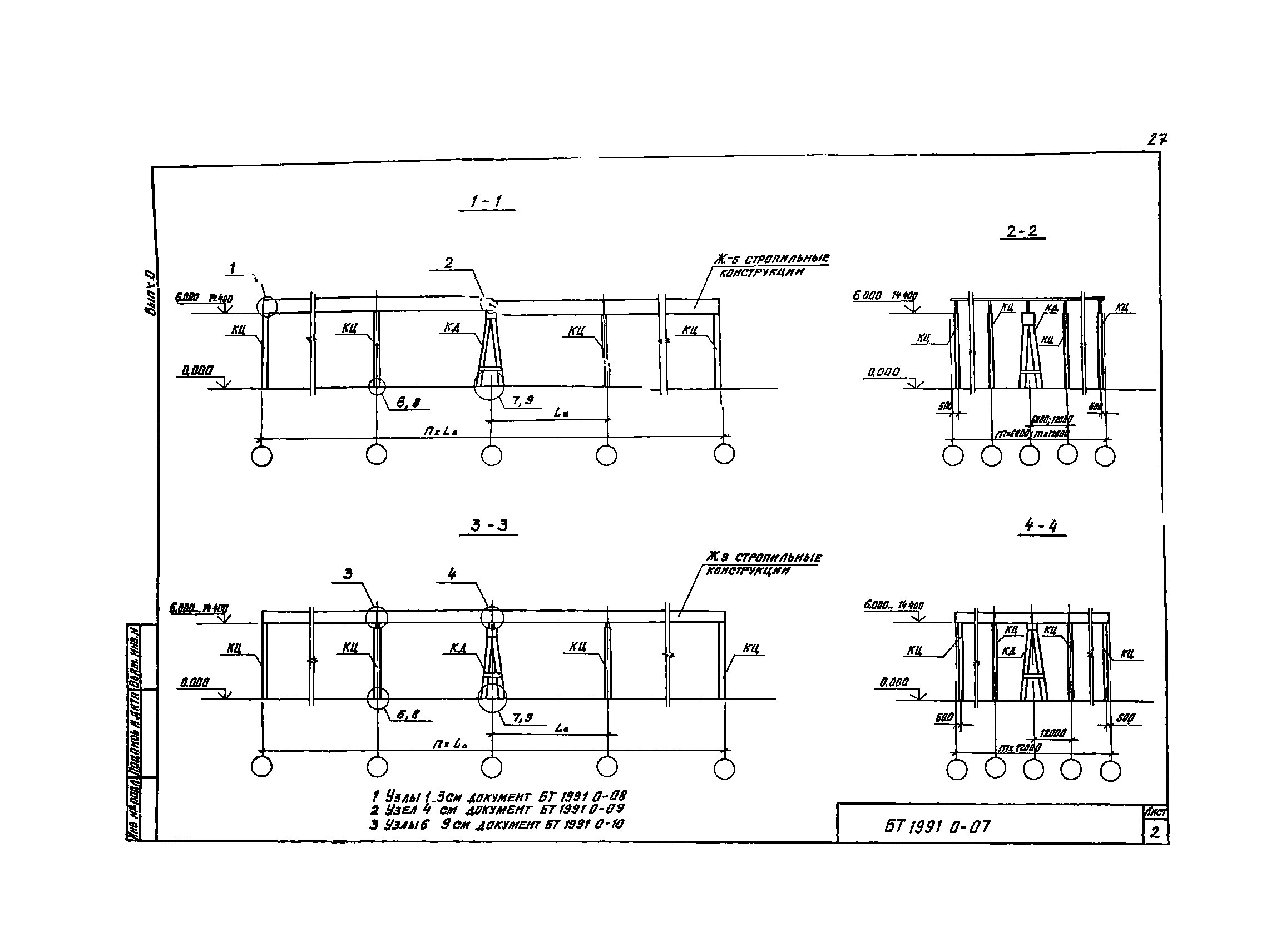
БТ1991 0-07 Габаритные схемы зданий с железобетонными стропильными конструкциями
БТ1991 0-08 Узлы 1, 3
БТ1991 0-09 Узлы 4, 5
БТ1991 0-10 Узлы 6, 9
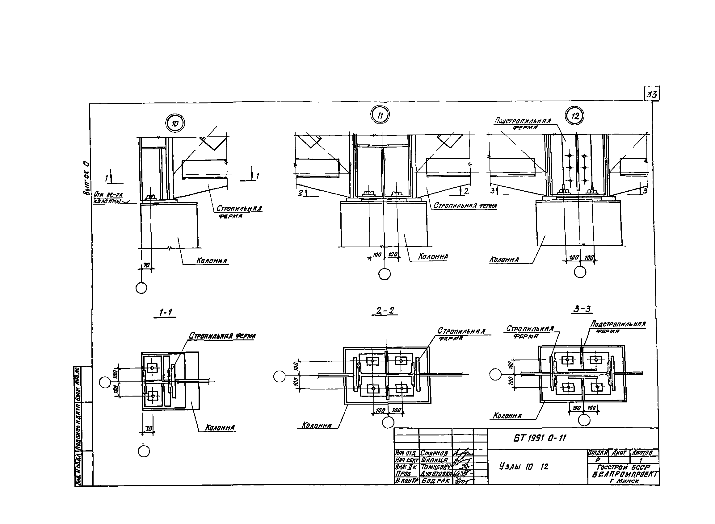
БТ1991 0-11 Узлы 10, 12
БТ1991 0-12 Узлы 13, 15
БТ1991 0-13 Узлы 16, 17
БТ1991 0-14 Узлы 18, 20
БТ1991 0-15 Графики несущей способности жестких опор типа КД60 1; КД66 1. Бетон В35
БТ1991 0-16 Графики несущей способности жестких опор типа КД72 1; КД78 2. Бетон В36
БТ1991 0-17 Графики несущей способности жестких опор типа КД84 2; КД90 2. Бетон В35
БТ1991 0-18 Графики несущей способности жестких опор типа КД84 4; КД90 4. Бетон В40
БТ1991 0-19 Графики несущей способности жестких опор типа КД96 6; КД102 5. Бетон В40
БТ1991 0-20 Графики несущей способности жестких опор типа КД108 6; КД114 8. Бетон В40
БТ1991 0-21 Графики несущей способности жестких опор типа КД120 8; КД125 8. Бетон В40
БТ1991 0-22 Графики несущей способности жестких опор типа КД132 9. Бетон В40. КД108 8. Бетон В35
БТ1991 0-23 Графики несущей способности жестких опор типа КД138 9; КД144 9. Бетон В40
БТ1991 0-24 Графики несущей способности жестких опор типа КЦ44 30; КЦ44 28. Бетон В35
БТ1991 0-25 Графики несущей способности жестких опор типа КЦ45 28; КЦ45 25. Бетон В40 (бар 1)
БТ1991 0-26 Графики несущей способности жестких опор типа КЦ45 28; КЦ45 25. Бетон В40 (бар 2)
БТ1991 0-27 Графики несущей способности жестких опор типа КЦ55 38; КЦ55 35. Бетон В40
Приложение. Пример подбора элементов каркаса здания с диафрагмами жесткости в виде отдельно стоящих опор по графикам несущей способности
БТ1991 0-28 Пример 1
БТ1991 0-29 Пример 2
Разработан: Белорусский политехнический институт
Проектный институт № 1 Госстроя СССР
Институт Белпромпроект
Утверждён:24.05.1989 Госстрой БССР (BSSR Gosstroy 57)
Расположен в:Техническая документация Строительство Справочные документы Типовые строительные конструкции, изделия и узлы Разработанные другими министерствами, ведомствами и организациями
Шифр БТ 1991Шифр БТ 1991Шифр БТ 1991Шифр БТ 1991Шифр БТ 1991Шифр БТ 1991Шифр БТ 1991Шифр БТ 1991Шифр БТ 1991Шифр БТ 1991Шифр БТ 1991Шифр БТ 1991Шифр БТ 1991Шифр БТ 1991Шифр БТ 1991Шифр БТ 1991Шифр БТ 1991Шифр БТ 1991Шифр БТ 1991Шифр БТ 1991Шифр БТ 1991Шифр БТ 1991Шифр БТ 1991Шифр БТ 1991Шифр БТ 1991Шифр БТ 1991Шифр БТ 1991Шифр БТ 1991Шифр БТ 1991Шифр БТ 1991Шифр БТ 1991Шифр БТ 1991Шифр БТ 1991Шифр БТ 1991Шифр БТ 1991Шифр БТ 1991Шифр БТ 1991Шифр БТ 1991Шифр БТ 1991Шифр БТ 1991Шифр БТ 1991Шифр БТ 1991Шифр БТ 1991Шифр БТ 1991Шифр БТ 1991Шифр БТ 1991Шифр БТ 1991Шифр БТ 1991Шифр БТ 1991Шифр БТ 1991Шифр БТ 1991Шифр БТ 1991Шифр БТ 1991Шифр БТ 1991Шифр БТ 1991Шифр БТ 1991Шифр БТ 1991Шифр БТ 1991Шифр БТ 1991Шифр БТ 1991Шифр БТ 1991Шифр БТ 1991

© 2013 Ёшкин Кот :-) Карта сайта