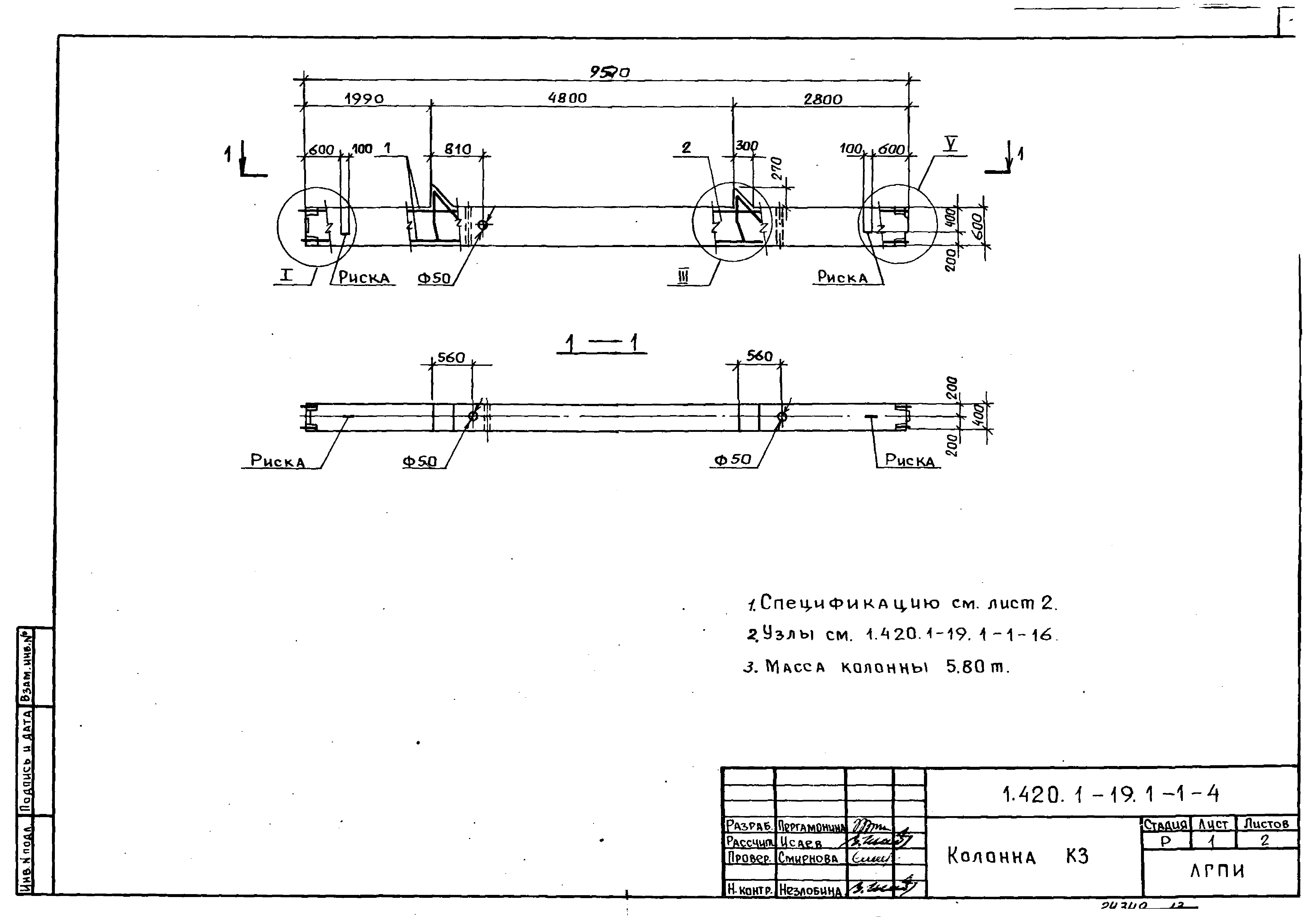
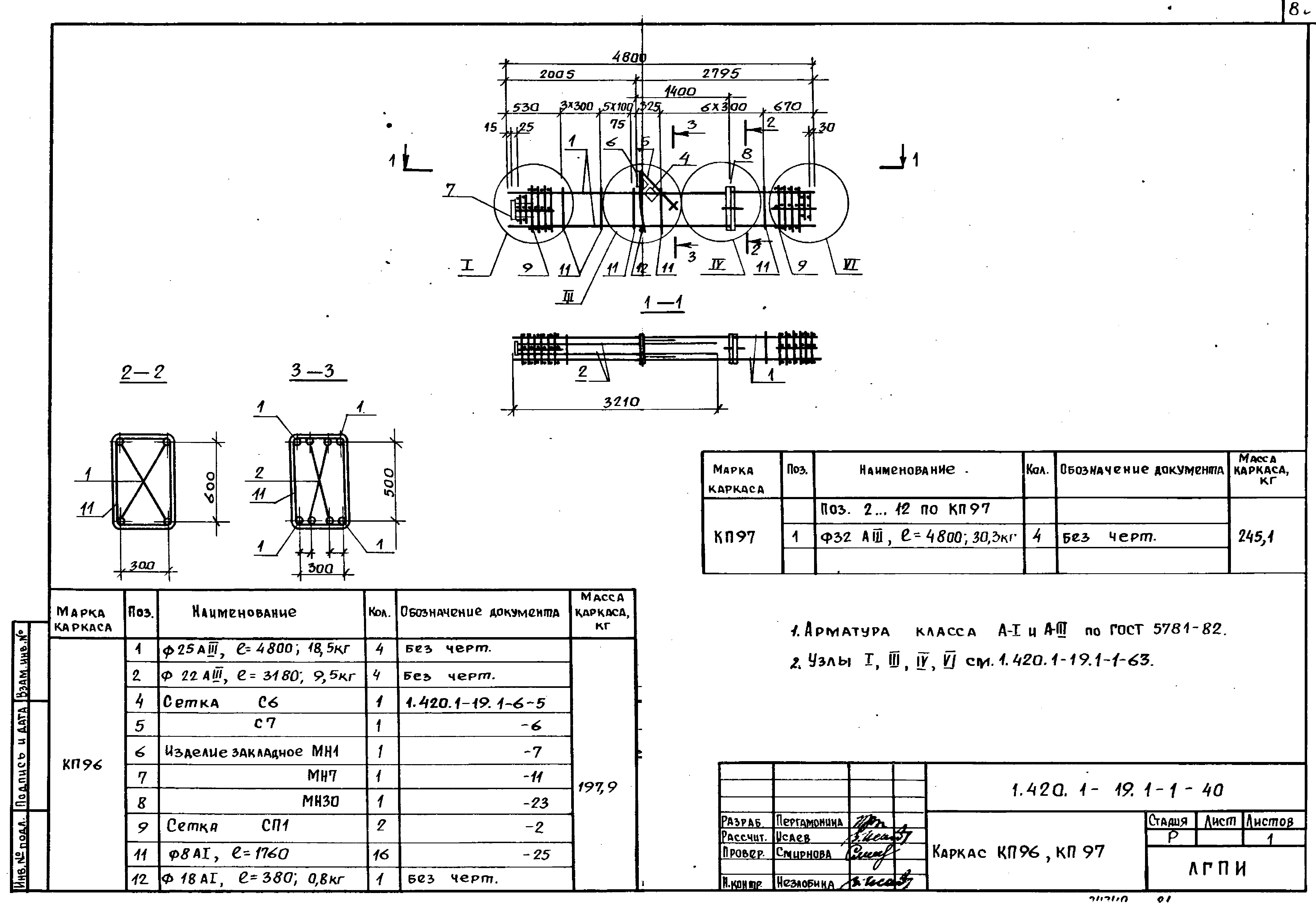
Скачать Серия 1.420.1-19 Выпуск 1-1. Колонны высотой 4,8; 6,0-4,8 м. Армирование и пространственные каркасы. Рабочие чертежиДата актуализации: 10.08.2017 Серия 1.420.1-19
Выпуск 1-1. Колонны высотой 4,8; 6,0-4,8 м. Армирование и пространственные каркасы. Рабочие чертежи| Обозначение: | Серия 1.420.1-19 | | Обозначение англ: | Series 1.420.1-19 | | Статус: | не определен законодательством | | Название рус.: | Выпуск 1-1. Колонны высотой 4,8; 6,0-4,8 м. Армирование и пространственные каркасы. Рабочие чертежи | | Дата добавления в базу: | 01.09.2013 | | Дата актуализации: | 05.05.2017 | | Дата введения: | 01.04.1989 | | Разработан: | НИИЖБ АО ЦНИИпромзданий ЛГПИ
| | Утверждён: | 29.12.1988 Госстрой СССР (Государственный комитет Совета Министров СССР по делам строительства) (USSR Gosstroy 6/6-2964)
| | Издан: | ЦИТП Госстроя СССР (CITP, Gosstroy (USSR) 1990 г. )
| | Расположен в: |
| | Заменяет собой: | |
                                                                                                                                                               
|