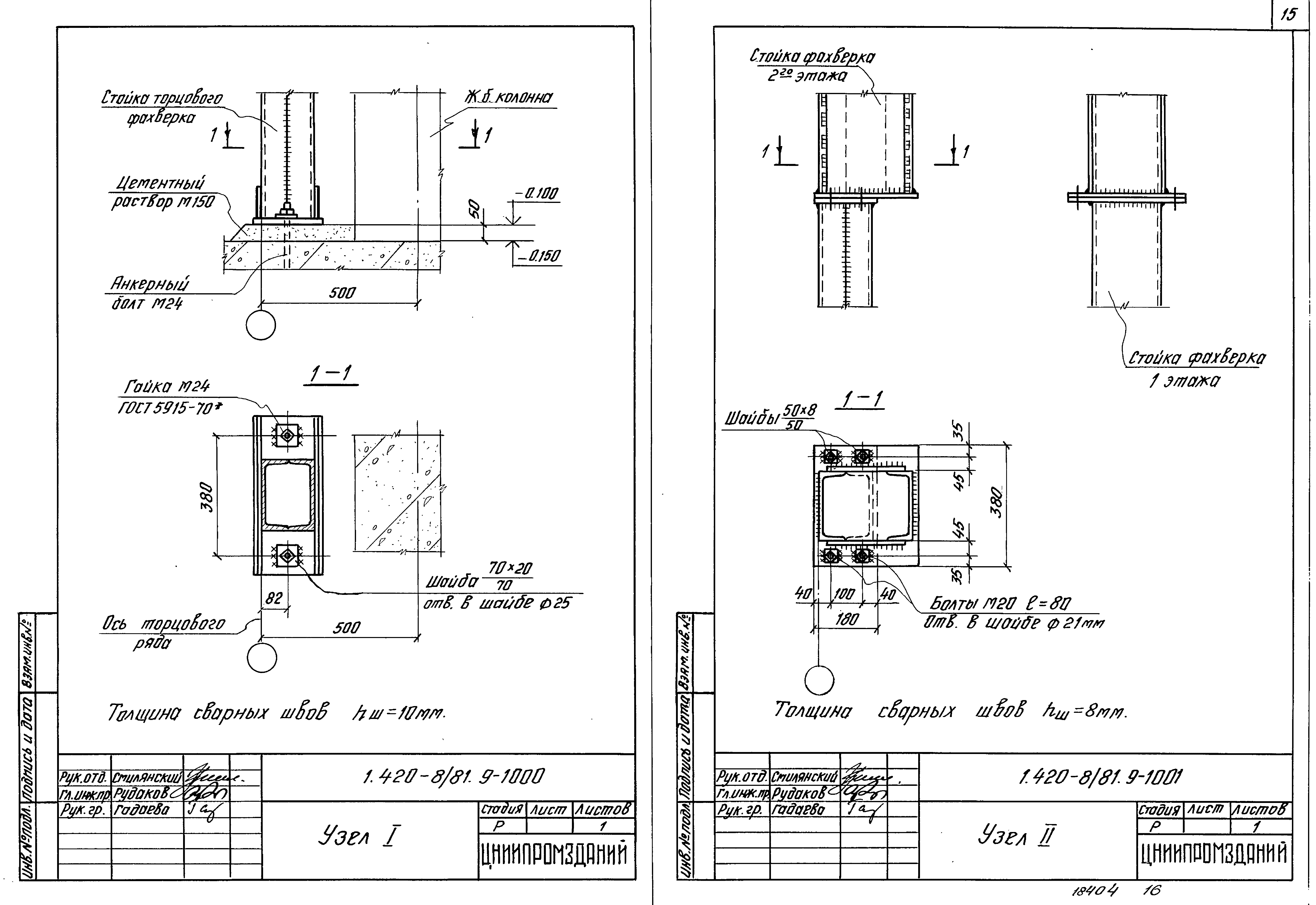
Скачать Серия 1.420-8/81 Выпуск 9. Узлы сопряжения стеновых панелей. Материалы для проектирования и рабочие чертежиДата актуализации: 10.08.2017 Серия 1.420-8/81
Выпуск 9. Узлы сопряжения стеновых панелей. Материалы для проектирования и рабочие чертежи| Обозначение: | Серия 1.420-8/81 | | Обозначение англ: | Series 1.420-8/81 | | Статус: | действует | | Название рус.: | Выпуск 9. Узлы сопряжения стеновых панелей. Материалы для проектирования и рабочие чертежи | | Дата добавления в базу: | 01.09.2013 | | Дата актуализации: | 05.05.2017 | | Дата введения: | 01.03.1983 | | Разработан: | АО ЦНИИпромзданий
| | Утверждён: | 03.10.1982 Госстрой СССР (Государственный комитет Совета Министров СССР по делам строительства) (USSR Gosstroy 268)
| | Расположен в: |
| | Заменяет собой: | |
                         
|