Скачать Серия 1.220.1-3м Выпуск 1-1. Ростверки, подколонники, элементы цокольной части. Рабочие чертежиДата актуализации: 10.08.2017 Серия 1.220.1-3м
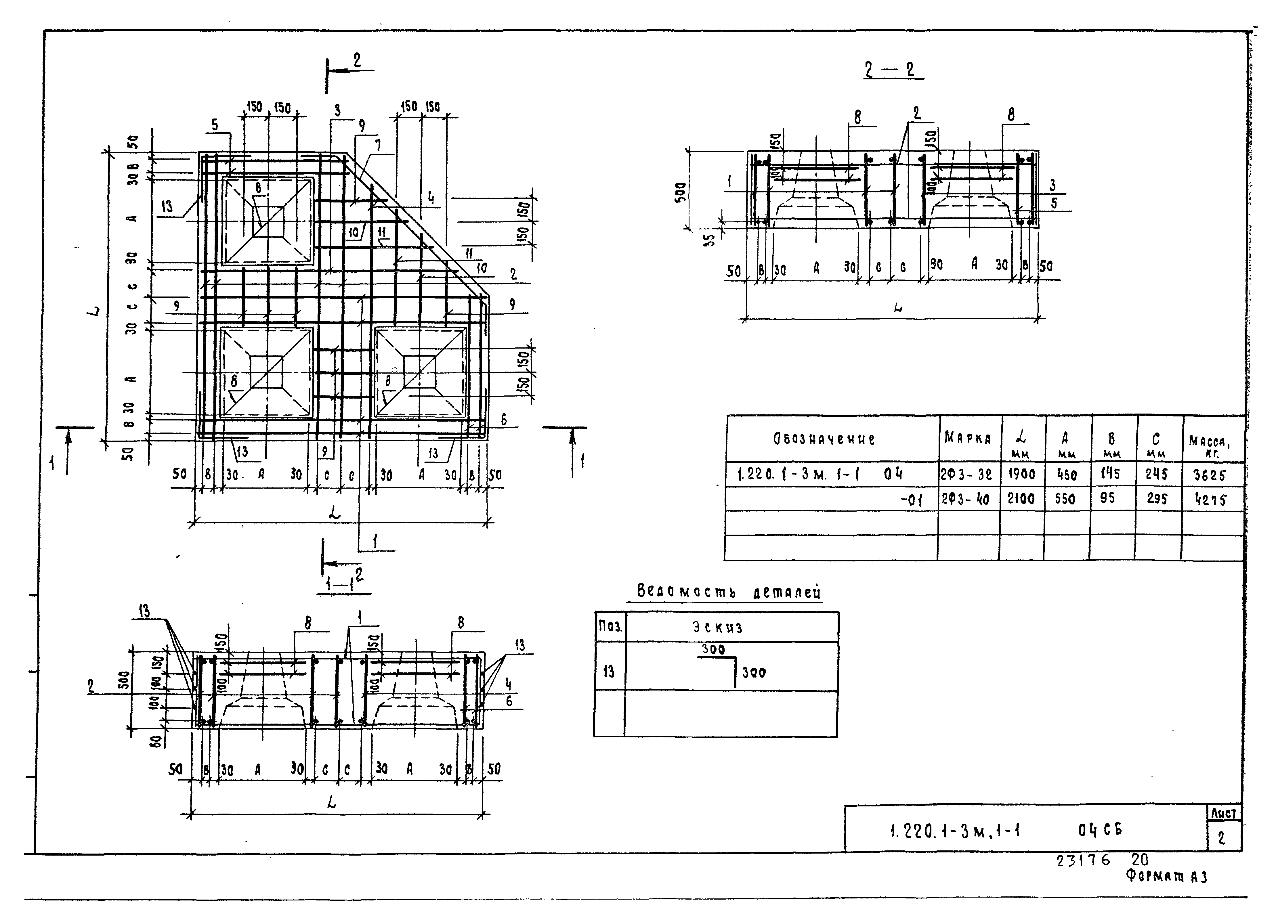
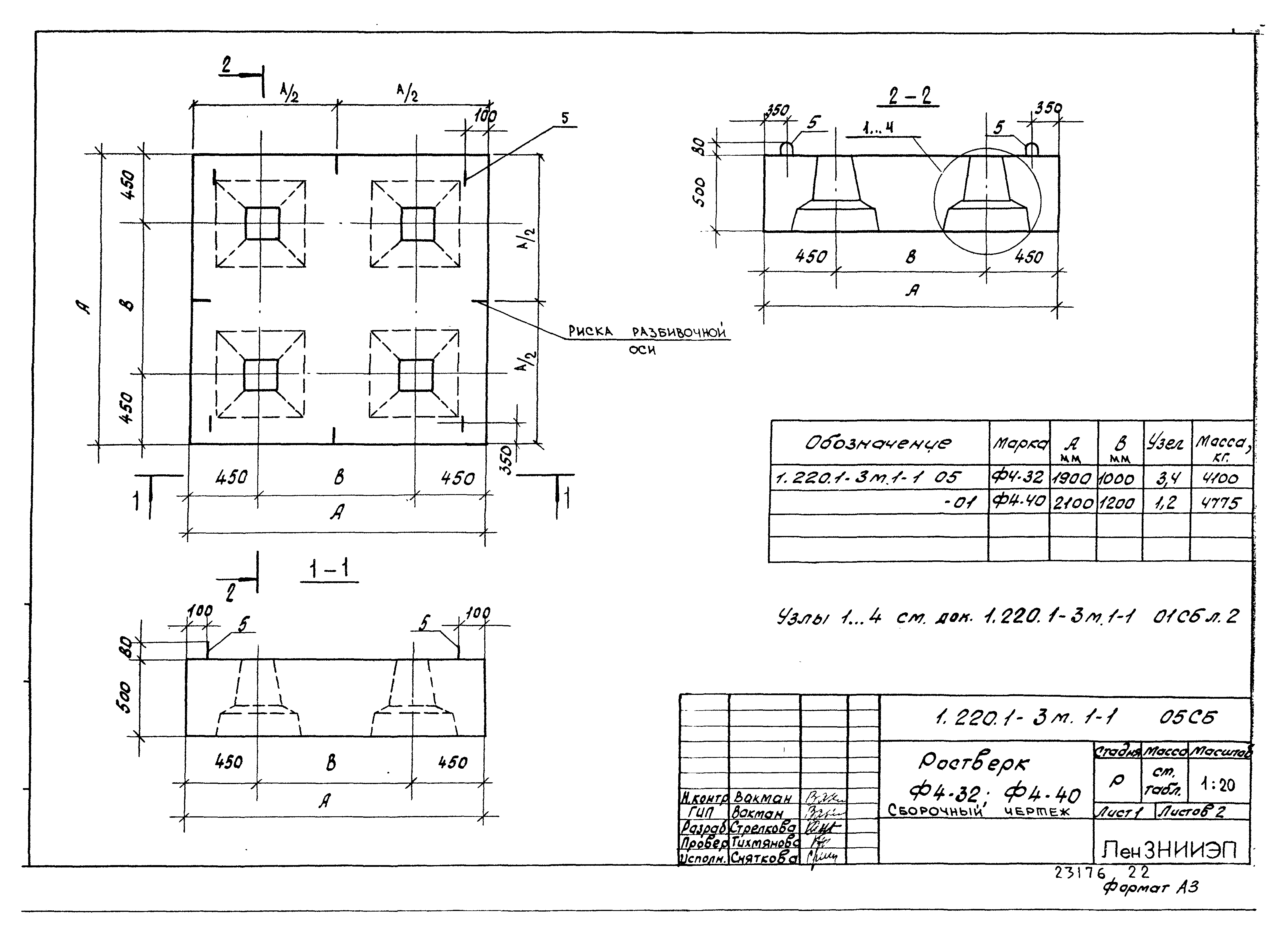
Выпуск 1-1. Ростверки, подколонники, элементы цокольной части. Рабочие чертежиОбозначение: | Серия 1.220.1-3м | Обозначение англ: | Series 1.220.1-3м | Статус: | не определен законодательством | Название рус.: | Выпуск 1-1. Ростверки, подколонники, элементы цокольной части. Рабочие чертежи | Дата добавления в базу: | 01.09.2013 | Дата актуализации: | 05.05.2017 | Дата введения: | 01.07.1988 | Разработан: | ЛенЗНИИЭП Госгражданстроя КиевЗНИИЭП
| Утверждён: | 23.05.1988 Госкомархитектура (146)
| Расположен в: |
|
                                                     
|