| ||||||||||||||||||||||||||||
Скачать Серия 1.020.1-3пв Выпуск 4-2. Диафрагмы жесткости нулевого цикла для сборно-монолитного варианта. Арматурные и закладные изделия. Рабочие чертежиДата актуализации: 10.08.2017
|
| Обозначение: | Серия 1.020.1-3пв |
| Обозначение англ: | Series 1.020.1-3пв |
| Статус: | действует |
| Название рус.: | Выпуск 4-2. Диафрагмы жесткости нулевого цикла для сборно-монолитного варианта. Арматурные и закладные изделия. Рабочие чертежи |
| Дата добавления в базу: | 01.09.2013 |
| Дата актуализации: | 05.05.2017 |
| Дата введения: | 01.11.1985 |
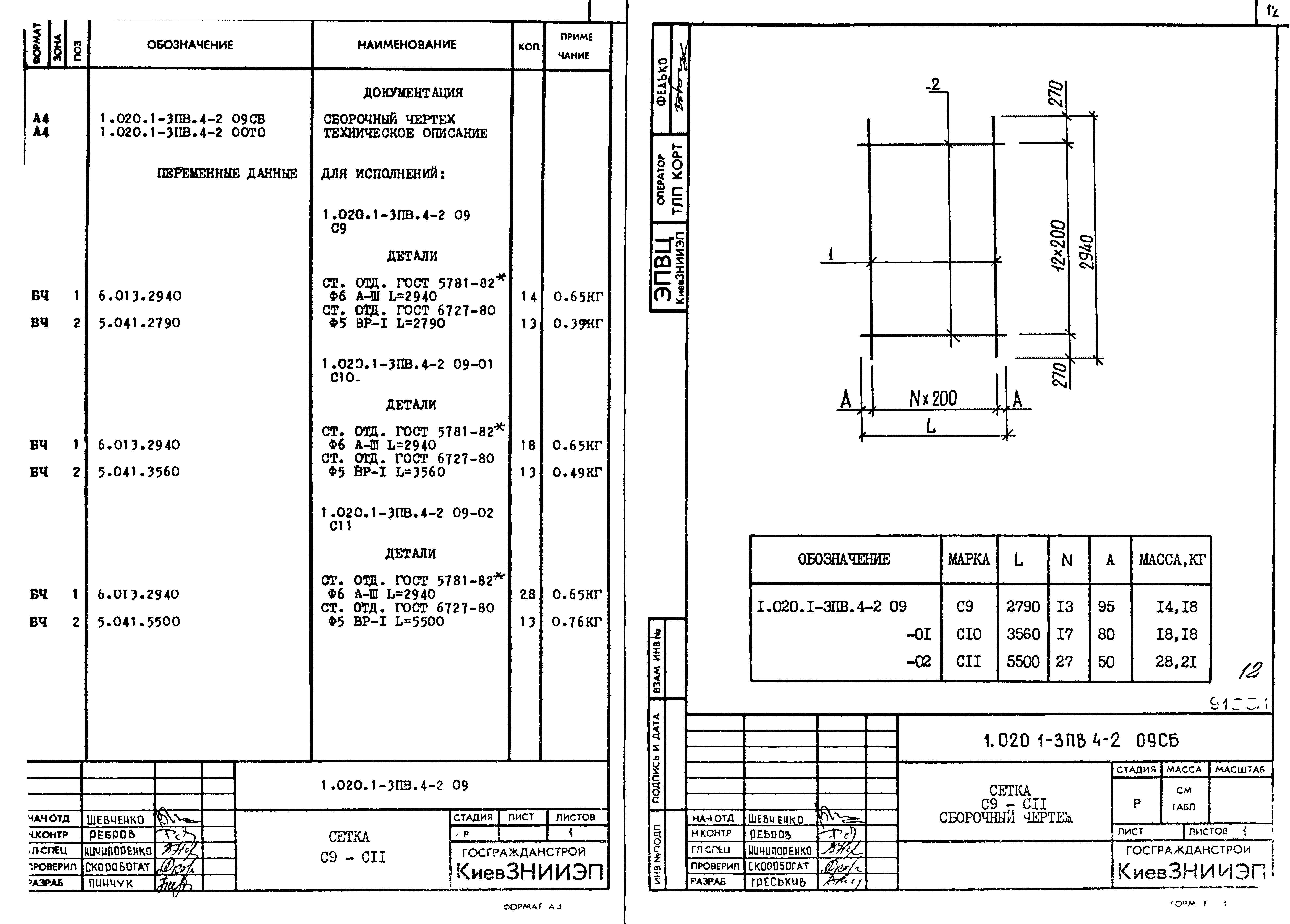
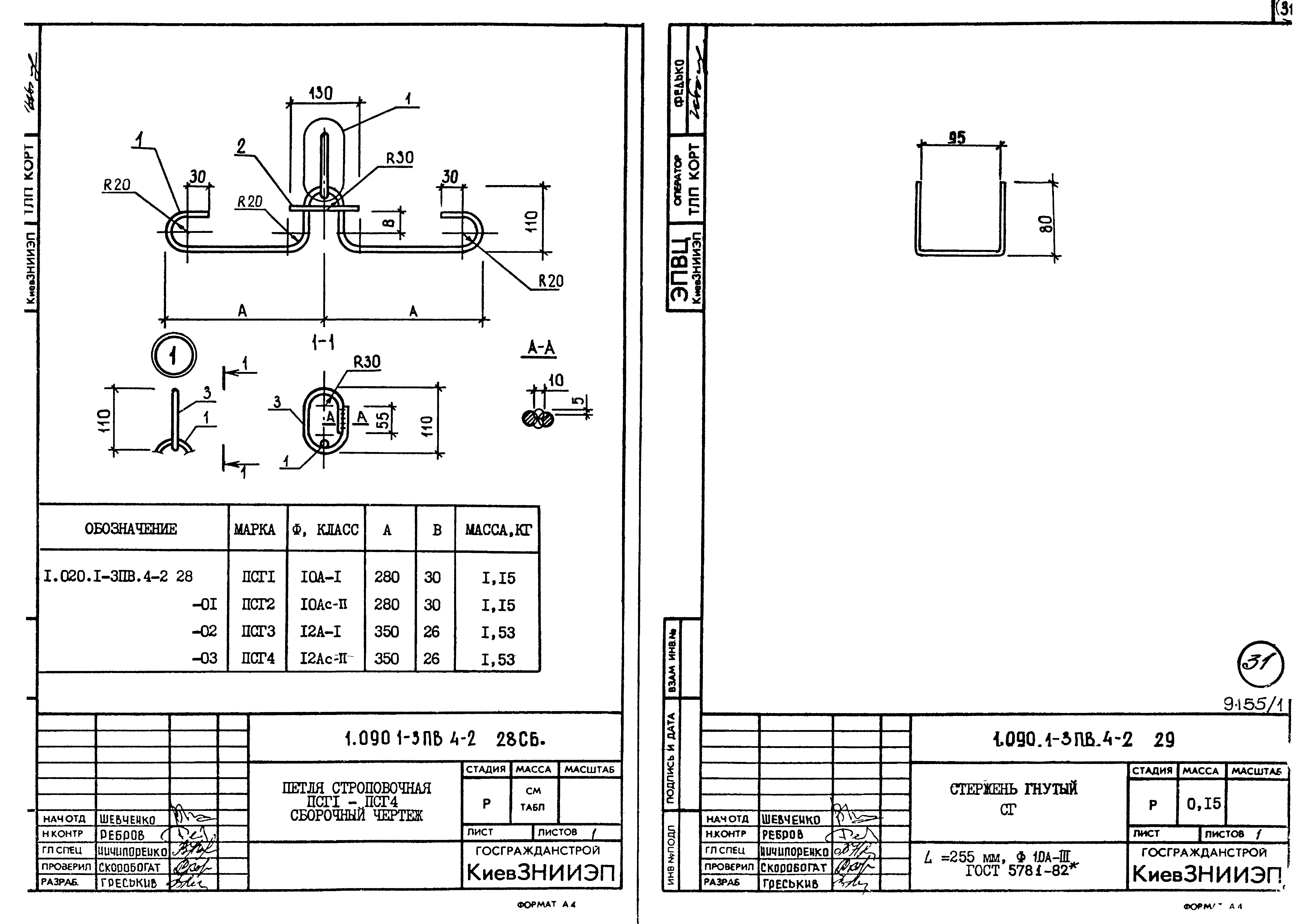
| Оглавление: | 1.020.1-3ПВ.4-2 00ТО Техническое описание 1.020.1-3ПВ.4-2 01 Каркас плоский КР1-КР3 1.020.1-3ПВ.4-2 02 Каркас плоский КР4-КР6 1.020.1-3ПВ.4-2 03 Каркас плоский КР7-КР9 1.020.1-3ПВ.4-2 04 Каркас плоский КР10, КР11 1.020.1-3ПВ.4-2 05 Каркас плоский КР12-КР14 1.020.1-3ПВ.4-2 06 Сетка С1-С3 1.020.1-3ПВ.4-2 07 Сетка С4-С5 1.020.1-3ПВ.4-2 08 Сетка С6-С8 1.020.1-3ПВ.4-2 09 Сетка С9-С11 1.020.1-3ПВ.4-2 10 Сетка С12-С14 1.020.1-3ПВ.4-2 11 Сетка С15-С17 1.020.1-3ПВ.4-2 12 Сетка С18, С19 1.020.1-3ПВ.4-2 13 Сетка С20, С21 1.020.1-3ПВ.4-2 14 Сетка С22, С23 1.020.1-3ПВ.4-2 15 Сетка С24, С25 1.020.1-3ПВ.4-2 16 Сетка С26-С28 1.020.1-3ПВ.4-2 17 Сетка С29, С30 1.020.1-3ПВ.4-2 18 Сетка С31-С33 1.020.1-3ПВ.4-2 19 Сетка С34-С36 1.020.1-3ПВ.4-2 20 Сетка С37-С3 1.020.1-3ПВ.4-2 21 Сетка С40-С42 1.020.1-3ПВ.4-2 22 Сетка С43, С44 1.020.1-3ПВ.4-2 23 Сетка С45, С46 1.020.1-3ПВ.4-2 24 Сетка С47, С48 1.020.1-3ПВ.4-2 25 Сетка С49 1.020.1-3ПВ.4-2 26 Петля строповочная ПСВ1-ПСВ8 1.020.1-3ПВ.4-2 27 Стержень гнутый АН1 1.020.1-3ПВ.4-2 28 Петля строповочная ПСГ1-ПСГ4 1.020.1-3ПВ.4-2 29 Стержень гнутый СГ |
| Разработан: | КиевЗНИИЭП ЦНИИЭП торгово-бытовых зданий и туристских комплексов |
| Утверждён: | 30.07.1985 Госстрой СССР (Государственный комитет Совета Министров СССР по делам строительства) (USSR Gosstroy АЧ-30) |
| Расположен в: | |
| Заменяет собой: |































