| ||||||||||||||||||||||||||||
Скачать Серия 1.020.1-3пв Выпуск 1-2. Панели стеновые цокольные. Рабочие чертежиДата актуализации: 10.08.2017
|
| Обозначение: | Серия 1.020.1-3пв |
| Обозначение англ: | Series 1.020.1-3пв |
| Статус: | действует |
| Название рус.: | Выпуск 1-2. Панели стеновые цокольные. Рабочие чертежи |
| Дата добавления в базу: | 01.09.2013 |
| Дата актуализации: | 05.05.2017 |
| Дата введения: | 01.11.1985 |
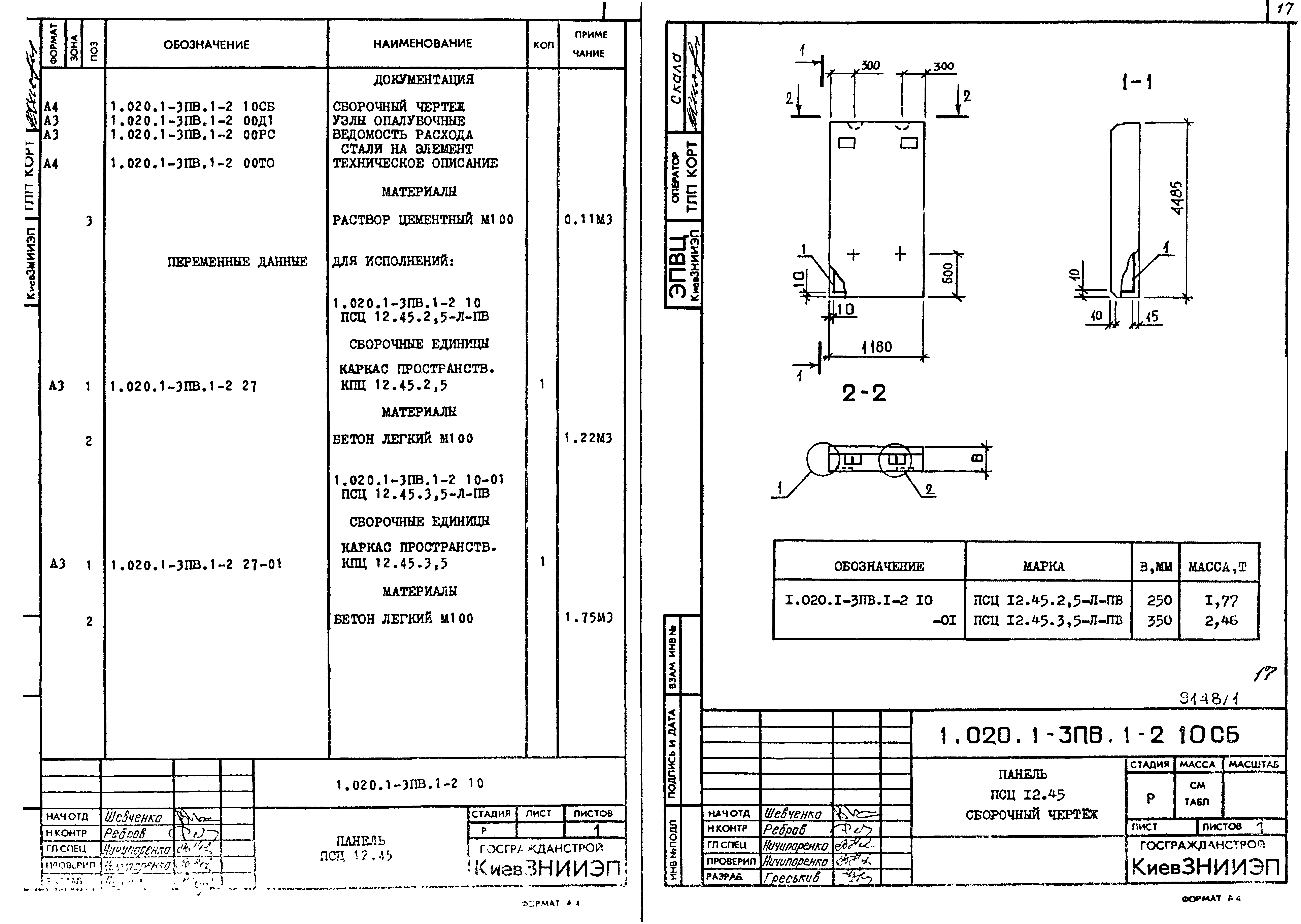
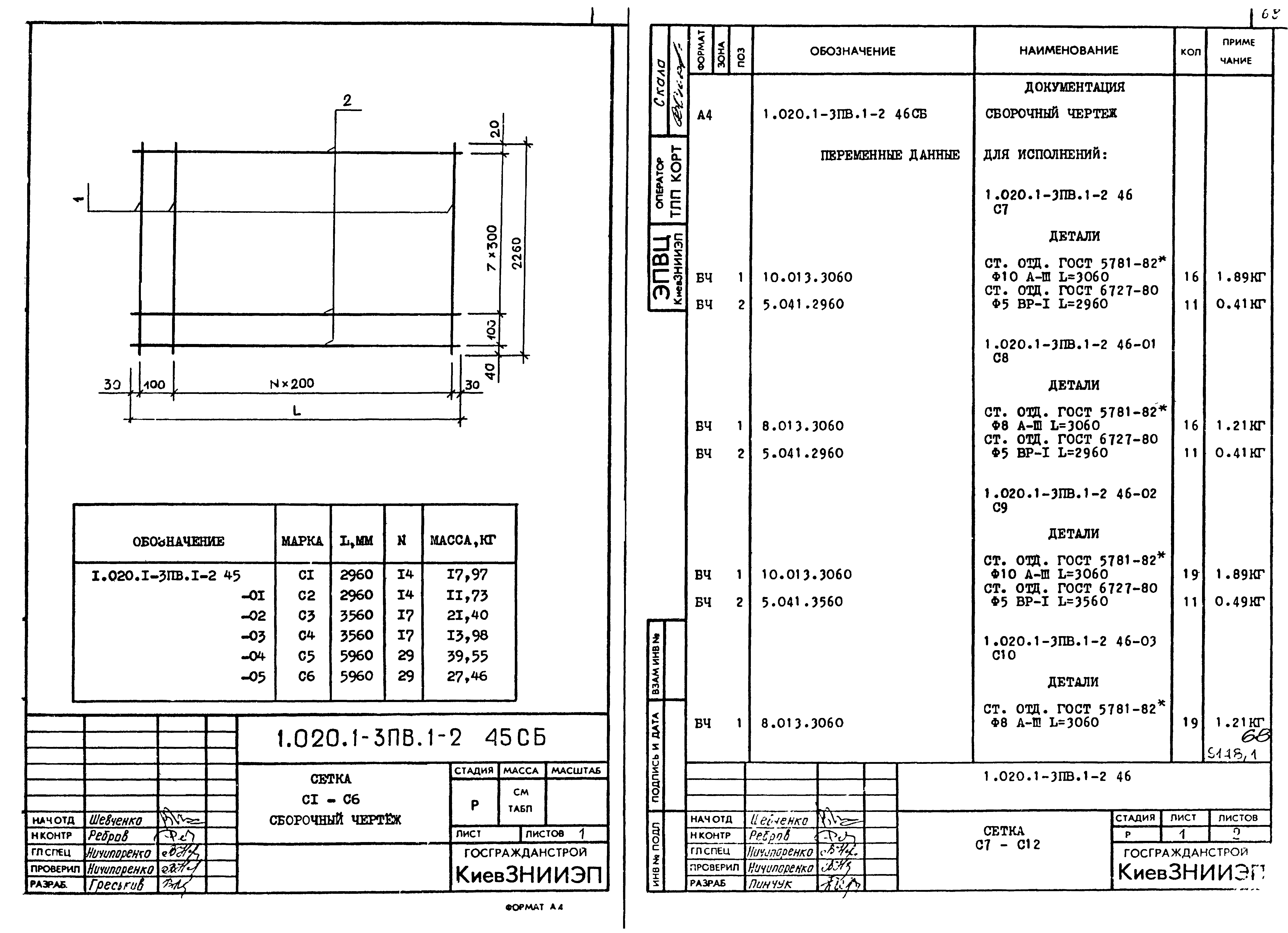
| Оглавление: | 1.020.1-3ПВ.1-2 00ТО Техническое описание 1.020.1-3ПВ.1-2 01 Панель ПСЦ 30.23 1.020.1-3ПВ.1-2 02 Панель ПСЦ 30.31 1.020.1-3ПВ.1-2 03 Панель ПСЦ 30.36 1.020.1-3ПВ.1-2 04 Панель ПСЦ 30.39 1.020.1-3ПВ.1-2 05 Панель ПСЦ 30.45 1.020.1-3ПВ.1-2 06 Панель ПСЦ 36.23 1.020.1-3ПВ.1-2 07 Панель ПСЦ 36.31 1.020.1-3ПВ.1-2 08 Панель ПСЦ 12.36 1.020.1-3ПВ.1-2 09 Панель ПСЦ 12.39 1.020.1-3ПВ.1-2 10 Панель ПСЦ 12.45 1.020.1-3ПВ.1-2 11 Панель ПСЦ 60.23 1.020.1-3ПВ.1-2 12 Панель ПСЦ 60.31 1.020.1-3ПВ.1-2 13 Панель ПСЦ 46.230.25-Л-ПВ, ПСЦ 56.230.35-Л-ПВ 1.020.1-3ПВ.1-2 14 Панель ПСЦ 46.310.25-Л-ПВ, ПСЦ 56.310.35-Л-ПВ 1.020.1-3ПВ.1-2 15 Панель ПСЦ 46.360.25-Л-ПВ, ПСЦ 56.360.35-Л-ПВ 1.020.1-3ПВ.1-2 16 Панель ПСЦ 46.390.25-Л-ПВ, ПСЦ 56.390.35-Л-ПВ 1.020.1-3ПВ.1-2 17 Панель ПСЦ 46.450.25-Л-ПВ, ПСЦ 56.450.35-Л-ПВ 1.020.1-3ПВ.1-2 18 Каркас пространственный КПЦ 30.23 1.020.1-3ПВ.1-2 19 Каркас пространственный КПЦ 30.31 1.020.1-3ПВ.1-2 20 Каркас пространственный КПЦ 30.36 1.020.1-3ПВ.1-2 21 Каркас пространственный КПЦ 30.39 1.020.1-3ПВ.1-2 22 Каркас пространственный КПЦ 30.45 1.020.1-3ПВ.1-2 23 Каркас пространственный КПЦ 36.23 1.020.1-3ПВ.1-2 24 Каркас пространственный КПЦ 36.31 1.020.1-3ПВ.1-2 25 Каркас пространственный КПЦ 12.36 1.020.1-3ПВ.1-2 26 Каркас пространственный КПЦ 12.39 1.020.1-3ПВ.1-2 27 Каркас пространственный КПЦ 12.45 1.020.1-3ПВ.1-2 28 Каркас пространственный КПЦ 60.23 1.020.1-3ПВ.1-2 29 Каркас пространственный КПЦ 60.31 1.020.1-3ПВ.1-2 30 Каркас пространственный КПЦ 46.230.25, КПЦ 56.230.35 1.020.1-3ПВ.1-2 31 Каркас пространственный КПЦ 46.310.25, КПЦ 56.310.35 1.020.1-3ПВ.1-2 32 Каркас пространственный КПЦ 46.360.25, КПЦ 56.360.35 1.020.1-3ПВ.1-2 33 Каркас пространственный КПЦ 46.390.25, КПЦ 56.390.35 1.020.1-3ПВ.1-2 34 Каркас пространственный КПЦ 46.450.25, КПЦ 56.450.35 1.020.1-3ПВ.1-2 35 Каркас плоский КР1, КР2 1.020.1-3ПВ.1-2 36 Каркас плоский КР3, КР4 1.020.1-3ПВ.1-2 37 Каркас плоский КР5, КР6 1.020.1-3ПВ.1-2 38 Каркас плоский КР7, КР8 1.020.1-3ПВ.1-2 39 Каркас плоский КР9, КР10 1.020.1-3ПВ.1-2 40 Каркас плоский КР11, КР12 1.020.1-3ПВ.1-2 41 Каркас плоский КР13, КР14 1.020.1-3ПВ.1-2 42 Каркас плоский КР15, КР16 1.020.1-3ПВ.1-2 43 Каркас плоский КР17, КР18 1.020.1-3ПВ.1-2 44 Каркас плоский КР19, КР20 1.020.1-3ПВ.1-2 45 Сетка С1-С6 1.020.1-3ПВ.1-2 46 Сетка С7-С12 1.020.1-3ПВ.1-2 47 Сетка С13-С16 1.020.1-3ПВ.1-2 48 Сетка С17-С20 1.020.1-3ПВ.1-2 49 Сетка С21-С24 1.020.1-3ПВ.1-2 50 Петля строповочная СПГ1-СПГ8 1.020.1-3ПВ.1-2 51 Изделие закладное М1, М2 1.020.1-3ПВ.1-2 00Д1 Узлы опалубочные 1.020.1-3ПВ.1-2 00Д2 Узлы арматурные 1.020.1-3ПВ.1-2 00РС Ведомость расхода стали на элемент, кг |
| Разработан: | КиевЗНИИЭП ЦНИИЭП торгово-бытовых зданий и туристских комплексов |
| Утверждён: | 30.07.1985 Госстрой СССР (Государственный комитет Совета Министров СССР по делам строительства) (USSR Gosstroy АЧ-30) |
| Расположен в: | |
| Заменяет собой: |


















































































