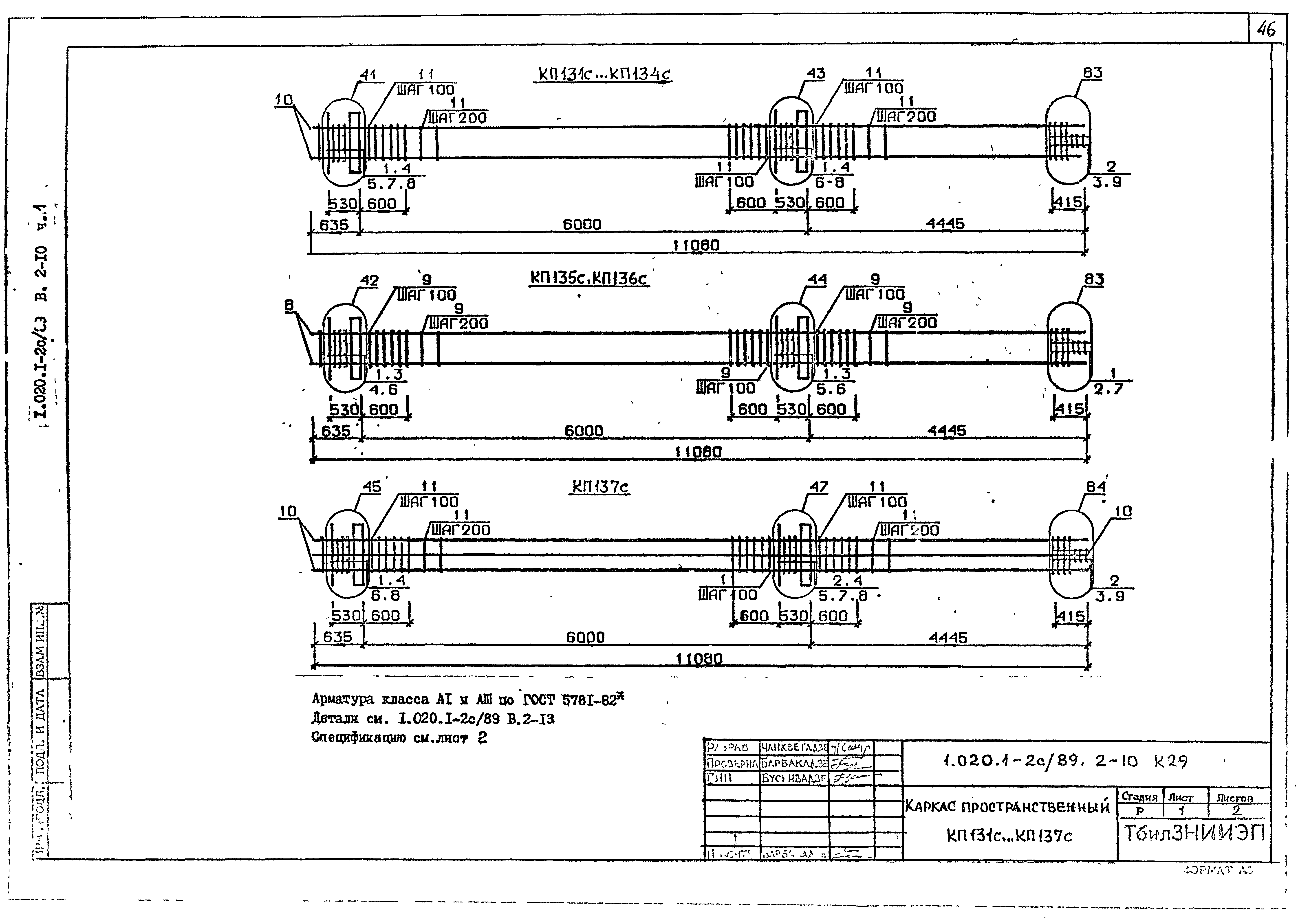
Скачать Серия 1.020.1-2с/89 Выпуск 2-10. Часть 1. Колонны сечением 400х400 мм для зданий с высотами этажей 5,4; 6,0 и 6,0 (7,2) м. Пространственные каркасы. Рабочие чертежи для районов сейсмичностью 7, 8, 9 балловДата актуализации: 10.08.2017 Серия 1.020.1-2с/89
Выпуск 2-10. Часть 1. Колонны сечением 400х400 мм для зданий с высотами этажей 5,4; 6,0 и 6,0 (7,2) м. Пространственные каркасы. Рабочие чертежи для районов сейсмичностью 7, 8, 9 баллов| Обозначение: | Серия 1.020.1-2с/89 | | Обозначение англ: | Series 1.020.1-2с/89 | | Статус: | не определен законодательством | | Название рус.: | Выпуск 2-10. Часть 1. Колонны сечением 400х400 мм для зданий с высотами этажей 5,4; 6,0 и 6,0 (7,2) м. Пространственные каркасы. Рабочие чертежи для районов сейсмичностью 7, 8, 9 баллов | | Дата добавления в базу: | 01.09.2013 | | Дата актуализации: | 05.05.2017 | | Дата введения: | 01.07.1990 | | Разработан: | НИИЖБ Госстроя СССР ТбилЗНИИЭП
| | Утверждён: | 25.12.1989 Госкомархитектура (244)
| | Принят: | ЦНИИСК им.Кучеренко (Kucherenko TsNIISK )
| | Расположен в: |
| | Заменяет собой: | |
                                                                                                                        
|