Информационная система
«Ёшкин Кот»

Скачать базу одним архивом
Скачать обновления
История создания базы
Карта сайта

Скачать Серия 5.407-149 Выпуск 0. Материалы для проектирования

Дата актуализации: 10.08.2017

Серия 5.407-149

Выпуск 0. Материалы для проектирования

Обозначение: Серия 5.407-149
Обозначение англ: Series 5.407-149
Статус:не определен законодательством
Название рус.:Выпуск 0. Материалы для проектирования
Дата добавления в базу:01.09.2013
Дата актуализации:05.05.2017
Дата введения:01.01.1992
Оглавление:5.407-149.0-ПЗ Пояснительная записка
5.407-149.0-ГЧ Каркасы щитов НКУ завода ХЭМЗ. Габаритный чертеж
5.407-149.0-ТБ Таблица выбора чертежей
5.407-149.0-01Д Минимальные размеры проходов вдоль щитов НКУ одностороннего обслуживания глубиной 600 мм
5.407-149.0-02Д Минимальные размеры проходов вдоль щитов НКУ двухстороннего обслуживания глубиной 800 мм, однорядных
5.407-149.0-03Д Минимальные размеры проходов вдоль щитов НКУ двухстороннего обслуживания глубиной 800 мм, двухрядных
5.407-149.0-04Д Минимальные размеры боковых проходов для щитов НКУ
5.407-149.0-05Д Изображение планов строительных зданий на помещения в зонах установки щитов НКУ. Пример
5.407-149.0-06Д Изображение планов установки щитов НКУ. Пример
5.407-149.0-07Д Расположение распределительного щита 4Щ в электропомещении. Пример
5.407-149.0-08Д Проемы для кабелей в железобетонных перекрытиях и полах. Строительное здание. Пример
5.407-149.0-09Д Участок перекрытия в зоне установки щита НКУ одностороннего обслуживания у стены. Строительное здание
5.407-149.0-10Д Участок перекрытия в зоне установки щита НКУ одностороннего обслуживания. Строительное здание
5.407-149.0-11Д Участок перекрытия в зоне установки щита НКУ двухстороннего обслуживания у стены. Строительное здание
5.407-149.0-12Д Участок перекрытия в зоне установки щита НКУ двухстороннего обслуживания. Строительное здание
5.407-149.0-13Д Участок перекрытия в зоне установки щита НКУ двухстороннего обслуживания у стены. Строительное здание
5.407-149.0-14Д Участок перекрытия в зоне установки щита НКУ двухстороннего обслуживания. Строительное здание
5.407-149.0-27Д Участок перекрытия в зоне установки щита сопротивлений НКУ двухстороннего обслуживания у стены. Строительное здание
5.407-149.0-28Д Участок перекрытия в зоне установки щита сопротивлений НКУ двухстороннего обслуживания. Строительное здание
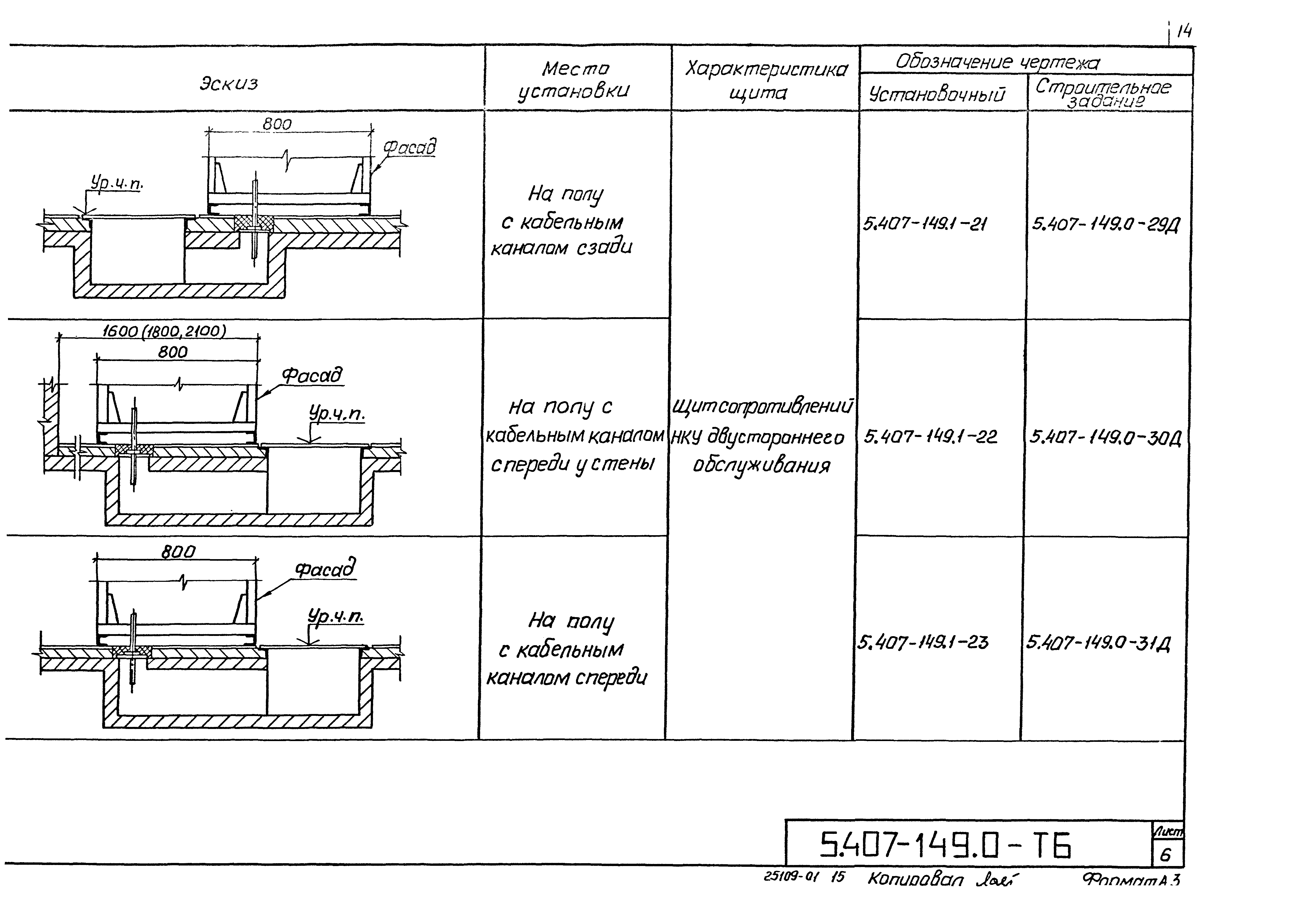
5.407-149.0-29Д Участок перекрытия в зоне установки щита сопротивлений НКУ двухстороннего обслуживания с каналом сзади. Строительное здание
5.407-149.0-30Д Участок перекрытия в зоне установки щита сопротивлений НКУ двухстороннего обслуживания с каналом спереди у стены. Строительное здание
5.407-149.0-31Д Участок перекрытия в зоне установки щита сопротивлений НКУ двухстороннего обслуживания с каналом спереди. Строительное здание
Разработан: УГППКИ Тяжпромэлектропроект
Утверждён:01.04.1991 ВНИПИ Тяжпромэлектропроект им. Ф.Б. Якубовского (F.B.Yakubovskiy Tyazhpromelektroproject VNIPI )
Издан: АПП ЦИТП (1991 г. )
Расположен в:Техническая документация Строительство Справочные документы Типовые строительные конструкции, изделия и узлы Общероссийский строительный каталог Строительные конструкции, изделия и узлы зданий и сооружений для всех видов строительства Инженерное оборудование Инженерное оборудование; изделия и узлы инженерного оборудования зданий и сооружений Электрооборудование и электросети Установка светильников, пускателей, выключателей, щитов
Серия 5.407-149Серия 5.407-149Серия 5.407-149Серия 5.407-149Серия 5.407-149Серия 5.407-149Серия 5.407-149Серия 5.407-149Серия 5.407-149Серия 5.407-149Серия 5.407-149Серия 5.407-149Серия 5.407-149Серия 5.407-149Серия 5.407-149Серия 5.407-149Серия 5.407-149Серия 5.407-149Серия 5.407-149Серия 5.407-149Серия 5.407-149Серия 5.407-149Серия 5.407-149Серия 5.407-149Серия 5.407-149Серия 5.407-149Серия 5.407-149Серия 5.407-149Серия 5.407-149Серия 5.407-149Серия 5.407-149Серия 5.407-149Серия 5.407-149Серия 5.407-149Серия 5.407-149Серия 5.407-149Серия 5.407-149Серия 5.407-149Серия 5.407-149Серия 5.407-149Серия 5.407-149Серия 5.407-149Серия 5.407-149

© 2013 Ёшкин Кот :-) Карта сайта