Скачать Серия 5.407-134 Выпуск 0. Материалы для проектированияДата актуализации: 10.08.2017 Серия 5.407-134
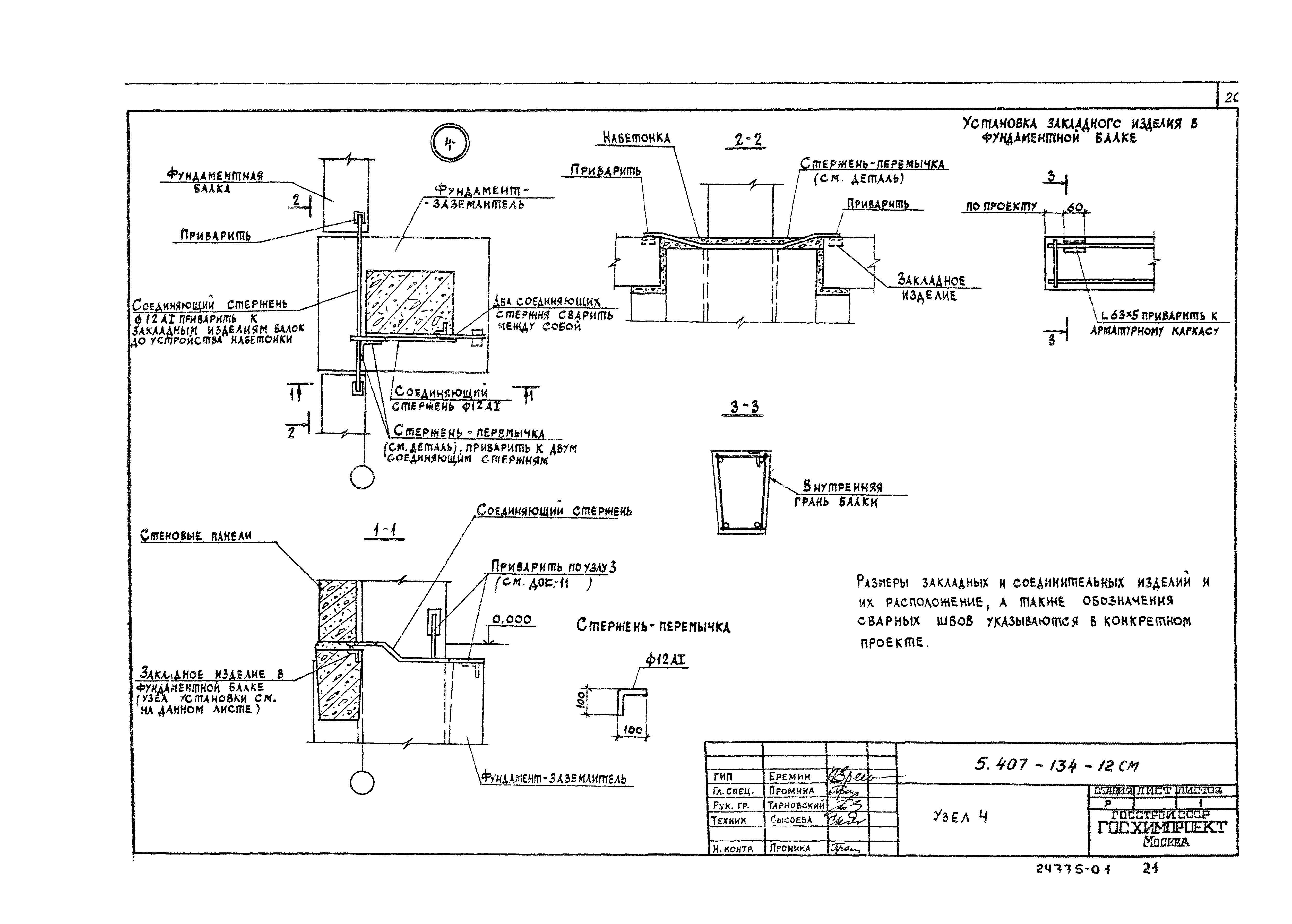
Выпуск 0. Материалы для проектированияОбозначение: | Серия 5.407-134 | Обозначение англ: | Series 5.407-134 | Статус: | не определен законодательством | Название рус.: | Выпуск 0. Материалы для проектирования | Дата добавления в базу: | 01.09.2013 | Дата актуализации: | 05.05.2017 | Дата введения: | 01.06.1991 | Оглавление: | 5.407-134-ПЗ Пояснительная записка 5.407-134-1СМ Система молниезащиты и защитного заземления в одноэтажном здании (вариант использования крановых рельсов) 5.407-134-2СМ Систем защитного заземления в одноэтажном здании (вариант использования крановых рельсов 5.407-134-3СМ Систем защитного заземления в одноэтажном здании (вариант использования фундаментальных балок) 5.407-134-4СМ Система молниезащиты и защитного заземления в многоэтажных зданиях по серии 1.420 5.407-134-5СМ Система заземления одноэтажного здания со стальными фермами покрытия. Узлы 1,2 5.407-134-6СМ Установка стержневых молниеприемников 5.407-134-7СМ Примеры расположения дополнительных закладных изделий в колоннах по сериям 1.423.1-3/88, 1.423.1-5/88 и 1.424.1-5 5.407-134-8СМ Примеры расположения дополнительных закладных изделий в колоннах по серии 1.424.1-9. Узлы 10, 11 5.407-134-9СМ Примеры расположения дополнительных закладных изделий в колонны многоэтажных зданий по серии 1.420 5.407-134-10СМ Установка закладных и соединительных изделий в фундаментах-заземлителях 5.407-134-11СМ Узлы 3 и 3а 5.407-134-12СМ Узел 4 5.407-134-13СМ Узлы 5, 6, 7 5.407-134-14СМ Узлы 8, 8а 5.407-134-15СМ Узлы 9, 12, 23 5.407-134-16СМ Узлы 13, 14, 15 5.407-134-17СМ Узлы 16, 17, 18 5.407-134-18СМ Узел 19 5.407-134-19СМ Узлы 20, 21 5.407-134-20СМ Узлы 22, 22а 5.407-134-21СМ Пример строительного здания на защитное заземление 5.407-134-22СМ Пример строительного здания на молниезащиту с сеткой и на защитное заземление 5.407-134-23СМ Пример строительного здания на молниезащиту стальной сеткой 5.407-134-24СМ Пример строительного здания на молниезащиту стержневыми молниеприемниками высотой 5,0 м 5.407-134-25СМ Пример строительного здания на молниезащиту стержневыми молниеприемниками высотой 7,0 м | Разработан: | ЦНИИпромзданий Госхимпроект НИИЖБ ВНИИПроектэлектромонтаж
| Утверждён: | 23.08.1990 НПО Электромонтаж ММСС СССР (40)
| Издан: | ЦИТП Госстроя СССР (CITP, Gosstroy (USSR) 1991 г. )
| Расположен в: |
|
                               
|