Информационная система
«Ёшкин Кот»

Скачать базу одним архивом
Скачать обновления
История создания базы
Карта сайта

Скачать Серия 5.407-97 Выпуск 1. Монтажные чертежи. Чертежи изделий

Дата актуализации: 10.08.2017

Серия 5.407-97

Выпуск 1. Монтажные чертежи. Чертежи изделий

Обозначение: Серия 5.407-97
Обозначение англ: Series 5.407-97
Статус:не определен законодательством
Название рус.:Выпуск 1. Монтажные чертежи. Чертежи изделий
Дата добавления в базу:01.09.2013
Дата актуализации:05.05.2017
Дата введения:14.09.1988
Оглавление:Титульный лист
Содержание
5.407-97.1.ПЗ Пояснительная записка
5.407-97.1.10ГЧ Коробки с зажимами КЗН, КЗНА, ККС и ККА. Габаритный чертеж
5.407-97.1.20ТБ Таблица выбора монтажных чертежей
5.407-97.1.30Д Ведомость потребности в изделиях и материалах
5.407-97.1.40МЧ Коробка КЗН08У2 или КЗНА08У3 на стене. Монтажный чертеж
5.407-97.1.50МЧ Коробка КЗН16У2 или КЗНА16У3 на стене. Монтажный чертеж
5.407-97.1.60МЧ Коробка КЗН32У2 или КЗНА32У3 на стене. Монтажный чертеж
5.407-97.1.70МЧ Коробка КЗН48У2 или КЗНА48У3 на стене. Монтажный чертеж
5.407-97.1.80МЧ Коробка ККС8УХ4.2 на стене. Монтажный чертеж
5.407-97.1.90МЧ Коробка ККС16УХ4.2 на стене. Монтажный чертеж
5.407-97.1.100МЧ Коробка ККС32УХ4.2 или ККА32 04.2 на стене. Монтажный чертеж
5.407-97.1.110МЧ Коробка КЗН08У2 или КЗНА08У3 на ж.б. колонне. Монтажный чертеж
5.407-97.1.120МЧ Коробка КЗН16У2 или КЗНА16У3 на ж.б. колонне. Монтажный чертеж
5.407-97.1.130МЧ Коробка КЗН32У2 или КЗНА32У3 на ж.б. колонне. Монтажный чертеж
5.407-97.1.140МЧ Коробка КЗН48У2 или КЗНА48У3 на ж.б. колонне. Монтажный чертеж
5.407-97.1.150МЧ Коробка ККС8УХЛ4.2 на ж.б. колонне. Монтажный чертеж
5.407-97.1.160МЧ Коробка ККС16УХЛ4.2 на ж.б. колонне. Монтажный чертеж
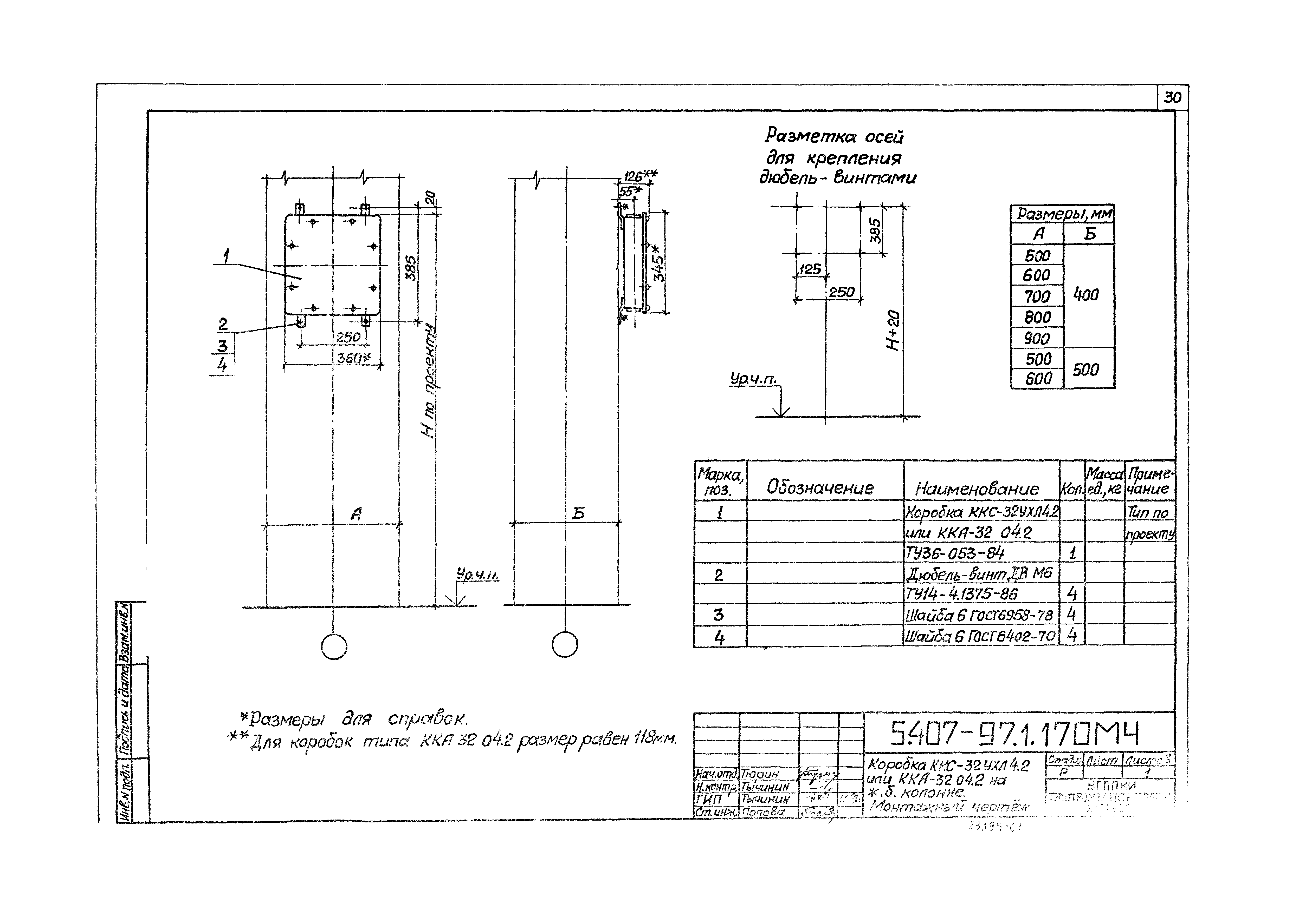
5.407-97.1.170МЧ Коробка ККС32УХЛ4.2 или ККА32 04.2 на ж.б. колонне. Монтажный чертеж
5.407-97.1.180МЧ Коробка КЗН08У2 или КЗНА08У3 на стальной колонне. Монтажный чертеж
5.407-97.1.190МЧ Коробка КЗН16У2 или КЗНА16У3 на стальной колонне. Монтажный чертеж
5.407-97.1.200МЧ Коробка КЗН32У2 или КЗНА32У3 на стальной колонне. Монтажный чертеж
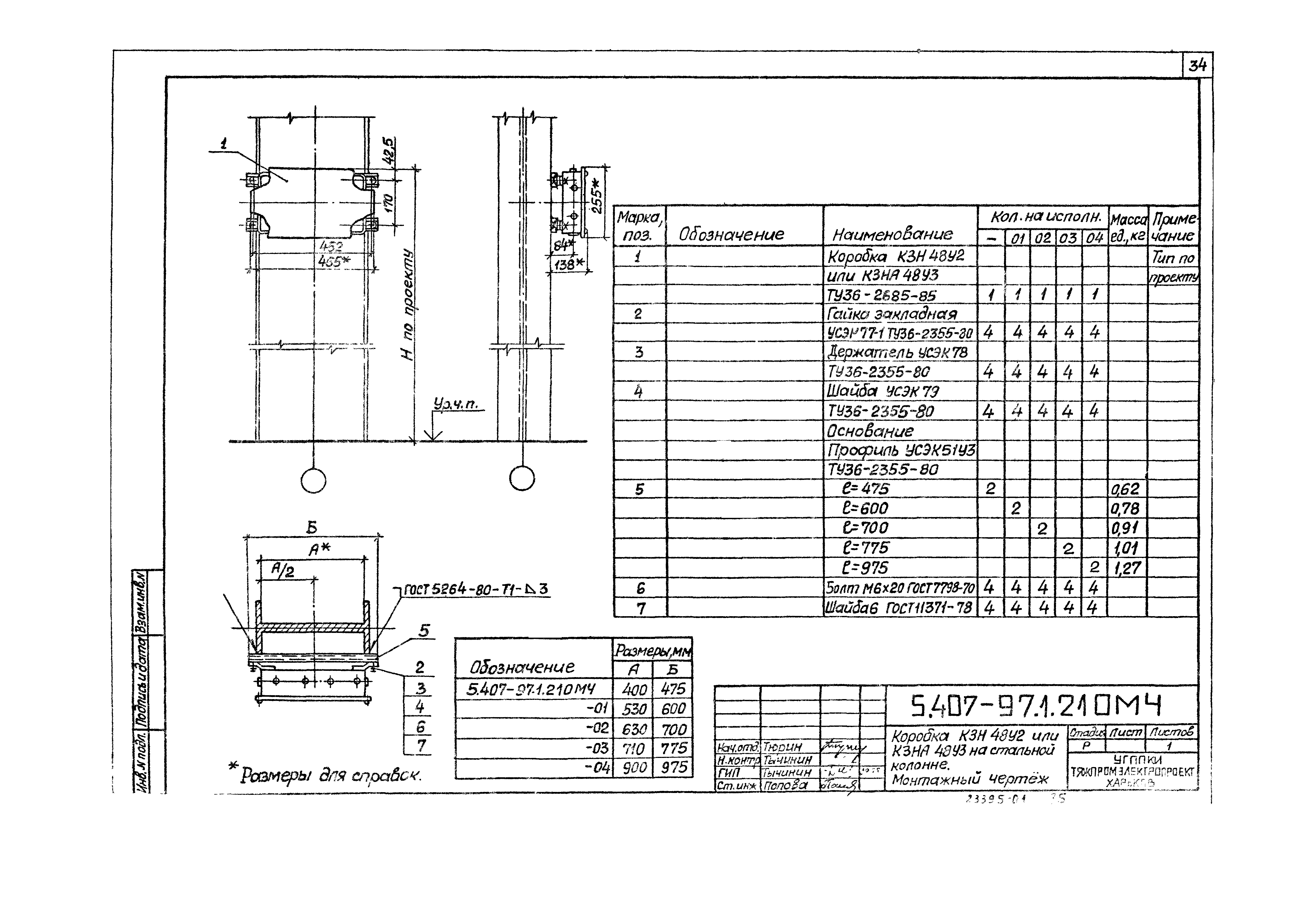
5.407-97.1.210МЧ Коробка КЗН48У2 или КЗНА48У3 на стальной колонне. Монтажный чертеж
5.407-97.1.220МЧ Коробка ККС8УХЛ4.2 на стальной колонне. Монтажный чертеж
5.407-97.1.230МЧ Коробка ККС16УХЛ4.2 на стальной колонне. Монтажный чертеж
5.407-97.1.240МЧ Коробка ККС32УХЛ4.2 или ККА3204.2 на стальной колонне. Монтажный чертеж
5.407-97.1.250МЧ Коробка КЗН08У2 или КЗНА08У3 на стальной колонне. Монтажный чертеж
5.407-97.1.260МЧ Коробка КЗН16У2 или КЗНА16У3 на стальной колонне. Монтажный чертеж
5.407-97.1.270МЧ Коробка КЗН32У2 или КЗНА32У3 на стальной колонне. Монтажный чертеж
5.407-97.1.280МЧ Коробка КЗН48У2 или КЗНА48У3 на стальной колонне. Монтажный чертеж
5.407-97.1.290МЧ Коробка ККС8УХЛ4.2 на стальной колонне. Монтажный чертеж
5.407-97.1.300МЧ Коробка ККС16УХЛ4.2 на стальной колонне. Монтажный чертеж
5.407-97.1.310МЧ Коробка ККС32УХЛ4.2 или ККА320.42 на стальной колонне. Монтажный чертеж
5.407-97.1.320МЧ Коробка КЗН08У2 или КЗНА08У3 на стальной ступенчатой колонне. Монтажный чертеж
5.407-97.1.330МЧ Коробка КЗН16У2 или КЗНА16У3 на стальной ступенчатой колонне. Монтажный чертеж
5.407-97.1.340МЧ Коробка КЗН32У2 или КЗНА32У3 на стальной ступенчатой колонне. Монтажный чертеж
5.407-97.1.350МЧ Коробка КЗН48У2 или КЗНА48У3 на стальной ступенчатой колонне. Монтажный чертеж
5.407-97.1.360МЧ Коробка ККС8УХЛ4.2 на стальной ступенчатой колонне. Монтажный чертеж
5.407-97.1.370МЧ Коробка ККС16УХЛ4.2 на стальной ступенчатой колонне. Монтажный чертеж
5.407-97.1.380МЧ Коробка ККС32УХЛ4.2 или ККА3204.2 на стальной ступенчатой колонне. Монтажный чертеж
5.407-97.1.390 Конструкция
5.407-97.1.400 Конструкция
5.407-97.1.410 Шаблон для разметки осей крепления коробок с двумя папками
5.407-97.1.420 Шаблон для разметки осей крепления коробок с четырьмя папками
Разработан: УГППКИ Тяжпромэлектропроект
Утверждён:14.09.1988 УГППКИ Тяжпромэлектропроект (1396)
Издан: ЦИТП Госстроя СССР (CITP, Gosstroy (USSR) 1989 г. )
Расположен в:Техническая документация Строительство Справочные документы Типовые строительные конструкции, изделия и узлы Общероссийский строительный каталог Строительные конструкции, изделия и узлы зданий и сооружений для всех видов строительства Инженерное оборудование Инженерное оборудование; изделия и узлы инженерного оборудования зданий и сооружений Электрооборудование и электросети Установка светильников, пускателей, выключателей, щитов
Серия 5.407-97Серия 5.407-97Серия 5.407-97Серия 5.407-97Серия 5.407-97Серия 5.407-97Серия 5.407-97Серия 5.407-97Серия 5.407-97Серия 5.407-97Серия 5.407-97Серия 5.407-97Серия 5.407-97Серия 5.407-97Серия 5.407-97Серия 5.407-97Серия 5.407-97Серия 5.407-97Серия 5.407-97Серия 5.407-97Серия 5.407-97Серия 5.407-97Серия 5.407-97Серия 5.407-97Серия 5.407-97Серия 5.407-97Серия 5.407-97Серия 5.407-97Серия 5.407-97Серия 5.407-97Серия 5.407-97Серия 5.407-97Серия 5.407-97Серия 5.407-97Серия 5.407-97Серия 5.407-97Серия 5.407-97Серия 5.407-97Серия 5.407-97Серия 5.407-97Серия 5.407-97Серия 5.407-97Серия 5.407-97Серия 5.407-97Серия 5.407-97Серия 5.407-97Серия 5.407-97Серия 5.407-97Серия 5.407-97Серия 5.407-97Серия 5.407-97Серия 5.407-97Серия 5.407-97Серия 5.407-97Серия 5.407-97

© 2013 Ёшкин Кот :-) Карта сайта