Информационная система
«Ёшкин Кот»

Скачать базу одним архивом
Скачать обновления
История создания базы
Карта сайта

Скачать Серия 5.407-84 Выпуск 1. Монтажные чертежи

Дата актуализации: 10.08.2017

Серия 5.407-84

Выпуск 1. Монтажные чертежи

Обозначение: Серия 5.407-84
Обозначение англ: Series 5.407-84
Статус:не определен законодательством
Название рус.:Выпуск 1. Монтажные чертежи
Дата добавления в базу:01.09.2013
Дата актуализации:05.05.2017
Дата введения:30.11.1987
Оглавление:Титульный лист
Содержание
5.407-84.1.10МЧ 2 пускателя ПМЛ 1-й величины нереверсивные на стене. Монтажный чертеж
5.407-84.1.20МЧ 3 пускателя ПМЛ 1-й величины нереверсивные на стене. Монтажный чертеж
5.407-84.1.30МЧ 2 пускателя ПМЛ 2-й величины нереверсивные на стене. Монтажный чертеж
5.407-84.1.40МЧ 3 пускателя ПМЛ 2-й величины нереверсивные на стене. Монтажный чертеж
5.407-84.1.50МЧ 2 пускателя ПМЛ 3-й и 4-й величин нереверсивные на стене. Монтажный чертеж
5.407-84.1.60МЧ 3 пускателя ПМЛ 3-й и 4-й величин нереверсивные на стене. Монтажный чертеж
5.407-84.1.70МЧ 2 пускателя ПМЛ 1-й и 2-й величин реверсивные на стене. Монтажный чертеж
5.407-84.1.80МЧ 2 пускателя ПМЛ 3-й и 4-й величин реверсивные на стене. Монтажный чертеж
5.407-84.1.90МЧ 2 пускателя ПМЛ 1-й величины нереверсивные на стене с коробом. Монтажный чертеж
5.407-84.1.100МЧ 3 пускателя ПМЛ 1-й величины нереверсивные на стене с коробом. Монтажный чертеж
5.407-84.1.110МЧ 2 пускателя ПМЛ 2-й величины нереверсивные на стене с коробом. Монтажный чертеж
5.407-84.1.120МЧ 3 пускателя ПМЛ 2-й величины нереверсивные на стене с коробом. Монтажный чертеж
5.407-84.1.130МЧ 2 пускателя ПМЛ 3-й и 4-й величин нереверсивные на стене с коробом. Монтажный чертеж
5.407-84.1.140МЧ 3 пускателя ПМЛ 3-й и 4-й величин нереверсивные на стене с коробом. Монтажный чертеж
5.407-84.1.150МЧ 2 пускателя ПМЛ 1-й и 2-й величин реверсивные на стене с коробом. Монтажный чертеж
5.407-84.1.160МЧ 2 пускателя ПМЛ 3-й и 4-й величин реверсивные на стене с коробом. Монтажный чертеж
5.407-84.1.170МЧ 2 пускателя ПМЛ 1-й величины нереверсивные на ж.-б. колонне среднего ряда. Монтажный чертеж
5.407-84.1.180МЧ 3 пускателя ПМЛ 1-й величины нереверсивные на ж.-б. колонне среднего ряда. Монтажный чертеж
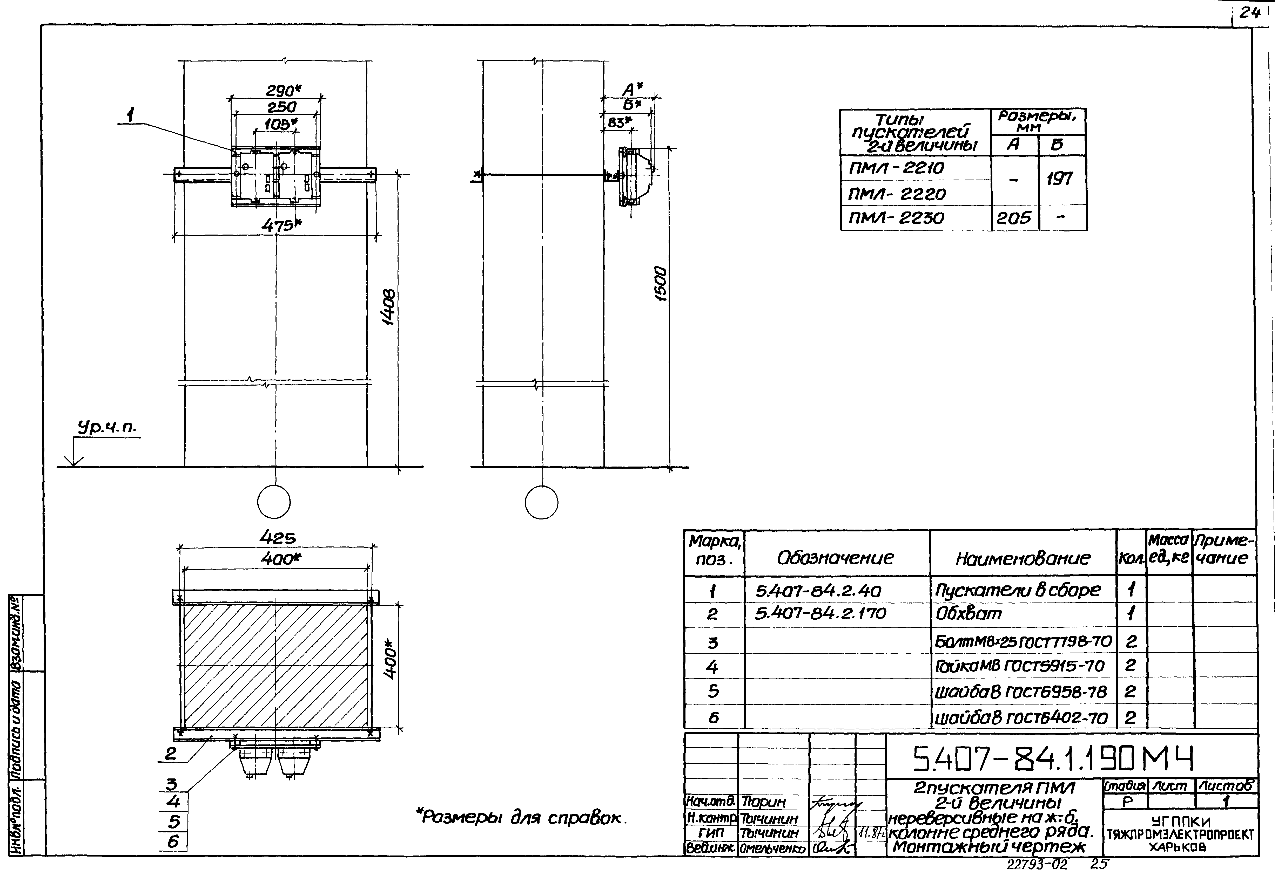
5.407-84.1.190МЧ 2 пускателя ПМЛ 2-й величины нереверсивные на ж.-б. колонне среднего ряда. Монтажный чертеж
5.407-84.1.200МЧ 3 пускателя ПМЛ 2-й величины нереверсивные на ж.-б. колонне среднего ряда. Монтажный чертеж
5.407-84.1.210МЧ 2 пускателя ПМЛ 3-й и 4-й величин нереверсивные на ж.-б. колонне среднего ряда. Монтажный чертеж
5.407-84.1.220МЧ 3 пускателя ПМЛ 3-й и 4-й величин нереверсивные на ж.-б. колонне среднего ряда. Монтажный чертеж
5.407-84.1.230МЧ 2 пускателя ПМЛ 1-й и 2-й величин реверсивные на ж.-б. колонне среднего ряда. Монтажный чертеж
5.407-84.1.240МЧ 2 пускателя ПМЛ 3-й и 4-й величин реверсивные на ж.-б. колонне среднего ряда. Монтажный чертеж
5.407-84.1.250МЧ 2 пускателя ПМЛ 1-й величины нереверсивные на ж.-б. колонне. Монтажный чертеж
5.407-84.1.260МЧ 3 пускателя ПМЛ 1-й величины нереверсивные на ж.-б. колонне. Монтажный чертеж
5.407-84.1.270МЧ 2 пускателя ПМЛ 2-й величины нереверсивные на ж.-б. колонне. Монтажный чертеж
5.407-84.1.280МЧ 3 пускателя ПМЛ 2-й величины нереверсивные на ж.-б. колонне. Монтажный чертеж
5.407-84.1.290МЧ 2 пускателя ПМЛ 3-й и 4-й величин нереверсивные на ж.-б. колонне. Монтажный чертеж
5.407-84.1.300МЧ 3 пускателя ПМЛ 3-й и 4-й величин нереверсивные на ж.-б. колонне. Монтажный чертеж
5.407-84.1.310МЧ 2 пускателя ПМЛ 1-й и 2-й величин реверсивные на ж.-б. колонне. Монтажный чертеж
5.407-84.1.320МЧ 2 пускателя ПМЛ 3-й и 4-й величин реверсивные на ж.-б. колонне. Монтажный чертеж
5.407-84.1.330МЧ 2 пускателя ПМЛ 1-й величины нереверсивные на стальной колонне. Монтажный чертеж
5.407-84.1.340МЧ 3 пускателя ПМЛ 1-й величины нереверсивные на стальной колонне. Монтажный чертеж
5.407-84.1.350МЧ 2 пускателя ПМЛ 2-й величины нереверсивные на стальной колонне. Монтажный чертеж
5.407-84.1.360МЧ 3 пускателя ПМЛ 2-й величины нереверсивные на стальной колонне. Монтажный чертеж
5.407-84.1.370МЧ 2 пускателя ПМЛ 3-й и 4-й величин нереверсивные на стальной колонне. Монтажный чертеж
5.407-84.1.380МЧ 3 пускателя ПМЛ 3-й и 4-й величин нереверсивные на стальной колонне. Монтажный чертеж
5.407-84.1.390МЧ 2 пускателя ПМЛ 1-й и 2-й величин реверсивные на стальной колонне. Монтажный чертеж
5.407-84.1.400МЧ 2 пускателя ПМЛ 3-й и 4-й величин реверсивные на стальной колонне. Монтажный чертеж
5.407-84.1.410МЧ 2 пускателя ПМЛ 1-й величины нереверсивные на стальной ступенчатой колонне. Монтажный чертеж
5.407-84.1.420МЧ 3 пускателя ПМЛ 1-й величины нереверсивные на стальной ступенчатой колонне. Монтажный чертеж
5.407-84.1.430МЧ 2 пускателя ПМЛ 2-й величины нереверсивные на стальной ступенчатой колонне. Монтажный чертеж
5.407-84.1.440МЧ 3 пускателя ПМЛ 2-й величины нереверсивные на стальной ступенчатой колонне. Монтажный чертеж
5.407-84.1.450МЧ 2 пускателя ПМЛ 3-й и 4-й величин нереверсивные на стальной ступенчатой колонне. Монтажный чертеж
5.407-84.1.460МЧ 3 пускателя ПМЛ 3-й и 4-й величин нереверсивные на стальной ступенчатой колонне. Монтажный чертеж
5.407-84.1.470МЧ 2 пускателя ПМЛ 1-й и 2-й величин реверсивные на стальной ступенчатой колонне. Монтажный чертеж
5.407-84.1.480МЧ 2 пускателя ПМЛ 3-й и 4-й величин реверсивные на стальной ступенчатой колонне. Монтажный чертеж
5.407-84.1.490МЧ 2 пускателя ПМЛ 1-й величины нереверсивные на стойке. Монтажный чертеж
5.407-84.1.500МЧ 3 пускателя ПМЛ 1-й величины нереверсивные на стойке. Монтажный чертеж
5.407-84.1.510МЧ 2 пускателя ПМЛ 2-й величины нереверсивные на стойке. Монтажный чертеж
5.407-84.1.520МЧ 3 пускателя ПМЛ 2-й величины нереверсивные на стойке. Монтажный чертеж
5.407-84.1.530МЧ 2 пускателя ПМЛ 3-й и 4-й величин нереверсивные на стойке. Монтажный чертеж
5.407-84.1.540МЧ 3 пускателя ПМЛ 3-й и 4-й величин нереверсивные на стойке. Монтажный чертеж
5.407-84.1.550МЧ 2 пускателя ПМЛ 1-й и 2-й величин реверсивные на стойке. Монтажный чертеж
5.407-84.1.560МЧ 2 пускателя ПМЛ 3-й и 4-й величин реверсивные на стойке. Монтажный чертеж
Разработан: УГППКИ Тяжпромэлектропроект
Утверждён:30.11.1987 Минмонтажспецстрой СССР (USSR Minmontazhspetsstroy )
Издан: ЦИТП Госстроя СССР (CITP, Gosstroy (USSR) 1988 г. )
Расположен в:Техническая документация Строительство Справочные документы Типовые строительные конструкции, изделия и узлы Общероссийский строительный каталог Строительные конструкции, изделия и узлы зданий и сооружений для всех видов строительства Инженерное оборудование Инженерное оборудование; изделия и узлы инженерного оборудования зданий и сооружений Электрооборудование и электросети Установка светильников, пускателей, выключателей, щитов
Серия 5.407-84Серия 5.407-84Серия 5.407-84Серия 5.407-84Серия 5.407-84Серия 5.407-84Серия 5.407-84Серия 5.407-84Серия 5.407-84Серия 5.407-84Серия 5.407-84Серия 5.407-84Серия 5.407-84Серия 5.407-84Серия 5.407-84Серия 5.407-84Серия 5.407-84Серия 5.407-84Серия 5.407-84Серия 5.407-84Серия 5.407-84Серия 5.407-84Серия 5.407-84Серия 5.407-84Серия 5.407-84Серия 5.407-84Серия 5.407-84Серия 5.407-84Серия 5.407-84Серия 5.407-84Серия 5.407-84Серия 5.407-84Серия 5.407-84Серия 5.407-84Серия 5.407-84Серия 5.407-84Серия 5.407-84Серия 5.407-84Серия 5.407-84Серия 5.407-84Серия 5.407-84Серия 5.407-84Серия 5.407-84Серия 5.407-84Серия 5.407-84Серия 5.407-84Серия 5.407-84Серия 5.407-84Серия 5.407-84Серия 5.407-84Серия 5.407-84Серия 5.407-84Серия 5.407-84Серия 5.407-84Серия 5.407-84Серия 5.407-84Серия 5.407-84Серия 5.407-84Серия 5.407-84Серия 5.407-84Серия 5.407-84Серия 5.407-84Серия 5.407-84Серия 5.407-84Серия 5.407-84

© 2013 Ёшкин Кот :-) Карта сайта