Информационная система
«Ёшкин Кот»

Скачать базу одним архивом
Скачать обновления
История создания базы
Карта сайта

Скачать Шифр М33/96с Повышение сейсмостойкости одноэтажных зданий промышленных предприятий (дополнение к выпускам 0-6 и 0-8 серии 0.00-2.96с). Примеры решений

Дата актуализации: 10.08.2017

Шифр М33/96с

Повышение сейсмостойкости одноэтажных зданий промышленных предприятий (дополнение к выпускам 0-6 и 0-8 серии 0.00-2.96с). Примеры решений

Обозначение: Шифр М33/96с
Обозначение англ: М33/96с
Статус:не определен законодательством
Название рус.:Повышение сейсмостойкости одноэтажных зданий промышленных предприятий (дополнение к выпускам 0-6 и 0-8 серии 0.00-2.96с). Примеры решений
Дата добавления в базу:01.09.2013
Дата актуализации:05.05.2017
Дата введения:01.01.1996
Оглавление:М33/96с-ПЗ Пояснительная записка
М33/96с-1 Каркас здания без опорных кранов с расчетной сейсмичностью 6 баллов
М33/96с-2 Каркас здания без опорных кранов с расчетной сейсмичностью с 6 до 7 баллов
М33/96с-3 Каркас здания без опорных кранов с расчетной сейсмичностью 7 баллов
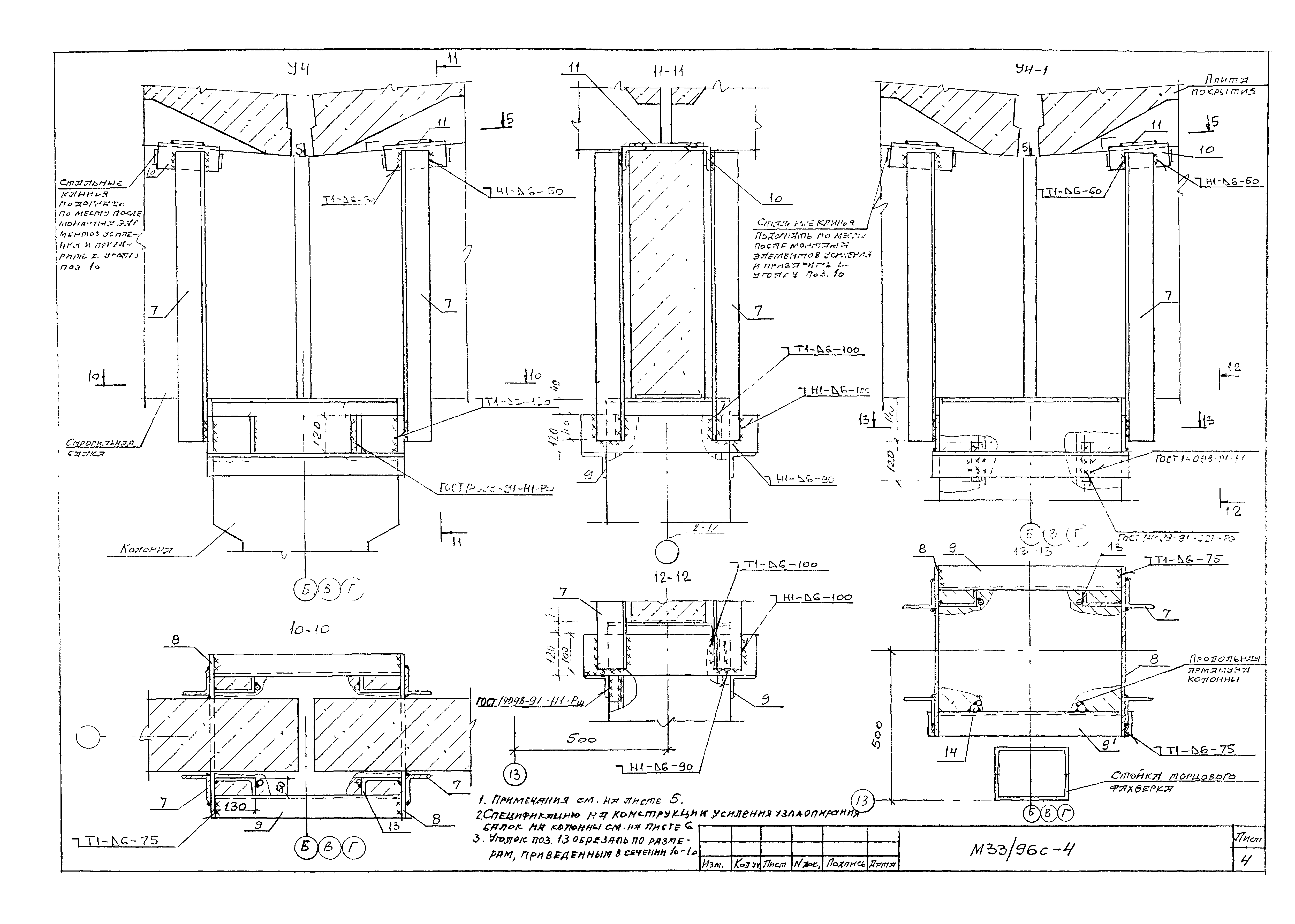
М33/96с-4 Каркас здания без опорных кранов при увеличении расчетной сейсмичности с 7 до 8 баллов
М33/96с-5 Каркас здания с опорными кранами с расчетной сейсмичностью 6 баллов
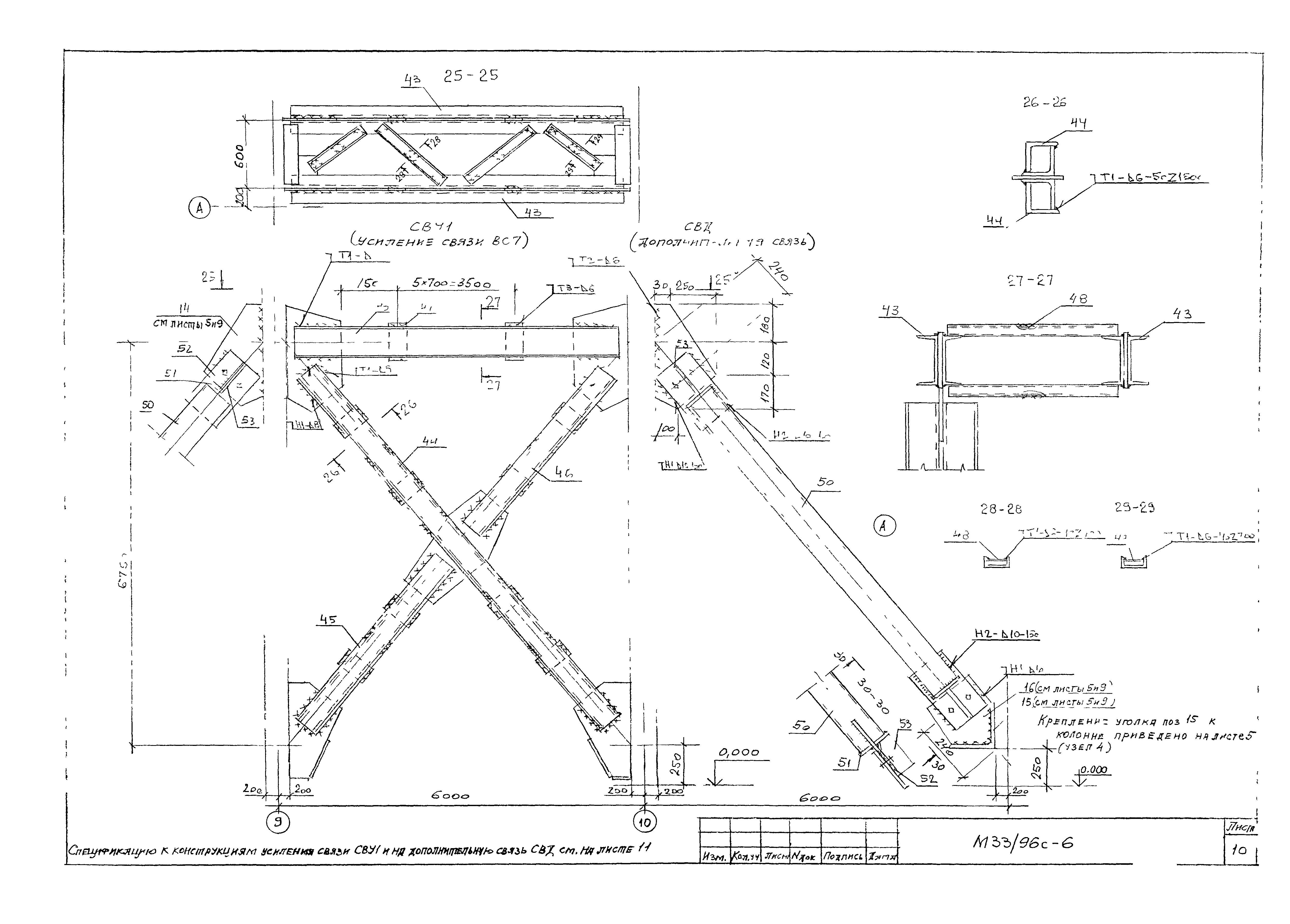
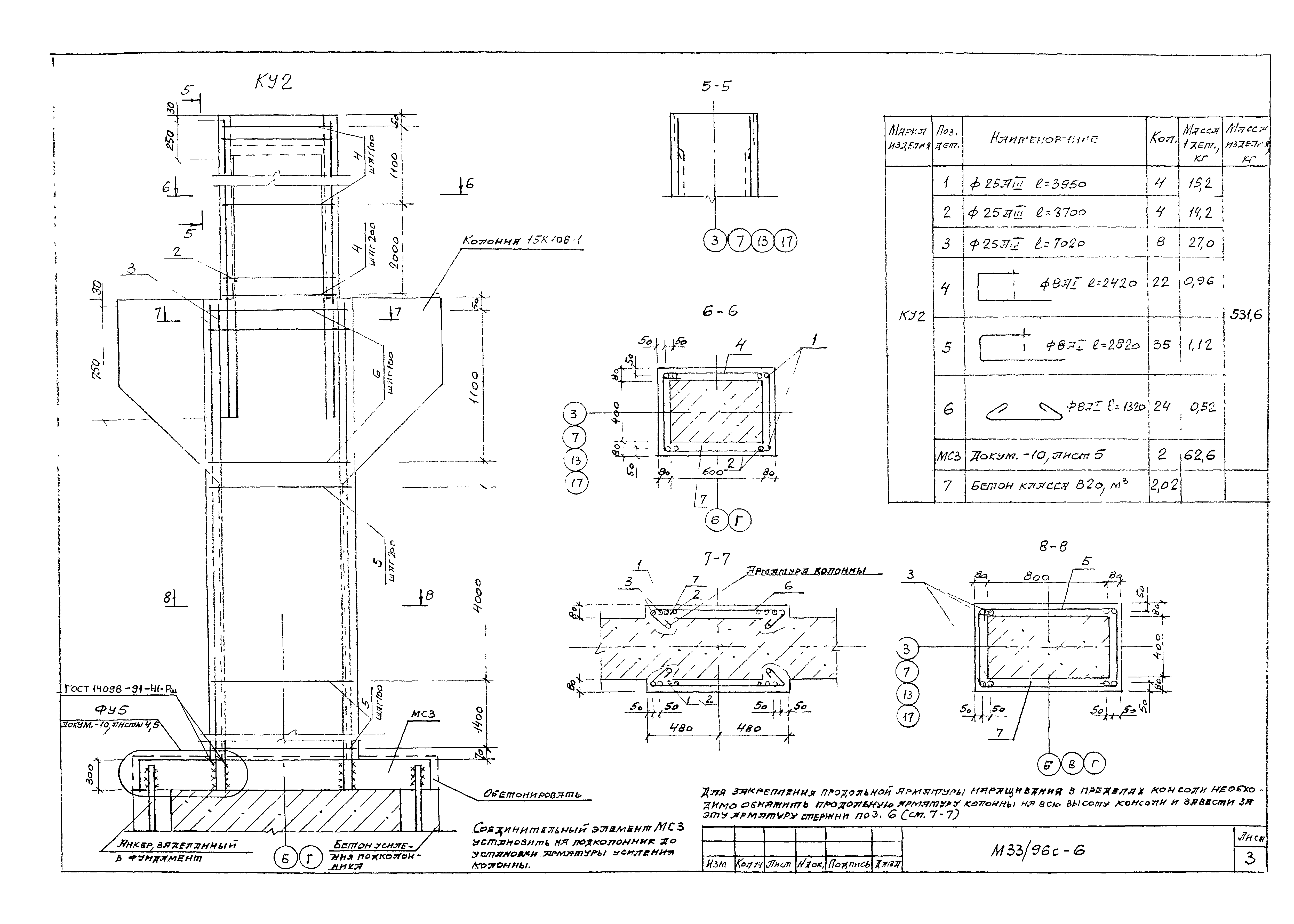
М33/96с-6 Каркас здания с опорными кранами при увеличении расчетной сейсмичности с 6 до 7 баллов
М33/96с-7 Фундаменты под колонны каркаса здания без опорных кранов при расчетной сейсмичности 7 баллов
М33/96с-8 Фундаменты под колонны каркаса здания без опорных кранов при увеличении расчетной сейсмичности с 7 до 8 баллов
М33/96с-9 Фундаменты под колонны каркаса здания с опорными кранами при расчетной сейсмичности 6 баллов
М33/96с-10 Фундаменты под колонны каркаса здания с опорными кранами при увеличении расчетной сейсмичности с 6 до 7 баллов
М33/96с-11 Примеры расчета усиленных фундаментов при увеличении расчетной сейсмичности с 7 до 8 баллов
Разработан: ЦНИИпромзданий
Утверждён:01.01.1996 ЦНИИ промзданий (TsNII promzdaniy )
Расположен в:Техническая документация Строительство Справочные документы Типовые строительные конструкции, изделия и узлы Общероссийский строительный каталог Строительные конструкции, изделия и узлы зданий и сооружений для всех видов строительства Конструкции, изделия и узлы зданий Общие материалы
Нормативные ссылки:
Шифр М33/96сШифр М33/96сШифр М33/96сШифр М33/96сШифр М33/96сШифр М33/96сШифр М33/96сШифр М33/96сШифр М33/96сШифр М33/96сШифр М33/96сШифр М33/96сШифр М33/96сШифр М33/96сШифр М33/96сШифр М33/96сШифр М33/96сШифр М33/96сШифр М33/96сШифр М33/96сШифр М33/96сШифр М33/96сШифр М33/96сШифр М33/96сШифр М33/96сШифр М33/96сШифр М33/96сШифр М33/96сШифр М33/96сШифр М33/96сШифр М33/96сШифр М33/96сШифр М33/96сШифр М33/96сШифр М33/96сШифр М33/96сШифр М33/96сШифр М33/96сШифр М33/96сШифр М33/96сШифр М33/96сШифр М33/96сШифр М33/96сШифр М33/96сШифр М33/96сШифр М33/96сШифр М33/96сШифр М33/96сШифр М33/96сШифр М33/96сШифр М33/96сШифр М33/96сШифр М33/96сШифр М33/96сШифр М33/96сШифр М33/96сШифр М33/96сШифр М33/96сШифр М33/96сШифр М33/96сШифр М33/96сШифр М33/96сШифр М33/96сШифр М33/96сШифр М33/96сШифр М33/96сШифр М33/96сШифр М33/96сШифр М33/96с

© 2013 Ёшкин Кот :-) Карта сайта