| ||||||||||||||||||||||||||||||||
Скачать Серия 3.006.1-2.87 Выпуск 2. Плиты. Опорные подушки. Рабочие чертежиДата актуализации: 10.08.2017
|
| Обозначение: | Серия 3.006.1-2.87 |
| Обозначение англ: | Series 3.006.1-2.87 |
| Статус: | не действует |
| Название рус.: | Выпуск 2. Плиты. Опорные подушки. Рабочие чертежи |
| Дата добавления в базу: | 01.09.2013 |
| Дата актуализации: | 05.05.2017 |
| Дата введения: | 01.03.1988 |
| Дата окончания срока действия: | 01.01.1993 |
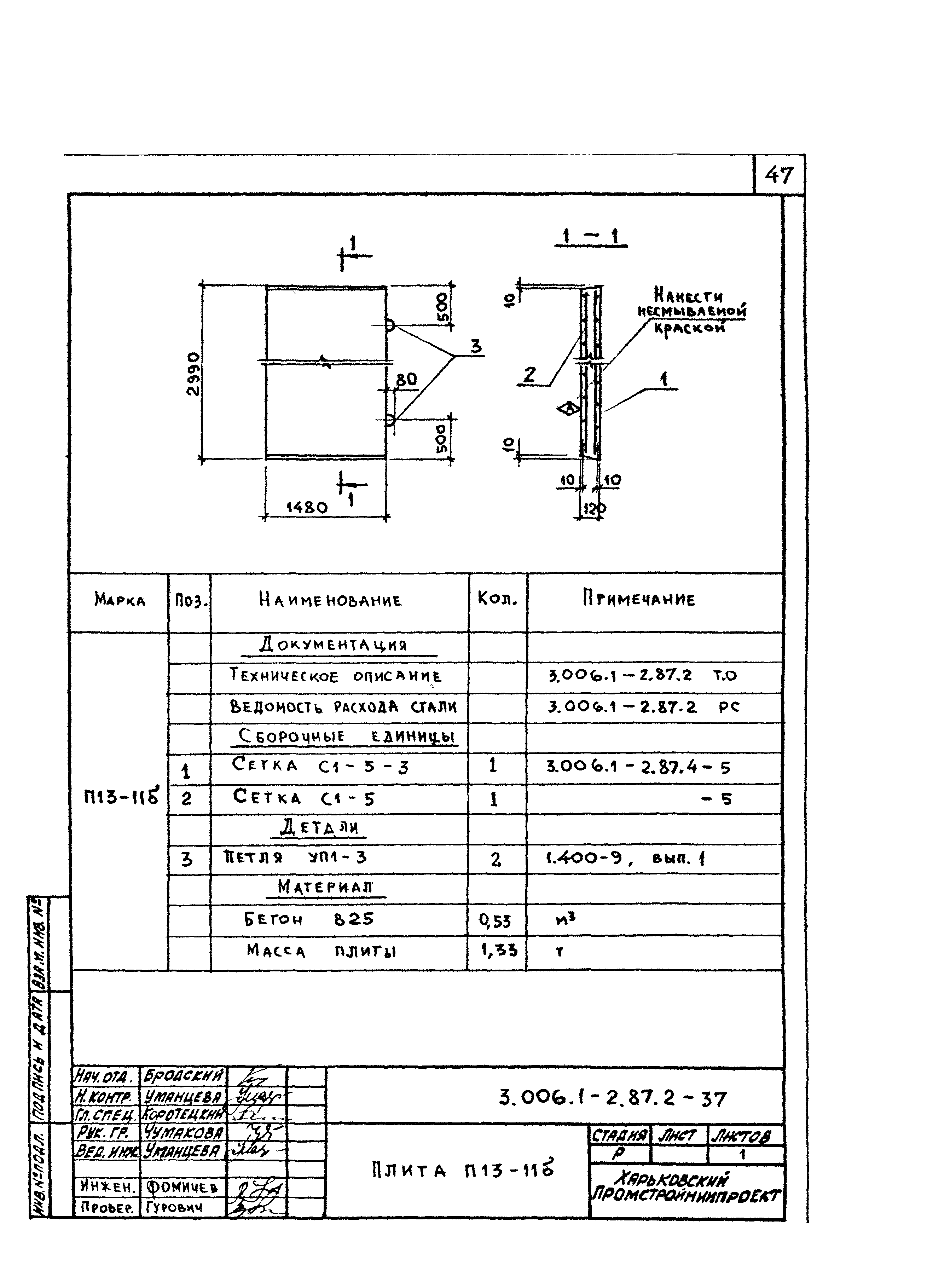
| Оглавление: | 3.006.1-2.87.2 ТО Техническое описание 3.006.1-2.87.2-1 Плита П1-5,П1-5а,П1-8,П1-8а,П1-15б 3.006.1-2.87.2-2 Плита П2-15,П2-15а,П2-15б 3.006.1-2.87.2-3 Плита П3-5,П1-5а,П3-8,П3-8а,П3-15б 3.006.1-2.87.2-4 Плита П4-15,П4-15а,П4-15б 3.006.1-2.87.2-5 Плита П5д-5,П5д-5а,П5д-8,П5д-8а,П5д-8б 3.006.1-2.87.2-6 Плита П6д-15,П6д-15а,П6д-15б 3.006.1-2.87.2-7 Плита П7д-3,П7д-3а,П7д-5,П5д-5а,П7д-5б 3.006.1-2.87.2-8 Плита П8д-8,П8д-8а,П8д-11,П8д-11а 3.006.1-2.87.2-9 Плита П9д-15,П9д-15а,П9д-15б 3.006.1-2.87.2-10 Плита П10д-3,П10д-3а,П10д-5,П10д-5а,П10д-5б 3.006.1-2.87.2-11 Плита П11д-8,П11д-8а 3.006.1-2.87.2-12 Плита П12д-12,П12д-12а,П12д-15,П12д-15а 3.006.1-2.87.2-13 Плита П13д-11б 3.006.1-2.87.2-14 Плита П14д-3,П14д-3а,П14д-3б 3.006.1-2.87.2-15 Плита П15д-5,П15д-5а,П15д-8,П15д-8а,П15д-8б 3.006.1-2.87.2-16 Плита П16д-15,П16д-15а 3.006.1-2.87.2-17 Плита П17д-3а,П17д-3б 3.006.1-2.87.2-18 Плита П18д-5,П18д-5а,П18д-8,П18д-8а,П18д-8б 3.006.1-2.87.2-19 Плита П19д-11,П19д-11а,П19д-15,П19д-15а 3.006.1-2.87.2-20 Плита П20д-3,П20д-3а,П20д-3б 3.006.1-2.87.2-21 Плита П21д-5,П21д-5а,П21д-5б,П2е1д-8,П21д-8а 3.006.1-2.87.2-22 Плита П22д-12,П22д-12а,П22д-15,П22д-15а 3.006.1-2.87.2-23 Плита П23д-3,П23д-3а,П23д-3б 3.006.1-2.87.2-24 Плита П24д-5,П24д-5а,П24д-5б,П24д-8,П24д-8а 3.006.1-2.87.2-25 Плита П25д-12,П25д-12а,П25д-15,П25д-15а 3.006.1-2.87.2-26 Плита П26д-3,П26д-3а,П26д-3б,П26д-5,П26д-5а 3.006.1-2.87.2-27 Плита П27д-8,П27д-8а 3.006.1-2.87.2-28 Плита П27д-12,П28д-12а,П28д-15,П28д-15а 3.006.1-2.87.2-29 Плита П5-5,П5-5а,П5-8,П5-8а,П5-8б 3.006.1-2.87.2-30 Плита П6-15,П6-15а,П6-15б 3.006.1-2.87.2-31 Плита П7-3,П7-3а,П7-5,П7-5а,П7-5б 3.006.1-2.87.2-32 Плита П8-8,П8-8а,П8-11,П8-11а 3.006.1-2.87.2-33 Плита П9-15,П9-15а,П9-15б 3.006.1-2.87.2-34 Плита П10-3,П10-3а,П10-5,П10-5а,П10-5б 3.006.1-2.87.2-35 Плита П11-8,П11-8а 3.006.1-2.87.2-36 Плита П12-12,П12-12а,П12-15,П12-15а 3.006.1-2.87.2-37 Плита П13-11б 3.006.1-2.87.2-38 Плита П14-3,П14-3а,П14-3б 3.006.1-2.87.2-39 Плита П15-5,П15-5а,П15-8,П15-8а,П15-8б 3.006.1-2.87.2-40 Плита П16-15,П16-15а 3.006.1-2.87.2-41 Плита П17-3,П17-3а,П17-3б 3.006.1-2.87.2-42 Плита П18-5,П18-5а,П18-8,П18-8а,П18-8б 3.006.1-2.87.2-43 Плита П19-11,П19-11а,П19-15,П19-15а 3.006.1-2.87.2-44 Плита П20-3,П20-3а,П20-3б 3.006.1-2.87.2-45 Плита П21-5,П21-5а,П21-5б,П21-8,П21-8а 3.006.1-2.87.2-46 Плита П22-12,П22-12а,П22-15,П22-15а 3.006.1-2.87.2-47 Плита П23-3,П23-3а,П23-3б 3.006.1-2.87.2-48 Плита П24-5,П24-5а,П24-5б,П24-8,П24-8а 3.006.1-2.87.2-49 Плита П25-12,П25-12а,П25-15,П25-15а 3.006.1-2.87.2-50 Плита П26-3,П26-3а,П26-3б,П26-5,П26-5а 3.006.1-2.87.2-51 Плита П27-8,П27-8а 3.006.1-2.87.2-52 Плита П28-12,П28-12а,П28-15,П28-15а 3.006.1-2.87.2-53 Плита ПТ1...ПТ5 3.006.1-2.87.2-54 Плита ПТ1д...ПТ5д 3.006.1-2.87.2-55 Плита ПП1...ПП3 3.006.1-2.87.2-56 Плита ПП4...ПП7 3.006.1-2.87.2-57 Плита ПП8...ПП10 3.006.1-2.87.2-58 Опорная подушка ОП1,ОП2 3.006.1-2.87.2-59 Опорная подушка ОП3,ОП4 3.006.1-2.87.2-60 Опорная подушка ОП5...ОП7 3.006.1-2.87.2-61 Опорная подушка ОП8,ОП9 3.006.1-2.87.2-62 Узлы 1...4 3.006.1-2.87.2-63 Расположение отверстий в плитах, бетонируемых в кассетах. Пример решения офактуренной плиты перекрытия 3.006.1-2.87.2-64 Ключ для подбора монтажных петель, дополнительных арматурных сеток и схемы их установки в плитах, бетонируемых в положении плашмя 3.006.1-2.87.2 РС Ведомость расхода стали на элемент |
| Разработан: | Харьковский Промстройниипроект |
| Утверждён: | 09.10.1987 Главпроект Госстроя СССР (79) |
| Расположен в: | |
| Заменяет собой: | |
| Чем заменён: |











































































































