| ||||||||||||||||||||||||||||||||
Скачать Серия 3.006.1-2.87 Выпуск 1. Часть 1. Лотки. Рабочие чертежиДата актуализации: 10.08.2017
|
| Обозначение: | Серия 3.006.1-2.87 |
| Обозначение англ: | Series 3.006.1-2.87 |
| Статус: | не действует |
| Название рус.: | Выпуск 1. Часть 1. Лотки. Рабочие чертежи |
| Дата добавления в базу: | 01.09.2013 |
| Дата актуализации: | 05.05.2017 |
| Дата введения: | 01.03.1988 |
| Дата окончания срока действия: | 01.01.1993 |
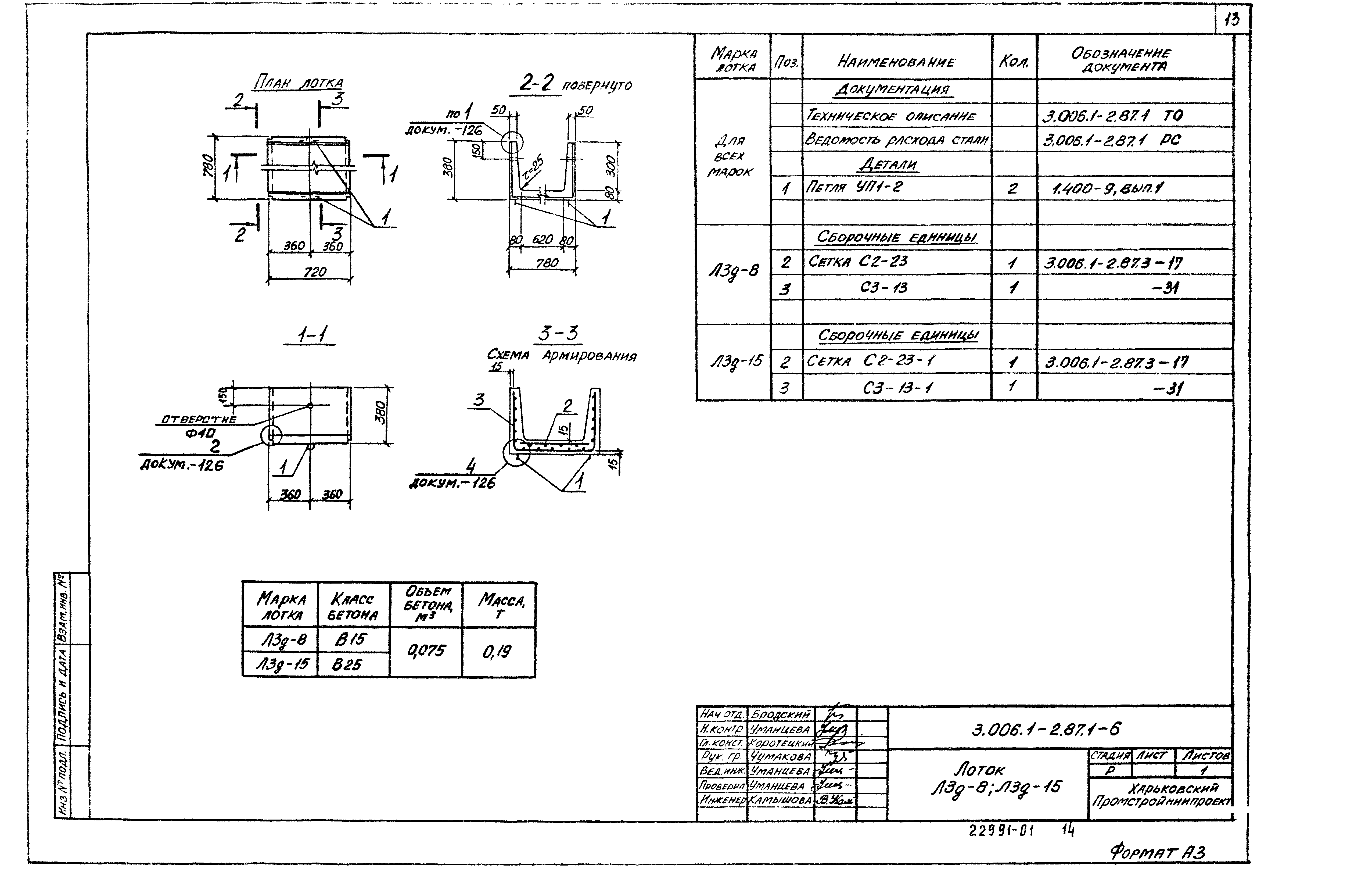
| Оглавление: | 3.006.1-2.87.1 ТО Техническое описание 3.006.1-2.87.1-1 Лоток Л1-8;Л1-15 3.006.1-2.87.1-2 Лоток Л1д-8;Л1д-15 3.006.1-2.87.1-3 Лоток Л2-8;Л2-15 3.006.1-2.87.1-4 Лоток Л2д-8;Л2д-15 3.006.1-2.87.1-5 Лоток Л3-8;Л3-15 3.006.1-2.87.1-6 Лоток Л3д-8;Л3д-15 3.006.1-2.87.1-7 Лоток Л4-8;Л4-15 3.006.1-2.87.1-8 Лоток Л4д-8;Л4д-15 3.006.1-2.87.1-9 Лоток Л5-8;Л5-15 3.006.1-2.87.1-10 Лоток Л5д-8;Л5д-15 3.006.1-2.87.1-11 Лоток Л6-5...Л6-15 3.006.1-2.87.1-12 Лоток Л6д-5...Л6д-15 3.006.1-2.87.1-13 Лоток Л7-5...Л7-15 3.006.1-2.87.1-14 Лоток Л7д-5...Л7д-15 3.006.1-2.87.1-15 Лоток Л8-5...Л8-15 3.006.1-2.87.1-16 Лоток Л8д-5...Л8д-15 3.006.1-2.87.1-17 Лоток Л9-5...Л9-15 3.006.1-2.87.1-18 Лоток Л9д-5...Л9д-15 3.006.1-2.87.1-19 Лоток Л10-3...Л10-15 3.006.1-2.87.1-20 Лоток Л10д-3...Л10д-15 3.006.1-2.87.1-21 Лоток Л11-3...Л11-15 3.006.1-2.87.1-22 Лоток Л11д-3...Л11д-15 3.006.1-2.87.1-23 Лоток Л12-3...Л12-15 3.006.1-2.87.1-24 Лоток Л12д-3...Л12д-15 3.006.1-2.87.1-25 Лоток Л13-3...Л13-15 3.006.1-2.87.1-26 Лоток Л13д-3...Л13д-15 3.006.1-2.87.1-27 Лоток Л14-3...Л14-15 3.006.1-2.87.1-28 Лоток Л14д-3...Л14д-15 3.006.1-2.87.1-29 Лоток Л15-3...Л15-15,Л15-3а...Л15-15а 3.006.1-2.87.1-30 Лоток Л15д-3...Л15д-15 3.006.1-2.87.1-31 Лоток Л16-3...Л16-15,Л16-3а...Л16-15а 3.006.1-2.87.1-32 Лоток Л16д-3...Л16д-15 3.006.1-2.87.1-33 Лоток Л17-3...Л17-15,Л17-3а...Л17-15а 3.006.1-2.87.1-34 Лоток Л17д-3...Л17д-15 3.006.1-2.87.1-35 Лоток Л18-3...Л18-15,Л18-3а...Л18-15а 3.006.1-2.87.1-36 Лоток Л18д-3...Л18д-15 3.006.1-2.87.1-37 Лоток Л19-3...Л19-15,Л19-3а...Л19-15а 3.006.1-2.87.1-38 Лоток Л19д-3...Л19д-15 3.006.1-2.87.1-39 Лоток Л20-3...Л20-15,Л20-3а...Л20-15а 3.006.1-2.87.1-40 Лоток Л20д-3...Л20д-15 3.006.1-2.87.1-41 Лоток Л21-3...Л21-15,Л21-3а...Л21-15а 3.006.1-2.87.1-42 Лоток Л21д-3...Л21д-15 3.006.1-2.87.1-43 Лоток Л22-3...Л22-15,Л22-3а...Л22-15а 3.006.1-2.87.1-44 Лоток Л22д-3...Л22д-15 |
| Разработан: | Харьковский Промстройниипроект |
| Утверждён: | 09.10.1987 Главпроект Госстроя СССР (79) |
| Расположен в: | |
| Заменяет собой: | |
| Чем заменён: |





































































