Информационная система
«Ёшкин Кот»

Скачать базу одним архивом
Скачать обновления
История создания базы
Карта сайта

Скачать Серия 3.016.3-7 Выпуск 0. Материалы для проектирования

Дата актуализации: 10.08.2017

Серия 3.016.3-7

Выпуск 0. Материалы для проектирования

Обозначение: Серия 3.016.3-7
Обозначение англ: Series 3.016.3-7
Статус:не определен законодательством
Название рус.:Выпуск 0. Материалы для проектирования
Дата добавления в базу:01.09.2013
Дата актуализации:05.05.2017
Дата введения:01.06.1983
Оглавление:3.016.3-7.0-КМ Л.1.1-1.4 Пояснительная записка
3.016.3-7.0-КМ Л.2 Схемы расположения пролетных строений галерей
3.016.3-7.0-КМ Л.3 Габаритная схема и таблица габаритов
3.016.3-7.0-КМ Л.4 Пролетное строение галереи фасад. Пролетный разрез
3.016.3-7.0-КМ Л.5 Схемы примыкания галереи к зданиям
3.016.3-7.0-КМ Л.6 Поперечный разрез галереи
3.016.3-7.0-КМ Л.7 Схемы расположения листов обшивки секций галереи
3.016.3-7.0-КМ Л.8 Схемы расположения листов обшивки консолей галерей
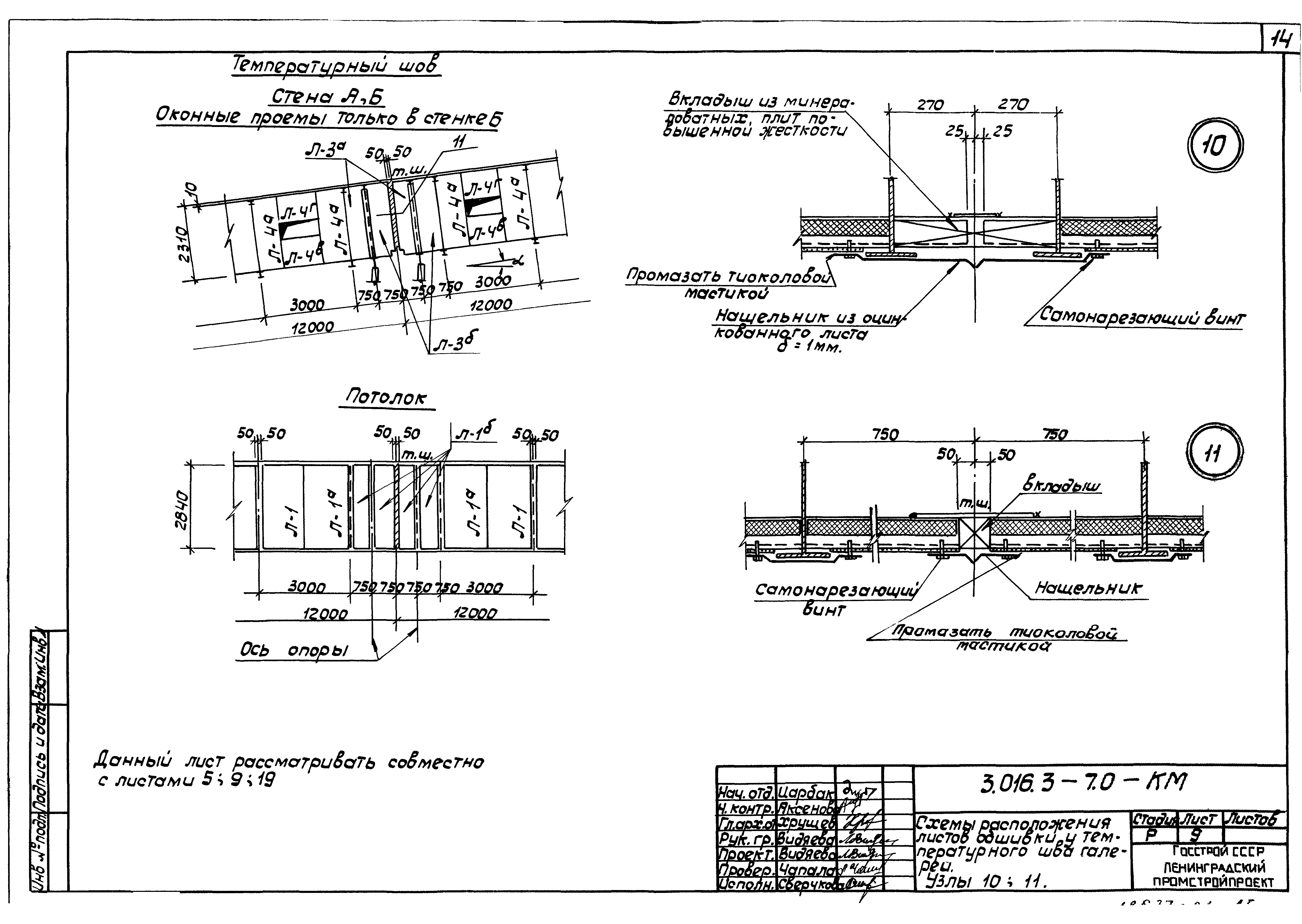
3.016.3-7.0-КМ Л.9 Схемы расположения листов обшивки у температурного шва галереи. Узлы 10,11
3.016.3-7.0-КМ Л.10 Схемы расположения листов подшивки перекрытия галерей
3.016.3-7.0-КМ Л.11 Узлы 1-7
3.016.3-7.0-КМ Л.12 Узлы 12-14
3.016.3-7.0-КМ Л.13 Узлы 8,9,15,16
3.016.3-7.0-КМ Л.14 Узлы 17,18
3.016.3-7.0-КМ Л.15 Узлы 19,20
3.016.3-7.0-КМ Л.16 Деталь утепления стены и пола у температурного шва галереи
3.016.3-7.0-КМ Л.17 Деталь утепления стены и пола у опоры галереи
3.016.3-7.0-КМ Л.18 Спецификация стекла и резины на 1 окно. Ведомость расхода материалов
3.016.3-7.0-КМ Л.19 Спецификация асбестоцементных плоских листов внутренней обшивки галереи
3.016.3-7.0-КМ Л.20 Ведомость расхода стали и изоляционных материалов галереи
Разработан: Ленинградский Промстройпроект
Утверждён:28.12.1981 Госстрой СССР (Государственный комитет Совета Министров СССР по делам строительства) (USSR Gosstroy 90)
Расположен в:Техническая документация Строительство Справочные документы Типовые строительные конструкции, изделия и узлы Общероссийский строительный каталог Строительные конструкции, изделия и узлы зданий и сооружений для всех видов строительства Конструкции и изделия сооружений и оборудования зданий Надземные сооружения Транспортерные галереи, рампы и переходы
Серия 3.016.3-7Серия 3.016.3-7Серия 3.016.3-7Серия 3.016.3-7Серия 3.016.3-7Серия 3.016.3-7Серия 3.016.3-7Серия 3.016.3-7Серия 3.016.3-7Серия 3.016.3-7Серия 3.016.3-7Серия 3.016.3-7Серия 3.016.3-7Серия 3.016.3-7Серия 3.016.3-7Серия 3.016.3-7Серия 3.016.3-7Серия 3.016.3-7Серия 3.016.3-7Серия 3.016.3-7Серия 3.016.3-7Серия 3.016.3-7Серия 3.016.3-7Серия 3.016.3-7Серия 3.016.3-7

© 2013 Ёшкин Кот :-) Карта сайта