Информационная система
«Ёшкин Кот»

Скачать базу одним архивом
Скачать обновления
История создания базы
Карта сайта

Скачать Серия 3.013.9-1 Выпуск 0. Материалы для проектирования

Дата актуализации: 10.08.2017

Серия 3.013.9-1

Выпуск 0. Материалы для проектирования

Обозначение: Серия 3.013.9-1
Обозначение англ: Series 3.013.9-1
Статус:не определен законодательством
Название рус.:Выпуск 0. Материалы для проектирования
Дата добавления в базу:01.09.2013
Дата актуализации:05.05.2017
Дата введения:01.08.1989
Оглавление:3.013.9-1.0-ПЗ Пояснительная записка
3.013.9-1.0-1НИ Номенклатура сборных железобетонных колонн эстакад
3.013.9-1.0-2НИ Номенклатура стальных конструкций
3.013.9-1.0-1 Шифры эстакад под краны общего назначения
3.013.9-1.0-2 Шифры эстакад под специальные краны
3.013.9-1.0-3 Ключ для подбора элементов эстакад со стальными подкрановыми балками
3.013.9-1.0-4 Ключ для подбора элементов эстакад с железобетонными подкрановыми балками
3.013.9-1.0-5 Схема расположения конструкций эстакад
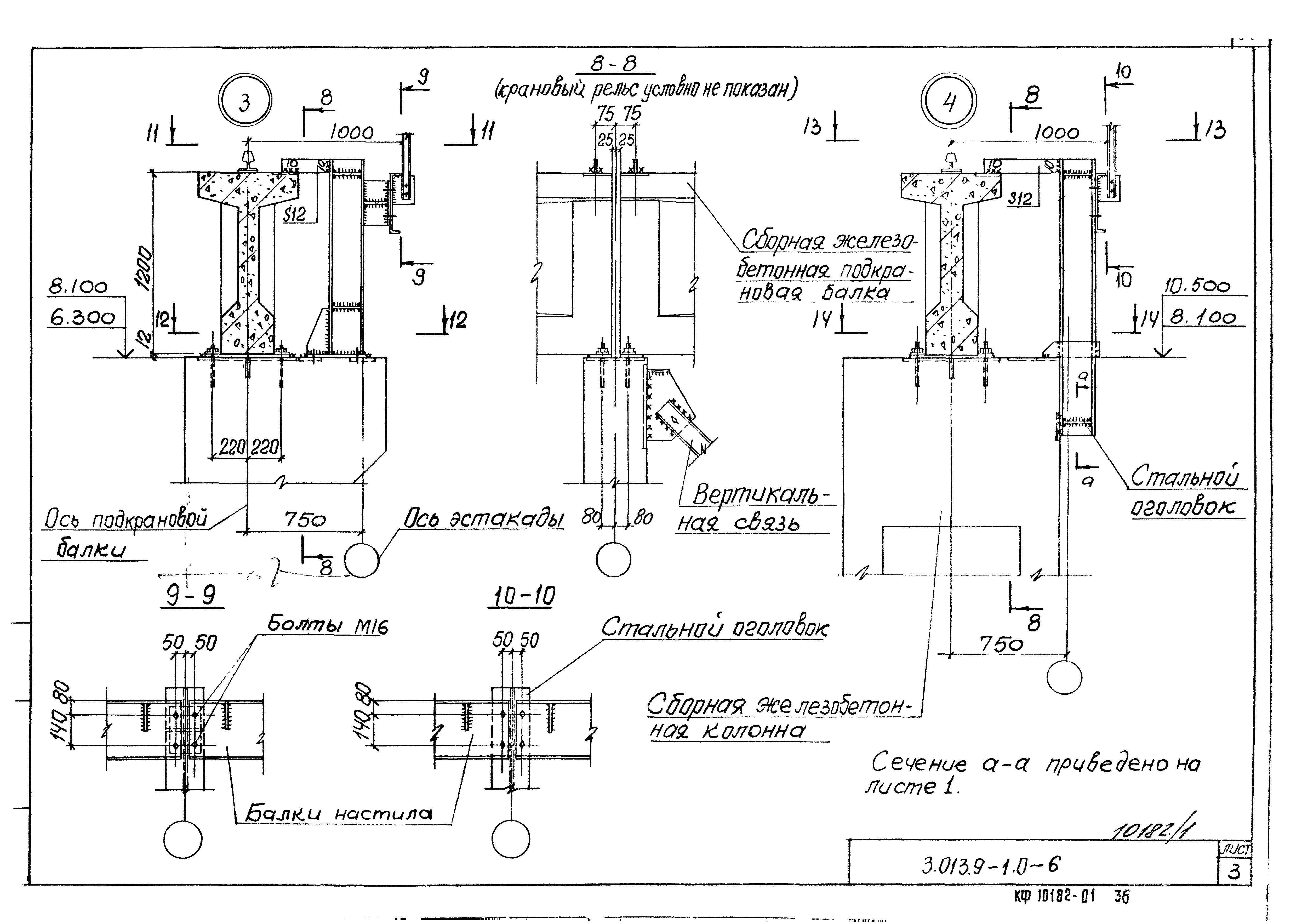
3.013.9-1.0-6 Узлы 1...18
3.013.9-1.0-7 Ходовой настил по крайнему ряду эстакады
3.013.9-1.0-8 Ходовой настил по среднему ряду эстакады
3.013.9-1.0-9 Нагрузки на фундаменты крайних колонн поперек эстакады
3.013.9-1.0-10 Нагрузки на фундаменты средних колонн поперек эстакады
3.013.9-1.0-11 Нагрузки на фундаменты связевых колонн вдоль эстакады
3.013.9-1.0-12 Нагрузки на фундаменты колонн вдоль эстакады
3.013.9-1.0-13 Крановые и ветровые нагрузки на колонны
Разработан: НИИСК
Киевский Промстройпроект
НИИЖБ
Утверждён:26.04.1988 Госстрой СССР (Государственный комитет Совета Министров СССР по делам строительства) (USSR Gosstroy )
Издан: ЦИТП Госстроя СССР (CITP, Gosstroy (USSR) 1990 г. )
Расположен в:Техническая документация Строительство Справочные документы Типовые строительные конструкции, изделия и узлы Общероссийский строительный каталог Строительные конструкции, изделия и узлы зданий и сооружений для всех видов строительства Конструкции и изделия сооружений и оборудования зданий Надземные сооружения Крановые эстакады
Заменяет собой:
Серия 3.013.9-1Серия 3.013.9-1Серия 3.013.9-1Серия 3.013.9-1Серия 3.013.9-1Серия 3.013.9-1Серия 3.013.9-1Серия 3.013.9-1Серия 3.013.9-1Серия 3.013.9-1Серия 3.013.9-1Серия 3.013.9-1Серия 3.013.9-1Серия 3.013.9-1Серия 3.013.9-1Серия 3.013.9-1Серия 3.013.9-1Серия 3.013.9-1Серия 3.013.9-1Серия 3.013.9-1Серия 3.013.9-1Серия 3.013.9-1Серия 3.013.9-1Серия 3.013.9-1Серия 3.013.9-1Серия 3.013.9-1Серия 3.013.9-1Серия 3.013.9-1Серия 3.013.9-1Серия 3.013.9-1Серия 3.013.9-1Серия 3.013.9-1Серия 3.013.9-1Серия 3.013.9-1Серия 3.013.9-1Серия 3.013.9-1Серия 3.013.9-1Серия 3.013.9-1Серия 3.013.9-1Серия 3.013.9-1Серия 3.013.9-1Серия 3.013.9-1Серия 3.013.9-1Серия 3.013.9-1Серия 3.013.9-1Серия 3.013.9-1Серия 3.013.9-1Серия 3.013.9-1Серия 3.013.9-1Серия 3.013.9-1Серия 3.013.9-1Серия 3.013.9-1Серия 3.013.9-1Серия 3.013.9-1Серия 3.013.9-1Серия 3.013.9-1Серия 3.013.9-1Серия 3.013.9-1Серия 3.013.9-1Серия 3.013.9-1Серия 3.013.9-1Серия 3.013.9-1Серия 3.013.9-1Серия 3.013.9-1Серия 3.013.9-1Серия 3.013.9-1Серия 3.013.9-1Серия 3.013.9-1Серия 3.013.9-1Серия 3.013.9-1Серия 3.013.9-1Серия 3.013.9-1Серия 3.013.9-1Серия 3.013.9-1Серия 3.013.9-1

© 2013 Ёшкин Кот :-) Карта сайта