Информационная система
«Ёшкин Кот»

Скачать базу одним архивом
Скачать обновления
История создания базы
Карта сайта

Скачать Серия 1.100.1-7 Выпуск 8-1. Изделия сборные железобетонные и бетонные для покрытий и помещений холодного чердака. Рабочие чертежи

Дата актуализации: 10.08.2017

Серия 1.100.1-7

Выпуск 8-1. Изделия сборные железобетонные и бетонные для покрытий и помещений холодного чердака. Рабочие чертежи

Обозначение: Серия 1.100.1-7
Обозначение англ: Series 1.100.1-7
Статус:действует
Название рус.:Выпуск 8-1. Изделия сборные железобетонные и бетонные для покрытий и помещений холодного чердака. Рабочие чертежи
Дата добавления в базу:01.09.2013
Дата актуализации:05.05.2017
Дата введения:30.04.1990
Оглавление:1.100.1-7.8-1 00.00.00 Содержание
1.100.1-7.8-1 00.00.00ТО Техническое описание
1.100.1-7.8-1 00.00.00НИ Номенклатура изделий
1.100.1-7.8-1 01.00.00 Панель кровельная ПК45.7.5-14АIV
1.100.1-7.8-1 01.00.00 СБ Панель кровельная ПК45.7.5-14АIV. Сборочный чертеж
1.100.1-7.8-1 02.00.00 Панель кровельная ПК45.15-14АIV-К
1.100.1-7.8-1 02.00.00 СБ Панель кровельная ПК45.15-14АIV-К. Сборочный чертеж
1.100.1-7.8-1 03.00.00 Панель кровельная ПК45.25-14АIV
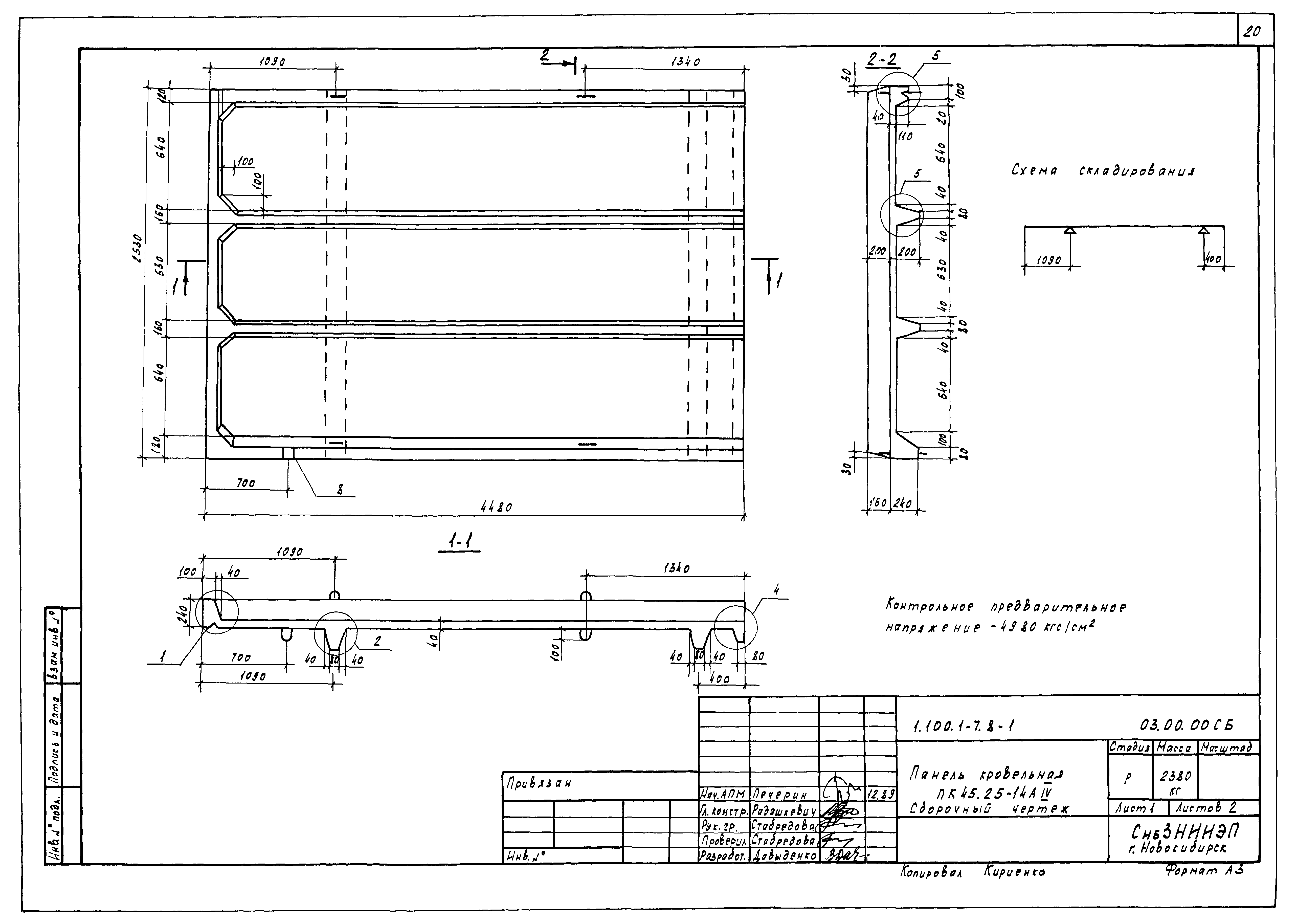
1.100.1-7.8-1 03.00.00 СБ Панель кровельная ПК45.25-14АIV. Сборочный чертеж
1.100.1-7.8-1 04.00.00 Панель кровельная ПК45.30-14АIV-Л,ПК45.30-14АIV
1.100.1-7.8-1 04.00.00 СБ Панель кровельная ПК45.30-14АIV-Л,ПК45.30-14АIV. Сборочный чертеж
1.100.1-7.8-1 05.00.00 Панель кровельная ПК60.7.5-14АIV
1.100.1-7.8-1 05.00.00 СБ Панель кровельная ПК60.7.5-14АIV. Сборочный чертеж
1.100.1-7.8-1 06.00.00 Панель кровельная ПК60.15-14АIV-К,ПК60.15-14АIV
1.100.1-7.8-1 06.00.00 СБ Панель кровельная ПК60.15-14АIV-К,ПК60.15-14АIV. Сборочный чертеж
1.100.1-7.8-1 07.00.00 Панель кровельная ПК60.30-14АIV-К,ПК60.30-14АIV
1.100.1-7.8-1 07.00.00 СБ Панель кровельная ПК60.30-14АIV-К,ПК60.30-14АIV. Сборочный чертеж
1.100.1-7.8-1 08.00.00 Панель кровельная ПК60.30-14АIV-К-1,ПК60.30-14АIV-1
1.100.1-7.8-1 08.00.00 СБ Панель кровельная ПК60.30-14АIV-К-1,ПК60.30-14АIV-1. Сборочный чертеж
1.100.1-7.8-1 00.00.00Д1 Узлы опалубки
1.100.1-7.8-1 00.00.00Д2 Узлы армирования
1.100.1-7.8-1 09.00.00 Лоток водосборный ЛВ.30.15
1.100.1-7.8-1 10.00.00 Лоток водосборный ЛВ.45.15-14АIV
1.100.1-7.8-1 11.00.00 Лоток водосборный ЛВ.60.15-16АIV
1.100.1-7.8-1 12.00.00 Лоток водосборный ЛВ.105.15-16АIV
1.100.1-7.8-1 12.00.00 СБ Лоток водосборный ЛВ.105.15-16АIV. Сборочный чертеж
1.100.1-7.8-1 00.00.00Д3 Лоток водосборный. Узлы опалубки 1...5
1.100.1-7.8-1 13.00.00 Плита карнизная КП16.5
1.100.1-7.8-1 14.00.00 Балка подкладочная ПБ15.15.20-Л
1.100.1-7.8-1 15.00.00 Короб вентиляционный ВК36.28.150-Л
1.100.1-7.8-1 16.00.00 Шахта вентиляционная ВШ10.9.100-Л
1.100.1-7.8-1 17.00.00 Шахта вентиляционная ВШ14.22.140-Л
1.100.1-7.8-1 18.00.00 Плита вентиляционной шахты ПВ15.15.6
1.100.1-7.8-1 00.00.01 Каркас плоский КР1...КР5
1.100.1-7.8-1 00.00.02 Каркас плоский КР6...КР10
1.100.1-7.8-1 00.00.03 Каркас плоский КР11...КР16
1.100.1-7.8-1 00.00.04 Каркас плоский КР17...КР21
1.100.1-7.8-1 00.00.05 Каркас плоский КР22...КР26
1.100.1-7.8-1 00.00.06 Каркас плоский КР27...КР29
1.100.1-7.8-1 00.00.07 Сетка С1...С6
1.100.1-7.8-1 00.00.08 Сетка С7...С11
1.100.1-7.8-1 00.00.09 Сетка С12...С15
1.100.1-7.8-1 00.00.10 Сетка С16...С20
1.100.1-7.8-1 00.00.11 Сетка С21...С26
1.100.1-7.8-1 00.00.12 Сетка С27,С28
1.100.1-7.8-1 00.00.13 Деталь закладная М1
1.100.1-7.8-1 00.00.14 Деталь закладная М2
1.100.1-7.8-1 00.00.15 Деталь закладная М3
1.100.1-7.8-1 00.00.16 Деталь закладная М4
1.100.1-7.8-1 00.00.17 Деталь закладная М5
1.100.1-7.8-1 00.00.18 Петли монтажные П1...П7
1.100.1-7.8-1 00.00.18 СБ Петли монтажные П1...П7. Сборочный чертеж
1.100.1-7.8-1 00.00.19 Петли монтажные П8...П10
1.100.1-7.8-1 00.00.19 СБ Петли монтажные П8...П10. Сборочный чертеж
1.100.1-7.8-1 00.00.00РС Ведомость расхода стали
Разработан: СибЗНИИЭП Госгражданстроя
Утверждён:23.03.1990 Госкомархитектура (46)
Расположен в:Техническая документация Строительство Справочные документы Типовые строительные конструкции, изделия и узлы Общероссийский строительный каталог Строительные конструкции, изделия и узлы зданий и сооружений для всех видов строительства Конструкции, изделия и узлы зданий Несущие конструкции двухэтажных и многоэтажных зданий Крупнопанельные и монолитные здания. Узлы
Серия 1.100.1-7Серия 1.100.1-7Серия 1.100.1-7Серия 1.100.1-7Серия 1.100.1-7Серия 1.100.1-7Серия 1.100.1-7Серия 1.100.1-7Серия 1.100.1-7Серия 1.100.1-7Серия 1.100.1-7Серия 1.100.1-7Серия 1.100.1-7Серия 1.100.1-7Серия 1.100.1-7Серия 1.100.1-7Серия 1.100.1-7Серия 1.100.1-7Серия 1.100.1-7Серия 1.100.1-7Серия 1.100.1-7Серия 1.100.1-7Серия 1.100.1-7Серия 1.100.1-7Серия 1.100.1-7Серия 1.100.1-7Серия 1.100.1-7Серия 1.100.1-7Серия 1.100.1-7Серия 1.100.1-7Серия 1.100.1-7Серия 1.100.1-7Серия 1.100.1-7Серия 1.100.1-7Серия 1.100.1-7Серия 1.100.1-7Серия 1.100.1-7Серия 1.100.1-7Серия 1.100.1-7Серия 1.100.1-7Серия 1.100.1-7Серия 1.100.1-7Серия 1.100.1-7Серия 1.100.1-7Серия 1.100.1-7Серия 1.100.1-7Серия 1.100.1-7Серия 1.100.1-7Серия 1.100.1-7Серия 1.100.1-7Серия 1.100.1-7Серия 1.100.1-7Серия 1.100.1-7Серия 1.100.1-7Серия 1.100.1-7Серия 1.100.1-7Серия 1.100.1-7Серия 1.100.1-7Серия 1.100.1-7Серия 1.100.1-7Серия 1.100.1-7Серия 1.100.1-7Серия 1.100.1-7Серия 1.100.1-7Серия 1.100.1-7Серия 1.100.1-7Серия 1.100.1-7Серия 1.100.1-7Серия 1.100.1-7Серия 1.100.1-7Серия 1.100.1-7Серия 1.100.1-7

© 2013 Ёшкин Кот :-) Карта сайта