Информационная система
«Ёшкин Кот»

Скачать базу одним архивом
Скачать обновления
История создания базы
Карта сайта

Скачать Серия 1.100.1-7 Выпуск 3-6. Панели опорные и парапетные трехслойные из тяжелого бетона с эффективным утеплителем для трехслойных наружных стен толщиной 400 мм (теплый чердак). Рабочие чертежи

Дата актуализации: 10.08.2017

Серия 1.100.1-7

Выпуск 3-6. Панели опорные и парапетные трехслойные из тяжелого бетона с эффективным утеплителем для трехслойных наружных стен толщиной 400 мм (теплый чердак). Рабочие чертежи

Обозначение: Серия 1.100.1-7
Обозначение англ: Series 1.100.1-7
Статус:действует
Название рус.:Выпуск 3-6. Панели опорные и парапетные трехслойные из тяжелого бетона с эффективным утеплителем для трехслойных наружных стен толщиной 400 мм (теплый чердак). Рабочие чертежи
Дата добавления в базу:01.09.2013
Дата актуализации:05.05.2017
Дата введения:30.04.1990
Оглавление:1.100.1-7.3-6 00.00.00 Содержание
1.100.1-7.3-6 00.00.00ТО Техническое описание
1.100.1-7.3-6 00.00.00НИ Номенклатура изделий
1.100.1-7.3-6 01.00.00 Панель опорная 3Н412.20.40-200т
1.100.1-7.3-6 02.00.00 Панель опорная 3Н427.20.40-200т
1.100.1-7.3-6 03.00.00 Панель опорная 3Н430.20.40-200т
1.100.1-7.3-6 04.00.00 Панель опорная 3Н430.19.40-200т
1.100.1-7.3-6 05.00.00 Панель опорная 3Н445.20.40-200т
1.100.1-7.3-6 06.00.00 Панель опорная 3Н445.19.40-200т
1.100.1-7.3-6 07.00.00 Панель опорная 1Н443.19.40-150т
1.100.1-7.3-6 08.00.00 Панель парапетная 3Н448.25.40-200т
1.100.1-7.3-6 09.00.00 Панель парапетная 3Н448.24.40-200т
1.100.1-7.3-6 10.00.00 Панель парапетная 3Н463.25.40-200т
1.100.1-7.3-6 10.00.00 СБ Панель парапетная 3Н463.25.40-200т. Сборочный чертеж
1.100.1-7.3-6 11.00.00 Панель парапетная 3Н463.24.40-200т
1.100.1-7.3-6 11.00.00 СБ Панель парапетная 3Н463.24.40-200т. Сборочный чертеж
1.100.1-7.3-6 12.00.00 Панель парапетная 3Н415.25.40-200т,3Н415.25.40-200т-1
1.100.1-7.3-6 13.00.00 Панель парапетная 3Н415.24.40-200т,3Н415.24.40-200т-1
1.100.1-7.3-6 14.00.00 Панель парапетная 3Н445.24.40-200т
1.100.1-7.3-6 15.00.00 Панель парапетная 3Н438.24.40-200т
1.100.1-7.3-6 16.00.00 Плиты утеплителя
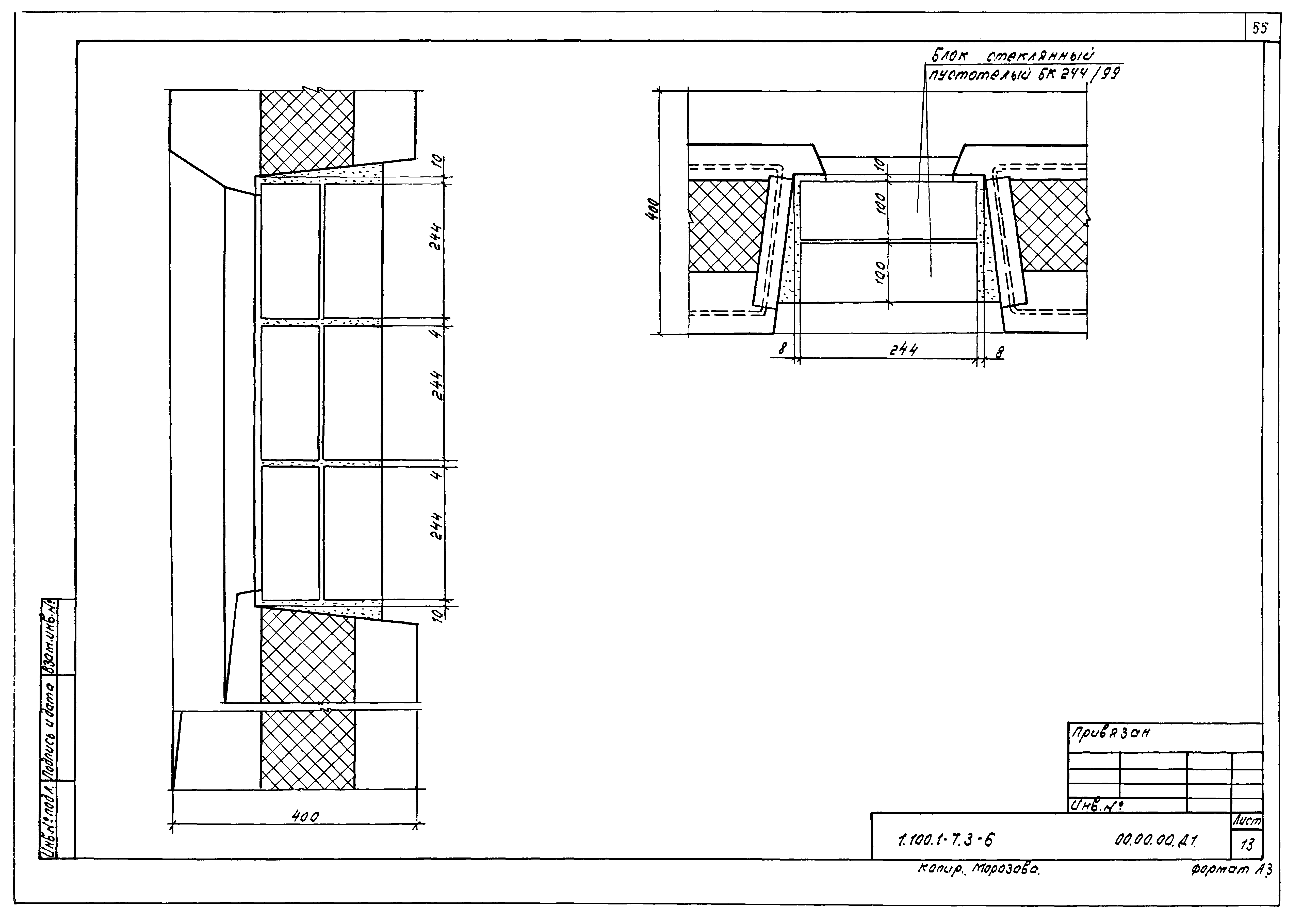
1.100.1-7.3-6 00.00.00Д1 Узлы опалубки
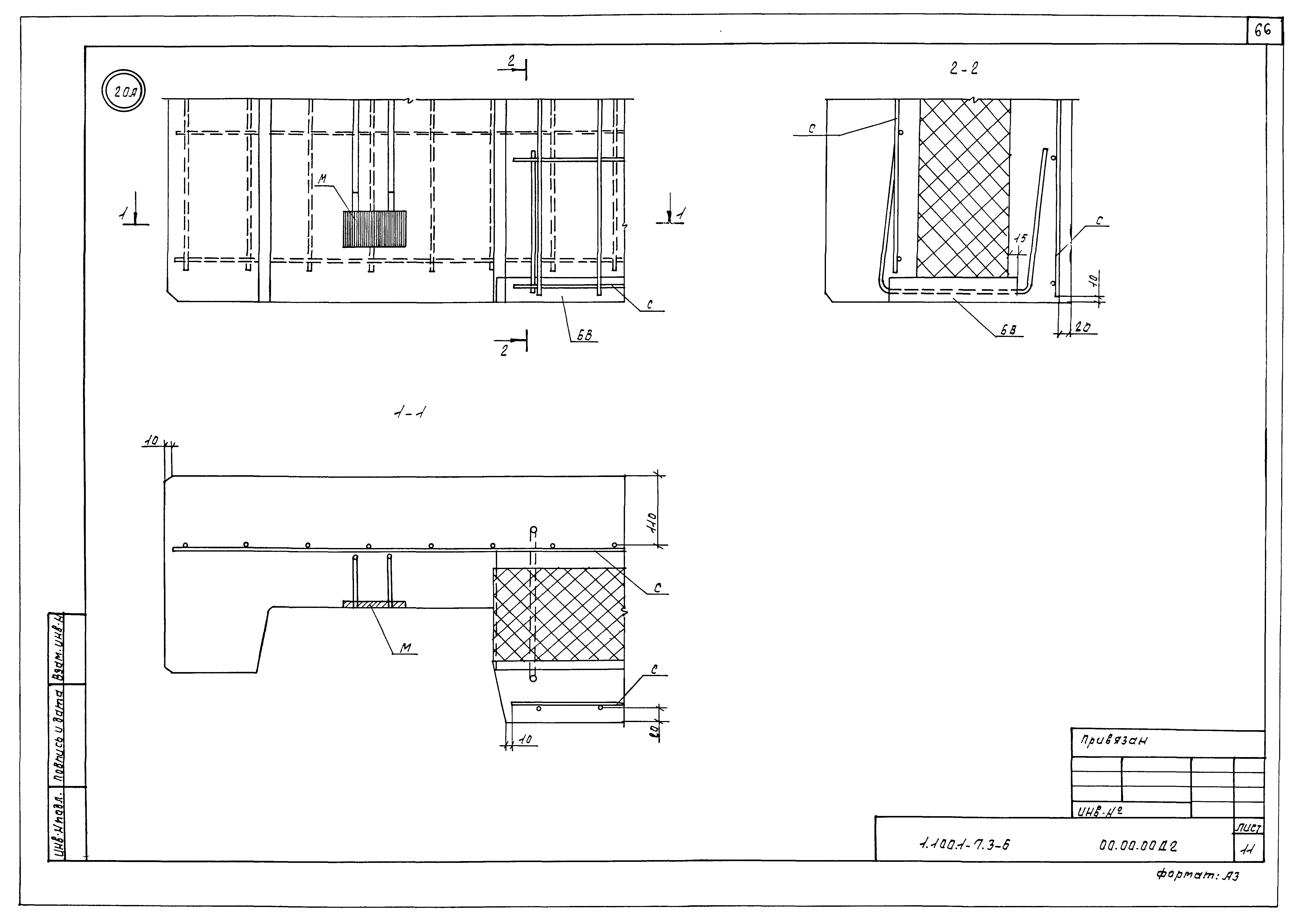
1.100.1-7.3-6 00.00.00Д2 Узлы армирования
1.100.1-7.3-6 00.00.01 Сетка арматурная С1...С6
1.100.1-7.3-6 00.00.02 Сетка арматурная С7,С9,С14,С16,С11
1.100.1-7.3-6 00.00.03 Сетка арматурная С8,С10,С15
1.100.1-7.3-6 00.00.04 Сетка арматурная С12,С12л,С17
1.100.1-7.3-6 00.00.05 Сетка арматурная С13,С18. Каркас КР7
1.100.1-7.3-6 00.00.06 Каркасы КР1...КР6
1.100.1-7.3-6 00.00.07 Каркасы КР8...КР11
1.100.1-7.3-6 00.00.08 Шпилька Ш1,Ш2
1.100.1-7.3-6 00.00.09 Бетонный вкладыш БВ1
1.100.1-7.3-6 00.00.10 Монтажные петли П1...П5
1.100.1-7.3-6 00.00.10 СБ Монтажные петли П1...П5. Сборочный чертеж
1.100.1-7.3-6 00.00.11 Изделие закладное М1
1.100.1-7.3-6 00.00.12 Изделие закладное М2
1.100.1-7.3-6 00.00.13 Анкер А1
1.100.1-7.3-6 00.00.00РС Ведомость расхода стали
Разработан: СибЗНИИЭП Госгражданстроя
Утверждён:23.03.1990 Госкомархитектура (46)
Расположен в:Техническая документация Строительство Справочные документы Типовые строительные конструкции, изделия и узлы Общероссийский строительный каталог Строительные конструкции, изделия и узлы зданий и сооружений для всех видов строительства Конструкции, изделия и узлы зданий Несущие конструкции двухэтажных и многоэтажных зданий Крупнопанельные и монолитные здания. Узлы
Серия 1.100.1-7Серия 1.100.1-7Серия 1.100.1-7Серия 1.100.1-7Серия 1.100.1-7Серия 1.100.1-7Серия 1.100.1-7Серия 1.100.1-7Серия 1.100.1-7Серия 1.100.1-7Серия 1.100.1-7Серия 1.100.1-7Серия 1.100.1-7Серия 1.100.1-7Серия 1.100.1-7Серия 1.100.1-7Серия 1.100.1-7Серия 1.100.1-7Серия 1.100.1-7Серия 1.100.1-7Серия 1.100.1-7Серия 1.100.1-7Серия 1.100.1-7Серия 1.100.1-7Серия 1.100.1-7Серия 1.100.1-7Серия 1.100.1-7Серия 1.100.1-7Серия 1.100.1-7Серия 1.100.1-7Серия 1.100.1-7Серия 1.100.1-7Серия 1.100.1-7Серия 1.100.1-7Серия 1.100.1-7Серия 1.100.1-7Серия 1.100.1-7Серия 1.100.1-7Серия 1.100.1-7Серия 1.100.1-7Серия 1.100.1-7Серия 1.100.1-7Серия 1.100.1-7Серия 1.100.1-7Серия 1.100.1-7Серия 1.100.1-7Серия 1.100.1-7Серия 1.100.1-7Серия 1.100.1-7Серия 1.100.1-7Серия 1.100.1-7Серия 1.100.1-7Серия 1.100.1-7Серия 1.100.1-7Серия 1.100.1-7Серия 1.100.1-7Серия 1.100.1-7Серия 1.100.1-7Серия 1.100.1-7Серия 1.100.1-7Серия 1.100.1-7Серия 1.100.1-7Серия 1.100.1-7Серия 1.100.1-7Серия 1.100.1-7Серия 1.100.1-7Серия 1.100.1-7Серия 1.100.1-7Серия 1.100.1-7Серия 1.100.1-7Серия 1.100.1-7Серия 1.100.1-7Серия 1.100.1-7Серия 1.100.1-7Серия 1.100.1-7Серия 1.100.1-7Серия 1.100.1-7Серия 1.100.1-7Серия 1.100.1-7Серия 1.100.1-7

© 2013 Ёшкин Кот :-) Карта сайта