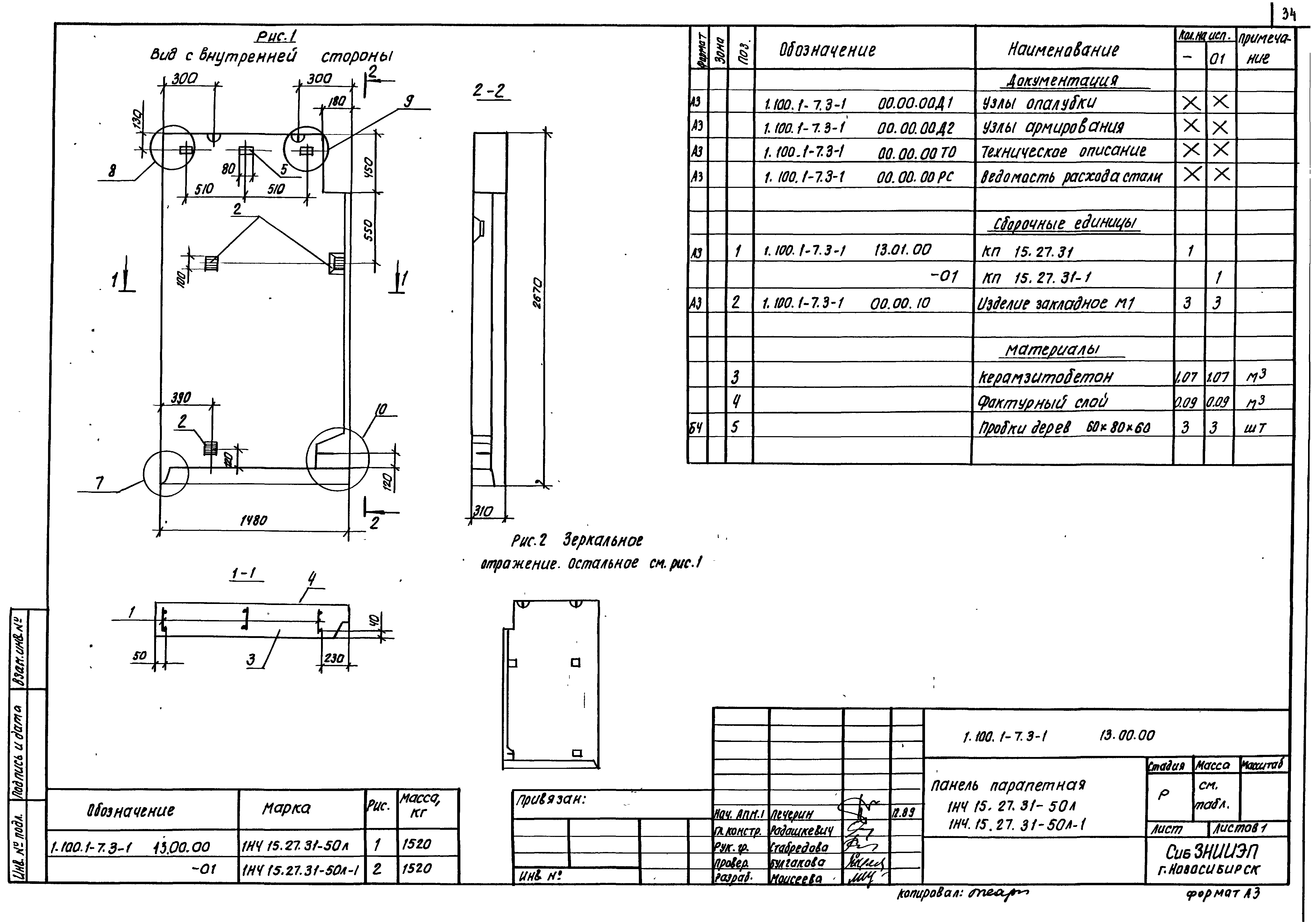
Скачать Серия 1.100.1-7 Выпуск 3-1. Панели опорные и парапетные однослойные легкобетонные для однослойных наружных стен толщиной 400 мм (холодный чердак). Рабочие чертежиДата актуализации: 10.08.2017 Серия 1.100.1-7
Выпуск 3-1. Панели опорные и парапетные однослойные легкобетонные для однослойных наружных стен толщиной 400 мм (холодный чердак). Рабочие чертежиОбозначение: | Серия 1.100.1-7 | Обозначение англ: | Series 1.100.1-7 | Статус: | действует | Название рус.: | Выпуск 3-1. Панели опорные и парапетные однослойные легкобетонные для однослойных наружных стен толщиной 400 мм (холодный чердак). Рабочие чертежи | Дата добавления в базу: | 01.09.2013 | Дата актуализации: | 05.05.2017 | Дата введения: | 01.06.1990 | Разработан: | СибЗНИИЭП Госгражданстроя
| Утверждён: | 22.05.1990 Госкомархитектура (89)
| Расположен в: |
|
                                                                  
|