Информационная система
«Ёшкин Кот»

Скачать базу одним архивом
Скачать обновления
История создания базы
Карта сайта

Скачать Серия 1.100.1-7 Выпуск 2-6. Панели наружных стен трехслойные легкобетонные толщиной 350 мм. Арматурные и закладные изделия. Рабочие чертежи

Дата актуализации: 10.08.2017

Серия 1.100.1-7

Выпуск 2-6. Панели наружных стен трехслойные легкобетонные толщиной 350 мм. Арматурные и закладные изделия. Рабочие чертежи

Обозначение: Серия 1.100.1-7
Обозначение англ: Series 1.100.1-7
Статус:действует
Название рус.:Выпуск 2-6. Панели наружных стен трехслойные легкобетонные толщиной 350 мм. Арматурные и закладные изделия. Рабочие чертежи
Дата добавления в базу:01.09.2013
Дата актуализации:05.05.2017
Дата введения:30.04.1990
Оглавление:1.100.1-7.2-6 00.00.00 Содержание
1.100.1-7.2-6 00.00.01 Каркас КР1-КР5
1.100.1-7.2-6 00.00.02 Каркас КР1,КР10,КР17,КР20. Отдельный стержень ОС1
1.100.1-7.2-6 00.00.03 Каркас КР8,КР35,КР39
1.100.1-7.2-6 00.00.04 Каркас КР9,КР13,КР15,КР16
1.100.1-7.2-6 00.00.05 Каркас КР11,КР12,КР14,КР19,КР21,КР30
1.100.1-7.2-6 00.00.06 Каркас КР18,КР31,КР32
1.100.1-7.2-6 00.00.07 Каркас КР22...КР24
1.100.1-7.2-6 00.00.08 Каркас КР25...КР27
1.100.1-7.2-6 00.00.09 Каркас КР28,КР29,КР49
1.100.1-7.2-6 00.00.10 Каркас КР34...КР36,КР46
1.100.1-7.2-6 00.00.11 Каркас КР37,КР38,КР50,КР52,КР53
1.100.1-7.2-6 00.00.12 Каркас КР40...КР42,КР51
1.100.1-7.2-6 00.00.13 Каркас КР43...КР45
1.100.1-7.2-6 00.00.14 Каркас КР47...КР49
1.100.1-7.2-6 00.00.15 Сетка С1...С5
1.100.1-7.2-6 00.00.16 Сетка С6,С7,С9-С12
1.100.1-7.2-6 00.00.17 Сетка С13...С18
1.100.1-7.2-6 00.00.18 Сетка С19...С24
1.100.1-7.2-6 00.00.19 Каркас ПК1...ПК6
1.100.1-7.2-6 00.00.20 Каркас ПК7...ПК9
1.100.1-7.2-6 00.00.21 Сетка ПС1...ПС6
1.100.1-7.2-6 00.00.22 Сетка ПС7...ПС9,С25,С26
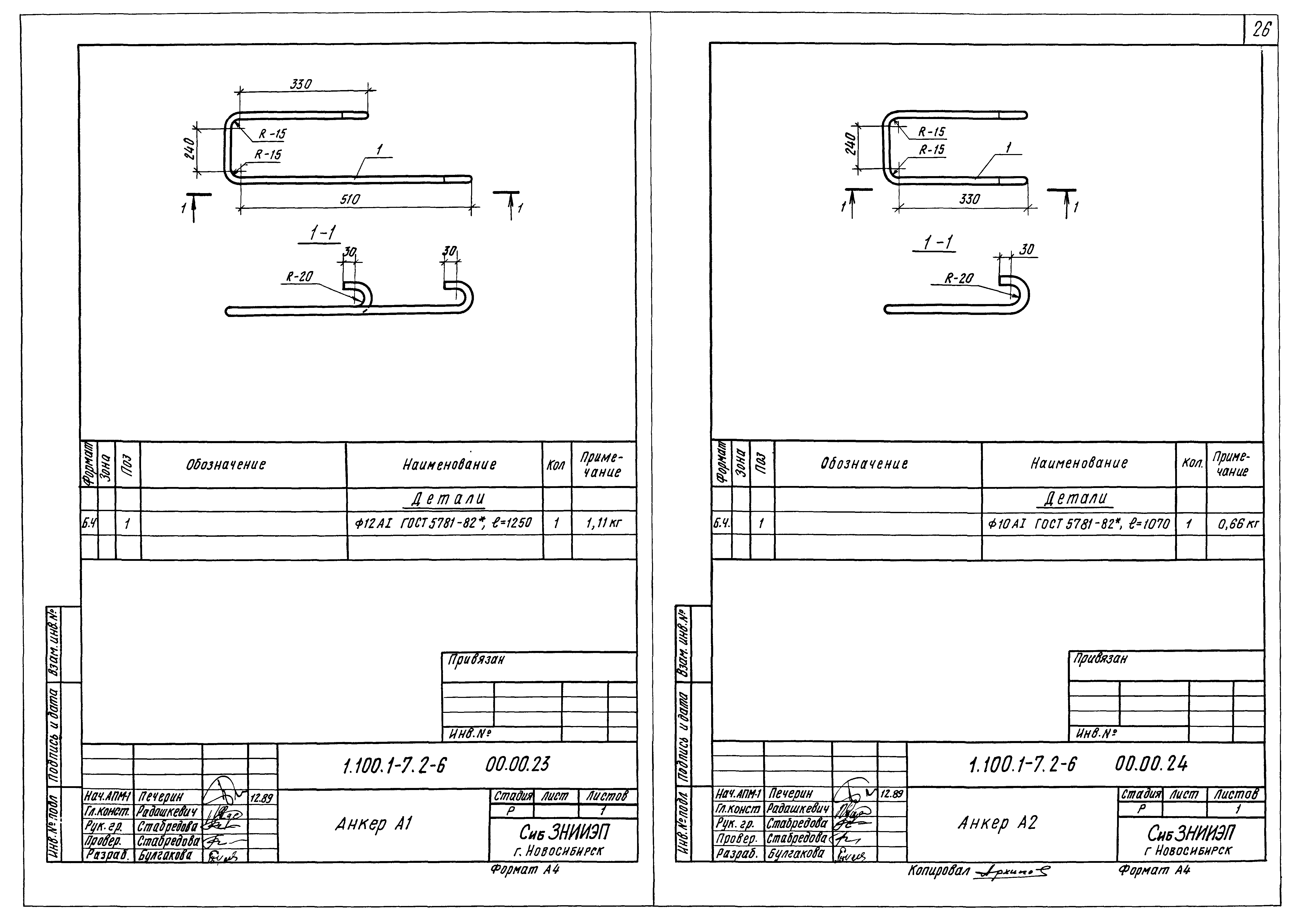
1.100.1-7.2-6 00.00.23 Анкер А1
1.100.1-7.2-6 00.00.24 Анкер А2
1.100.1-7.2-6 00.00.25 Анкер А3
1.100.1-7.2-6 00.00.26 Анкер А4
1.100.1-7.2-6 00.00.27 Изделие закладное М1
1.100.1-7.2-6 00.00.28 Изделие закладное М2
1.100.1-7.2-6 00.00.29 Изделие закладное М3
1.100.1-7.2-6 00.00.30 Изделие закладное М4
1.100.1-7.2-6 00.00.31 Изделие закладное М5
1.100.1-7.2-6 00.00.32 Изделие закладное М6
1.100.1-7.2-6 00.00.33 Изделие закладное М7
1.100.1-7.2-6 00.00.34 Изделие закладное М8
1.100.1-7.2-6 00.00.35 Петли монтажные П1...П5
1.100.1-7.2-6 00.00.35 СБ Петли монтажные П1...П5. Сборочный чертеж
1.100.1-7.2-6 00.00.36 Петли монтажные П6...П8
1.100.1-7.2-6 00.00.36 СБ Петли монтажные П6...П8. Сборочный чертеж
1.100.1-7.2-6 00.00.37 Подоконный слив
Разработан: СибЗНИИЭП Госгражданстроя
Утверждён:23.03.1990 Госкомархитектура (46)
Расположен в:Техническая документация Строительство Справочные документы Типовые строительные конструкции, изделия и узлы Общероссийский строительный каталог Строительные конструкции, изделия и узлы зданий и сооружений для всех видов строительства Конструкции, изделия и узлы зданий Несущие конструкции двухэтажных и многоэтажных зданий Крупнопанельные и монолитные здания. Узлы
Серия 1.100.1-7Серия 1.100.1-7Серия 1.100.1-7Серия 1.100.1-7Серия 1.100.1-7Серия 1.100.1-7Серия 1.100.1-7Серия 1.100.1-7Серия 1.100.1-7Серия 1.100.1-7Серия 1.100.1-7Серия 1.100.1-7Серия 1.100.1-7Серия 1.100.1-7Серия 1.100.1-7Серия 1.100.1-7Серия 1.100.1-7Серия 1.100.1-7Серия 1.100.1-7Серия 1.100.1-7Серия 1.100.1-7Серия 1.100.1-7Серия 1.100.1-7Серия 1.100.1-7Серия 1.100.1-7Серия 1.100.1-7Серия 1.100.1-7Серия 1.100.1-7Серия 1.100.1-7Серия 1.100.1-7Серия 1.100.1-7Серия 1.100.1-7Серия 1.100.1-7Серия 1.100.1-7

© 2013 Ёшкин Кот :-) Карта сайта