Информационная система
«Ёшкин Кот»

Скачать базу одним архивом
Скачать обновления
История создания базы
Карта сайта

Скачать Серия 2.210-1 Выпуск 4. Цоколь и стены подвала зданий из кирпича. Деформационные швы. Загрузочные люки. Входы в подвал

Дата актуализации: 10.08.2017

Серия 2.210-1

Выпуск 4. Цоколь и стены подвала зданий из кирпича. Деформационные швы. Загрузочные люки. Входы в подвал

Обозначение: Серия 2.210-1
Обозначение англ: Series 2.210-1
Статус:cправочные материалы, мп, тпр
Название рус.:Выпуск 4. Цоколь и стены подвала зданий из кирпича. Деформационные швы. Загрузочные люки. Входы в подвал
Дата добавления в базу:01.09.2013
Дата актуализации:05.05.2017
Область применения:Альбом разработан для применения при проектировании и строительстве зданий со стенами из кирпича для обычных условий строительства
Оглавление:Содержание
Поясинтельная записка
Маркировка деталей выхода в подвал
Маркировка деталей световых приямков и деталей. Устройства проемов в стеназ подвала.
Маркировка деталей загрузочных люков
Маркировка деталей ввода коммуникаций
Маркировка деталей облицовки на цокольной части здания
Маркировка деталей деформационного шва на наружной стене подвала
Маркировка деталей деформации шва в наружной стене подвала во внутреннем углу здания
Маркировка деталей деформациионного шва во внутренней стене подвала
Детали 1 и 2
Детали 3 и 4
Детали 5 и 6. Узел "А"
Детали 7 и 8
Деталь 9
Детали 10 и 11
Детали 12 и 13
Деталь 14
Детали 15; 16; 17
Детали 18 и 19
Детали 20 и 21
Детали 22 и 23
Детали 24; 25; 26
Детали 27 и 28
Детали 29 и 30
Деталь 31
Деталь 31. Узел Б
Деталь 32
Деталь 33
Деталь 33. Узел В
Деталь 34
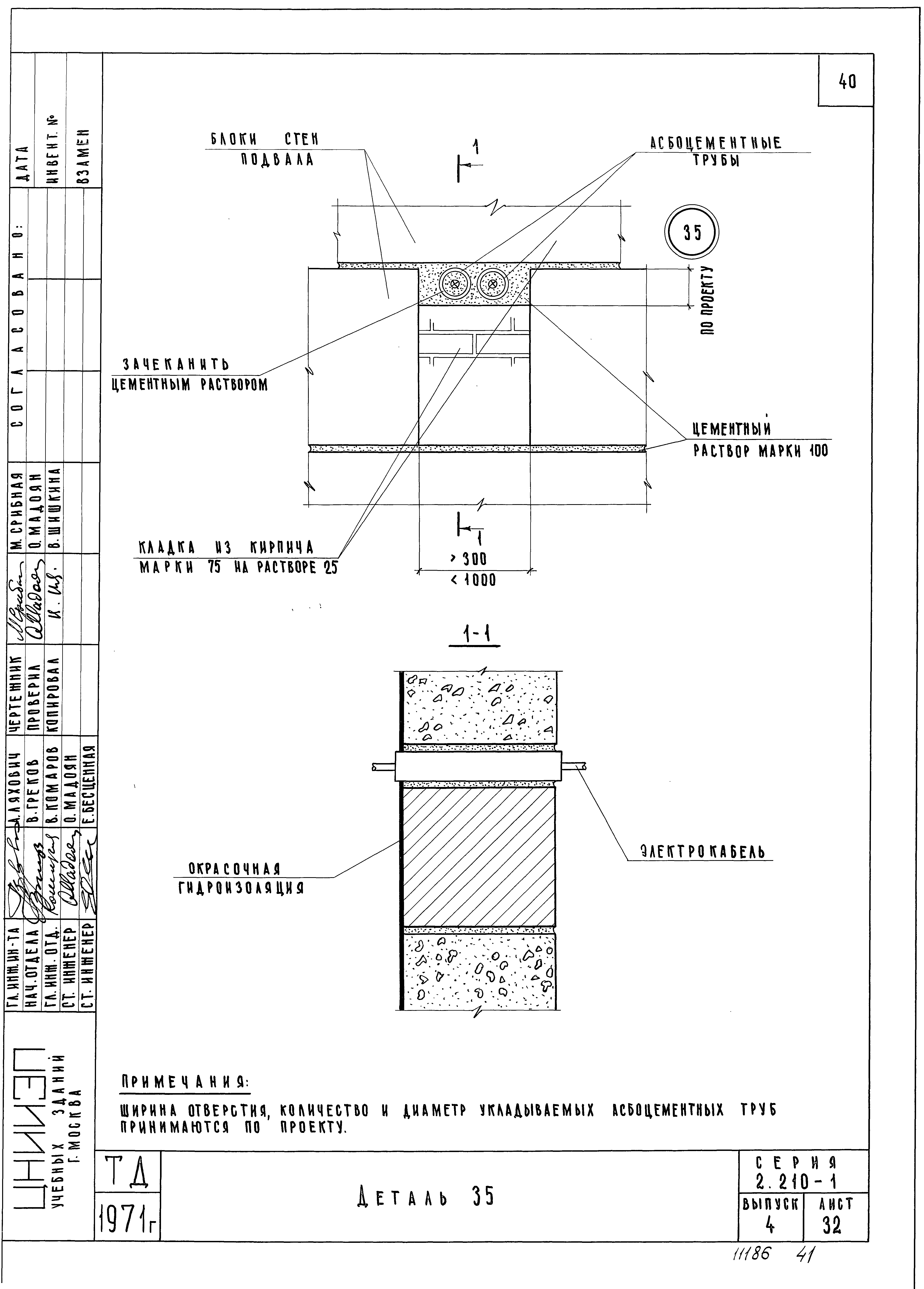
Деталь 35
Деталь 36
Деталь 37
Деталь 38
Деталь 39
Детали 38 и 39. Разрез 2-2
Деталь 40
Деталь 40. Разрез 2-2
Детали 41-47
Детали 48 и 49
Деталь 48. Узлы Г и Д
Детали 50-55
Детали 56-63
Варианты раскладки облицовочных керамических плиток
Детали 64 и 73
Деталь 65
Деталь 66
Детали 67 и 74
Деталь 68
Деталь 69
Деталь 70
Деталь 71
Деталь72
Устройство окрасочной гидроизоляции
Узлы Е; Ж; И; К
Металлические монтажные детали
Разработан: ЦНИИЭП учебных зданий Госгражданстроя
Утверждён:10.08.1971 Государственный комитет по гражданскому строительству и архитектуре при Госстрое СССР (150)
Расположен в:Техническая документация Строительство Справочные документы Типовые строительные конструкции, изделия и узлы Общероссийский строительный каталог Строительные конструкции, изделия и узлы зданий и сооружений для всех видов строительства Конструкции, изделия и узлы зданий Конструкции нулевого цикла Детали фундаментов
Нормативные ссылки:
Серия 2.210-1Серия 2.210-1Серия 2.210-1Серия 2.210-1Серия 2.210-1Серия 2.210-1Серия 2.210-1Серия 2.210-1Серия 2.210-1Серия 2.210-1Серия 2.210-1Серия 2.210-1Серия 2.210-1Серия 2.210-1Серия 2.210-1Серия 2.210-1Серия 2.210-1Серия 2.210-1Серия 2.210-1Серия 2.210-1Серия 2.210-1Серия 2.210-1Серия 2.210-1Серия 2.210-1Серия 2.210-1Серия 2.210-1Серия 2.210-1Серия 2.210-1Серия 2.210-1Серия 2.210-1Серия 2.210-1Серия 2.210-1Серия 2.210-1Серия 2.210-1Серия 2.210-1Серия 2.210-1Серия 2.210-1Серия 2.210-1Серия 2.210-1Серия 2.210-1Серия 2.210-1Серия 2.210-1Серия 2.210-1Серия 2.210-1Серия 2.210-1Серия 2.210-1Серия 2.210-1Серия 2.210-1Серия 2.210-1Серия 2.210-1Серия 2.210-1Серия 2.210-1Серия 2.210-1Серия 2.210-1Серия 2.210-1Серия 2.210-1Серия 2.210-1Серия 2.210-1Серия 2.210-1Серия 2.210-1Серия 2.210-1Серия 2.210-1Серия 2.210-1Серия 2.210-1Серия 2.210-1Серия 2.210-1

© 2013 Ёшкин Кот :-) Карта сайта