| ||||||||||||||||||||||||||||
Скачать Серия 1.090.1-3пв Выпуск 2-3. Панели наружных стен однослойные для зданий с высотой этажа 3,3 м. Арматурные и закладные изделия. Рабочие чертежиДата актуализации: 10.08.2017
|
| Обозначение: | Серия 1.090.1-3пв |
| Обозначение англ: | Series 1.090.1-3пв |
| Статус: | не определен законодательством |
| Название рус.: | Выпуск 2-3. Панели наружных стен однослойные для зданий с высотой этажа 3,3 м. Арматурные и закладные изделия. Рабочие чертежи |
| Дата добавления в базу: | 01.09.2013 |
| Дата актуализации: | 05.05.2017 |
| Дата введения: | 01.01.1985 |
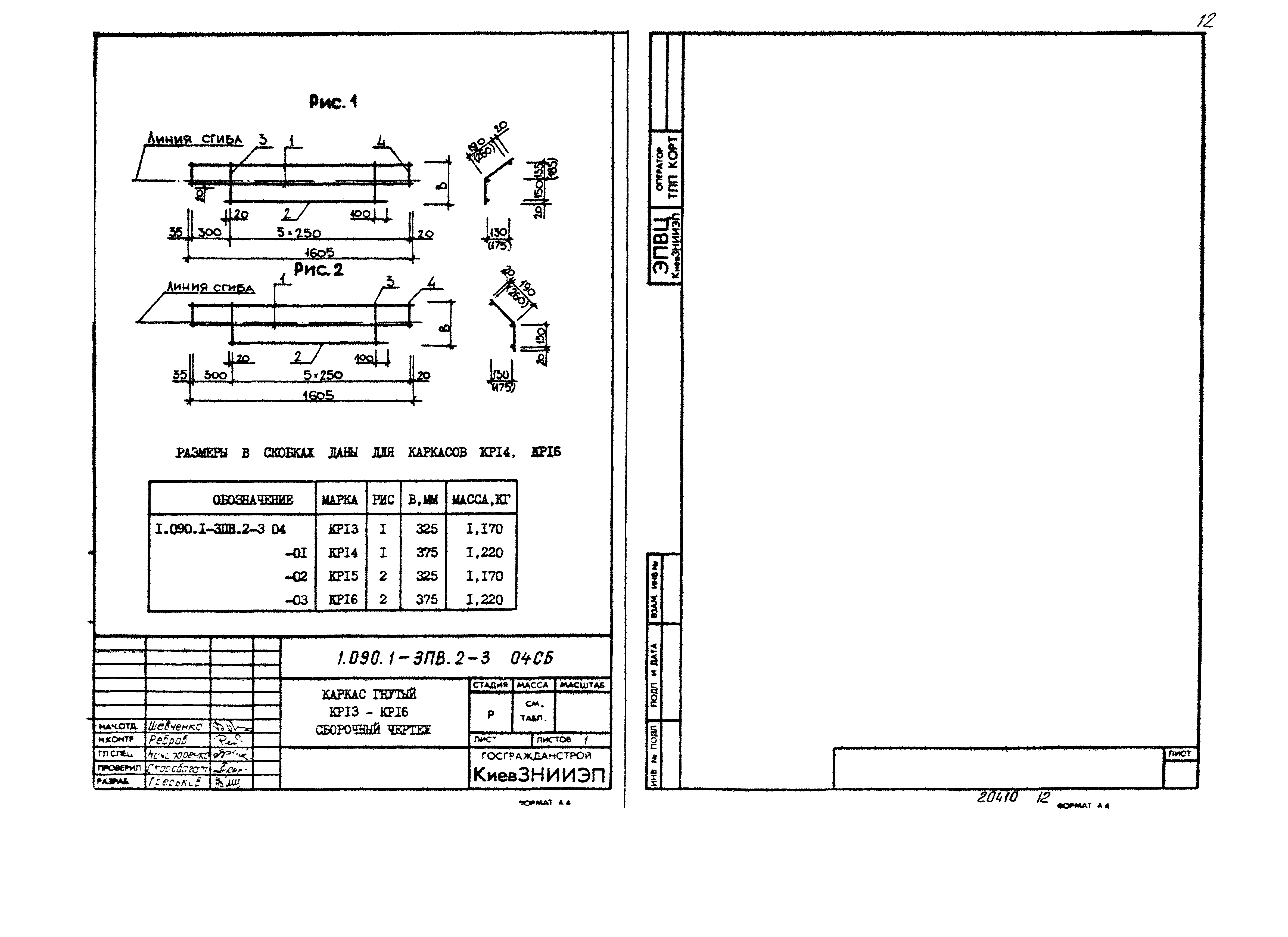
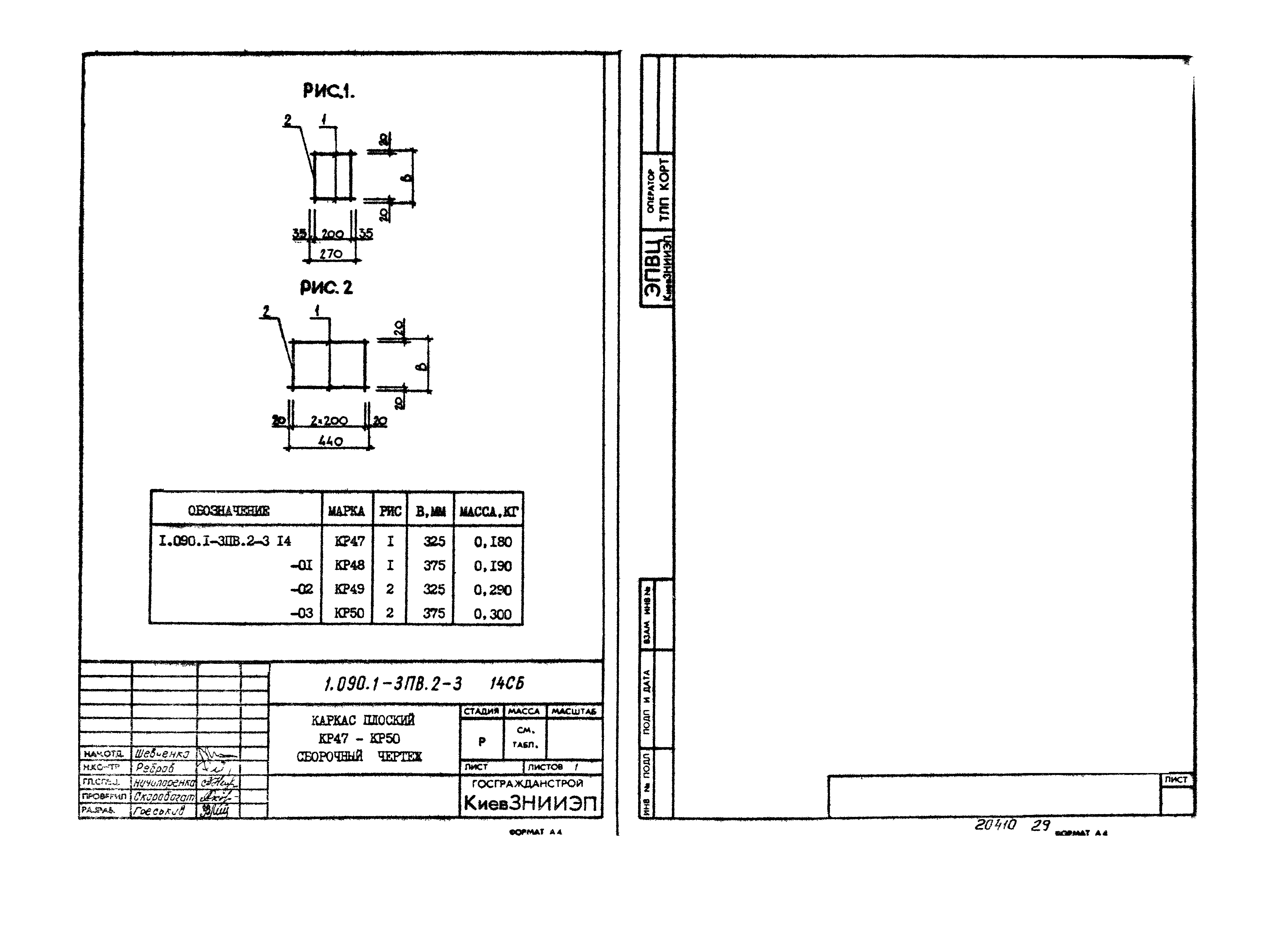
| Оглавление: | 1.090.1-3ПВ.2-3-00С Содержание 1.090.1-3ПВ.2-3-00ТО Техническое описание 1.090.1-3ПВ.2-3-01 Каркас плоский КР1-КР4 1.090.1-3ПВ.2-3-02 Каркас плоский КР5-КР8 1.090.1-3ПВ.2-3-03 Каркас плоский КР9-КР12 1.090.1-3ПВ.2-3-04 Каркас плоский КР13-КР16 1.090.1-3ПВ.2-3-05 Каркас плоский КР17-КР20 1.090.1-3ПВ.2-3-06 Каркас плоский КР21-КР24 1.090.1-3ПВ.2-3-07 Каркас плоский КР25,КР26 1.090.1-3ПВ.2-3-08 Каркас плоский КР27,КР28 1.090.1-3ПВ.2-3-09 Каркас плоский КР29-КР32 1.090.1-3ПВ.2-3-10 Каркас плоский КР33,КР34 1.090.1-3ПВ.2-3-11 Каркас плоский КР35-КР38 1.090.1-3ПВ.2-3-12 Каркас плоский КР39-КР42 1.090.1-3ПВ.2-3-13 Каркас плоский КР43-КР46 1.090.1-3ПВ.2-3-14 Каркас плоский КР47-КР50 1.090.1-3ПВ.2-3-15 Каркас плоский КР51-КР54 1.090.1-3ПВ.2-3-16 Каркас плоский КР55-КР58 1.090.1-3ПВ.2-3-17 Каркас плоский КР59,КР60 1.090.1-3ПВ.2-3-18 Сетка С1-С4 1.090.1-3ПВ.2-3-19 Сетка С5-С8 1.090.1-3ПВ.2-3-20 Сетка С9-С12 1.090.1-3ПВ.2-3-21 Сетка С13-С16 1.090.1-3ПВ.2-3-22 Сетка С17-С20 1.090.1-3ПВ.2-3-23 Сетка С21-С24 1.090.1-3ПВ.2-3-24 Сетка С25-С28 1.090.1-3ПВ.2-3-25 Сетка С29-С32 1.090.1-3ПВ.2-3-26 Сетка С33-С36 1.090.1-3ПВ.2-3-27 Сетка С37-С40 1.090.1-3ПВ.2-3-28 Сетка С41-С44 1.090.1-3ПВ.2-3-29 Сетка С45 1.090.1-3ПВ.2-3-30 Сетка С46-С49 1.090.1-3ПВ.2-3-31 Изделие закладное МН1-МН3 1.090.1-3ПВ.2-3-32 Изделие закладное МН4-МН6 1.090.1-3ПВ.2-3-33 Петля строповочная ПС1-ПС6 1.090.1-3ПВ.2-3-34 Стержень гнутый АН-АН4 |
| Разработан: | КиевЗНИИЭП ЦНИИЭП торгово-бытовых зданий и туристских комплексов |
| Утверждён: | 01.11.1984 Госстрой СССР (Государственный комитет Совета Министров СССР по делам строительства) (USSR Gosstroy ИИ-32) |
| Издан: | ЦИТП Госстроя СССР (CITP, Gosstroy (USSR) 1985 г. ) |
| Расположен в: |






















































