| ||||||||||||||||||||||||||
Скачать Серия 1.090.1-3пв Выпуск 2-1. Панели наружных стен однослойные для зданий с высотой этажа 3,3 м. Рабочие чертежиДата актуализации: 10.08.2017
|
| Обозначение: | Серия 1.090.1-3пв |
| Обозначение англ: | Series 1.090.1-3пв |
| Статус: | не определен законодательством |
| Название рус.: | Выпуск 2-1. Панели наружных стен однослойные для зданий с высотой этажа 3,3 м. Рабочие чертежи |
| Дата добавления в базу: | 01.09.2013 |
| Дата актуализации: | 05.05.2017 |
| Дата введения: | 01.01.1985 |
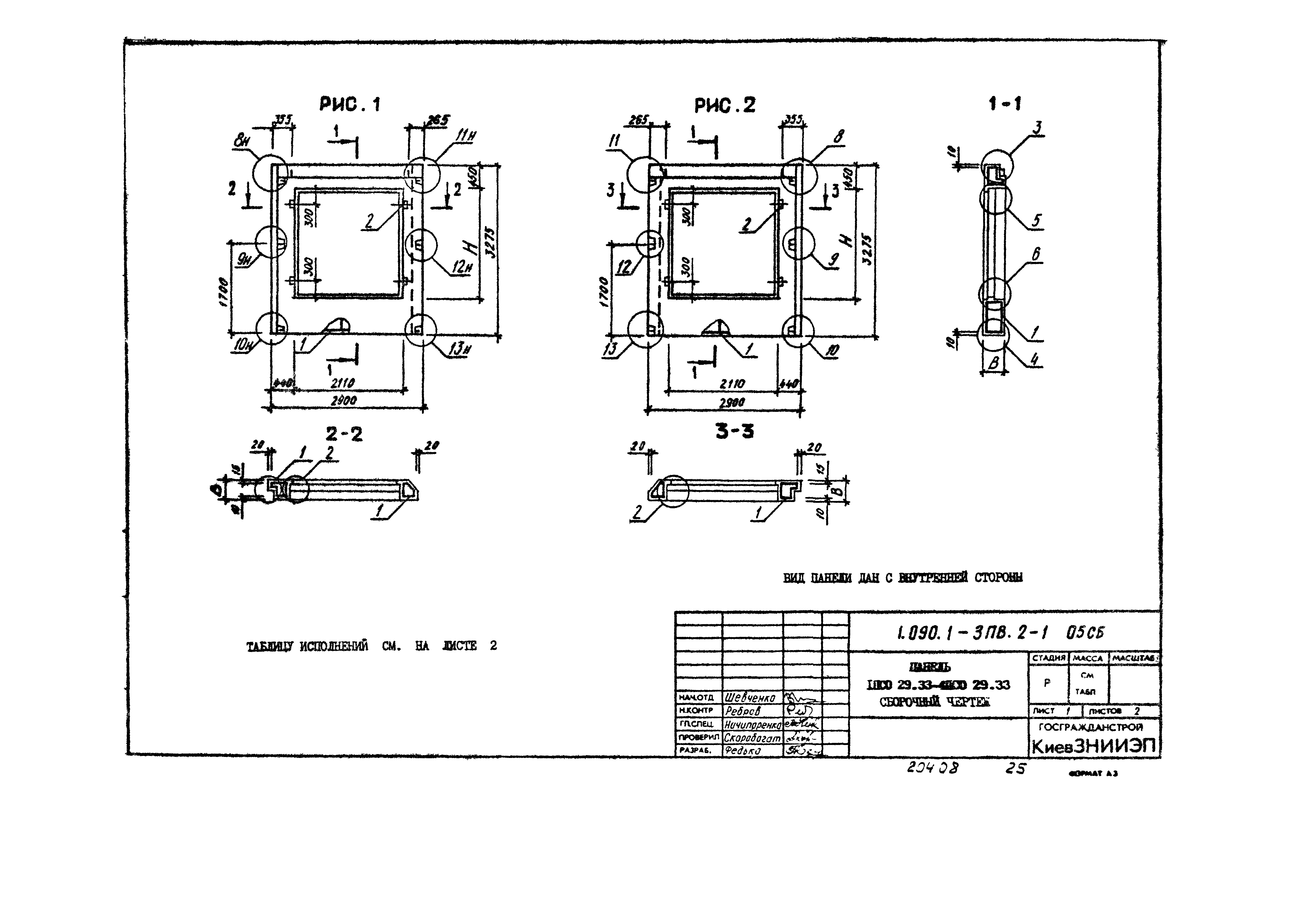
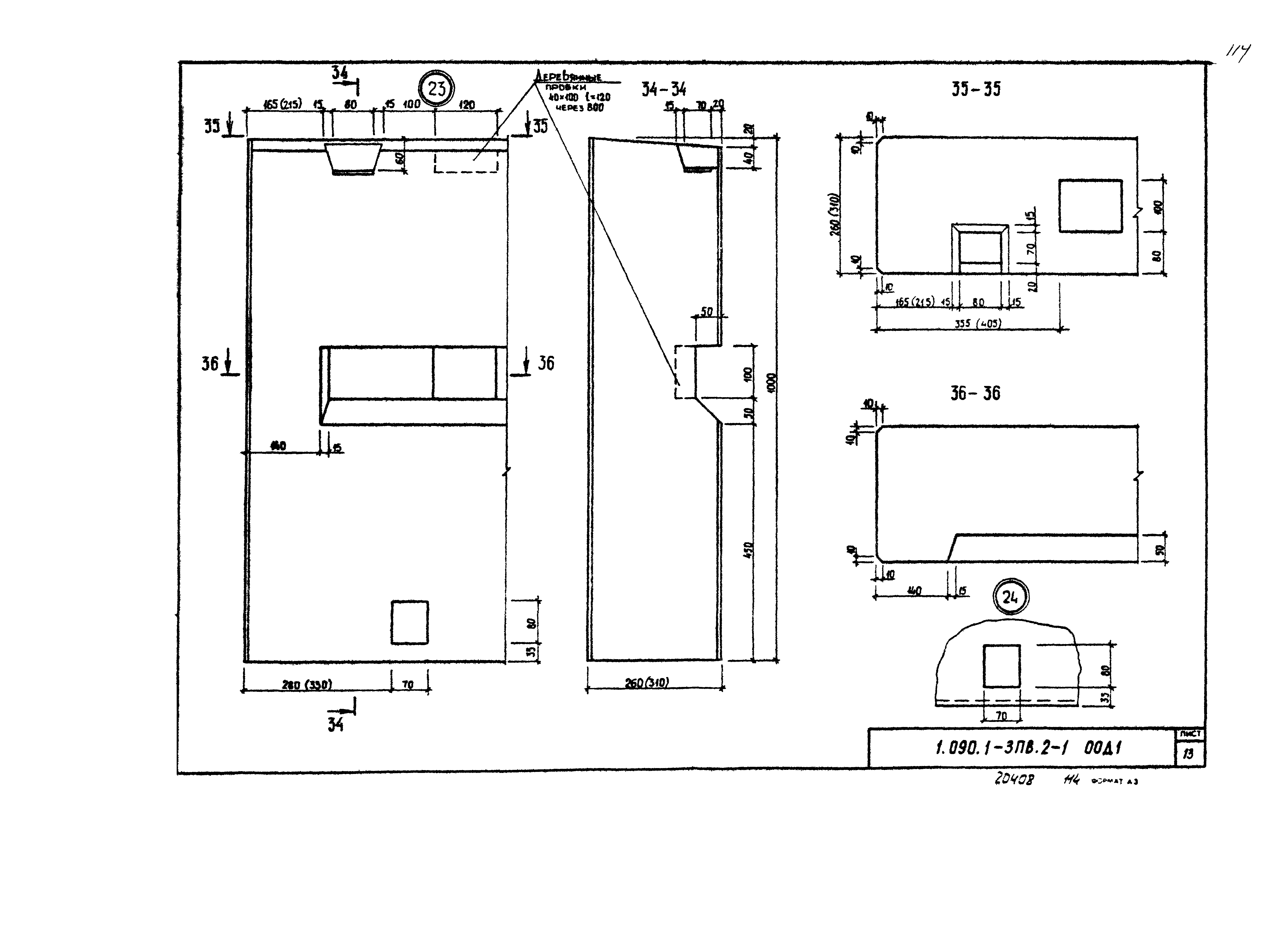
| Оглавление: | 1.090.1-3ПВ.2-1-00С Содержание 1.090.1-3ПВ.2-1-00ТО Техническое описание 1.090.1-3ПВ.2-1-01 Панель 1ПСО30.33-3ПСО30.33 1.090.1-3ПВ.2-1-02 Панель 4ПСО30.33-6ПСО30.33 1.090.1-3ПВ.2-1-03 Панель 7ПСО30.33-9ПСО30.33 1.090.1-3ПВ.2-1-04 Панель 1ПСО28.33,2ПСО28.33 1.090.1-3ПВ.2-1-05 Панель 1ПСО29.33-4ПСО29.33 1.090.1-3ПВ.2-1-06 Панель 1ПСО33.33,2ПСО33.33 1.090.1-3ПВ.2-1-07 Панель 1ПСО60.33,2ПСО60.33 1.090.1-3ПВ.2-1-08 Панель 3ПСО60.33,4ПСО60.33 1.090.1-3ПВ.2-1-09 Панель 1ПСД30.33,2ПСД30.33 1.090.1-3ПВ.2-1-10 Панель 3ПСД30.33 1.090.1-3ПВ.2-1-11 Панель 4ПСД30.33 1.090.1-3ПВ.2-1-12 Панель 1ПСД28.33 1.090.1-3ПВ.2-1-13 Панель 1ПСД29.33,2ПСД29.33 1.090.1-3ПВ.2-1-14 Панель 3ПСД29.33,4ПСД29.33 1.090.1-3ПВ.2-1-15 Панель ПСД30.33 1.090.1-3ПВ.2-1-16 Панель 2ПСД28.33 1.090.1-3ПВ.2-1-17 Панель ПСЛ30.33 1.090.1-3ПВ.2-1-18 Панель ПСЛ28.33 1.090.1-3ПВ.2-1-19 Панель 1ПСЛ29.33,2ПСЛ29.33 1.090.1-3ПВ.2-1-20 Панель 1ПСЛ30.33,2ПСЛ30.33 1.090.1-3ПВ.2-1-21 Панель 3ПСЛ30.33,4ПСЛ30.33 1.090.1-3ПВ.2-1-22 Панель 5ПСЛ30.33,6ПСЛ30.33 1.090.1-3ПВ.2-1-23 Панель 7ПСЛ30.33,8ПСЛ30.33 1.090.1-3ПВ.2-1-24 Панель ПСЛ30.33,ПС24.33 1.090.1-3ПВ.2-1-25 Панель ПСЛ18.33,ПС12.33 1.090.1-3ПВ.2-1-26 Панель ПС28.33 1.090.1-3ПВ.2-1-27 Панель 1ПС29.33,2ПС29.33 1.090.1-3ПВ.2-1-28 Панель 1ПС17.33,2ПС17.33 1.090.1-3ПВ.2-1-29 Панель 1ПС11.33,2ПС11.33 1.090.1-3ПВ.2-1-30 Панель 1ПС33.33,2ПС33.33 1.090.1-3ПВ.2-1-31 Панель 1ПС21.33,2ПС21.33 1.090.1-3ПВ.2-1-32 Панель 1ПС15.33,2ПС15.33 1.090.1-3ПВ.2-1-33 Панель ПС30.16 1.090.1-3ПВ.2-1-34 Панель ПС28.16 1.090.1-3ПВ.2-1-35 Панель 1ПС29.16,2ПС29.16 1.090.1-3ПВ.2-1-36 Панель 1ПС33.16,2ПС33.16 1.090.1-3ПВ.2-1-37 Панель ПСП60.10 1.090.1-3ПВ.2-1-38 Панель ПСП30.10 1.090.1-3ПВ.2-1-39 Панель ПСП18.10 1.090.1-3ПВ.2-1-40 Панель ПСП12.10 1.090.1-3ПВ.2-1-41 Панель ПСП28.10 1.090.1-3ПВ.2-1-42 Панель 1ПСП29.10,2ПСП29.10 1.090.1-3ПВ.2-1-43 Панель 1ПСП17.10,2ПСП17.10 1.090.1-3ПВ.2-1-44 Панель 1ПСП11.10,2ПСП11.10 1.090.1-3ПВ.2-1-45 Панель 1ПСП33.10,2ПСП33.10 1.090.1-3ПВ.2-1-46 Панель 1ПСП21.10,2ПСП21.10 1.090.1-3ПВ.2-1-47 Панель 1ПСП15.10,2ПСП15.10 1.090.1-3ПВ.2-1-00Д1 Узлы опалубочные 1.090.1-3ПВ.2-1-00РС Ведомость расхода стали на элемент, кг |
| Разработан: | КиевЗНИИЭП ЦНИИЭП торгово-бытовых зданий и туристских комплексов |
| Утверждён: | 01.11.1984 Госстрой СССР (Государственный комитет Совета Министров СССР по делам строительства) (USSR Gosstroy ИИ-32) |
| Расположен в: |





























































































































