| ||||||||||||||||||||||||||||
Скачать Серия 1.090.1-7с Выпуск 7-2. Монтажные узлы с панелями наружных стен однослойными толщиной 400 мм для применения в районах сейсмичностью 7, 8 и 9 баллов. Рабочие чертежиДата актуализации: 10.08.2017
|
| Обозначение: | Серия 1.090.1-7с |
| Обозначение англ: | Series 1.090.1-7с |
| Статус: | не определен законодательством |
| Название рус.: | Выпуск 7-2. Монтажные узлы с панелями наружных стен однослойными толщиной 400 мм для применения в районах сейсмичностью 7, 8 и 9 баллов. Рабочие чертежи |
| Дата добавления в базу: | 01.09.2013 |
| Дата актуализации: | 05.05.2017 |
| Дата введения: | 01.03.1991 |
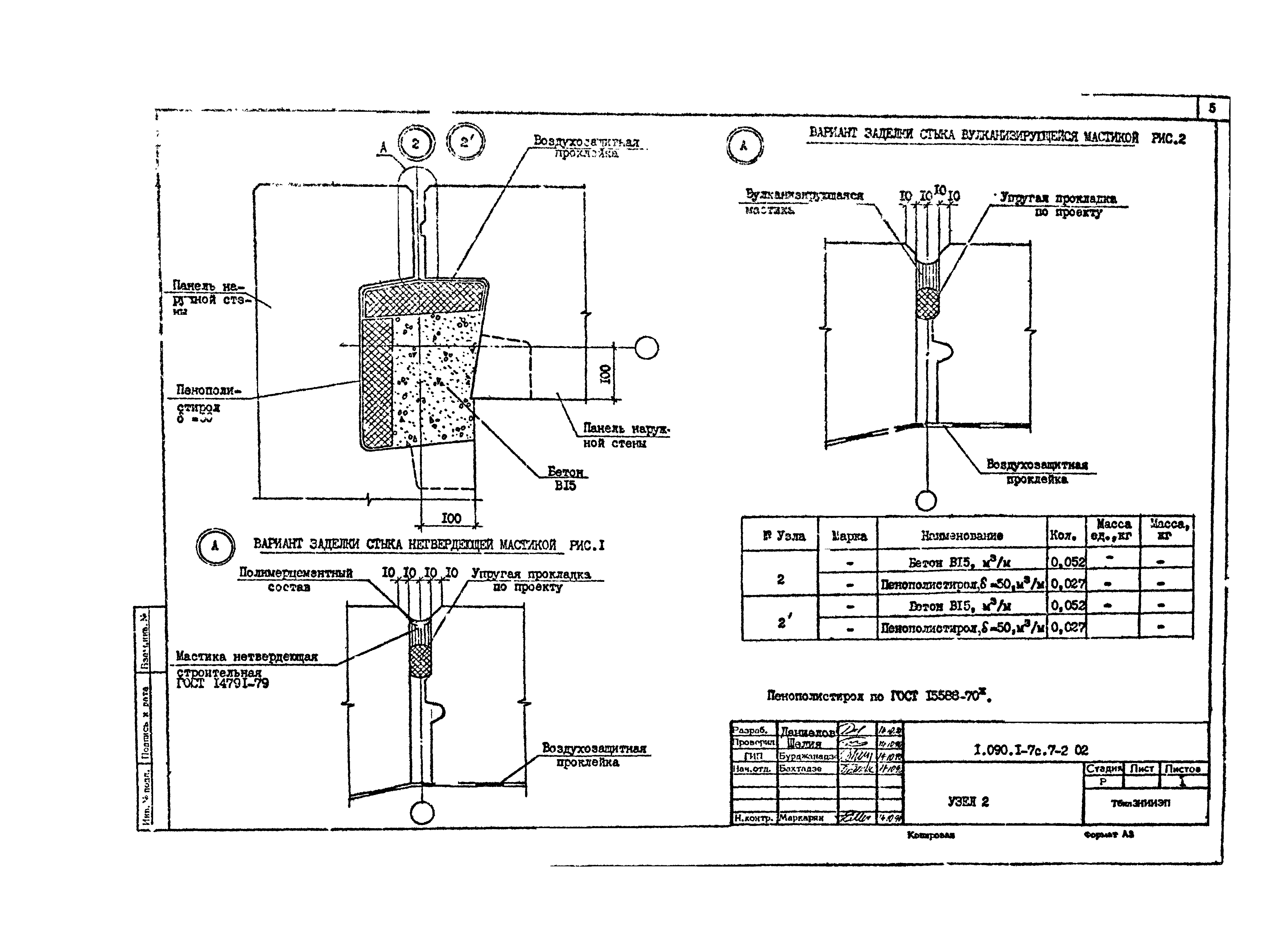
| Оглавление: | 1.090.1-7С.7-2 Содержание 1.090.1-7С.7-2-ТТ Технические требования 1.090.1-7С.7-2-01 Узел 1 1.090.1-7С.7-2-02 Узел 2 1.090.1-7С.7-2-03 Узел 3,4 1.090.1-7С.7-2-04 Узел 5 1.090.1-7С.7-2-05 Узел 6,7 1.090.1-7С.7-2-06 Узел 8 1.090.1-7С.7-2-07 Узел 9,10 1.090.1-7С.7-2-08 Узел 11,12 1.090.1-7С.7-2-09 Узел 13 1.090.1-7С.7-2-10 Узел 14 1.090.1-7С.7-2-11 Узел 15 1.090.1-7С.7-2-12 Узел 16 1.090.1-7С.7-2-13 Узел 17 1.090.1-7С.7-2-14 Узел 18 1.090.1-7С.7-2-15 Узел 19 1.090.1-7С.7-2-16 Узел 20 1.090.1-7С.7-2-17 Узел 21 1.090.1-7С.7-2-18 Узел 22 1.090.1-7С.7-2-19 Узел 23 1.090.1-7С.7-2-20 Узел 24 1.090.1-7С.7-2-21 Узел 25 1.090.1-7С.7-2-22 Узел 26 1.090.1-7С.7-2-23 Узел 27 1.090.1-7С.7-2-24 Узел 28 1.090.1-7С.7-2-25 Узел 29 1.090.1-7С.7-2-26 Узел 30 1.090.1-7С.7-2-27 Узел 31 1.090.1-7С.7-2-28 Узел 32 1.090.1-7С.7-2-29 Узел 33 1.090.1-7С.7-2-30 Узел 34 1.090.1-7С.7-2-31 Узел 35 1.090.1-7С.7-2-32 Узел 36 1.090.1-7С.7-2-33 Узел 37 1.090.1-7С.7-2-34 Узел 38 1.090.1-7С.7-2-35 Узел 39 1.090.1-7С.7-2-36 Узел 40 1.090.1-7С.7-2-37 Узел 41 1.090.1-7С.7-2-38 Узел 42 1.090.1-7С.7-2-39 Узел 43 1.090.1-7С.7-2-40 Узел 44 1.090.1-7С.7-2-41 Узел 45 1.090.1-7С.7-2-42 Узел 46 1.090.1-7С.7-2-43 Узел 47 1.090.1-7С.7-2-44 Узел 48 1.090.1-7С.7-2-45 Изделие соединительное |
| Разработан: | ТбилЗНИИЭП |
| Утверждён: | 20.11.1990 Госкомархитектура (209) |
| Расположен в: | |
| Заменяет собой: |























































