Информационная система
«Ёшкин Кот»

Скачать базу одним архивом
Скачать обновления
История создания базы
Карта сайта

Скачать Серия 1.090.1-1/88 Выпуск 2-5. Панели наружных стен трехслойные на жестких связях. Пространственные каркасы. Рабочие чертежи

Дата актуализации: 10.08.2017

Серия 1.090.1-1/88

Выпуск 2-5. Панели наружных стен трехслойные на жестких связях. Пространственные каркасы. Рабочие чертежи

Обозначение: Серия 1.090.1-1/88
Обозначение англ: Series 1.090.1-1/88
Статус:не определен законодательством
Название рус.:Выпуск 2-5. Панели наружных стен трехслойные на жестких связях. Пространственные каркасы. Рабочие чертежи
Дата добавления в базу:01.09.2013
Дата актуализации:05.05.2017
Дата введения:01.10.1989
Оглавление:1.090.1-1/88.2-5-ТТ Технические требования
1.090.1-1/88.2-5-К1 Пространственные каркасы КПН-1,КПН-2
1.090.1-1/88.2-5-К2 Пространственные каркасы КПН-3,КПН-4
1.090.1-1/88.2-5-К3 Пространственные каркасы КПН-5Т,КПН-6Т
1.090.1-1/88.2-5-К4 Пространственные каркасы КПН-5Н,КПН-6Н
1.090.1-1/88.2-5-К5 Пространственные каркасы КПН-7,КПН-8
1.090.1-1/88.2-5-К6 Пространственные каркасы КПН-9,КПН-10
1.090.1-1/88.2-5-К7 Пространственные каркасы КПН-11,КПН-12
1.090.1-1/88.2-5-К8 Пространственные каркасы КПН-13,КПН-14
1.090.1-1/88.2-5-К9 Пространственные каркасы КПН-15,КПН-16
1.090.1-1/88.2-5-К10 Пространственные каркасы КПН-17Т,КПН-18Т
1.090.1-1/88.2-5-К11 Пространственные каркасы КПН-17Н,КПН-18Н
1.090.1-1/88.2-5-К12 Пространственные каркасы КПН-19Т,КПН-20Т
1.090.1-1/88.2-5-К13 Пространственные каркасы КПН-19Н,КПН-20Н
1.090.1-1/88.2-5-К14 Пространственные каркасы КПН-21,КПН-22
1.090.1-1/88.2-5-К15 Пространственные каркасы КПН-23,КПН-24
1.090.1-1/88.2-5-К16 Пространственные каркасы КПН-25Т,КПН-26Т
1.090.1-1/88.2-5-К17 Пространственные каркасы КПН-25Н,КПН-26Н
1.090.1-1/88.2-5-К18 Пространственные каркасы КПН-27Т,КПН-28Т
1.090.1-1/88.2-5-К19 Пространственные каркасы КПН-27Н,КПН-28Н
1.090.1-1/88.2-5-К20 Пространственные каркасы КПН-29Т,КПН-30Т
1.090.1-1/88.2-5-К21 Пространственные каркасы КПН-29Н,КПН-30Н
1.090.1-1/88.2-5-К22 Пространственные каркасы КПН-31Т,КПН-32Т
1.090.1-1/88.2-5-К23 Пространственные каркасы КПН-31Н,КПН-32Н
1.090.1-1/88.2-5-К24 Пространственные каркасы КПН-33Т,КПН-34Т
1.090.1-1/88.2-5-К25 Пространственные каркасы КПН-33Н,КПН-34Н
1.090.1-1/88.2-5-К26 Пространственные каркасы КПН-35Т,КПН-36Т
1.090.1-1/88.2-5-К27 Пространственные каркасы КПН-35Н,КПН-36Н
1.090.1-1/88.2-5-К28 Пространственные каркасы КПН-37,КПН-38
1.090.1-1/88.2-5-К29 Пространственные каркасы КПН-39,КПН-40
1.090.1-1/88.2-5-К30 Пространственные каркасы КПН-41...КПН-44
1.090.1-1/88.2-5-К31 Пространственные каркасы КПН-45,КПН-46
1.090.1-1/88.2-5-К32 Пространственные каркасы КПН-47,КПН-48
1.090.1-1/88.2-5-К33 Пространственные каркасы КПН-49Т,КПН-50Т
1.090.1-1/88.2-5-К34 Пространственные каркасы КПН-49Н,КПН-50Н
1.090.1-1/88.2-5-К35 Пространственные каркасы КПН-51,КПН-52
1.090.1-1/88.2-5-К36 Пространственные каркасы КПН-53,КПН-54
1.090.1-1/88.2-5-К37 Пространственные каркасы КПН-55Т,КПН-56Т
1.090.1-1/88.2-5-К38 Пространственные каркасы КПН-55Н,КПН-56Н
1.090.1-1/88.2-5-К39 Пространственные каркасы КПН-57,КПН-58
1.090.1-1/88.2-5-К40 Пространственные каркасы КПН-59,КПН-60
1.090.1-1/88.2-5-К41 Пространственные каркасы КПН-61,КПН-62
1.090.1-1/88.2-5-К42 Пространственные каркасы КПН-63,КПН-64
1.090.1-1/88.2-5-К43 Пространственные каркасы КПН-65Т,КПН-66Т
1.090.1-1/88.2-5-К44 Пространственные каркасы КПН-67Т,КПН-68Т
1.090.1-1/88.2-5-К45 Пространственные каркасы КПН-69Т,КПН-70Т
1.090.1-1/88.2-5-К46 Пространственные каркасы КПН-65Н,КПН-66Н
1.090.1-1/88.2-5-К47 Пространственные каркасы КПН-67Н,КПН-69Н
1.090.1-1/88.2-5-К48 Пространственные каркасы КПН-69Н,КПН-70Н
1.090.1-1/88.2-5-К49 Пространственные каркасы КПН-71Т,КПН-72Т
1.090.1-1/88.2-5-К50 Пространственные каркасы КПН-73Т,КПН-74Т
1.090.1-1/88.2-5-К51 Пространственные каркасы КПН-75Т,КПН-76Т
1.090.1-1/88.2-5-К52 Пространственные каркасы КПН-77Т,КПН-78Т
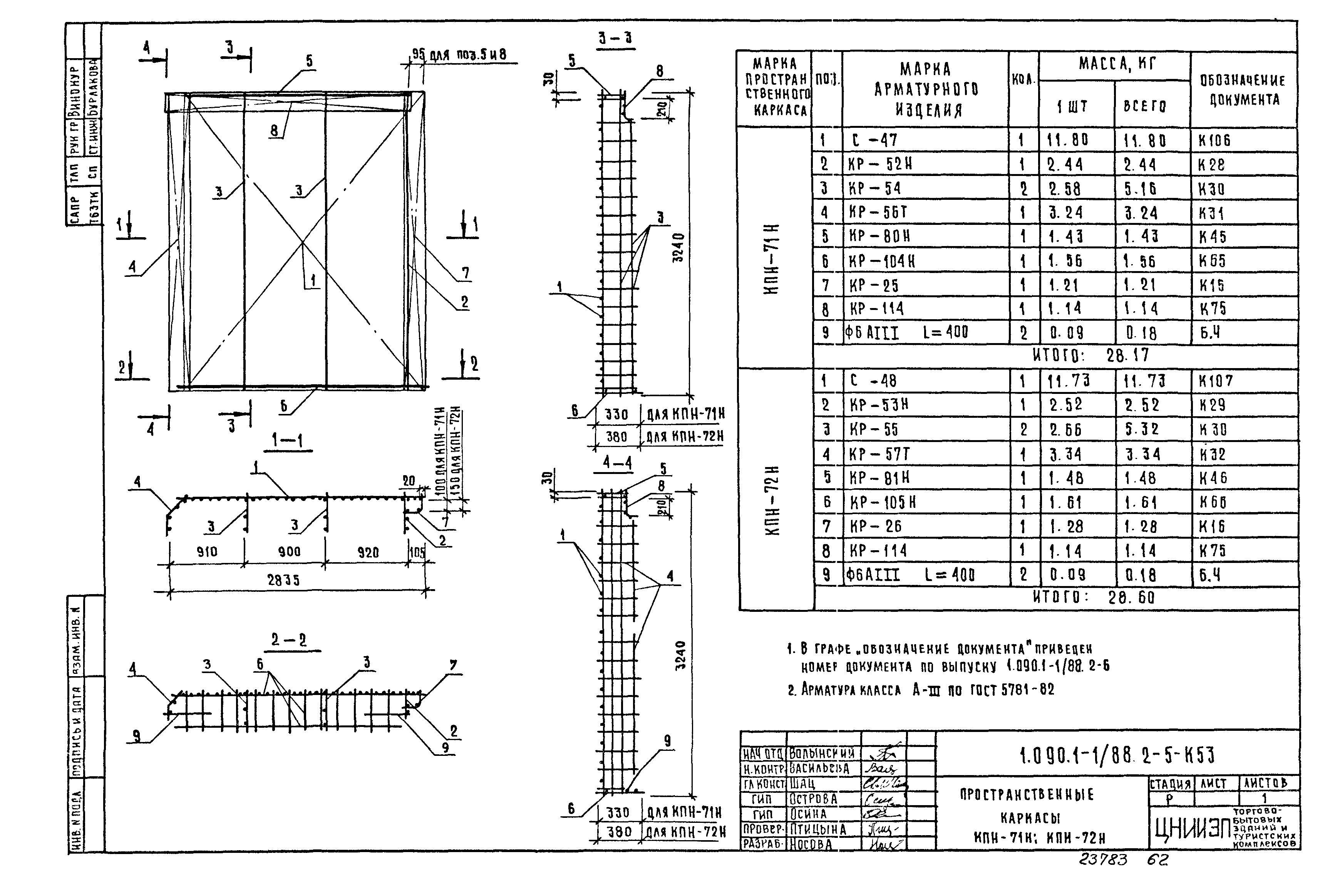
1.090.1-1/88.2-5-К53 Пространственные каркасы КПН-71Н,КПН-72Н
1.090.1-1/88.2-5-К54 Пространственные каркасы КПН-73Н,КПН-74Н
1.090.1-1/88.2-5-К55 Пространственные каркасы КПН-75Н,КПН-76Н
1.090.1-1/88.2-5-К56 Пространственные каркасы КПН-77Н,КПН-78Н
1.090.1-1/88.2-5-К57 Пространственные каркасы КПН-79,КПН-80
1.090.1-1/88.2-5-К58 Пространственные каркасы КПН-81,КПН-82
1.090.1-1/88.2-5-К59 Пространственные каркасы КПН-83Т,КПН-84Т
1.090.1-1/88.2-5-К60 Пространственные каркасы КПН-83Н,КПН-84Н
1.090.1-1/88.2-5-К61 Пространственные каркасы КПВ-1
1.090.1-1/88.2-5-К62 Пространственные каркасы КПВ-2
1.090.1-1/88.2-5-К63 Пространственные каркасы КПВ-3
1.090.1-1/88.2-5-К64 Пространственные каркасы КПВ-4
1.090.1-1/88.2-5-К65 Пространственные каркасы КПВ-5
1.090.1-1/88.2-5-К66 Пространственные каркасы КПВ-6
1.090.1-1/88.2-5-К67 Пространственные каркасы КПВ-7Т;КПВ-7Н
1.090.1-1/88.2-5-К68 Пространственные каркасы КПВ-8Т;КПВ-8Н
1.090.1-1/88.2-5-К69 Пространственные каркасы КПВ-9Т;КПВ-9Н
1.090.1-1/88.2-5-К70 Пространственные каркасы КПВ-10Т;КПВ-10Н
1.090.1-1/88.2-5-К71 Пространственные каркасы КПВ-11Т;КПВ-11Н
1.090.1-1/88.2-5-К72 Пространственные каркасы КПВ-12Т;КПВ-12Н
1.090.1-1/88.2-5-К73 Пространственные каркасы КПВ-13;КПВ-14
1.090.1-1/88.2-5-К74 Пространственные каркасы КПВ-15Т;КПВ-15Н
1.090.1-1/88.2-5-К75 Пространственные каркасы КПВ-16
1.090.1-1/88.2-5-К76 Пространственные каркасы КПВ-17
1.090.1-1/88.2-5-К77 Пространственные каркасы КПВ-18
1.090.1-1/88.2-5-К78 Пространственные каркасы КПВ-19
1.090.1-1/88.2-5-К79 Пространственные каркасы КПВ-20
1.090.1-1/88.2-5-К80 Пространственные каркасы КПВ-21Т,КПВ-21Н
1.090.1-1/88.2-5-К81 Пространственные каркасы КПВ-22Т,КПВ-22Н
1.090.1-1/88.2-5-К82 Пространственные каркасы КПВ-23Т,КПВ-23Н
1.090.1-1/88.2-5-К83 Сборные каркасы СКР-1,СКР-2
1.090.1-1/88.2-5-К84 Сборные каркасы СКР-3,СКР-4
1.090.1-1/88.2-5-К85 Сборные каркасы СКР-5Т,СКР-6Т
1.090.1-1/88.2-5-К86 Сборные каркасы СКР-5Н,СКР-6Н
1.090.1-1/88.2-5-К87 Сборные каркасы СКР-7,СКР-8
1.090.1-1/88.2-5-К88 Сборные каркасы СКР-9Т,СКР-9Н
1.090.1-1/88.2-5-К89 Сборные каркасы СКР-10Т,СКР-10Н
Разработан: ЦНИИЭП торгово-бытовых зданий и туристских комплексов
Утверждён:28.03.1989 Госстрой СССР (Государственный комитет Совета Министров СССР по делам строительства) (USSR Gosstroy АЧ-14)
Издан: ЦИТП Госстроя СССР (CITP, Gosstroy (USSR) 1989 г. )
Расположен в:Техническая документация Экология СТРОИТЕЛЬНЫЕ МАТЕРИАЛЫ И СТРОИТЕЛЬСТВО Конструкции зданий Бетонные конструкции Строительство Справочные документы Типовые строительные конструкции, изделия и узлы Общероссийский строительный каталог Строительные конструкции, изделия и узлы зданий и сооружений для всех видов строительства Конструкции, изделия и узлы зданий Несущие конструкции двухэтажных и многоэтажных зданий Крупнопанельные и монолитные здания. Узлы
Серия 1.090.1-1/88Серия 1.090.1-1/88Серия 1.090.1-1/88Серия 1.090.1-1/88Серия 1.090.1-1/88Серия 1.090.1-1/88Серия 1.090.1-1/88Серия 1.090.1-1/88Серия 1.090.1-1/88Серия 1.090.1-1/88Серия 1.090.1-1/88Серия 1.090.1-1/88Серия 1.090.1-1/88Серия 1.090.1-1/88Серия 1.090.1-1/88Серия 1.090.1-1/88Серия 1.090.1-1/88Серия 1.090.1-1/88Серия 1.090.1-1/88Серия 1.090.1-1/88Серия 1.090.1-1/88Серия 1.090.1-1/88Серия 1.090.1-1/88Серия 1.090.1-1/88Серия 1.090.1-1/88Серия 1.090.1-1/88Серия 1.090.1-1/88Серия 1.090.1-1/88Серия 1.090.1-1/88Серия 1.090.1-1/88Серия 1.090.1-1/88Серия 1.090.1-1/88Серия 1.090.1-1/88Серия 1.090.1-1/88Серия 1.090.1-1/88Серия 1.090.1-1/88Серия 1.090.1-1/88Серия 1.090.1-1/88Серия 1.090.1-1/88Серия 1.090.1-1/88Серия 1.090.1-1/88Серия 1.090.1-1/88Серия 1.090.1-1/88Серия 1.090.1-1/88Серия 1.090.1-1/88Серия 1.090.1-1/88Серия 1.090.1-1/88Серия 1.090.1-1/88Серия 1.090.1-1/88Серия 1.090.1-1/88Серия 1.090.1-1/88Серия 1.090.1-1/88Серия 1.090.1-1/88Серия 1.090.1-1/88Серия 1.090.1-1/88Серия 1.090.1-1/88Серия 1.090.1-1/88Серия 1.090.1-1/88Серия 1.090.1-1/88Серия 1.090.1-1/88Серия 1.090.1-1/88Серия 1.090.1-1/88Серия 1.090.1-1/88Серия 1.090.1-1/88Серия 1.090.1-1/88Серия 1.090.1-1/88Серия 1.090.1-1/88Серия 1.090.1-1/88Серия 1.090.1-1/88Серия 1.090.1-1/88Серия 1.090.1-1/88Серия 1.090.1-1/88Серия 1.090.1-1/88Серия 1.090.1-1/88Серия 1.090.1-1/88Серия 1.090.1-1/88Серия 1.090.1-1/88Серия 1.090.1-1/88Серия 1.090.1-1/88Серия 1.090.1-1/88Серия 1.090.1-1/88Серия 1.090.1-1/88Серия 1.090.1-1/88Серия 1.090.1-1/88Серия 1.090.1-1/88Серия 1.090.1-1/88Серия 1.090.1-1/88Серия 1.090.1-1/88Серия 1.090.1-1/88Серия 1.090.1-1/88Серия 1.090.1-1/88

© 2013 Ёшкин Кот :-) Карта сайта