Информационная система
«Ёшкин Кот»

Скачать базу одним архивом
Скачать обновления
История создания базы
Карта сайта

Скачать Серия 1.090.1-1/88 Выпуск 2-4. Панели наружных стен трехслойные на жестких связях. Рабочие чертежи

Дата актуализации: 10.08.2017

Серия 1.090.1-1/88

Выпуск 2-4. Панели наружных стен трехслойные на жестких связях. Рабочие чертежи

Обозначение: Серия 1.090.1-1/88
Обозначение англ: Series 1.090.1-1/88
Статус:действует
Название рус.:Выпуск 2-4. Панели наружных стен трехслойные на жестких связях. Рабочие чертежи
Дата добавления в базу:01.09.2013
Дата актуализации:05.05.2017
Оглавление:1.090.1-1/88.2-4-ТТ Технические требования
1.090.1-1/88.2-4-К1 Панели 2ПСО30.33.3,5-ПТ,2ПСО30.33.4,0-ПТ
1.090.1-1/88.2-4-К2 Панели 3ПСО30.33.3,5-ПТ,3ПСО30.33.4,0-ПТ
1.090.1-1/88.2-4-К3 Панели 7ПСО30.33.3,5-ПТ,7ПСО30.33.4,0-ПТ
1.090.1-1/88.2-4-К4 Панели 8ПСО30.33.3,5-ПТ,8ПСО30.33.4,0-ПТ
1.090.1-1/88.2-4-К5 Панели 9ПСО30.33.3,5-ПТ,9ПСО30.33.4,0-ПТ
1.090.1-1/88.2-4-К6 Панели 10ПСО30.33.3,5-ПТ,10ПСО30.33.4,0-ПТ
1.090.1-1/88.2-4-К7 Панели 2ПСО28.33.3,5-ПТ,2ПСО28.33.4,0-ПТ
1.090.1-1/88.2-4-К8 Панели 3ПСО29.33.3,5-ПТ,3ПСО29.33.4,0-ПТ
1.090.1-1/88.2-4-К9 Панели 4ПСО29.33.3,5-ПТ,4ПСО29.33.4,0-ПТ
1.090.1-1/88.2-4-К10 Панели 2ПСО60.33.3,5-ПТ,2ПСО60.33.4,0-ПТ
1.090.1-1/88.2-4-К11 Панели ПСЛ30.33.3,5-ПТ,ПСЛ30.33.4,0-ПТ
1.090.1-1/88.2-4-К12 Панели ПСЛ28.33.3,5-ПТ,ПСЛ28.33.4,0-ПТ
1.090.1-1/88.2-4-К13 Панели 1ПСЛ29.33.3,5-ПТ,1ПСЛ29.33.4,0-ПТ
1.090.1-1/88.2-4-К14 Панели 2ПСЛ29.33.3,5-ПТ,2ПСЛ29.33.4,0-ПТ
1.090.1-1/88.2-4-К15 Панели 3ПСД30.33.3,5-ПТ,3ПСД30.33.4,0-ПТ
1.090.1-1/88.2-4-К16 Панели 4ПСД30.33.3,5-ПТ,4ПСД30.33.4,0-ПТ
1.090.1-1/88.2-4-К17 Панели 1ПСД28.33.3,5-ПТ,1ПСД28.33.4,0-ПТ
1.090.1-1/88.2-4-К18 Панели 1ПСД29.33.3,5-ПТ,1ПСД29.33.4,0-ПТ
1.090.1-1/88.2-4-К19 Панели 2ПСД29.33.3,5-ПТ,2ПСД29.33.4,0-ПТ
1.090.1-1/88.2-4-К20 Панели 5ПСД29.33.3,5-ПТ,5ПСД29.33.4,0-ПТ
1.090.1-1/88.2-4-К21 Панели 6ПСД29.33.3,5-ПТ,6ПСД29.33.4,0-ПТ
1.090.1-1/88.2-4-К22 Панели ПС30.33.3,5-ПТ,ПС30.33.4,0-ПТ
1.090.1-1/88.2-4-К23 Панели ПС18.33.3,5-ПТ,ПС18.33.4,0-ПТ
1.090.1-1/88.2-4-К24 Панели ПС12.33.3,5-ПТ,ПС12.33.4,0-ПТ
1.090.1-1/88.2-4-К25 Панели ПС30.16.3,5-ПТ,ПС30.16.4,0-ПТ
1.090.1-1/88.2-4-К26 Панели 1ПС33.33.3,5-ПТ,ПС33.33.4,0-ПТ
1.090.1-1/88.2-4-К27 Панели 1ПС21.33.3,5-ПТ,ПС21.33.4,0-ПТ
1.090.1-1/88.2-4-К28 Панели 1ПС15.33.3,5-ПТ,1ПС15.33.4,0-ПТ
1.090.1-1/88.2-4-К29 Панели 2ПС33.33.3,5-ПТ,2ПС33.33.4,0-ПТ
1.090.1-1/88.2-4-К30 Панели 2ПС21.33.3,5-ПТ,2ПС21.33.4,0-ПТ
1.090.1-1/88.2-4-К31 Панели 2ПС15.33.3,5-ПТ,2ПС15.33.4,0-ПТ
1.090.1-1/88.2-4-К32 Панели 1ПС29.33.3,5-ПТ,1ПС29.33.4,0-ПТ
1.090.1-1/88.2-4-К33 Панели 1ПС17.33.3,5-ПТ,1ПС17.33.4,0-ПТ
1.090.1-1/88.2-4-К34 Панели 1ПС11.33.3,5-ПТ,1ПС11.33.4,0-ПТ
1.090.1-1/88.2-4-К35 Панели 1ПС29.16.3,5-ПТ,1ПС29.16.4,0-ПТ
1.090.1-1/88.2-4-К36 Панели 2ПС29.33.3,5-ПТ,2ПС29.33.4,0-ПТ
1.090.1-1/88.2-4-К37 Панели 2ПС17.33.3,5-ПТ,2ПС17.33.4,0-ПТ
1.090.1-1/88.2-4-К38 Панели 2ПС11.33.3,5-ПТ,2ПС11.33.4,0-ПТ
1.090.1-1/88.2-4-К39 Панели 2ПС29.16.3,5-ПТ,2ПС29.16.4,0-ПТ
1.090.1-1/88.2-4-К40 Панели ПС28.33.3,5-ПТ,ПС28.33.4,0-ПТ
1.090.1-1/88.2-4-К41 Панели ПС28.16.3,5-ПТ,ПС28.16.4,0-ПТ
1.090.1-1/88.2-4-К42 Панели 1ПС14.33.3,5-ПТ,1ПС14.33.4,0-ПТ
1.090.1-1/88.2-4-К43 Панели 2ПС14.33.3,5-ПТ,2ПС14.33.4,0-ПТ
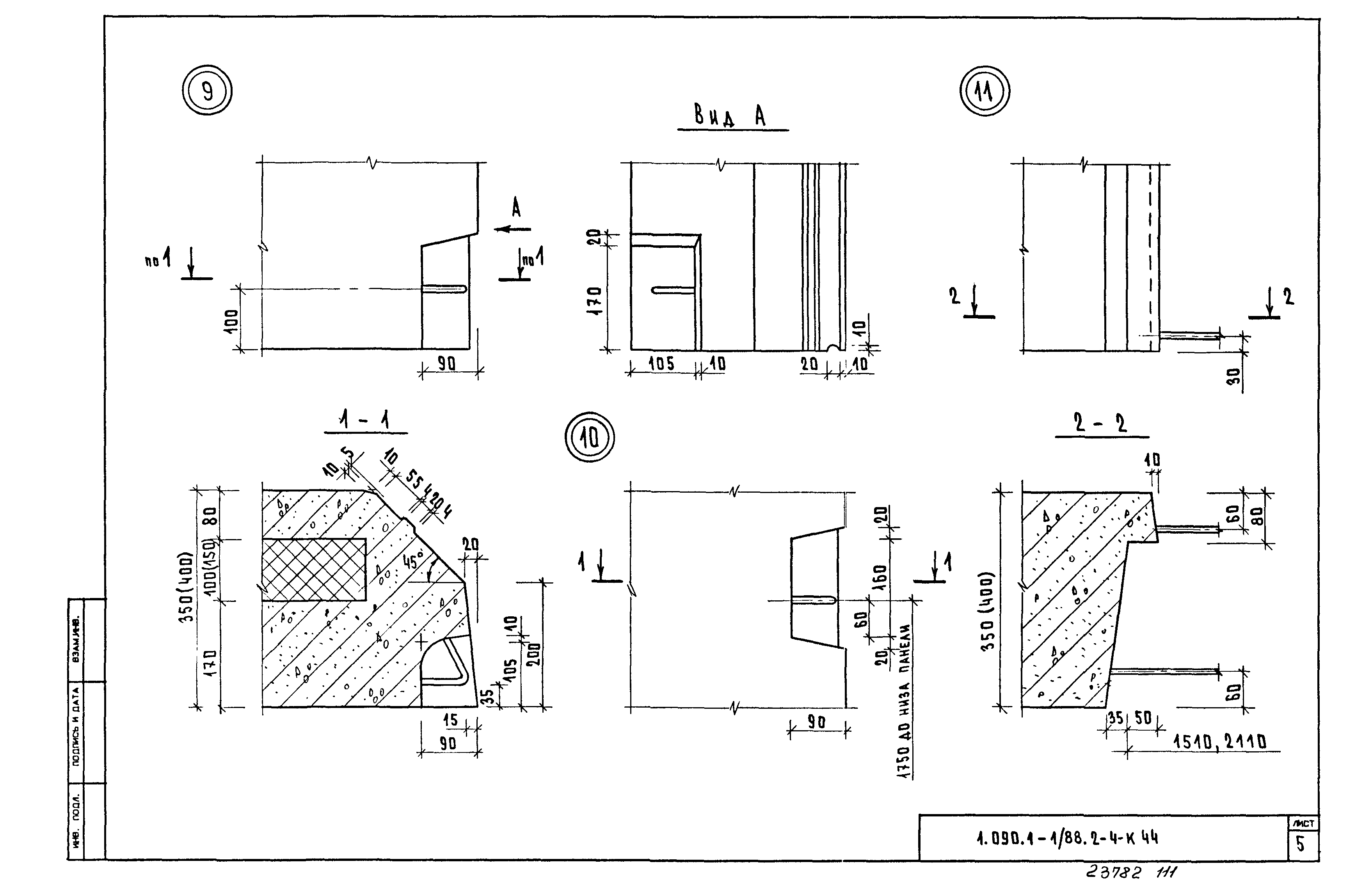
1.090.1-1/88.2-4-К44 Узлы опалубочные
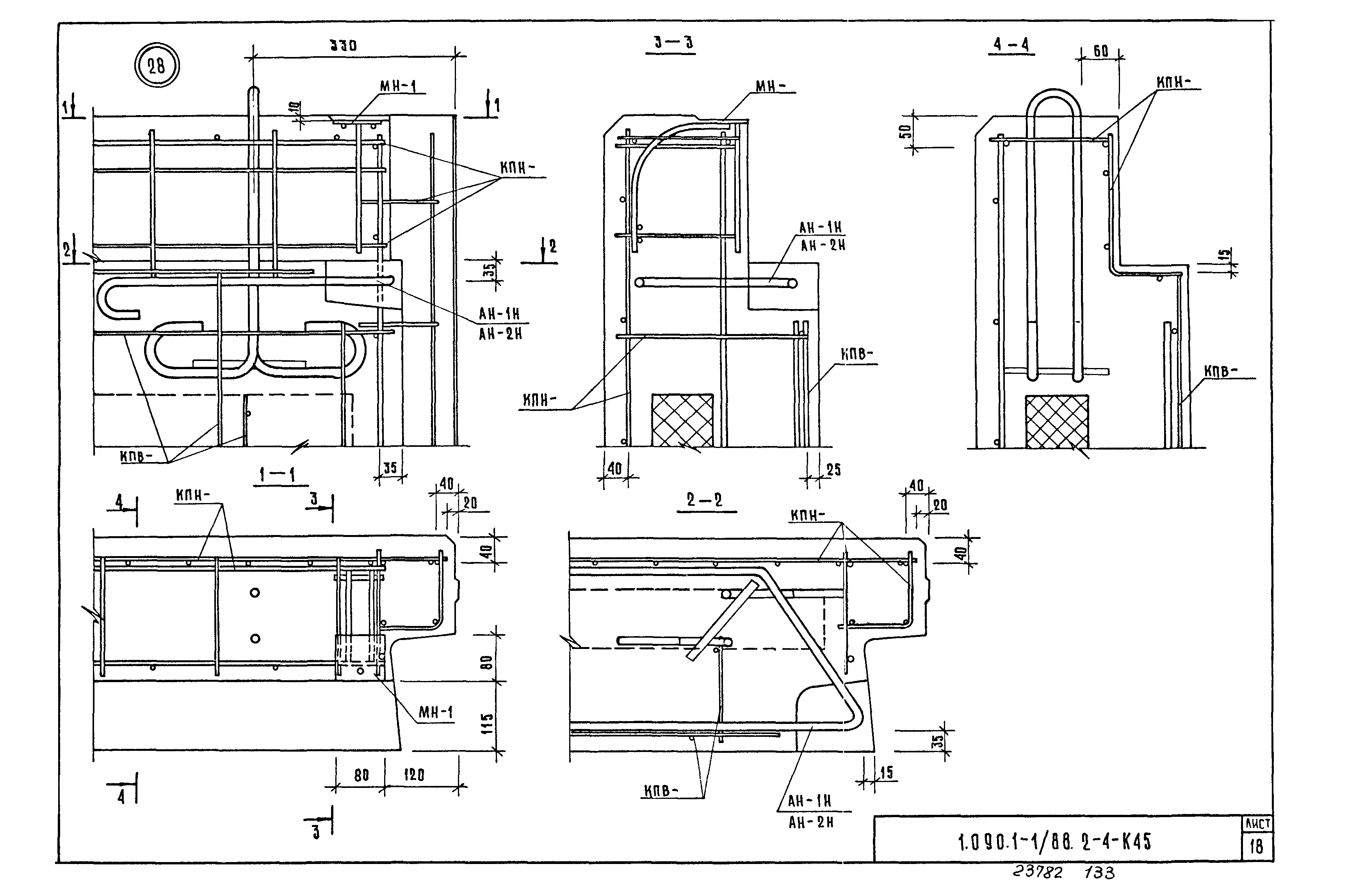
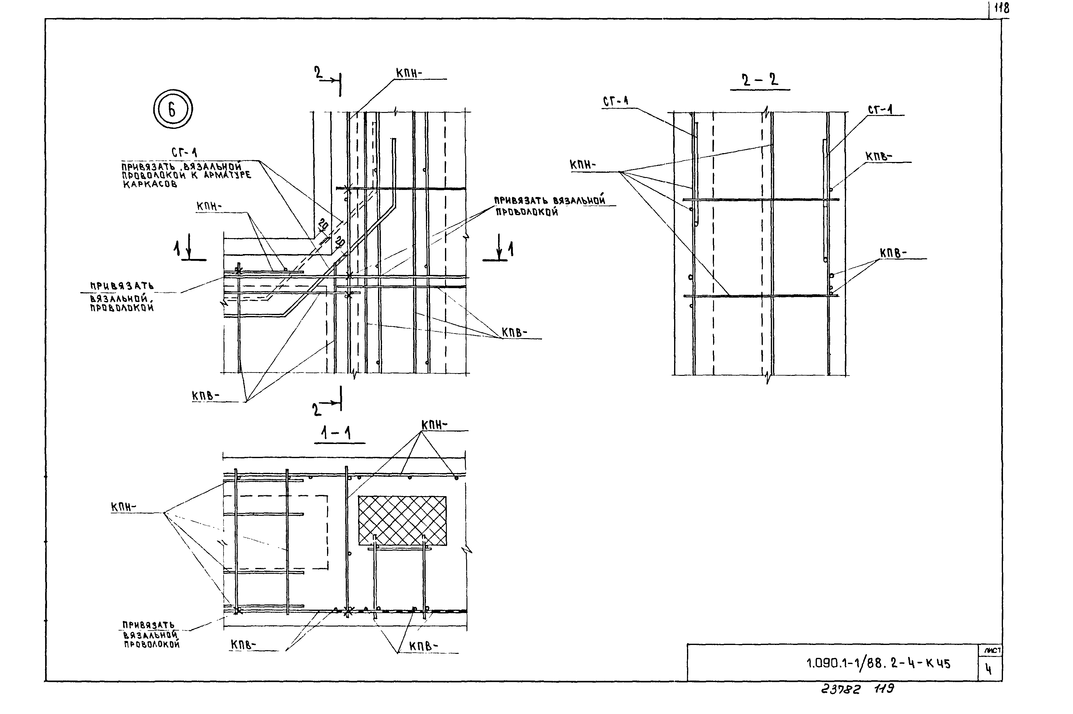
1.090.1-1/88.2-4-К45 Узлы армирования
1.090.1-1/88.2-4-К46 Узлы установки деревянных коробок окон и дверей
1.090.1-1/88.2-4-РС Ведомость расхода стали
Разработан: ЦНИИЭП торгово-бытовых зданий и туристских комплексов
Утверждён:28.03.1989 Госстрой СССР (Государственный комитет Совета Министров СССР по делам строительства) (USSR Gosstroy АЧ-14)
Издан: ЦИТП Госстроя СССР (CITP, Gosstroy (USSR) 1989 г. )
Расположен в:Техническая документация Экология СТРОИТЕЛЬНЫЕ МАТЕРИАЛЫ И СТРОИТЕЛЬСТВО Конструкции зданий Бетонные конструкции Строительство Справочные документы Типовые строительные конструкции, изделия и узлы Общероссийский строительный каталог Строительные конструкции, изделия и узлы зданий и сооружений для всех видов строительства Конструкции, изделия и узлы зданий Несущие конструкции двухэтажных и многоэтажных зданий Крупнопанельные и монолитные здания. Узлы
Серия 1.090.1-1/88Серия 1.090.1-1/88Серия 1.090.1-1/88Серия 1.090.1-1/88Серия 1.090.1-1/88Серия 1.090.1-1/88Серия 1.090.1-1/88Серия 1.090.1-1/88Серия 1.090.1-1/88Серия 1.090.1-1/88Серия 1.090.1-1/88Серия 1.090.1-1/88Серия 1.090.1-1/88Серия 1.090.1-1/88Серия 1.090.1-1/88Серия 1.090.1-1/88Серия 1.090.1-1/88Серия 1.090.1-1/88Серия 1.090.1-1/88Серия 1.090.1-1/88Серия 1.090.1-1/88Серия 1.090.1-1/88Серия 1.090.1-1/88Серия 1.090.1-1/88Серия 1.090.1-1/88Серия 1.090.1-1/88Серия 1.090.1-1/88Серия 1.090.1-1/88Серия 1.090.1-1/88Серия 1.090.1-1/88Серия 1.090.1-1/88Серия 1.090.1-1/88Серия 1.090.1-1/88Серия 1.090.1-1/88Серия 1.090.1-1/88Серия 1.090.1-1/88Серия 1.090.1-1/88Серия 1.090.1-1/88Серия 1.090.1-1/88Серия 1.090.1-1/88Серия 1.090.1-1/88Серия 1.090.1-1/88Серия 1.090.1-1/88Серия 1.090.1-1/88Серия 1.090.1-1/88Серия 1.090.1-1/88Серия 1.090.1-1/88Серия 1.090.1-1/88Серия 1.090.1-1/88Серия 1.090.1-1/88Серия 1.090.1-1/88Серия 1.090.1-1/88Серия 1.090.1-1/88Серия 1.090.1-1/88Серия 1.090.1-1/88Серия 1.090.1-1/88Серия 1.090.1-1/88Серия 1.090.1-1/88Серия 1.090.1-1/88Серия 1.090.1-1/88Серия 1.090.1-1/88Серия 1.090.1-1/88Серия 1.090.1-1/88Серия 1.090.1-1/88Серия 1.090.1-1/88Серия 1.090.1-1/88Серия 1.090.1-1/88Серия 1.090.1-1/88Серия 1.090.1-1/88Серия 1.090.1-1/88Серия 1.090.1-1/88Серия 1.090.1-1/88Серия 1.090.1-1/88Серия 1.090.1-1/88Серия 1.090.1-1/88Серия 1.090.1-1/88Серия 1.090.1-1/88Серия 1.090.1-1/88Серия 1.090.1-1/88Серия 1.090.1-1/88Серия 1.090.1-1/88Серия 1.090.1-1/88Серия 1.090.1-1/88Серия 1.090.1-1/88Серия 1.090.1-1/88Серия 1.090.1-1/88Серия 1.090.1-1/88Серия 1.090.1-1/88Серия 1.090.1-1/88Серия 1.090.1-1/88Серия 1.090.1-1/88Серия 1.090.1-1/88Серия 1.090.1-1/88Серия 1.090.1-1/88Серия 1.090.1-1/88Серия 1.090.1-1/88Серия 1.090.1-1/88Серия 1.090.1-1/88Серия 1.090.1-1/88Серия 1.090.1-1/88Серия 1.090.1-1/88Серия 1.090.1-1/88Серия 1.090.1-1/88Серия 1.090.1-1/88Серия 1.090.1-1/88Серия 1.090.1-1/88Серия 1.090.1-1/88Серия 1.090.1-1/88Серия 1.090.1-1/88Серия 1.090.1-1/88Серия 1.090.1-1/88Серия 1.090.1-1/88Серия 1.090.1-1/88Серия 1.090.1-1/88Серия 1.090.1-1/88Серия 1.090.1-1/88Серия 1.090.1-1/88Серия 1.090.1-1/88Серия 1.090.1-1/88Серия 1.090.1-1/88Серия 1.090.1-1/88Серия 1.090.1-1/88Серия 1.090.1-1/88Серия 1.090.1-1/88Серия 1.090.1-1/88Серия 1.090.1-1/88Серия 1.090.1-1/88Серия 1.090.1-1/88Серия 1.090.1-1/88Серия 1.090.1-1/88Серия 1.090.1-1/88Серия 1.090.1-1/88Серия 1.090.1-1/88Серия 1.090.1-1/88Серия 1.090.1-1/88Серия 1.090.1-1/88Серия 1.090.1-1/88Серия 1.090.1-1/88Серия 1.090.1-1/88Серия 1.090.1-1/88Серия 1.090.1-1/88Серия 1.090.1-1/88Серия 1.090.1-1/88Серия 1.090.1-1/88Серия 1.090.1-1/88Серия 1.090.1-1/88Серия 1.090.1-1/88Серия 1.090.1-1/88Серия 1.090.1-1/88Серия 1.090.1-1/88Серия 1.090.1-1/88Серия 1.090.1-1/88Серия 1.090.1-1/88Серия 1.090.1-1/88Серия 1.090.1-1/88Серия 1.090.1-1/88Серия 1.090.1-1/88Серия 1.090.1-1/88Серия 1.090.1-1/88Серия 1.090.1-1/88

© 2013 Ёшкин Кот :-) Карта сайта