Информационная система
«Ёшкин Кот»

Скачать базу одним архивом
Скачать обновления
История создания базы
Карта сайта

Скачать Серия 1.090.1-1/88 Выпуск 0-0. Состав серии. Номенклатура изделий

Дата актуализации: 10.08.2017

Серия 1.090.1-1/88

Выпуск 0-0. Состав серии. Номенклатура изделий

Обозначение: Серия 1.090.1-1/88
Обозначение англ: Series 1.090.1-1/88
Статус:не определен законодательством
Название рус.:Выпуск 0-0. Состав серии. Номенклатура изделий
Дата добавления в базу:01.09.2013
Дата актуализации:05.05.2017
Дата введения:01.10.1989
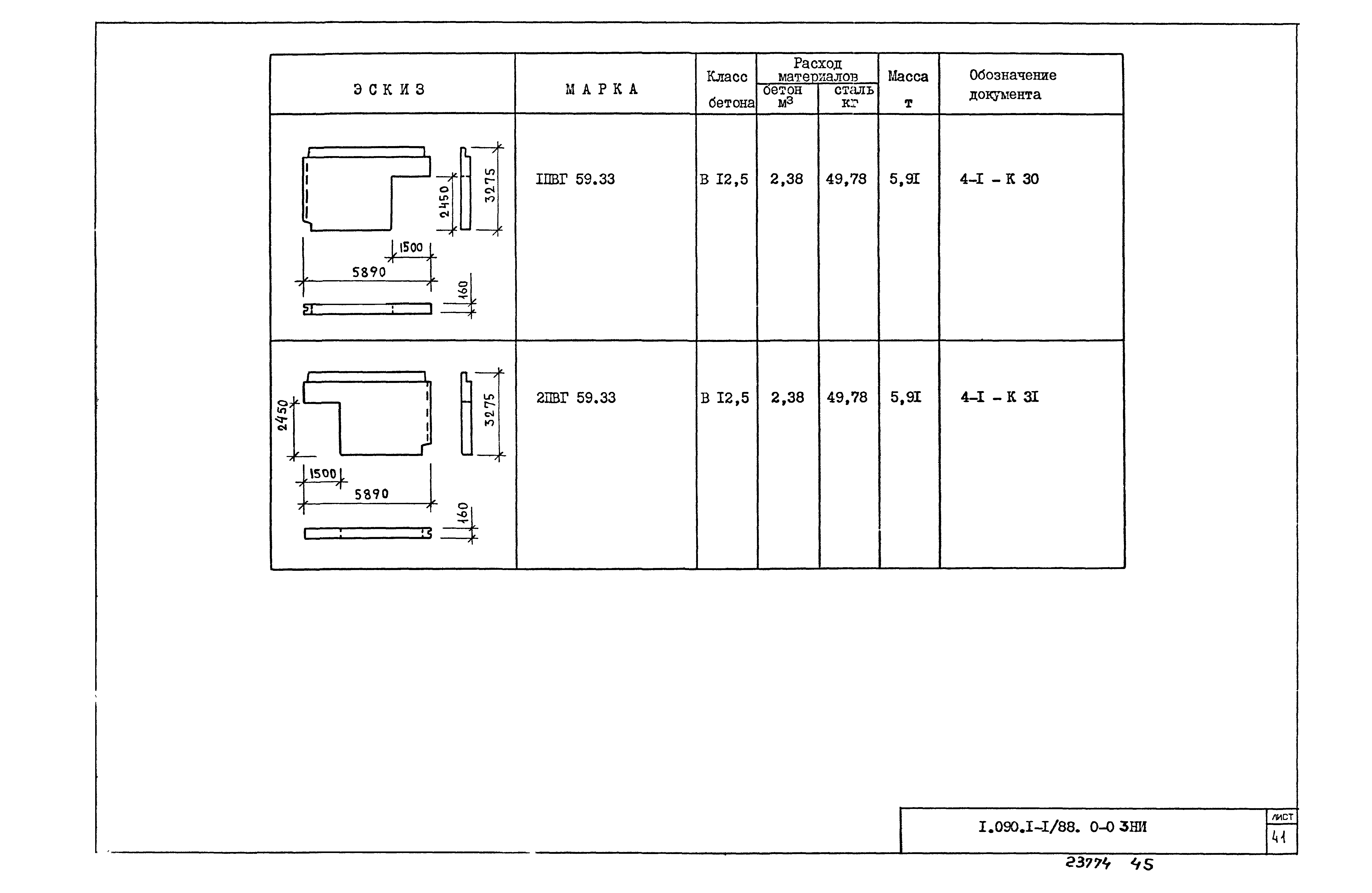
Оглавление:1.090.1-1/88.0-0 1ПЗ Состав серии
1.090.1-1/88.0-0 2ПЗ Пояснительная записка
1.090.1-1/88.0-0 3НИ Номенклатура изделий
Разработан: ЦНИИЭП торгово-бытовых зданий и туристских комплексов
Утверждён:28.03.1989 Госстрой СССР (Государственный комитет Совета Министров СССР по делам строительства) (USSR Gosstroy АЧ-14)
Издан: ЦИТП Госстроя СССР (CITP, Gosstroy (USSR) 1989 г. )
Расположен в:Техническая документация Экология СТРОИТЕЛЬНЫЕ МАТЕРИАЛЫ И СТРОИТЕЛЬСТВО Конструкции зданий Бетонные конструкции Строительство Справочные документы Типовые строительные конструкции, изделия и узлы Общероссийский строительный каталог Строительные конструкции, изделия и узлы зданий и сооружений для всех видов строительства Конструкции, изделия и узлы зданий Несущие конструкции двухэтажных и многоэтажных зданий Крупнопанельные и монолитные здания. Узлы
Серия 1.090.1-1/88Серия 1.090.1-1/88Серия 1.090.1-1/88Серия 1.090.1-1/88Серия 1.090.1-1/88Серия 1.090.1-1/88Серия 1.090.1-1/88Серия 1.090.1-1/88Серия 1.090.1-1/88Серия 1.090.1-1/88Серия 1.090.1-1/88Серия 1.090.1-1/88Серия 1.090.1-1/88Серия 1.090.1-1/88Серия 1.090.1-1/88Серия 1.090.1-1/88Серия 1.090.1-1/88Серия 1.090.1-1/88Серия 1.090.1-1/88Серия 1.090.1-1/88Серия 1.090.1-1/88Серия 1.090.1-1/88Серия 1.090.1-1/88Серия 1.090.1-1/88Серия 1.090.1-1/88Серия 1.090.1-1/88Серия 1.090.1-1/88Серия 1.090.1-1/88Серия 1.090.1-1/88Серия 1.090.1-1/88Серия 1.090.1-1/88Серия 1.090.1-1/88Серия 1.090.1-1/88Серия 1.090.1-1/88Серия 1.090.1-1/88Серия 1.090.1-1/88Серия 1.090.1-1/88Серия 1.090.1-1/88Серия 1.090.1-1/88Серия 1.090.1-1/88Серия 1.090.1-1/88Серия 1.090.1-1/88Серия 1.090.1-1/88Серия 1.090.1-1/88Серия 1.090.1-1/88Серия 1.090.1-1/88Серия 1.090.1-1/88Серия 1.090.1-1/88Серия 1.090.1-1/88

© 2013 Ёшкин Кот :-) Карта сайта