| ||||||||||||||||||||||||||||
Скачать Серия 2.400-12.93 Выпуск 2. Изделия соединительные. Рабочие чертежиДата актуализации: 10.08.2017
|
| Обозначение: | Серия 2.400-12.93 |
| Обозначение англ: | Series 2.400-12.93 |
| Статус: | не определен законодательством |
| Название рус.: | Выпуск 2. Изделия соединительные. Рабочие чертежи |
| Дата добавления в базу: | 01.09.2013 |
| Дата актуализации: | 05.05.2017 |
| Дата введения: | 01.01.1994 |
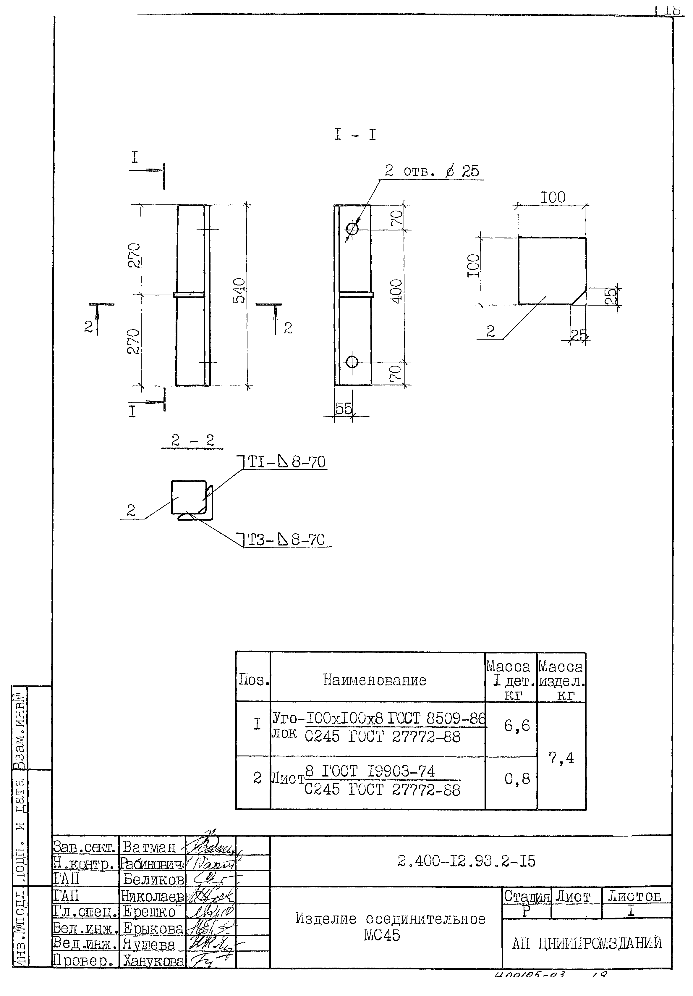
| Оглавление: | 2.400-12.93.2-ТТ Технические требования 2.400-12.93.2-01 Изделие соединительное (МС1...МС6) 2.400-12.93.2-02 Изделие соединительное МС7 2.400-12.93.2-03 Изделие соединительное МС8 2.400-12.93.2-04 Изделие соединительное (МС9,МС10) 2.400-12.93.2-05 Изделие соединительное (МС11,МС12) 2.400-12.93.2-06 Изделие соединительное (МС13...МС15),МС16 2.400-12.93.2-07 Изделие соединительное (МС17...МС21) 2.400-12.93.2-08 Изделие соединительное (МС22...МС25) 2.400-12.93.2-09 Изделие соединительное (МС26...МС28); (МС29...МС31) 2.400-12.93.2-10 Изделие соединительное (МС32...МС35) 2.400-12.93.2-11 Изделие соединительное МС36 2.400-12.93.2-12 Изделие соединительное (МС37...МС40) 2.400-12.93.2-13 Изделие соединительное (МС41,МС42) 2.400-12.93.2-14 Изделие соединительное МС43,МС44 2.400-12.93.2-15 Изделие соединительное МС45 2.400-12.93.2-16 Изделие соединительное (МС46,МС47),МС48 2.400-12.93.2-17 Изделие соединительное (МС49,МС50) 2.400-12.93.2-18 Изделие соединительное МС51 2.400-12.93.2-19 Изделие соединительное (МС52...МС54) 2.400-12.93.2-20 Изделие соединительное МС55 2.400-12.93.2-21 Изделие соединительное (МС56,МС57) |
| Разработан: | ЦНИИпромзданий |
| Утверждён: | 21.05.1993 Госстрой России (Russian Federation Gosstroy 9-3-2/100) |
| Расположен в: | |
| Заменяет собой: |
























