Скачать Серия 1.820.9-1 Выпуск 3. Рамы деревянные клееные, связи, прогоны, элементы фахверка, соединительные изделия. Рабочие чертежиДата актуализации: 10.08.2017 Серия 1.820.9-1
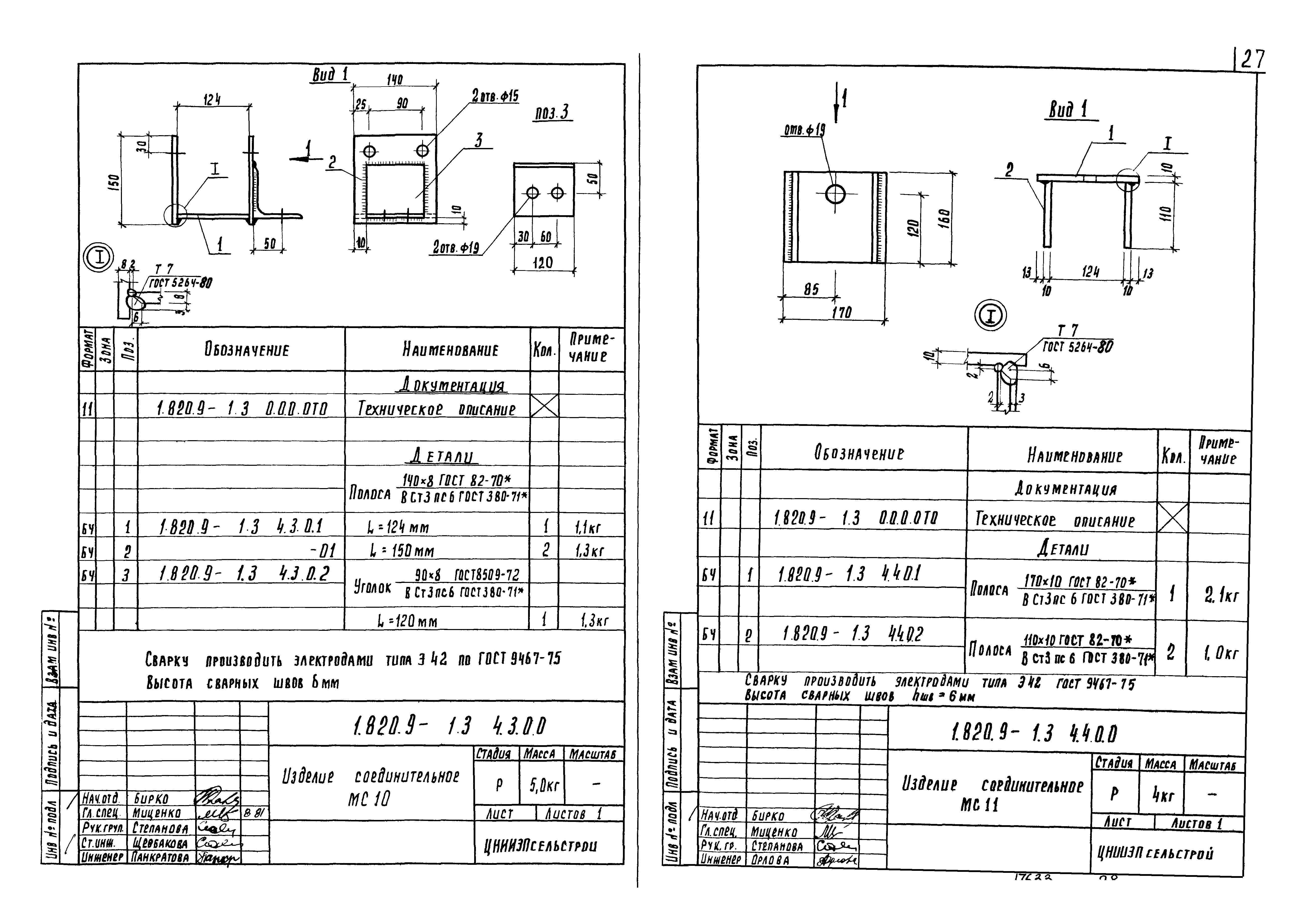
Выпуск 3. Рамы деревянные клееные, связи, прогоны, элементы фахверка, соединительные изделия. Рабочие чертежиОбозначение: | Серия 1.820.9-1 | Обозначение англ: | Series 1.820.9-1 | Статус: | действует | Название рус.: | Выпуск 3. Рамы деревянные клееные, связи, прогоны, элементы фахверка, соединительные изделия. Рабочие чертежи | Дата добавления в базу: | 01.09.2013 | Дата актуализации: | 05.05.2017 | Дата введения: | 01.01.1982 | Оглавление: | 1.820.9-1.3.0.0.0.0ТО Техническое описание 1.820.9-1.3.1.0.0.0 Рама РД 1.820.9-1.3.1.0.0.0 СБ Рама РД. Сборочный чертеж 1.820.9-1.3.1.1.0.0 Полурама ПРД 1.820.9-1.3.1.1.0.0 СБ Полурама ПРД. Сборочный чертеж 1.820.9-1.3.1.1.0.7 Накладка Д2 1.820.9-1.3.1.1.1.0 Элемент деревянный Д1 1.820.9-1.3.1.1.1.0 СБ Элемент деревянный Д1. Сборочный чертеж 1.820.9-1.3.1.1.2.0 Элемент стальной М1 1.820.9-1.3.1.1.2.0 СБ Элемент стальной М1. Сборочный чертеж 1.820.9-1.3.1.1.3.0 Элемент стальной М2 1.820.9-1.3.1.1.3.0 СБ Элемент стальной М2. Сборочный чертеж 1.820.9-1.3.1.1.4.0 Шпилька М3,МС12 1.820.9-1.3.1.1.4.0 СБ Шпилька М3,МС12. Сборочный чертеж 1.820.9-1.3.2.0.0.1 Связь С1,С2,С3,С4. Распорка Р1,Р2 1.820.9-1.3.2.1.0.0 Изделие соединительное МС1,МС2 1.820.9-1.3.2.1.0.0 СБ Изделие соединительное МС1,МС2. Сборочный чертеж 1.820.9-1.3.2.2.0.0 Изделие соединительное МС3 1.820.9-1.3.2.3.0.0 Изделие соединительное МС4 1.820.9-1.3.2.3.0.0 СБ Изделие соединительное МС4. Сборочный чертеж 1.820.9-1.3.2.0.0.2 Изделие соединительное МС5,МС6 1.820.9-1.3.3.0.0.1 Прогон ПК1-ПК3 1.820.9-1.3.3.1.0.0 Изделие соединительное МС7 1.820.9-1.3.3.1.0.0 СБ Изделие соединительное МС7. Сборочный чертеж 1.820.9-1.3.3.2.0.0 Изделие соединительное МС8 1.820.9-1.3.4.1.0.0 Стойка фахверка СФ1,СФ2 1.820.9-1.3.4.1.0.0 СБ Стойка фахверка СФ1,СФ2. Сборочный чертеж 1.820.9-1.3.4.0.0.1 Ригель РФ1-РФ12 1.820.9-1.3.4.2.0.0 Изделие соединительное МС9п,МС9л 1.820.9-1.3.4.2.0.0 СБ Изделие соединительное МС9п,МС9л. Сборочный чертеж 1.820.9-1.3.4.3.0.0 Изделие соединительное МС10 1.820.9-1.3.4.4.0.0 Изделие соединительное МС11 1.820.9-1.3.4.0.0.2 Изделие соединительное МС13 1.820.9-1.3.5.1.0.0 Изделие соединительное МС14 1.820.9-1.3.5.1.0.0 СБ Изделие соединительное МС14. Сборочный чертеж | Разработан: | ЦНИИСК им. В.А. Кучеренко ЦНИИЭПсельстрой Минсельстроя СССР
| Утверждён: | 05.06.1981 Госстрой СССР (Государственный комитет Совета Министров СССР по делам строительства) (USSR Gosstroy 2/3-262)
| Издан: | ЦИТП Госстроя СССР (CITP, Gosstroy (USSR) 1981 г. )
| Расположен в: |
|
                             
|