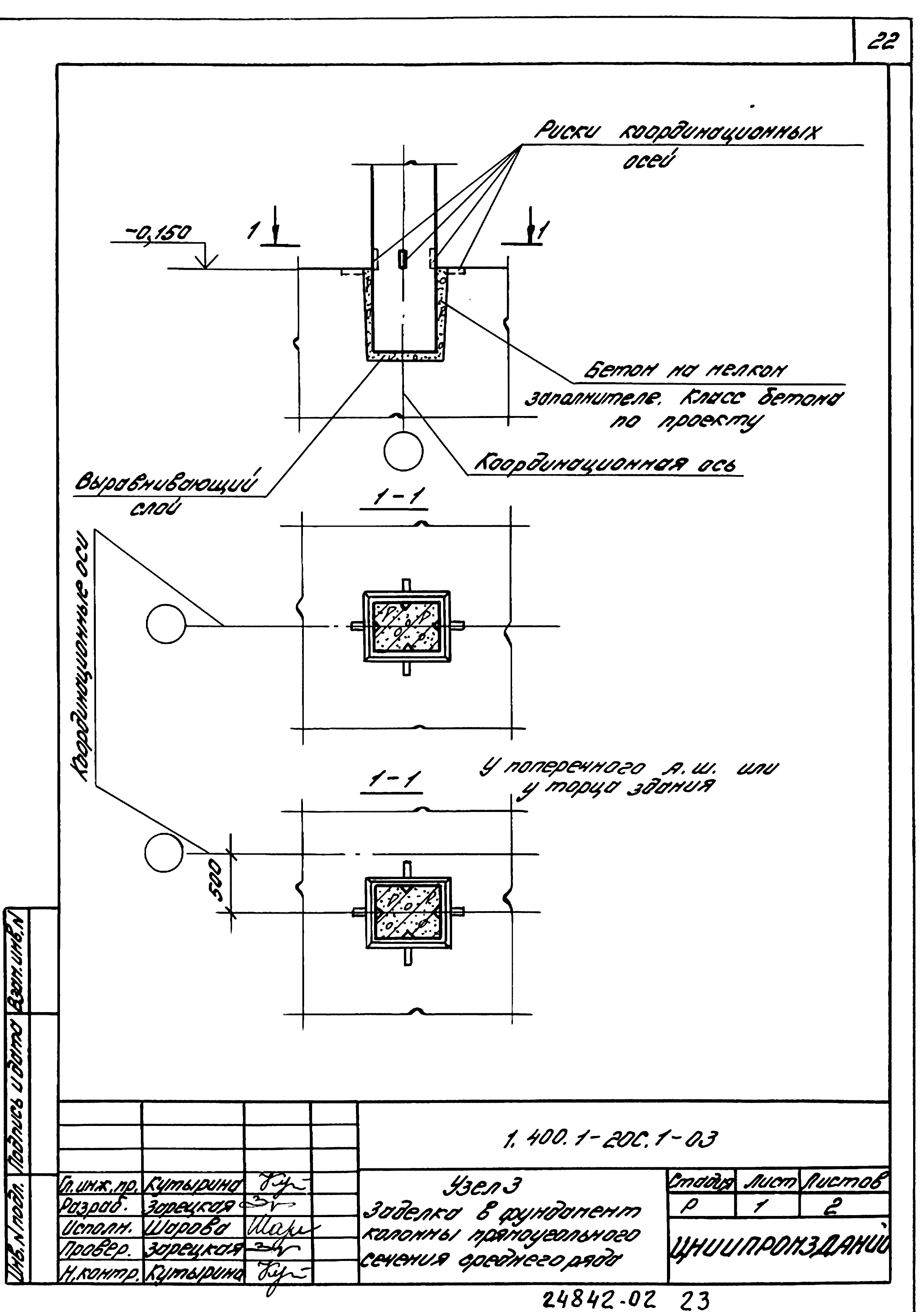
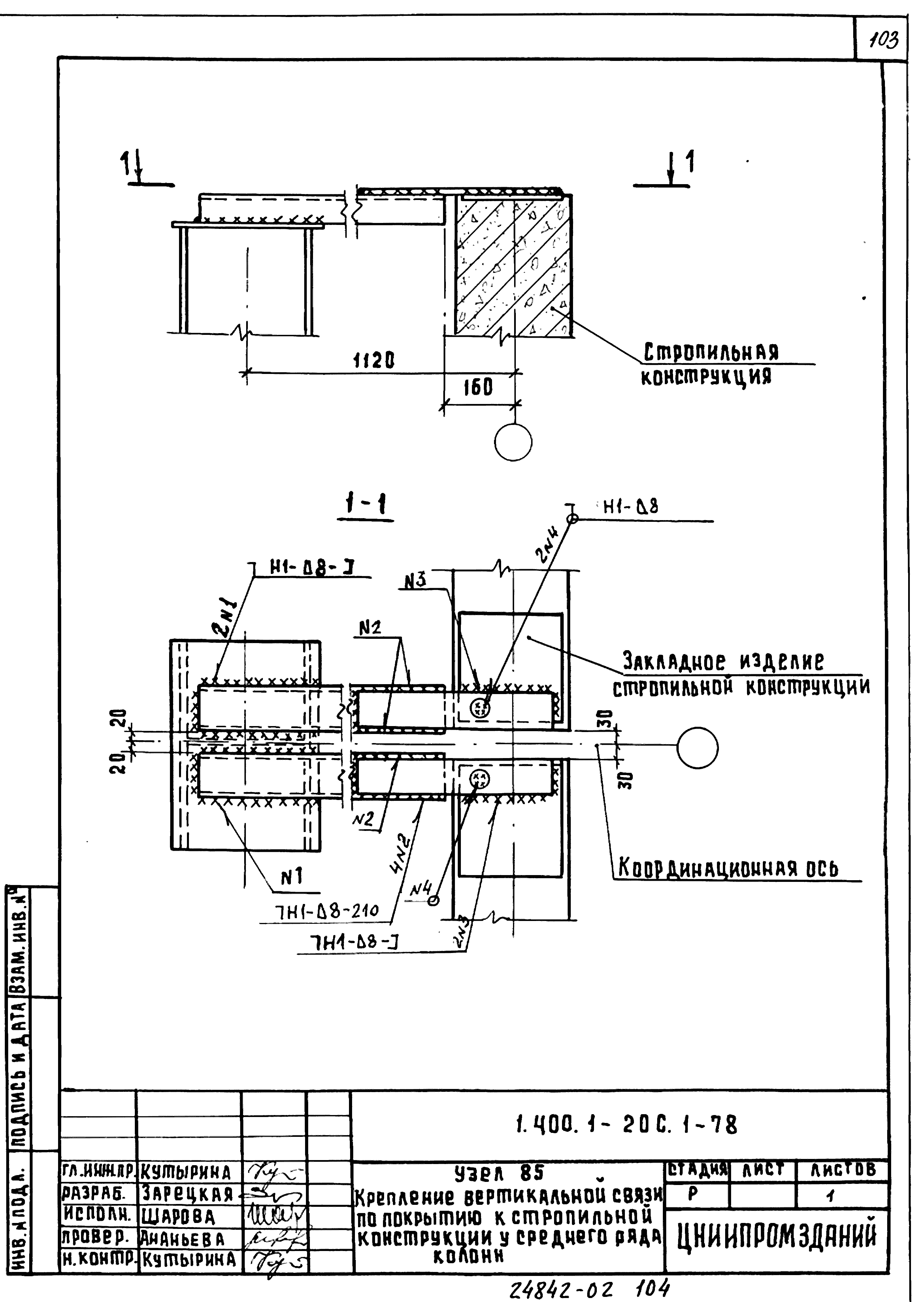
Скачать Серия 1.400.1-20с Выпуск 1. Монтажные узлы сопряжений сборных железобетонных конструкций. Рабочие чертежиДата актуализации: 10.08.2017 Серия 1.400.1-20с
Выпуск 1. Монтажные узлы сопряжений сборных железобетонных конструкций. Рабочие чертежиОбозначение: | Серия 1.400.1-20с | Обозначение англ: | Series 1.400.1-20с | Статус: | не определен законодательством | Название рус.: | Выпуск 1. Монтажные узлы сопряжений сборных железобетонных конструкций. Рабочие чертежи | Дата добавления в базу: | 01.09.2013 | Дата актуализации: | 05.05.2017 | Дата введения: | 01.06.1991 | Разработан: | ЦНИИпромзданий
| Утверждён: | 03.11.1989 Госстрой СССР (Государственный комитет Совета Министров СССР по делам строительства) (USSR Gosstroy )
| Расположен в: |
|
                                                                                                                                                    
|