Скачать Серия 1.426.2-6 Выпуск 1/91. Балки пролетом 3, 4 и 6 м. Чертежи КМДата актуализации: 10.08.2017 Серия 1.426.2-6
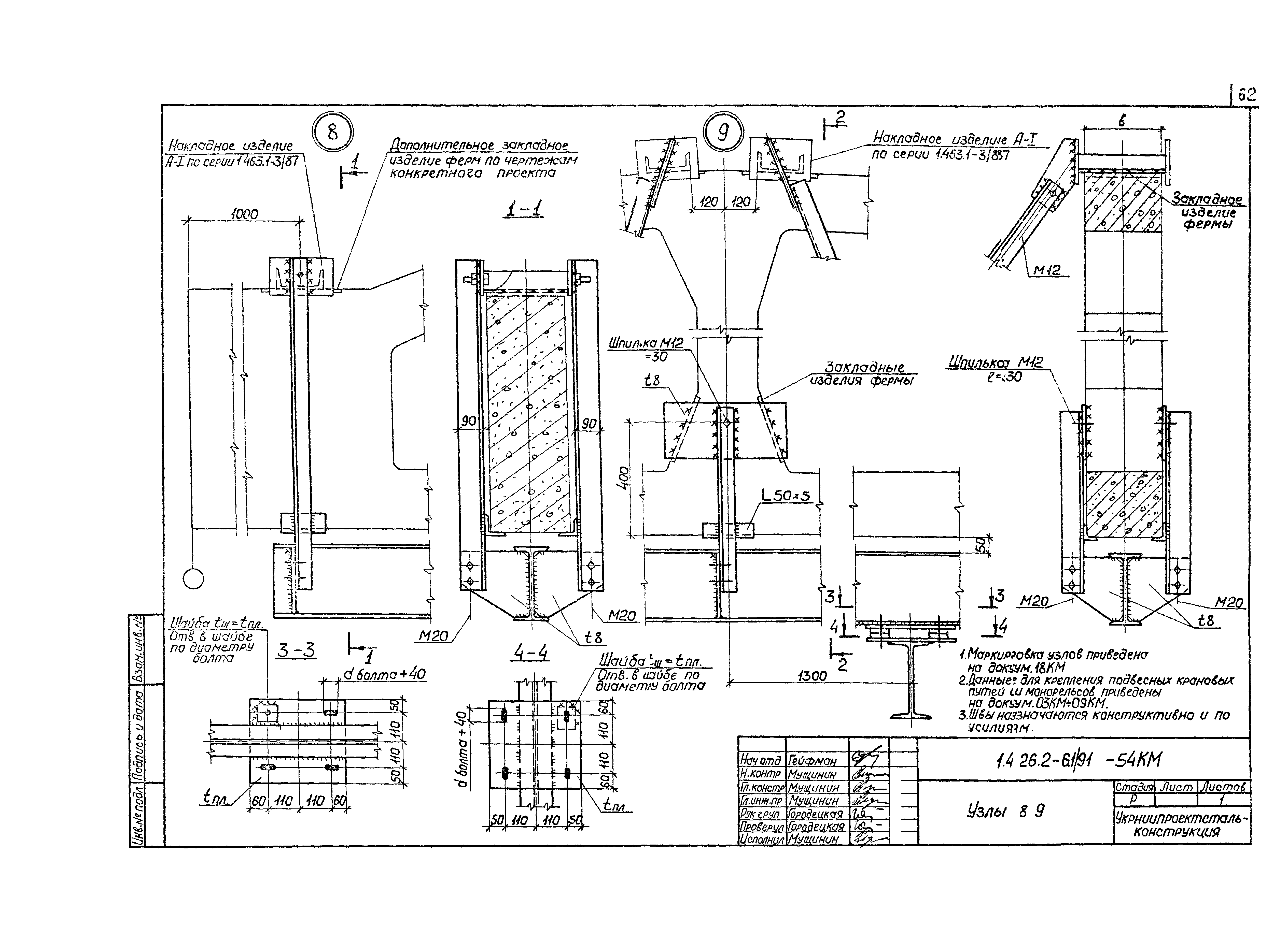
Выпуск 1/91. Балки пролетом 3, 4 и 6 м. Чертежи КМОбозначение: | Серия 1.426.2-6 | Обозначение англ: | Series 1.426.2-6 | Статус: | не определен законодательством | Название рус.: | Выпуск 1/91. Балки пролетом 3, 4 и 6 м. Чертежи КМ | Дата добавления в базу: | 01.09.2013 | Дата актуализации: | 05.05.2017 | Дата введения: | 01.01.1992 | Оглавление: | 1.426.2-6.1/91-ПЗ Пояснительная записка 1.426.2-6.1/91-01КМ Крановые нагрузки по ГОСТ7890-84. Однопролетные краны 1.426.2-6.1/91-02КМ Крановые нагрузки по ГОСТ7890-84. Двухпролетные краны 1.426.2-6.1/91-03КМ Данные для выбора сечений балок путей подвесных электрических кранов пролетом 6 м и их креплений 1.426.2-6.1/91-04КМ Данные для выбора сечений балок путей подвесных кранов блочно-модульной конструкции пролетом 6 м и их креплений 1.426.2-6.1/91-05КМ Данные для выбора сечений балок путей подвесных электрических кранов пролетом 4 и 3 м и их креплений 1.426.2-6.1/91-06КМ Данные для выбора сечений балок путей подвесных кранов блочно-модульной конструкции пролетом 4 м и их креплений 1.426.2-6.1/91-07КМ Данные для выбора монорельсов пролетом 6 м и их креплений 1.426.2-6.1/91-08КМ Данные для выбора монорельсов пролетом 4 м и их креплений 1.426.2-6.1/91-09КМ Данные для выбора монорельсов пролетом 3 м и их креплений 1.426.2-6.1/91-10КМ Пример схем путей подвесных кранов в здании с покрытием из ж.б. балок для плоской кровли по серии 1.462.1-10/89 1.426.2-6.1/91-11КМ Пример схем путей подвесных кранов в здании с покрытием из ж.б. двухскатных балок по серии 1.462.1-16/88 1.426.2-6.1/91-12КМ Пример схем путей подвесных кранов в здании с покрытием из ж.б. двухскатных балок по серии 1.462.1-3/89,1.462-12с 1.426.2-6.1/91-13КМ Пример схем путей подвесных кранов в здании с покрытием из ж.б. балок по серии 1.462.1-10/89 1.426.2-6.1/91-14КМ Пример схем путей подвесных кранов в здании с покрытием из ж.б. стропильных ферм по серии 1.063.1-1 пролетами 12 и 18 м 1.426.2-6.1/91-15КМ Пример схем путей подвесных кранов в здании с покрытием из ж.б. сегментных ферм по серии 1.463.1-16 пролетом 24 м 1.426.2-6.1/91-16КМ Пример схем путей подвесных кранов в здании с покрытием из ж.б. сегментных ферм по серии 1.463.1-16 пролетом 18.0 м 1.426.2-6.1/91-17КМ Пример схем путей подвесных кранов в здании с покрытием из ж.б. безраскосных стропильных ферм по серии 1.463.1-3/87 пролетами 18 и 24 м. Вариант 1 1.426.2-6.1/91-18КМ Пример схем путей подвесных кранов в здании с покрытием из ж.б. безраскосных стропильных ферм по серии 1.463.1-3/87 пролетами 18 и 24 м. Вариант 2 1.426.2-6.1/91-19КМ Пример схем путей подвесных кранов в здании с покрытием из стальных ферм по серии 1.460.2-10/88 пролетом 18 м 1.426.2-6.1/91-20КМ Пример схем путей подвесных кранов в здании с покрытием из стальных стропильных ферм по серии 1.460.2-10/88 пролетом 24 м 1.426.2-6.1/91-21КМ Пример схем путей подвесных кранов в здании с покрытием из стальных стропильных ферм по серии 1.460.2-10/88 пролетами 30 и 36 м 1.426.2-6.1/91-22КМ Пример схем путей подвесных кранов в здании с покрытием из стальных стропильных ферм по шифру 11-2450 пролетом 24 м 1.426.2-6.1/91-23КМ Пример схем путей подвесных кранов в здании с покрытием из стальных стропильных ферм по серии 1.460.3-22 с пролетами 18 м, 24 м и 30 м 1.426.2-6.1/91-24КМ Пример схем путей подвесных кранов в здании с покрытием из стальных стропильных ферм по серии 1.460.3-17 пролетом 24 м 1.426.2-6.1/91-25КМ Пример схем путей подвесных кранов в здании с покрытием из стальных стропильных ферм по серии 1.460.3-4/907 пролетом 24 м 1.426.2-6.1/91-26КМ Пример схем путей подвесных кранов в здании с блоками покрытий из стержневых элементов по шифру 774 пролетами 18 м и 24 м. Вариант 1 1.426.2-6.1/91-27КМ Пример схем путей подвесных кранов в здании с блоками покрытий из стержневых элементов по шифру 774 пролетами 18 м и 24 м. Вариант 2 1.426.2-6.1/91-28КМ Пример схем путей подвесных кранов в здании с покрытием из структурных блоков размером 24-12 м по серии 1.460-6/81 1.426.2-6.1/91-29КМ Пример схем монорельсов в здании с покрытием из ж.б. безраскосных стропильных ферм по серии 1.463.1-3/87 пролетами 18 и 24 м 1.426.2-6.1/91-30КМ Пример схем монорельсов в здании с покрытием из ж.б. сегментных стропильных ферм по серии 1.463.1-16 пролетами 18 и 24 м 1.426.2-6.1/91-31КМ Пример схем монорельсов в здании с покрытием из ж.б. стропильных ферм по серии 1.063.1-1 пролетами 6,9 и 12 м 1.426.2-6.1/91-32КМ Пример схем монорельсов в здании с покрытием из ж.б. стропильных ферм по серии 1.063.1-1 пролетом 18 м 1.426.2-6.1/91-33КМ Пример схем монорельсов в здании с покрытием из ж.б. двухскатных решетчатых балок по сериям 1.462.1-3/89 и 1.462-12с пролетами 12 и 18 м 1.426.2-6.1/91-34КМ Пример схем монорельсов в здании с покрытием из ж.б. балок по серии 1.462.1-1/81 пролетом 12 м 1.426.2-6.1/91-35КМ Пример схем монорельсов в здании с покрытием из ж.б. балок для плоской кровли по серии 1.462.1-10/89 пролетами 6 и 9 м 1.426.2-6.1/91-36КМ Пример схем монорельсов в здании с покрытием из двухскатных ж.б. балок по серии 1.462.1-16/88 1.426.2-6.1/91-37КМ Пример схем монорельсов в здании с покрытием из стальных стропильных ферм по серии 1.460.2-10/88 пролетом 24 м 1.426.2-6.1/91-38КМ Пример схем монорельсов в здании с покрытием из стальных стропильных ферм по серии 1.460.2-10/88 пролетами 18 и 24 м 1.426.2-6.1/91-39КМ Пример схем монорельсов в здании с покрытием из стальных стропильных ферм по шифру 11-2450 пролетом 24 м 1.426.2-6.1/91-40КМ Пример схем монорельсов в здании с покрытием из стальных ферм по серии 1.460.3-14/90 типа "Молодечно" 1.426.2-6.1/91-41КМ Пример схем монорельсов в здании с покрытием из стальных ферм по серии 1.460.3-22 1.426.2-6.1/91-42КМ Пример схем монорельсов в здании с покрытием из стальных стропильных ферм по серии 1.460.3-17 1.426.2-6.1/91-43КМ Пример схем монорельсов в здании с блоками покрытий из стержневых элементов по шифру 774 пролетами 18 и 24 м 1.426.2-6.1/91-44КМ Пример схем монорельсов в здании с покрытием из структурных блоков, размером 24х12 м по серии 1.460-6/81 1.426.2-6.1/91-45КМ Пример схем криволинейных участков монорельсового пути в здании с покрытием из ж.б. сегментных ферм 1.426.2-6.1/91-46КМ Пример схем криволинейных участков монорельсового пути в здании с покрытием из стальных стропильных ферм 1.426.2-6.1/91-47КМ Определение числа промежуточных опор на кривых участках монорельсового пути 1.426.2-6.1/91-48КМ Узел 1 1.426.2-6.1/91-49КМ Узлы 2,3 1.426.2-6.1/91-50КМ Узел 4 1.426.2-6.1/91-51КМ Узел 5 1.426.2-6.1/91-52КМ Узел 6 1.426.2-6.1/91-53КМ Узел 7 1.426.2-6.1/91-54КМ Узлы 8,9 1.426.2-6.1/91-55КМ Узел 10 1.426.2-6.1/91-56КМ Узел 11 1.426.2-6.1/91-57КМ Узел 12 1.426.2-6.1/91-58КМ Узел 13 1.426.2-6.1/91-59КМ Узел 14 1.426.2-6.1/91-60КМ Узлы 15,16 1.426.2-6.1/91-61КМ Узлы 17,18 1.426.2-6.1/91-62КМ Узел 19 1.426.2-6.1/91-63КМ Узел 20 1.426.2-6.1/91-64КМ Узел 21 1.426.2-6.1/91-65КМ Узел 22 1.426.2-6.1/91-66КМ Узлы 23,24 1.426.2-6.1/91-67КМ Узлы 25,26 1.426.2-6.1/91-68КМ Узел 27 1.426.2-6.1/91-69КМ Узлы 28,29 1.426.2-6.1/91-70КМ Узлы 30,31,32 1.426.2-6.1/91-71КМ Узел 33 1.426.2-6.1/91-72КМ Узлы 34,35 1.426.2-6.1/91-73КМ Узлы 36,37 1.426.2-6.1/91-74КМ Узлы 38,39 1.426.2-6.1/91-75КМ Узел 40 1.426.2-6.1/91-76КМ Узел 41 1.426.2-6.1/91-77КМ Узел 42 1.426.2-6.1/91-78КМ Узел 43 1.426.2-6.1/91-79КМ Узел 44 1.426.2-6.1/91-80КМ Узлы 45,46 1.426.2-6.1/91-81КМ Узел 47 1.426.2-6.1/91-82КМ Узел 48 1.426.2-6.1/91-83КМ Узел 49 1.426.2-6.1/91-84КМ Узел 50 1.426.2-6.1/91-85КМ Узлы 51,52 1.426.2-6.1/91-86КМ Узлы 53,54 1.426.2-6.1/91-87КМ Узел 55 | Разработан: | Укрниипроектстальконструкция
| Утверждён: | 11.09.1991 Главпроект Госстроя СССР (53)
| Издан: | Уралтиппроект (1992 г. )
| Расположен в: |
| Заменяет собой: | |
                                                                                              
|