Информационная система
«Ёшкин Кот»

Скачать базу одним архивом
Скачать обновления
История создания базы
Карта сайта

Скачать Серия 1.426.2-7 Выпуск 6. Узлы крепления рельсов к подкрановым балкам и стыки рельсов. Чертежи КМ

Дата актуализации: 10.08.2017

Серия 1.426.2-7

Выпуск 6. Узлы крепления рельсов к подкрановым балкам и стыки рельсов. Чертежи КМ

Обозначение: Серия 1.426.2-7
Обозначение англ: Series 1.426.2-7
Статус:действует
Название рус.:Выпуск 6. Узлы крепления рельсов к подкрановым балкам и стыки рельсов. Чертежи КМ
Дата добавления в базу:01.09.2013
Дата актуализации:05.05.2017
Оглавление:1.426.2-7.6-00ПЗКМ Пояснительная записка
1.426.2-7.6-01КМ Крепление железнодорожных рельсов Р43,Р50 к стальным подкрановым балкам
1.426.2-7.6-02КМ Крепление кранового рельса КР140 к стальным подкрановым балкам
1.426.2-7.6-03КМ Температурный стык железнодорожных рельсов Р43,Р50
1.426.2-7.6-04КМ Температурный стык крановых рельсов КР70,КР80,КР100,КР120,КР140
1.426.2-7.6-05КМ Рядовой стык железнодорожных рельсов Р43,Р50
1.426.2-7.6-06КМ Рядовой стык крановых рельсов КР70,КР80,КР120,КР140
1.426.2-7.6-07КМ Рекомендации по электродуговой сварке стыков рельсов в съемных формах
1.426.2-7.6-08КМ Боковые полуформы для сварки головки и шейки рельсов КР70,КР80
1.426.2-7.6-09КМ Боковые полуформы для сварки головки и шейки рельсов КР100,КР120
1.426.2-7.6-10КМ Боковые полуформы для сварки головки и шейки рельса КР140
1.426.2-7.6-11КМ Полуформы для сварки подошвы крановых рельсов
1.426.2-7.6-12КМ Верхние ограничители для сварки крановых рельсов
1.426.2-7.6-13КМ Боковая полуформа, полуформа для сварки подошвы и верхние ограничители для сварки железнодорожного рельса Р43
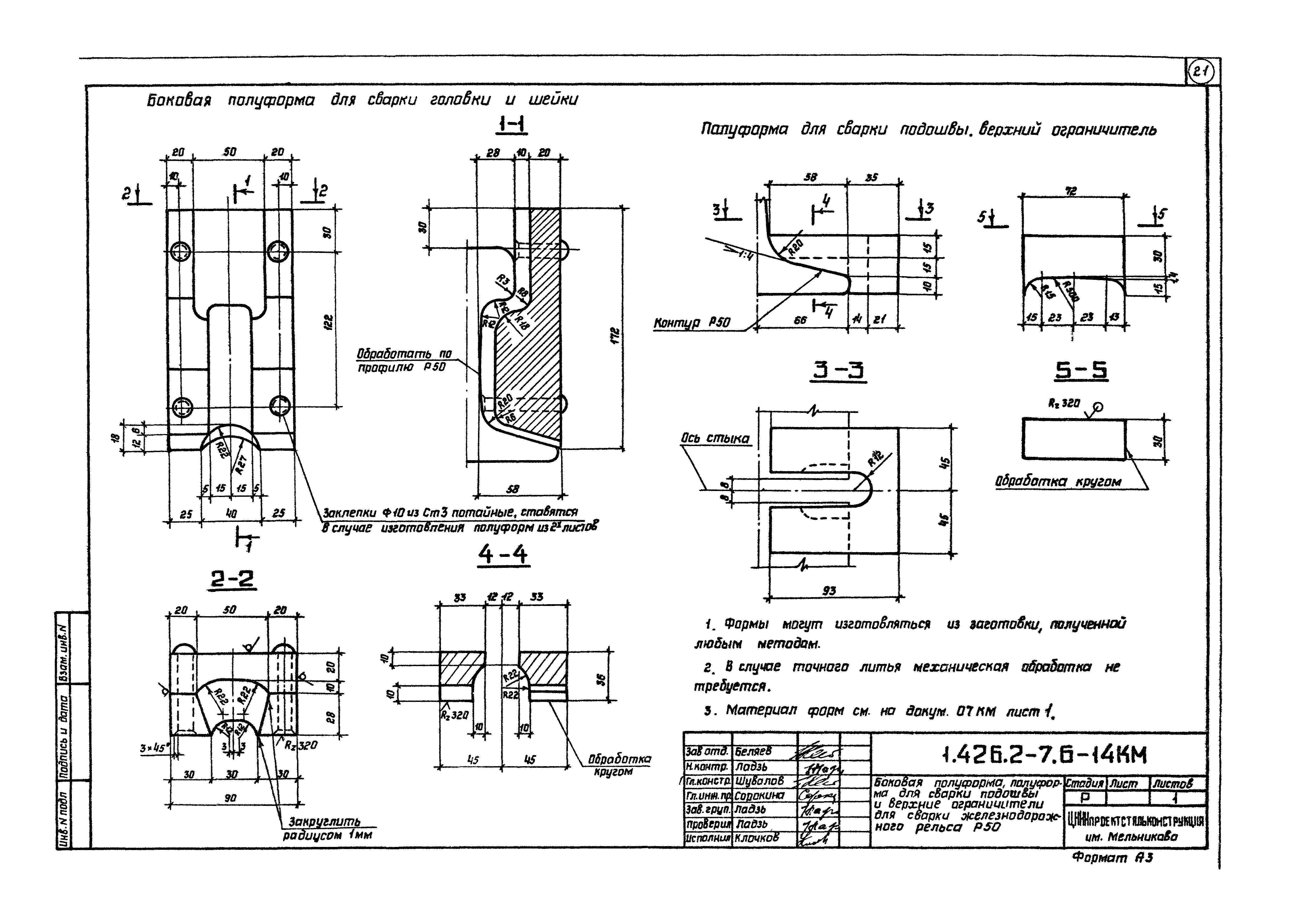
1.426.2-7.6-14КМ Боковая полуформа, полуформа для сварки подошвы и верхние ограничители для сварки железнодорожного рельса Р50
Разработан: ЦНИИПСК им. Мельникова
ФГУП Уралтиппроект
Утверждён:01.11.1989 ЦНИИпроектстальконструкция (TsNIIprojectstalkonstruktsiya )
Расположен в:Техническая документация Строительство Справочные документы Типовые строительные конструкции, изделия и узлы Общероссийский строительный каталог Строительные конструкции, изделия и узлы зданий и сооружений для всех видов строительства Конструкции, изделия и узлы зданий Несущие конструкции одноэтажных зданий Балки подкрановых путей подвесного транспорта
Заменяет собой:
Серия 1.426.2-7Серия 1.426.2-7Серия 1.426.2-7Серия 1.426.2-7Серия 1.426.2-7Серия 1.426.2-7Серия 1.426.2-7Серия 1.426.2-7Серия 1.426.2-7Серия 1.426.2-7Серия 1.426.2-7Серия 1.426.2-7Серия 1.426.2-7Серия 1.426.2-7Серия 1.426.2-7Серия 1.426.2-7Серия 1.426.2-7Серия 1.426.2-7Серия 1.426.2-7Серия 1.426.2-7Серия 1.426.2-7

© 2013 Ёшкин Кот :-) Карта сайта