Информационная система
«Ёшкин Кот»

Скачать базу одним архивом
Скачать обновления
История создания базы
Карта сайта

Скачать Серия 1.426.2-7 Выпуск 4. Балки пролетом 12 м неразрезные под краны общего назначения грузоподъемностью 80-320 т. Чертежи КМ

Дата актуализации: 10.08.2017

Серия 1.426.2-7

Выпуск 4. Балки пролетом 12 м неразрезные под краны общего назначения грузоподъемностью 80-320 т. Чертежи КМ

Обозначение: Серия 1.426.2-7
Обозначение англ: Series 1.426.2-7
Статус:действует
Название рус.:Выпуск 4. Балки пролетом 12 м неразрезные под краны общего назначения грузоподъемностью 80-320 т. Чертежи КМ
Дата добавления в базу:01.09.2013
Дата актуализации:05.05.2017
Оглавление:1.426.2-7.4-00ПЗКМ Пояснительная записка
1.426.2-7.4-01КМ Крановые нагрузки
1.426.2-7.4-02КМ Таблица выбора марок подкрановых балок для зданий баз проходов вдоль крановых путей
1.426.2-7.4-03КМ Таблица выбора марок подкрановых балок для зданий с проходами вдоль крановых путей
1.426.2-7.4-04КМ Таблица выбора марок тормозных конструкций
1.426.2-7.4-05КМ Сортамент подкрановых балок
1.426.2-7.4-06КМ Сортамент тормозных ферм
1.426.2-7.4-07КМ Сортамент тормозных балок
1.426.2-7.4-08КМ Общий вид подкрановых балок
1.426.2-7.4-09КМ Детали подкрановых балок. Узлы 1...3
1.426.2-7.4-10КМ Схемы тормозных ферм по крайним рядам колонн
1.426.2-7.4-11КМ Схемы тормозных ферм до средним рядам колонн
1.426.2-7.4-12КМ Схемы тормозных балок по крайним рядам колонн
1.426.2-7.4-13КМ Схемы тормозных балок по средним рядам колонн
1.426.2-7.4-14КМ Маркировка узлов опирания подкрановых балок на колонны и узлов связей
1.426.2-7.4-15КМ Узлы подкрановых конструкций. Узлы 4...11
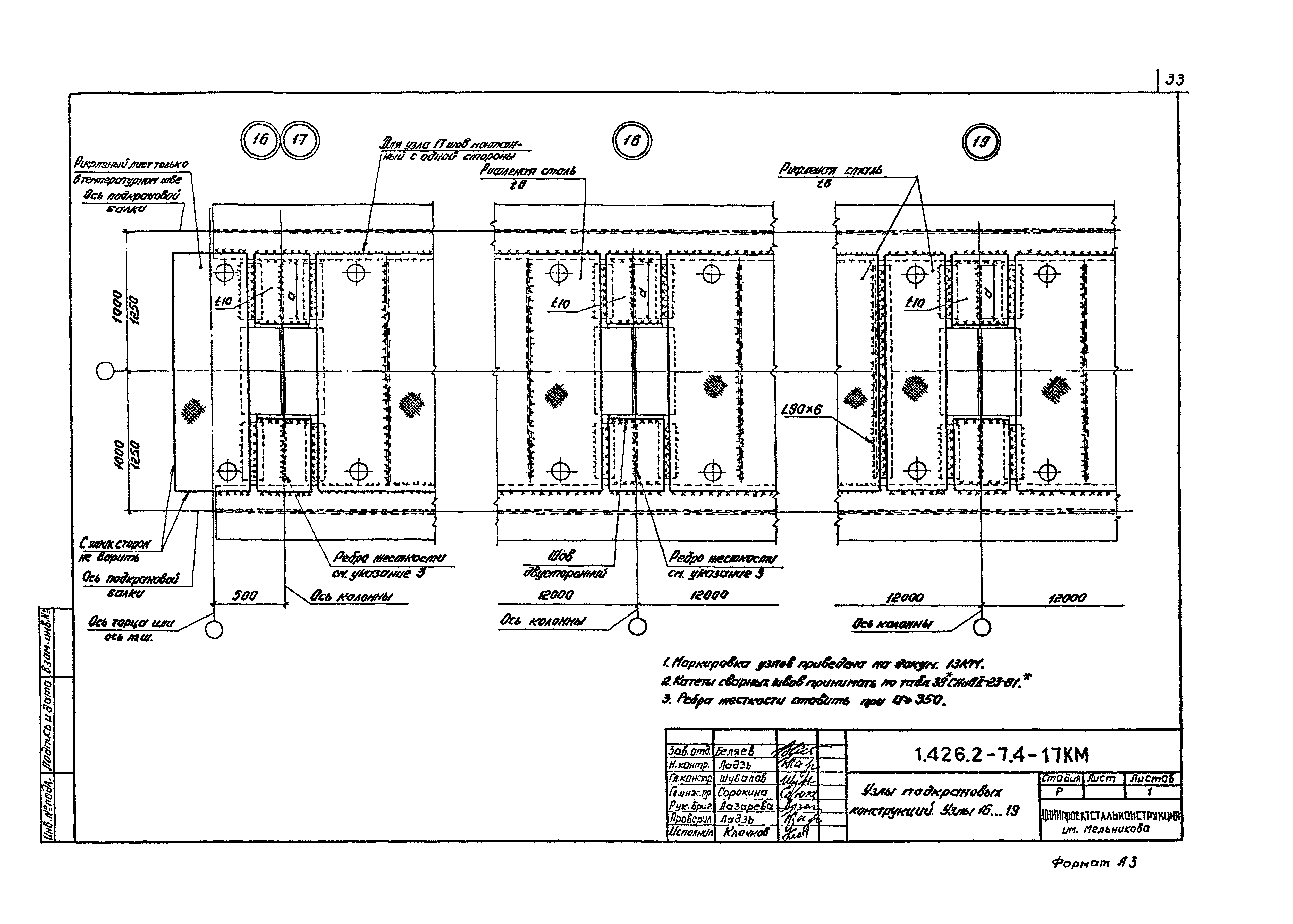
1.426.2-7.4-16КМ Узлы подкрановых конструкций. Узлы 12...15
1.426.2-7.4-17КМ Узлы подкрановых конструкций. Узлы 16... 19
1.426.2-7.4-18КМ Узлы подкрановых конструкций. Узлы 20...23
1.426.2-7.4-19КМ Узлы подкрановых конструкций. Узлы 24...26
1.426.2-7.4-20КМ Опирание подкрановых балок на колонны. Узлы 27,28
1.426.2-7.4-21КМ Узлы 29,30. Концевой упор
1.426.2-7.4-22КМ Расположение отверстий в тормозных конструкциях для крепления рельсов. Крепление перил
1.426.2-7.4-23КМ Таблица выбора монтажных стыков на высокопрочных болтах
1.426.2-7.4-24КМ Монтажный стык стенки балки
1.426.2-7.4-25КМ Монтажный стык верхнего пояса балки
1.426.2-7.4-26КМ Монтажный стык нижнего пояса балки
1.426.2-7.4-27КМ Расположение отверстий в верхних поясах подкрановых балок
1.426.2-7.4-28КМ Сортамент сечений подкрановых балок
1.426.2-7.4-29КМ Спецификация стали на подкрановые балки
1.426.2-7.4-30КМ Спецификация стали на тормозные конструкции
1.426.2-7.4-31КМ Спецификация стали на детали монтажных стыков балок
1.426.2-7.4-32КМ Расчетные вертикальные нагрузки на колонны
1.426.2-7.4-33КМ Расчетные горизонтальные нагрузки на колонны и для крепления балок
1.426.2-7.4-34КМ Расчетные отрывающие усилия на колонны
Разработан: ЦНИИПСК им. Мельникова
ФГУП Уралтиппроект
Утверждён:01.06.1989 ЦНИИпроектстальконструкция (TsNIIprojectstalkonstruktsiya )
Расположен в:Техническая документация Строительство Справочные документы Типовые строительные конструкции, изделия и узлы Общероссийский строительный каталог Строительные конструкции, изделия и узлы зданий и сооружений для всех видов строительства Конструкции, изделия и узлы зданий Несущие конструкции одноэтажных зданий Балки подкрановых путей подвесного транспорта
Серия 1.426.2-7Серия 1.426.2-7Серия 1.426.2-7Серия 1.426.2-7Серия 1.426.2-7Серия 1.426.2-7Серия 1.426.2-7Серия 1.426.2-7Серия 1.426.2-7Серия 1.426.2-7Серия 1.426.2-7Серия 1.426.2-7Серия 1.426.2-7Серия 1.426.2-7Серия 1.426.2-7Серия 1.426.2-7Серия 1.426.2-7Серия 1.426.2-7Серия 1.426.2-7Серия 1.426.2-7Серия 1.426.2-7Серия 1.426.2-7Серия 1.426.2-7Серия 1.426.2-7Серия 1.426.2-7Серия 1.426.2-7Серия 1.426.2-7Серия 1.426.2-7Серия 1.426.2-7Серия 1.426.2-7Серия 1.426.2-7Серия 1.426.2-7Серия 1.426.2-7Серия 1.426.2-7Серия 1.426.2-7Серия 1.426.2-7Серия 1.426.2-7Серия 1.426.2-7Серия 1.426.2-7Серия 1.426.2-7Серия 1.426.2-7Серия 1.426.2-7Серия 1.426.2-7Серия 1.426.2-7Серия 1.426.2-7Серия 1.426.2-7Серия 1.426.2-7Серия 1.426.2-7Серия 1.426.2-7Серия 1.426.2-7Серия 1.426.2-7Серия 1.426.2-7Серия 1.426.2-7Серия 1.426.2-7Серия 1.426.2-7Серия 1.426.2-7Серия 1.426.2-7Серия 1.426.2-7Серия 1.426.2-7Серия 1.426.2-7Серия 1.426.2-7Серия 1.426.2-7Серия 1.426.2-7Серия 1.426.2-7

© 2013 Ёшкин Кот :-) Карта сайта