Информационная система
«Ёшкин Кот»

Скачать базу одним архивом
Скачать обновления
История создания базы
Карта сайта

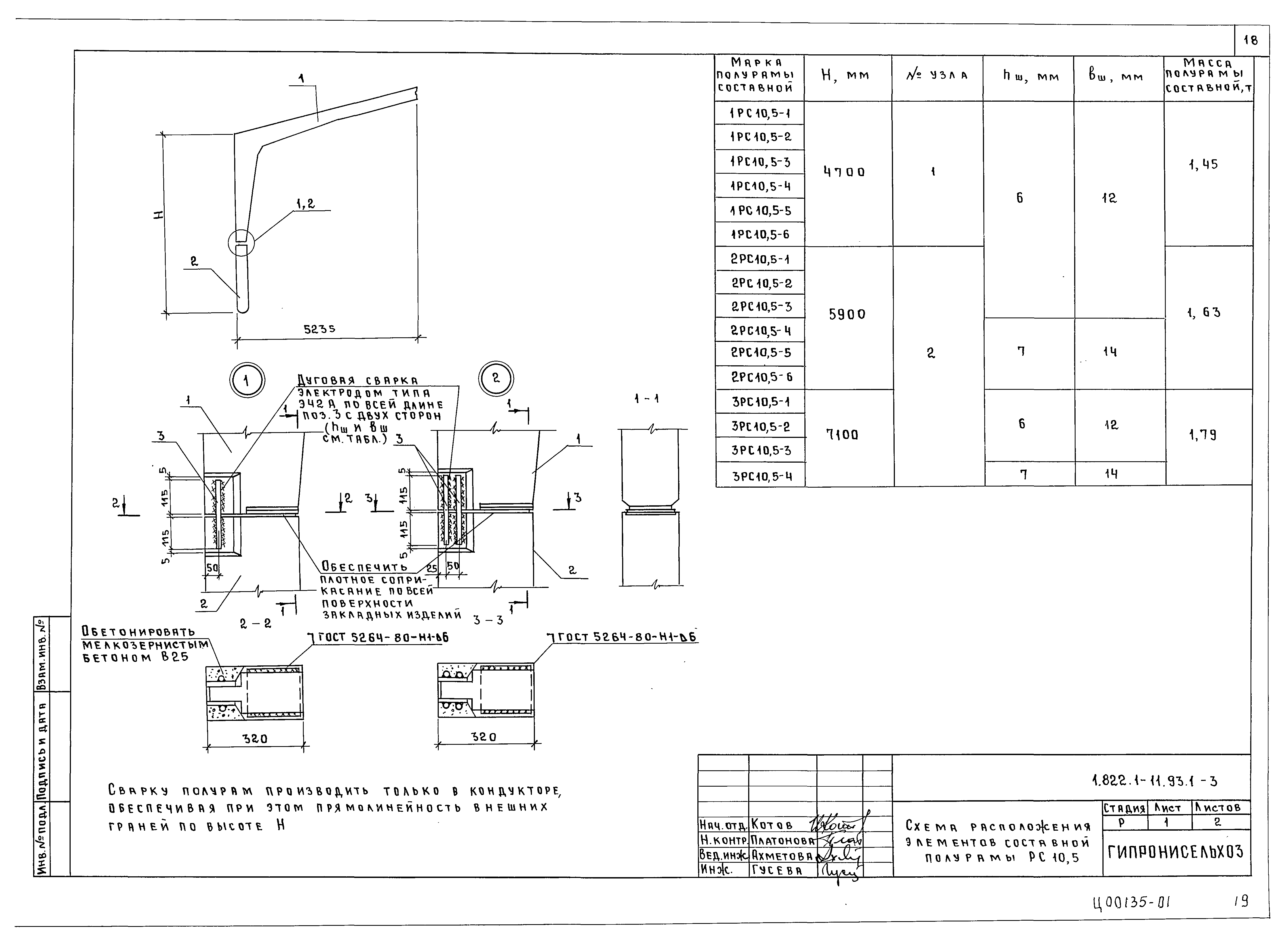
Скачать Серия 1.822.1-11.93 Выпуск 1. Материалы для проектирования и рабочие чертежи

Дата актуализации: 10.08.2017

Серия 1.822.1-11.93

Выпуск 1. Материалы для проектирования и рабочие чертежи

Обозначение: Серия 1.822.1-11.93
Обозначение англ: Series 1.822.1-11.93
Статус:не определен законодательством
Название рус.:Выпуск 1. Материалы для проектирования и рабочие чертежи
Дата добавления в базу:01.09.2013
Дата актуализации:05.05.2017
Дата введения:01.01.1994
Разработан: ЦНИИЭПсельстрой
ГипроНИсельхоз (Институт Гипронисельхоз )
Утверждён:15.12.1993 Госстрой России (Russian Federation Gosstroy 9-3-2/287)
Расположен в:Техническая документация Строительство Справочные документы Типовые строительные конструкции, изделия и узлы Общероссийский строительный каталог Строительные конструкции, изделия и узлы зданий и сооружений для всех видов строительства Конструкции, изделия и узлы зданий Несущие конструкции одноэтажных зданий Арки и рамы Железобетонные
Серия 1.822.1-11.93Серия 1.822.1-11.93Серия 1.822.1-11.93Серия 1.822.1-11.93Серия 1.822.1-11.93Серия 1.822.1-11.93Серия 1.822.1-11.93Серия 1.822.1-11.93Серия 1.822.1-11.93Серия 1.822.1-11.93Серия 1.822.1-11.93Серия 1.822.1-11.93Серия 1.822.1-11.93Серия 1.822.1-11.93Серия 1.822.1-11.93Серия 1.822.1-11.93Серия 1.822.1-11.93Серия 1.822.1-11.93Серия 1.822.1-11.93Серия 1.822.1-11.93Серия 1.822.1-11.93Серия 1.822.1-11.93Серия 1.822.1-11.93Серия 1.822.1-11.93Серия 1.822.1-11.93Серия 1.822.1-11.93Серия 1.822.1-11.93Серия 1.822.1-11.93Серия 1.822.1-11.93Серия 1.822.1-11.93

© 2013 Ёшкин Кот :-) Карта сайта