Информационная система
«Ёшкин Кот»

Скачать базу одним архивом
Скачать обновления
История создания базы
Карта сайта

Скачать РС1-1725 Панели внутренних стен цоколя. Рабочие чертежи

Дата актуализации: 10.08.2017

РС1-1725

Панели внутренних стен цоколя. Рабочие чертежи

Обозначение: РС1-1725
Обозначение англ: РС1-1725
Статус:не определен законодательством
Название рус.:Панели внутренних стен цоколя. Рабочие чертежи
Дата добавления в базу:01.09.2013
Дата актуализации:05.05.2017
Дата введения:01.01.1997
Оглавление:РС1-1725.ПЗ Пояснительная записка
РС1-1725.НИ Номенклатура изделий
РС1-1725.РС Ведомость расхода стали в кг
РС1-1725.01 СБ Панель ВЦ1855-20У. Сборочный чертеж
РС1-1725.02 СБ Панель ВЦ1843-20У. Сборочный чертеж
РС1-1725.03 СБ Панель ВЦ1852-20У. Сборочный чертеж
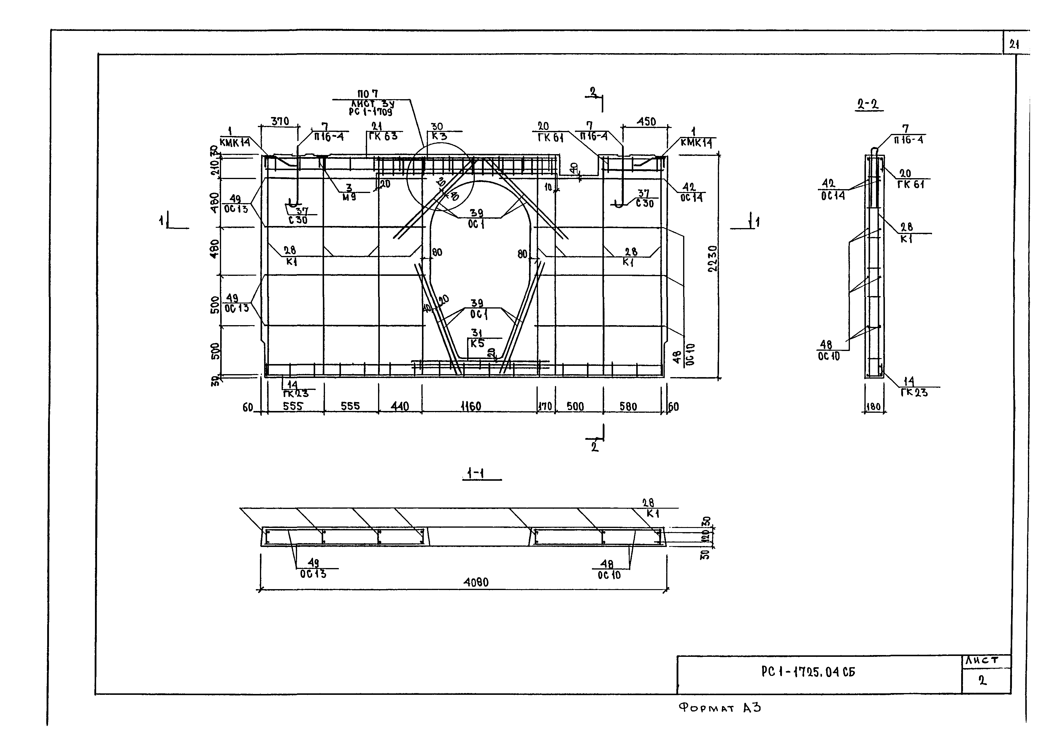
РС1-1725.04 СБ Панель ВЦ1841-20У. Сборочный чертеж
РС1-1725.05 СБ Панель ВЦ1835-20У. Сборочный чертеж
РС1-1725.06 СБ Панель ВЦ1818-20У. Сборочный чертеж
РС1-1725.07 СБ Панель ВЦ1836-20У. Сборочный чертеж
РС1-1725.ОК СБ Объемные каркасы. Сборочный чертеж
РС1-1725.ГК СБ Гнутые каркасы. Сборочный чертеж
РС1-1725.К СБ Каркасы плоские. Сборочный чертеж
РС1-1725.ЗД СБ Закладные детали. Сборочный чертеж
РС1-1725 Информационная карта
Разработан: МНИИТЭП
Утверждён:01.01.1997 МНИИТЭП (MNIITEP )
Расположен в:Техническая документация Строительство Справочные документы Типовые строительные конструкции, изделия и узлы Разработанные другими министерствами, ведомствами и организациями
РС1-1725РС1-1725РС1-1725РС1-1725РС1-1725РС1-1725РС1-1725РС1-1725РС1-1725РС1-1725РС1-1725РС1-1725РС1-1725РС1-1725РС1-1725РС1-1725РС1-1725РС1-1725РС1-1725РС1-1725РС1-1725РС1-1725РС1-1725РС1-1725РС1-1725РС1-1725РС1-1725РС1-1725РС1-1725РС1-1725РС1-1725

© 2013 Ёшкин Кот :-) Карта сайта