Скачать Серия 1.822.1-6 Выпуск 5. Рамы пролетом 12, 18 и 21 м с высотой стойки 3,75 м. Арматурные и закладные изделия. Рабочие чертежиДата актуализации: 10.08.2017 Серия 1.822.1-6
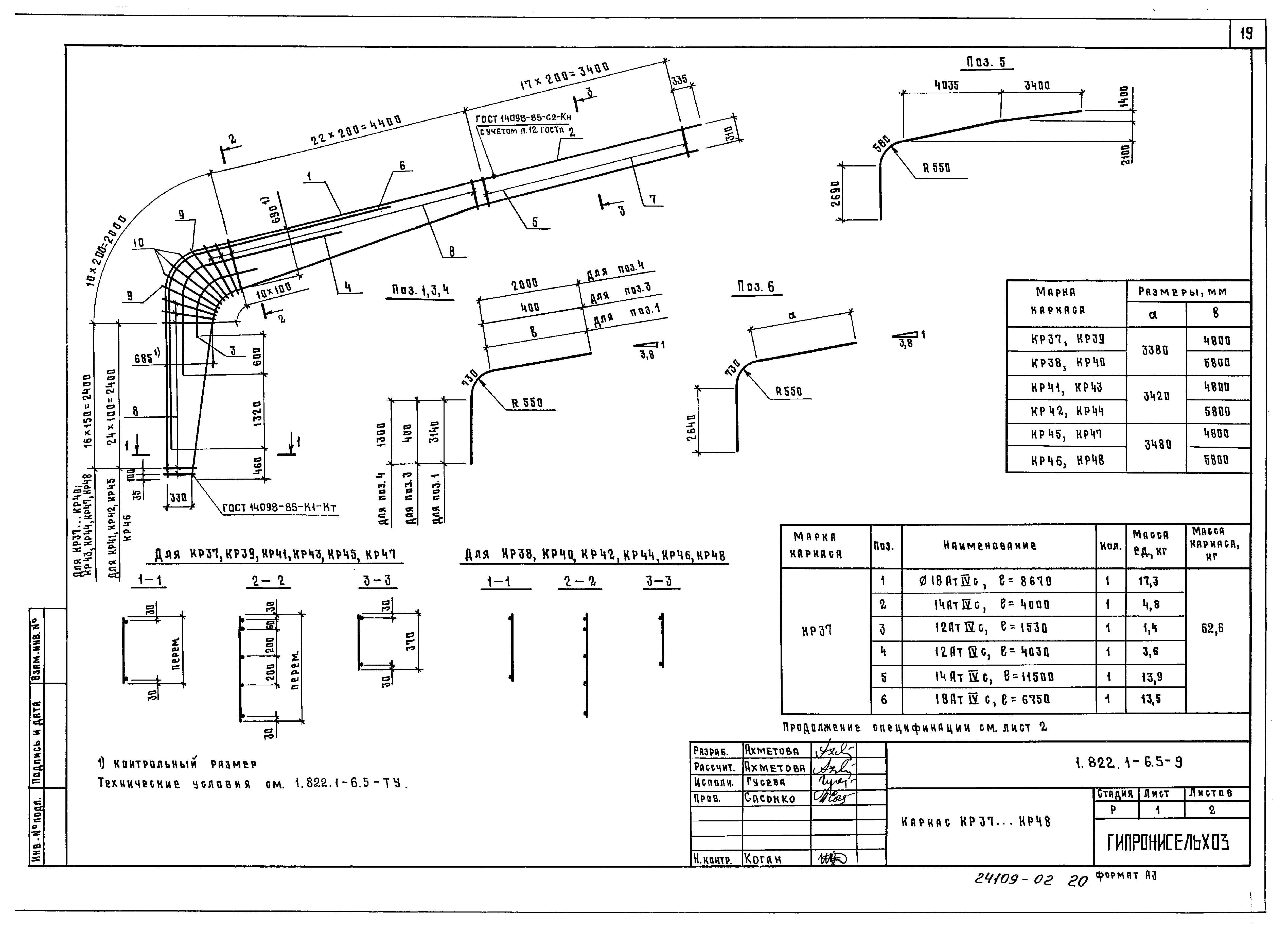
Выпуск 5. Рамы пролетом 12, 18 и 21 м с высотой стойки 3,75 м. Арматурные и закладные изделия. Рабочие чертежиОбозначение: | Серия 1.822.1-6 | Обозначение англ: | Series 1.822.1-6 | Статус: | не определен законодательством | Название рус.: | Выпуск 5. Рамы пролетом 12, 18 и 21 м с высотой стойки 3,75 м. Арматурные и закладные изделия. Рабочие чертежи | Дата добавления в базу: | 01.09.2013 | Дата актуализации: | 05.05.2017 | Дата введения: | 01.04.1990 | Оглавление: | 1.822.1-6.5-ТУ Технические условия 1.822.1-6.5-1 Каркас КП1 - КП12 1.822.1-6.5-2 Каркас КП13 - КП17, КП18 - КП23 1.822.1-6.5-3 Каркас КП18, КП24 1.822.1-6.5-4 Каркас КП25 - КП27, КП31 - КП33 1.822.1-6.5-5 Каркас КП28 - КП30, КП34 - КП36 1.822.1-6.5-6 Каркас КР1 - КР12 1.822.1-6.5-7 Каркас КР13 - КР24 1.822.1-6.5-8 Каркас КР25 - КР36 1.822.1-6.5-9 Каркас КР37 - КР48 1.822.1-6.5-10 Каркас КР49 - КР60 1.822.1-6.5-11 Каркас КР61 - КР72 1.822.1-6.5-12 Сетка С1, С2 1.822.1-6.5-13 Сетка С3, С4 1.822.1-6.5-14 Сетка С5 1.822.1-6.5-15 Изделие закладное МН1 1.822.1-6.5-16 Изделие закладное МН2, МН3 1.822.1-6.5-17 Изделие закладное МН4, МН5, МН9 1.822.1-6.5-18 Изделие закладное МН6 1.822.1-6.5-15 Изделие закладное МН7, МН8 | Разработан: | НИИЖБ ЦНИИЭПсельстрой ГипроНИсельхоз (Институт Гипронисельхоз )
| Утверждён: | 06.05.1989 Госстрой СССР (Государственный комитет Совета Министров СССР по делам строительства) (USSR Gosstroy 4/5-670)
| Расположен в: |
| Заменяет собой: | |
                           
|