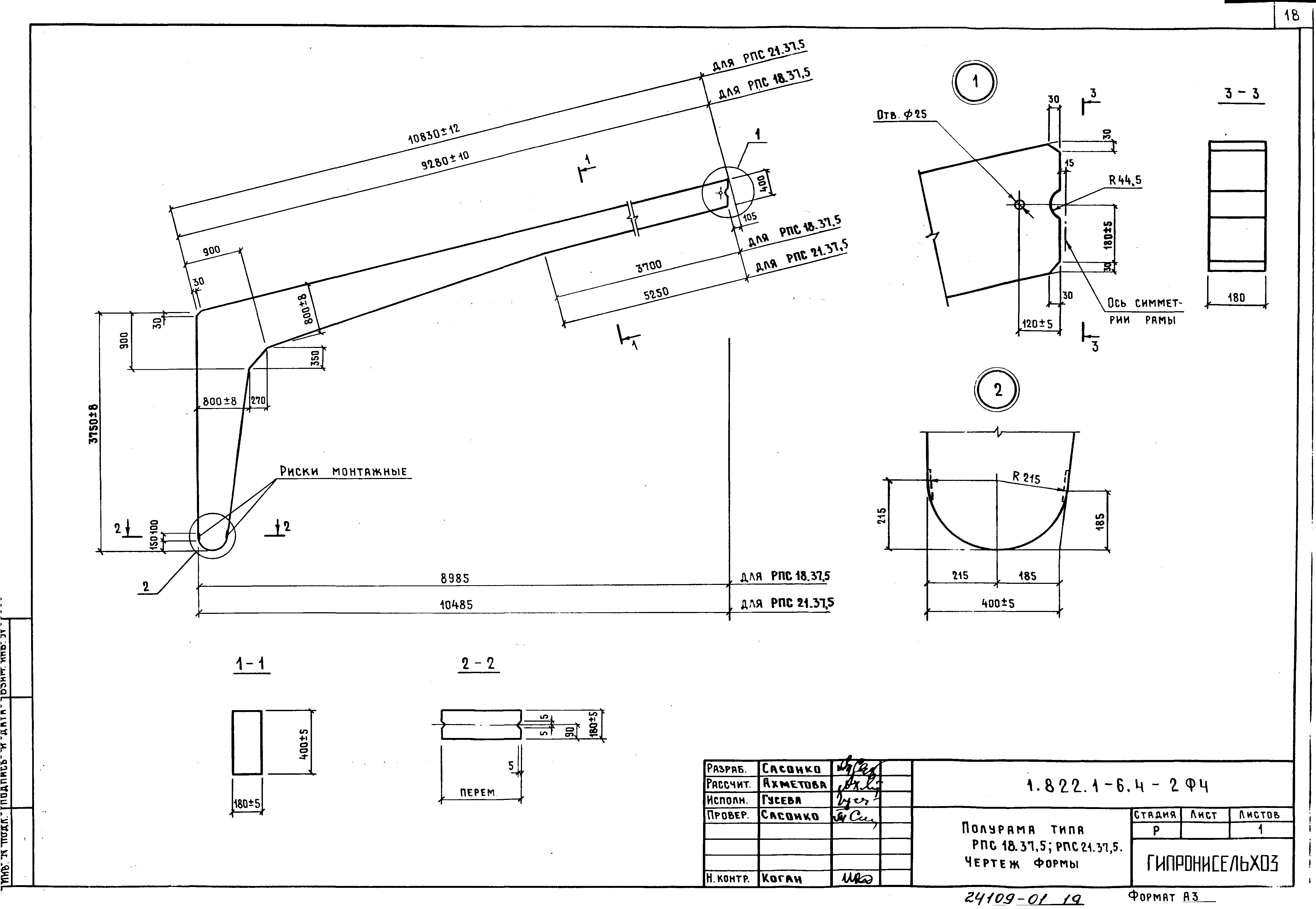
Скачать Серия 1.822.1-6 Выпуск 4. Рамы пролетом 12, 18 и 21 м с высотой стойки 3,75 м. Указания по проектированию и рабочие чертежиДата актуализации: 10.08.2017 Серия 1.822.1-6
Выпуск 4. Рамы пролетом 12, 18 и 21 м с высотой стойки 3,75 м. Указания по проектированию и рабочие чертежи| Обозначение: | Серия 1.822.1-6 | | Обозначение англ: | Series 1.822.1-6 | | Статус: | не определен законодательством | | Название рус.: | Выпуск 4. Рамы пролетом 12, 18 и 21 м с высотой стойки 3,75 м. Указания по проектированию и рабочие чертежи | | Дата добавления в базу: | 01.09.2013 | | Дата актуализации: | 05.05.2017 | | Дата введения: | 01.04.1990 | | Разработан: | НИИЖБ ЦНИИЭПсельстрой ГипроНИсельхоз (Институт Гипронисельхоз )
| | Утверждён: | 06.05.1989 Госстрой СССР (Государственный комитет Совета Министров СССР по делам строительства) (USSR Gosstroy 4/5-670)
| | Издан: | ЦИТП Госстроя СССР (CITP, Gosstroy (USSR) 1990 г. )
| | Расположен в: |
| | Заменяет собой: | |
                       
|