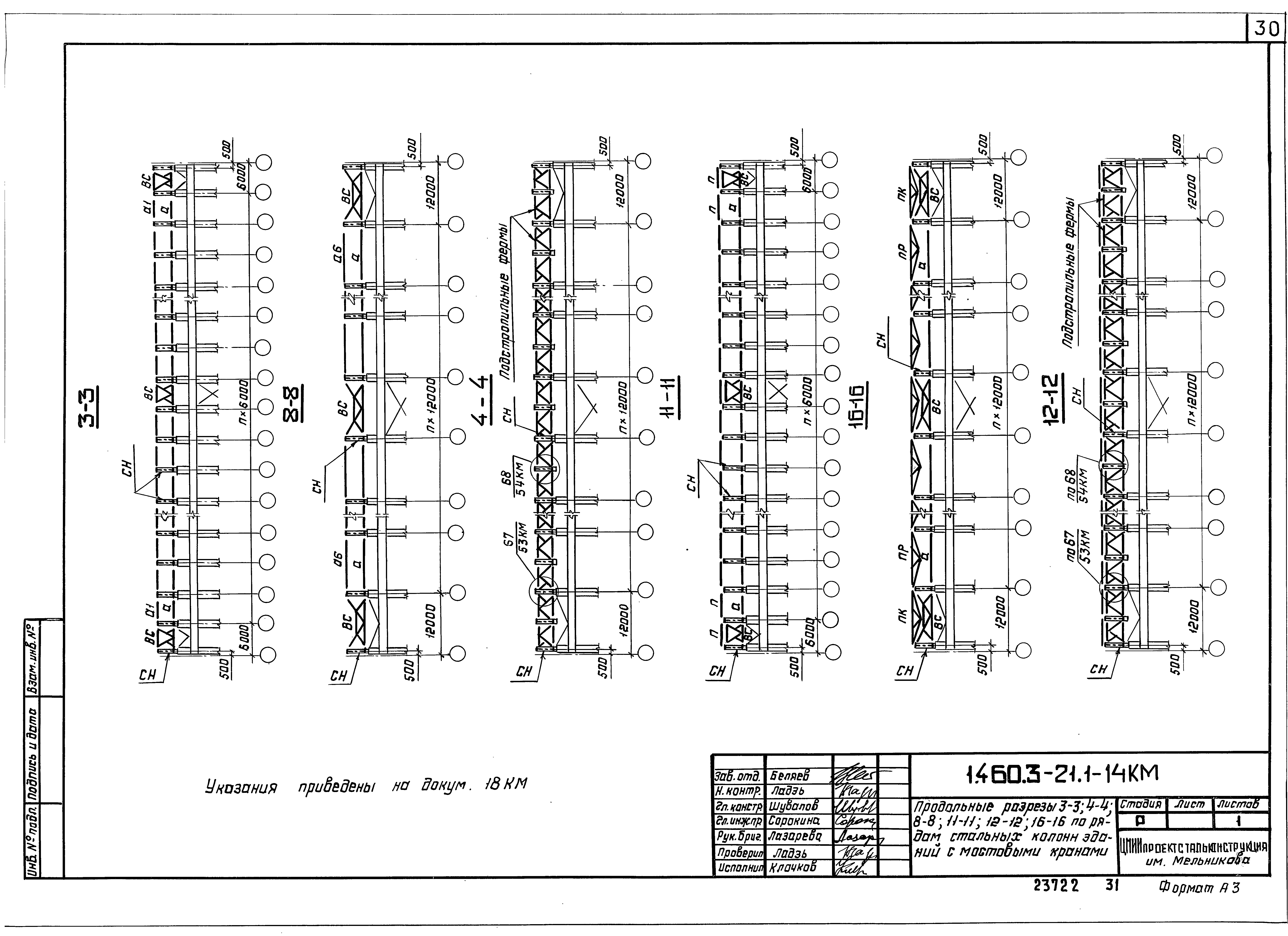
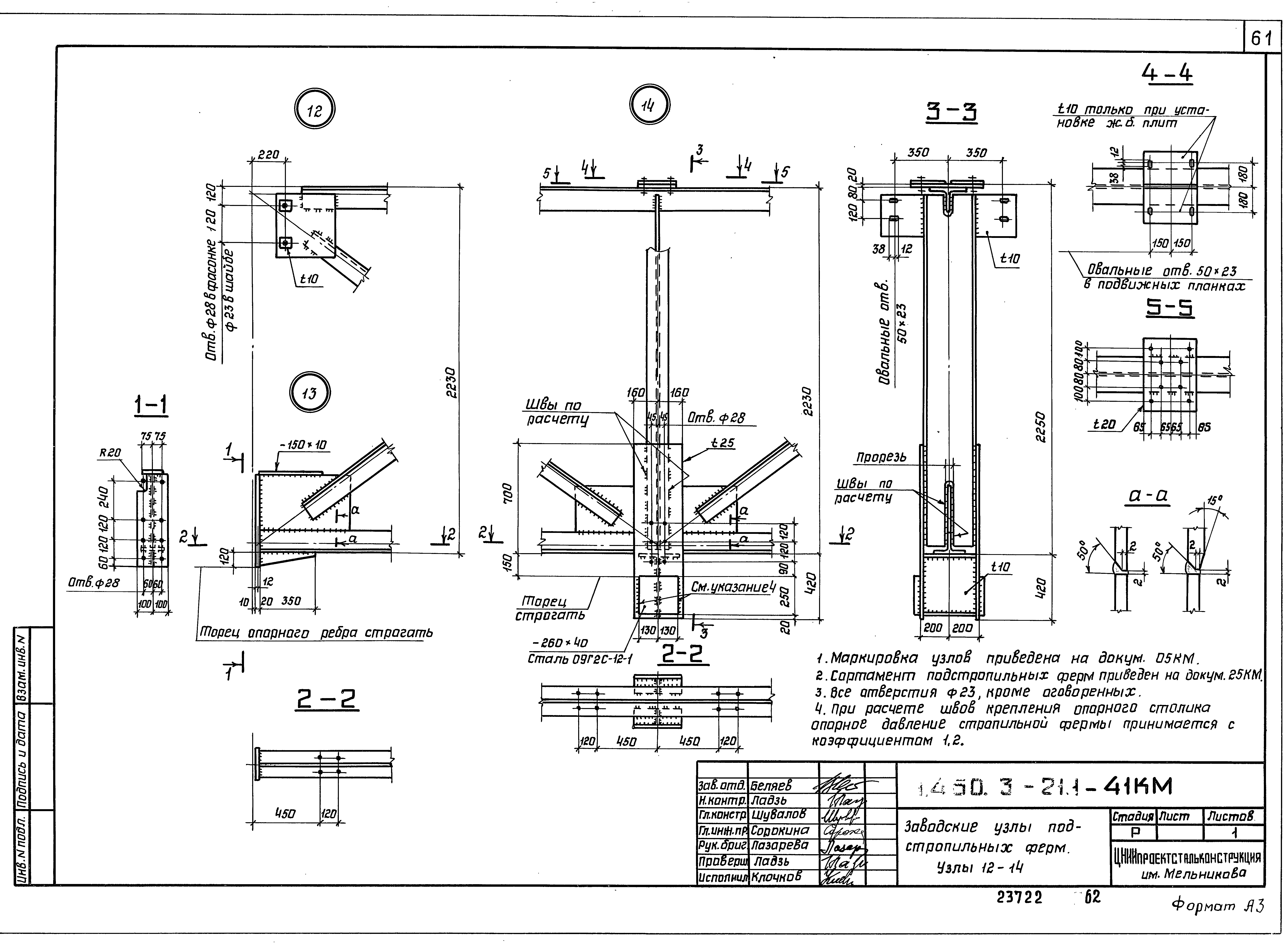
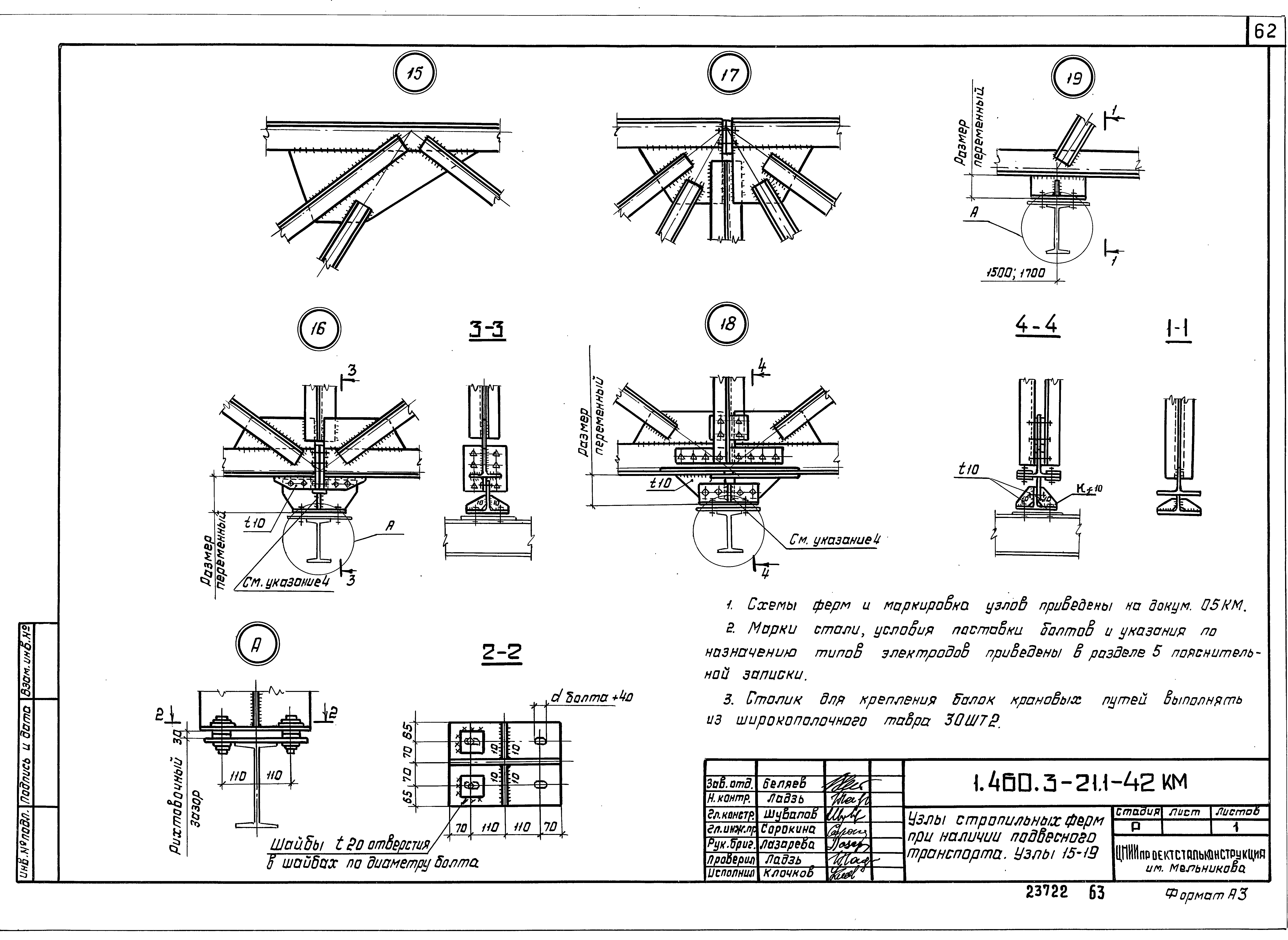
Скачать Серия 1.460.3-21 Выпуск 1. Покрытия пролетами 18 и 24 м с фермами высотой 2,25 м для зданий с расчетной температурой минус 40 градусов Цельсия и выше. Чертежи КМДата актуализации: 10.08.2017 Серия 1.460.3-21
Выпуск 1. Покрытия пролетами 18 и 24 м с фермами высотой 2,25 м для зданий с расчетной температурой минус 40 градусов Цельсия и выше. Чертежи КМОбозначение: | Серия 1.460.3-21 | Обозначение англ: | Series 1.460.3-21 | Статус: | действует | Название рус.: | Выпуск 1. Покрытия пролетами 18 и 24 м с фермами высотой 2,25 м для зданий с расчетной температурой минус 40 градусов Цельсия и выше. Чертежи КМ | Дата добавления в базу: | 01.09.2013 | Дата актуализации: | 05.05.2017 | Дата введения: | 01.07.1989 | Разработан: | ЦНИИпроектстальконструкция Госстроя
| Утверждён: | 12.10.1988 Госстрой СССР (Государственный комитет Совета Министров СССР по делам строительства) (USSR Gosstroy 6/6-2127)
| Расположен в: |
|
                                                                                               
|