| ||||||||||||||||||||||||||||
Скачать Серия 1.463.1-17 Выпуск 4. Фермы пролетом 24 м типоразмера 1. Рабочие чертежиДата актуализации: 10.08.2017
|
| Обозначение: | Серия 1.463.1-17 |
| Обозначение англ: | Series 1.463.1-17 |
| Статус: | не определен законодательством |
| Название рус.: | Выпуск 4. Фермы пролетом 24 м типоразмера 1. Рабочие чертежи |
| Дата добавления в базу: | 01.09.2013 |
| Дата актуализации: | 05.05.2017 |
| Дата введения: | 01.08.1990 |
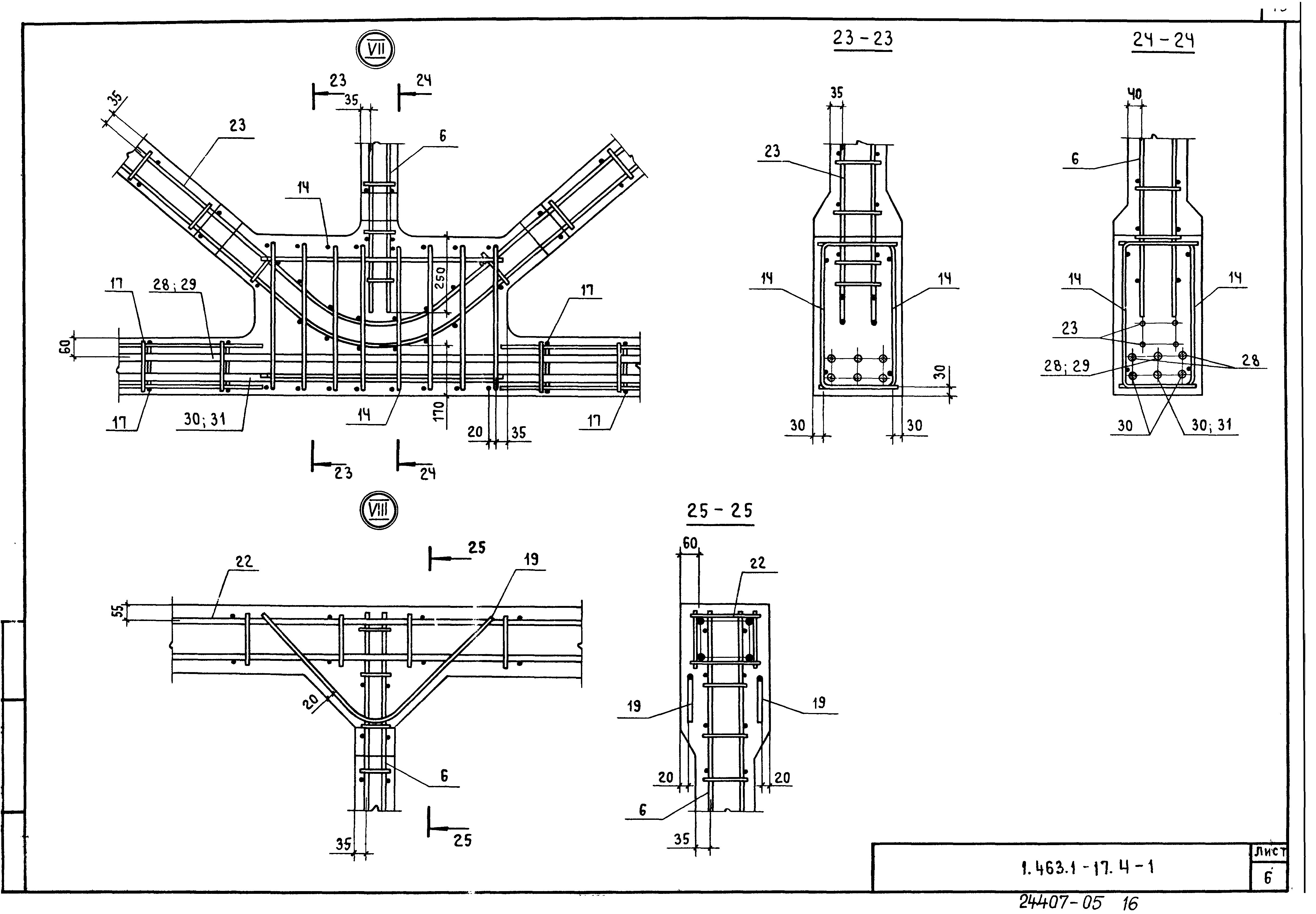
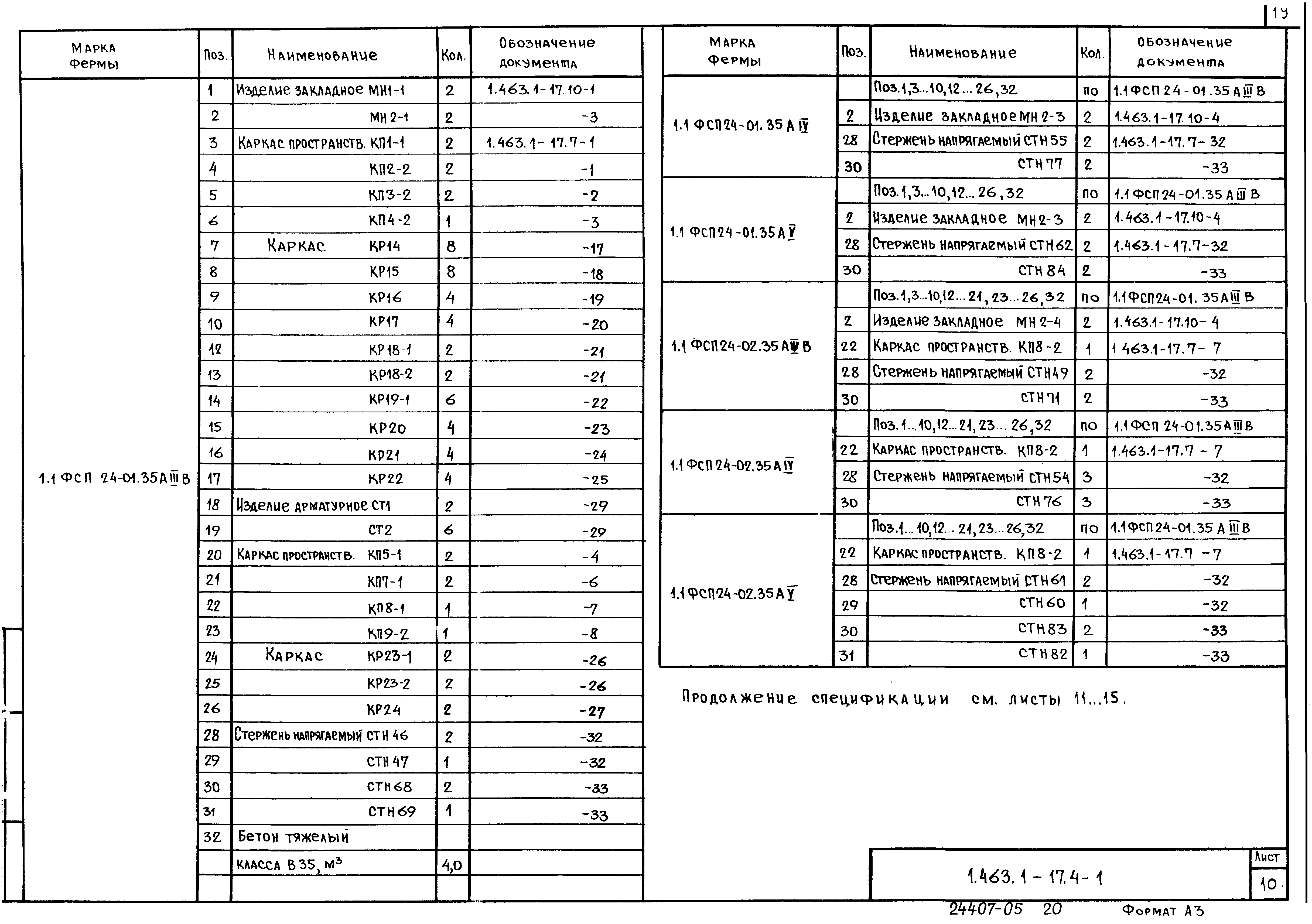
| Оглавление: | 1.463.1-17.4-ТТ Технические требования 1.463.1-17.4-1ФЧ Ферма типоразмера 1.1ФСП24. Опалубочный чертеж 1.463.1-17.4-1 Ферма типоразмера 1.1ФСП24. Армирование 1.463.1-17.4-1РС Ферма типоразмера 1.1ФСП24. Ведомость расхода стали 1.463.1-17.4-2ФЧ Ферма типоразмера 1.2ФСП24. Опалубочный чертеж 1.463.1-17.4-2 Ферма типоразмера 1.2ФСП24. Армирование 1.463.1-17.4-2РС Ферма типоразмера 1.2ФСП24. Ведомость расхода стали 1.463.1-17.4-3ФЧ Ферма типоразмера 1.3ФСП24. Опалубочный чертеж 1.463.1-17.4-3 Ферма типоразмера 1.3ФСП24. Армирование 1.463.1-17.4-3РС Ферма типоразмера 1.3ФСП24. Ведомость расхода стали 1.463.1-17.4-1СМ Контрольные нагрузки и схемы испытаний ферм 1.463.1-17.4-2СМ Вариант армирования ненапрягаемых элементов ферм арматурой класса Ат-IVС |
| Разработан: | НИИСК НИИЖБ ГПИ Промстройпроект |
| Утверждён: | 18.12.1989 Главоргпроект Госстроя СССР (4/5-1546) |
| Издан: | ЦИТП Госстроя СССР (CITP, Gosstroy (USSR) 1990 г. ) |
| Расположен в: |




























































