| ||||||||||||||||||||||||||||||
Скачать Серия 1.463.1-16 Выпуск 6. Стальные конструкции связей, распорок и элементов крепления путей подвесного транспорта. Чертежи КМДата актуализации: 10.08.2017
|
| Обозначение: | Серия 1.463.1-16 |
| Обозначение англ: | Series 1.463.1-16 |
| Статус: | не определен законодательством |
| Название рус.: | Выпуск 6. Стальные конструкции связей, распорок и элементов крепления путей подвесного транспорта. Чертежи КМ |
| Дата добавления в базу: | 01.09.2013 |
| Дата актуализации: | 05.05.2017 |
| Дата введения: | 01.08.1989 |
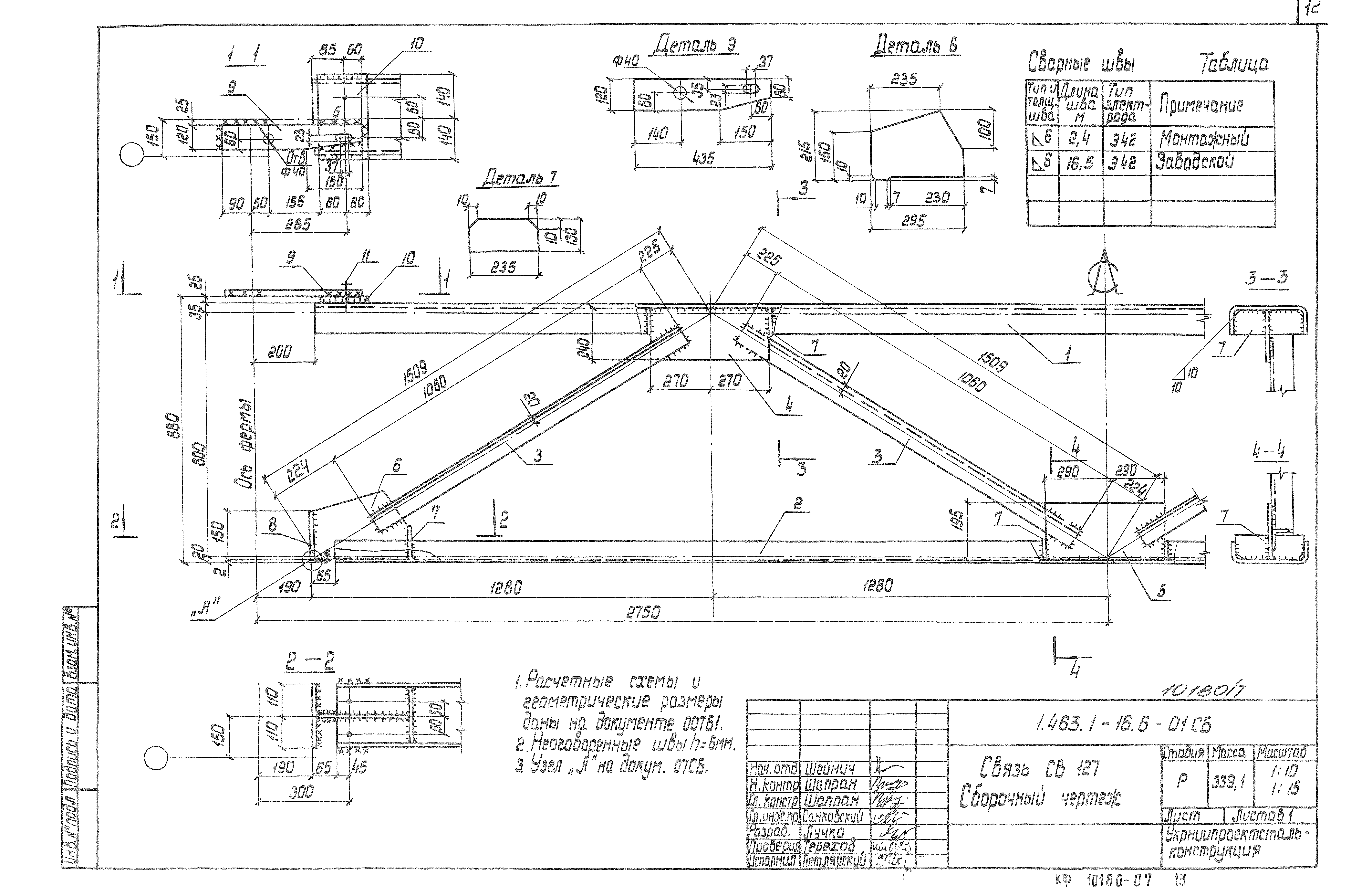
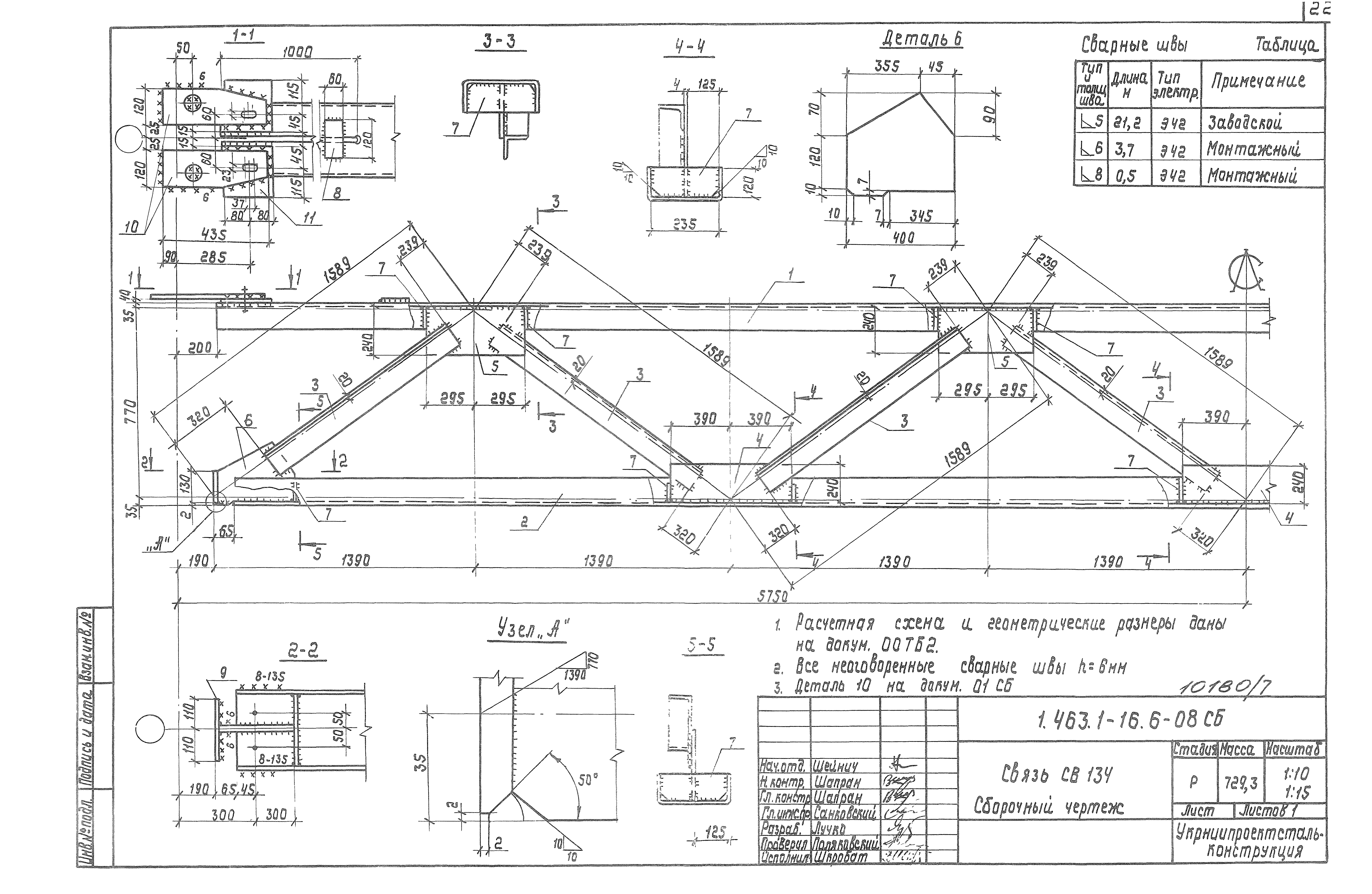
| Оглавление: | 1.463.1-16.6-00ПЗ Пояснительная записка 1.463.1-16.6-00ТБ1 Расчетная схема, нагрузки и усилия связей СВ127...СВ132 1.463.1-16.6-00ТБ2 Расчетная схема, нагрузки и усилия связей СВ133...СВ138 1.463.1-16.6-00ТБ3 Расчетная схема связей СВ139...СВ142 1.463.1-16.6-00ТБ4 Расчетная схема, нагрузки и усилия связей СВ153,СВ154,СВ157 1.463.1-16.6-00ТБ5 Расчетная схема, нагрузки и усилия распорок РС145...РС148,РС150...РС152,РС160 1.463.1-16.6-01 Связь СВ127 1.463.1-16.6-02 Связь СВ128 1.463.1-16.6-01 СБ Связь СВ127. Сборочный чертеж 1.463.1-16.6-02 СБ Связь СВ128. Сборочный чертеж 1.463.1-16.6-03 Связь СВ129 1.463.1-16.6-04 Связь СВ131 1.463.1-16.6-03 СБ Связь СВ129. Сборочный чертеж 1.463.1-16.6-04 СБ Связь СВ131. Сборочный чертеж 1.463.1-16.6-05 Связь СВ130 1.463.1-16.6-06 Связь СВ132 1.463.1-16.6-05 СБ Связь СВ130. Сборочный чертеж 1.463.1-16.6-06 СБ Связь СВ132. Сборочный чертеж 1.463.1-16.6-07 Связь СВ133 1.463.1-16.6-08 Связь СВ134 1.463.1-16.6-07 СБ Связь СВ133. Сборочный чертеж 1.463.1-16.6-08 СБ Связь СВ134. Сборочный чертеж 1.463.1-16.6-09 Связь СВ135 1.463.1-16.6-10 Связь СВ136 1.463.1-16.6-09 СБ Связь СВ135. Сборочный чертеж 1.463.1-16.6-10 СБ Связь СВ136. Сборочный чертеж 1.463.1-16.6-11 Связь СВ137 1.463.1-16.6-12 Связь СВ138 1.463.1-16.6-11 СБ Связь СВ137. Сборочный чертеж 1.463.1-16.6-12 СБ Связь СВ138. Сборочный чертеж 1.463.1-16.6-13 Связь СВ139 1.463.1-16.6-14 Связь СВ140 1.463.1-16.6-15 Связь СВ141 1.463.1-16.6-16 Связь СВ142 1.463.1-16.6-15 СБ Связь СВ141. Сборочный чертеж 1.463.1-16.6-16 СБ Связь СВ142. Сборочный чертеж 1.463.1-16.6-17 Связь СВ153 1.463.1-16.6-18 Связь СВ154 1.463.1-16.6-17 СБ Связь СВ153. Сборочный чертеж 1.463.1-16.6-18 СБ Связь СВ154. Сборочный чертеж 1.463.1-16.6-19 Связь СВ157 1.463.1-16.6-19 СБ Связь СВ157. Сборочный чертеж 1.463.1-16.6-20 Связь СВ145 1.463.1-16.6-21 Связь СВ146 1.463.1-16.6-22 Связь СВ147 1.463.1-16.6-23 Связь СВ148 1.463.1-16.6-24 Связь СВ150 1.463.1-16.6-25 Связь СВ151 1.463.1-16.6-26 Связь СВ152 1.463.1-16.6-27 Связь СВ160 1.463.1-16.6-28 Соединительная деталь МС1 1.463.1-16.6-29 Соединительная деталь МС2 1.463.1-16.6-30 Соединительная деталь МС3 1.463.1-16.6-31 Соединительная деталь МС4 1.463.1-16.6-32 Соединительная деталь МС5 1.463.1-16.6-33 Соединительная деталь МС6 1.463.1-16.6-00СМ1 Схема расположения подвесных путей и вспомогательных балок по нижним поясам ферм пролетом 18 м с шагом 6 м 1.463.1-16.6-00СМ2 Схема расположения подвесных путей и вспомогательных балок по нижним поясам ферм пролетом 24 м с шагом 6 м 1.463.1-16.6-00СМ3 Схема расположения подвесных путей и вспомогательных балок по нижним поясам ферм пролетом 18 м с шагом 12 м 1.463.1-16.6-00СМ4 Схема расположения подвесных путей и вспомогательных балок по нижним поясам ферм пролетом 24 м с шагом 12 м 1.463.1-16.6-34 Узел 1 1.463.1-16.6-35 Узел 2 1.463.1-16.6-36 Узел 3,4 |
| Разработан: | Киевский Промстройпроект Укрниипроектстальконструкция |
| Утверждён: | 16.12.1988 Госстрой СССР (Государственный комитет Совета Министров СССР по делам строительства) (USSR Gosstroy 6/6-2884) |
| Издан: | ЦИТП Госстроя СССР (CITP, Gosstroy (USSR) 1990 г. ) |
| Расположен в: | |
| Заменяет собой: |
























































