Информационная система
«Ёшкин Кот»

Скачать базу одним архивом
Скачать обновления
История создания базы
Карта сайта

Скачать Серия 1.063.1-4 Выпуск 5. Фермы пролетом 18 м. Рабочие чертежи

Дата актуализации: 10.08.2017

Серия 1.063.1-4

Выпуск 5. Фермы пролетом 18 м. Рабочие чертежи

Обозначение: Серия 1.063.1-4
Обозначение англ: Series 1.063.1-4
Статус:не определен законодательством
Название рус.:Выпуск 5. Фермы пролетом 18 м. Рабочие чертежи
Дата добавления в базу:01.09.2013
Дата актуализации:05.05.2017
Дата введения:01.10.1993
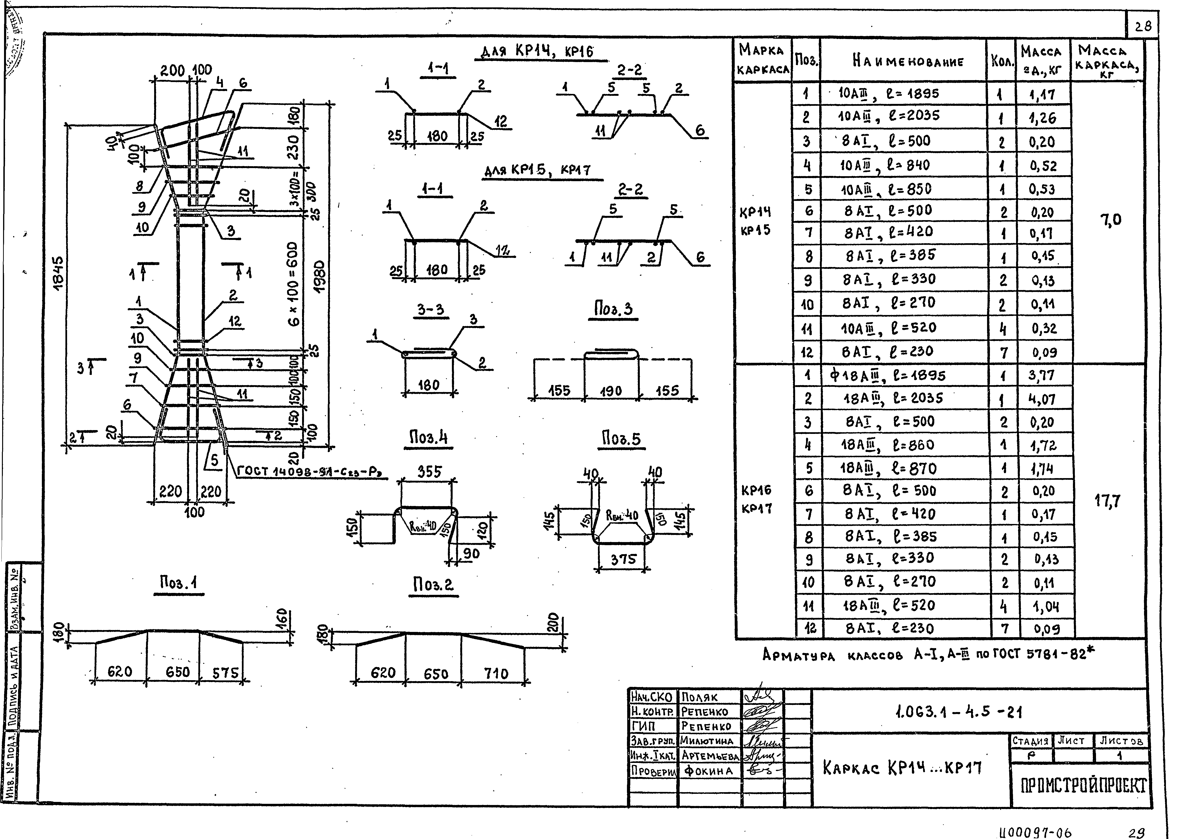
Область применения:Настоящий выпуск содержит рабочие чертежи стропильных ферм пролетом 18 м с напрягаемым нижним поясом и арматурных изделий к ним
Разработан: Промстройпроект Госстроя СССР
ЦНИИЭПсельстрой
Утверждён:03.03.1993 Госстрой России (Russian Federation Gosstroy 9-3-2/35)
Расположен в:Техническая документация Строительство Справочные документы Типовые строительные конструкции, изделия и узлы Общероссийский строительный каталог Строительные конструкции, изделия и узлы зданий и сооружений для всех видов строительства Конструкции, изделия и узлы зданий Несущие конструкции одноэтажных зданий Стропильные и подстропильные конструкции Фермы Железобетонные
Серия 1.063.1-4Серия 1.063.1-4Серия 1.063.1-4Серия 1.063.1-4Серия 1.063.1-4Серия 1.063.1-4Серия 1.063.1-4Серия 1.063.1-4Серия 1.063.1-4Серия 1.063.1-4Серия 1.063.1-4Серия 1.063.1-4Серия 1.063.1-4Серия 1.063.1-4Серия 1.063.1-4Серия 1.063.1-4Серия 1.063.1-4Серия 1.063.1-4Серия 1.063.1-4Серия 1.063.1-4Серия 1.063.1-4Серия 1.063.1-4Серия 1.063.1-4Серия 1.063.1-4Серия 1.063.1-4Серия 1.063.1-4Серия 1.063.1-4Серия 1.063.1-4Серия 1.063.1-4Серия 1.063.1-4Серия 1.063.1-4Серия 1.063.1-4Серия 1.063.1-4

© 2013 Ёшкин Кот :-) Карта сайта