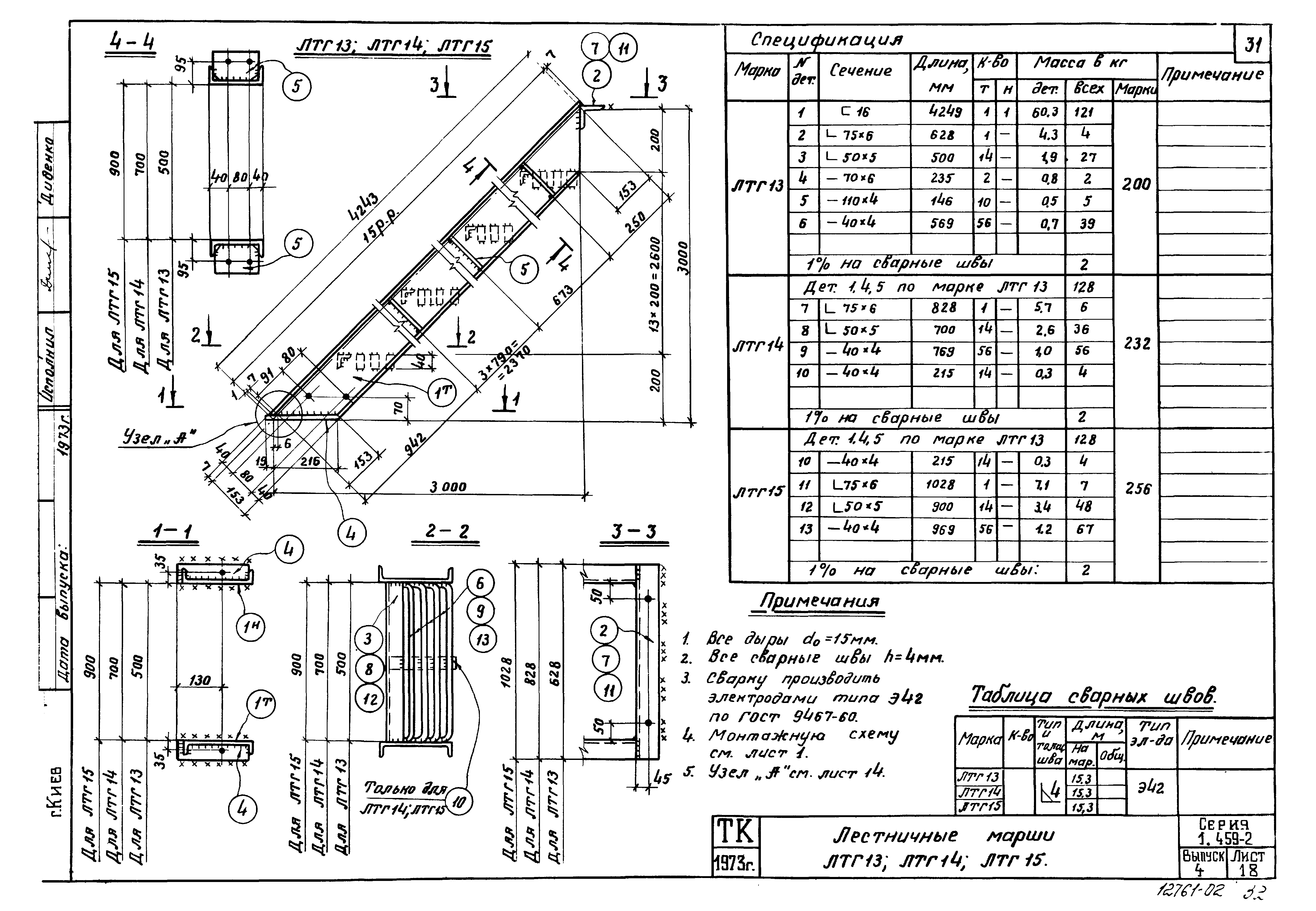
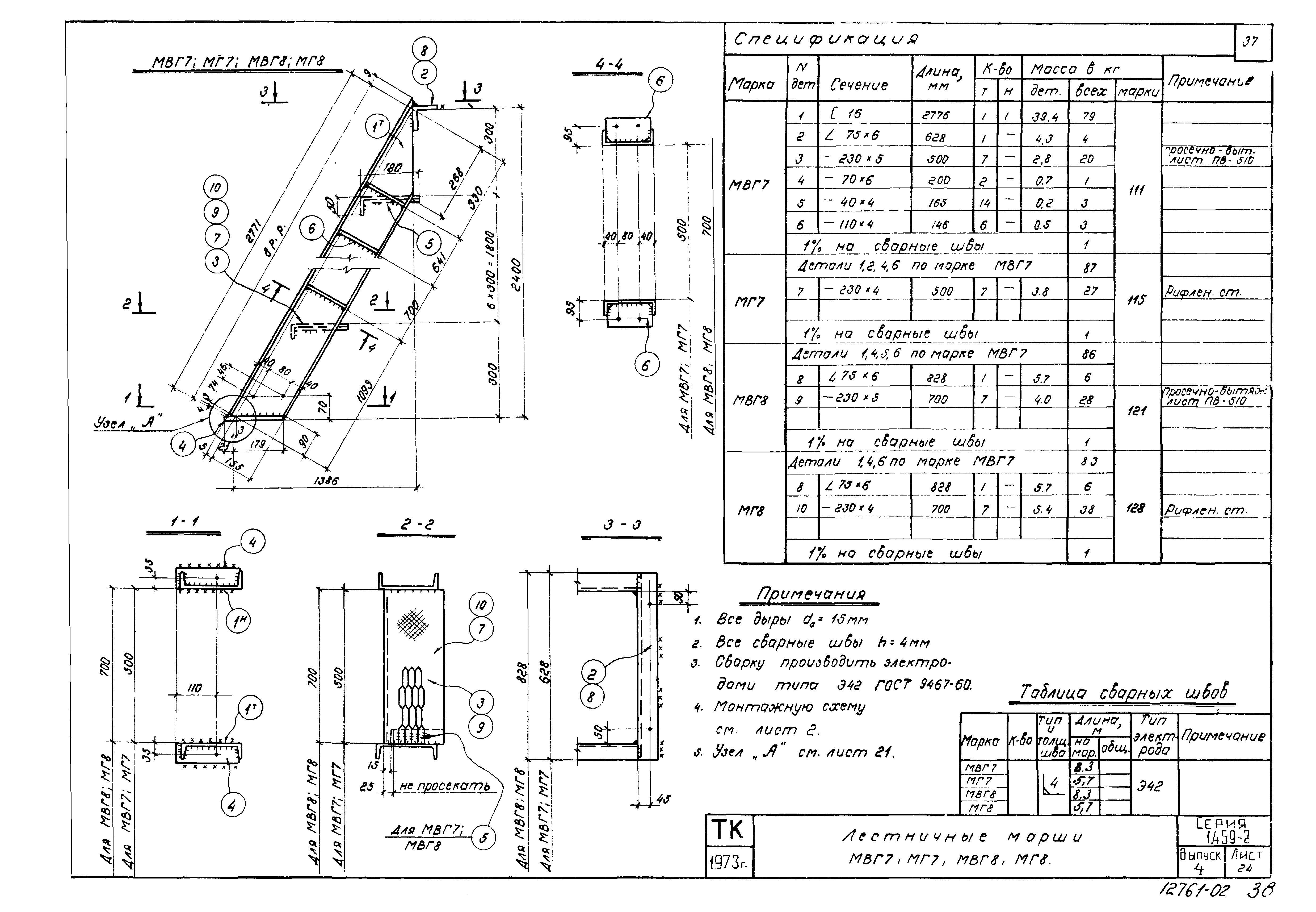
Скачать Серия 1.459-2 Выпуск 4. Лестницы, переходные площадки и ограждения из горячекатаных профилей с настилом и ступенями из просечно-вытяжной, рифленой и полосовой сталей. Чертежи КМДДата актуализации: 10.08.2017 Серия 1.459-2
Выпуск 4. Лестницы, переходные площадки и ограждения из горячекатаных профилей с настилом и ступенями из просечно-вытяжной, рифленой и полосовой сталей. Чертежи КМДОбозначение: | Серия 1.459-2 | Обозначение англ: | Series 1.459-2 | Статус: | не действует | Название рус.: | Выпуск 4. Лестницы, переходные площадки и ограждения из горячекатаных профилей с настилом и ступенями из просечно-вытяжной, рифленой и полосовой сталей. Чертежи КМД | Дата добавления в базу: | 01.09.2013 | Дата актуализации: | 05.05.2017 | Дата введения: | 01.04.1974 | Дата окончания срока действия: | 01.12.1984 | Разработан: | ЦНИИпроектстальконструкция
| Утверждён: | 10.01.1974 Госстрой СССР (Государственный комитет Совета Министров СССР по делам строительства) (USSR Gosstroy 2)
| Расположен в: |
| Чем заменён: | |
                                                                                                                        
|