| ||||||||||||||||||||||||||||
Скачать Серия 1.424.1-6/89 Выпуск 7с. Стальные связи по колоннам для зданий с расчетной сейсмичностью 7 и 8 баллов. Рабочие чертежиДата актуализации: 10.08.2017
|
| Обозначение: | Серия 1.424.1-6/89 |
| Обозначение англ: | Series 1.424.1-6/89 |
| Статус: | не определен законодательством |
| Название рус.: | Выпуск 7с. Стальные связи по колоннам для зданий с расчетной сейсмичностью 7 и 8 баллов. Рабочие чертежи |
| Дата добавления в базу: | 01.09.2013 |
| Дата актуализации: | 05.05.2017 |
| Дата введения: | 01.10.1990 |
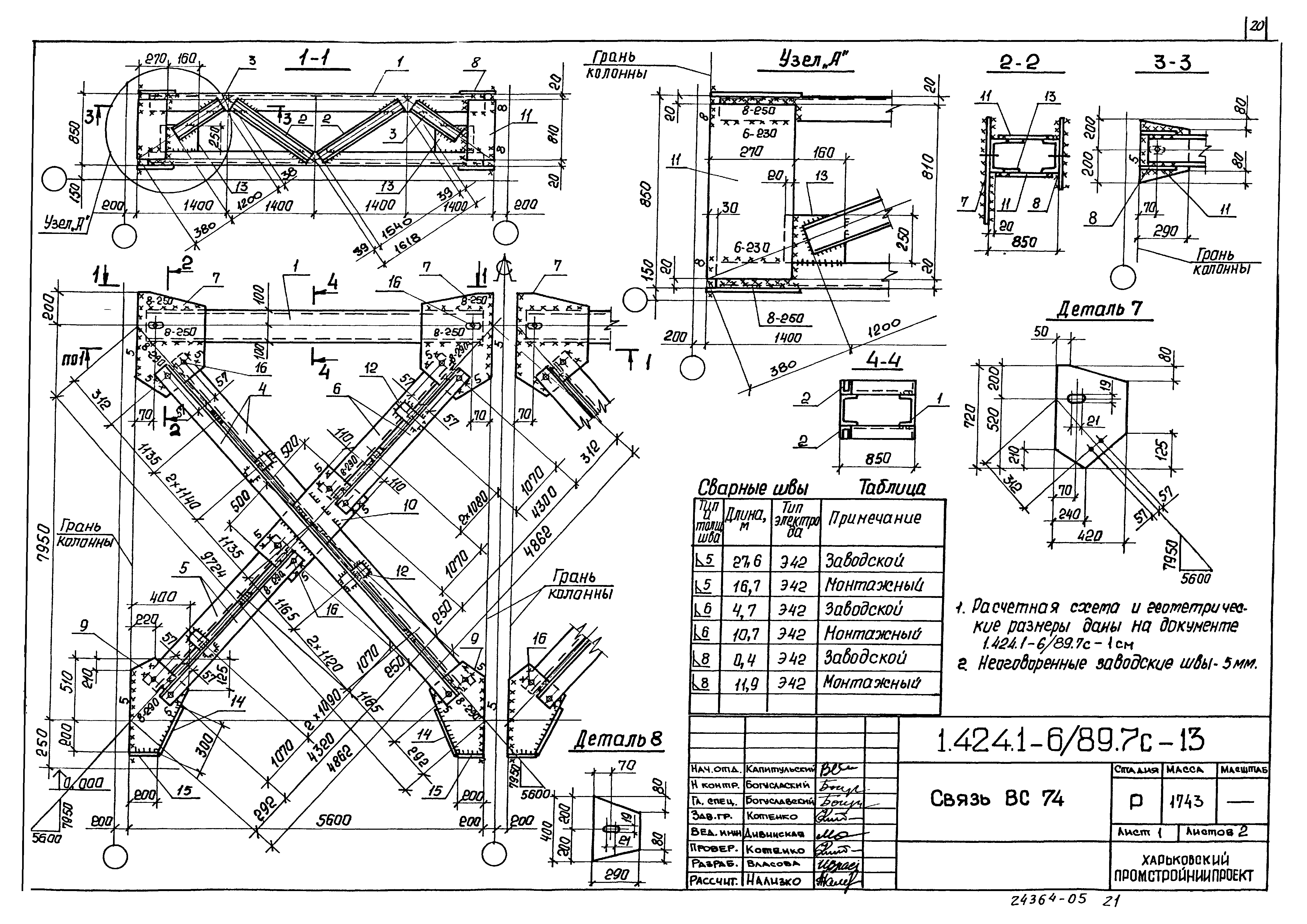
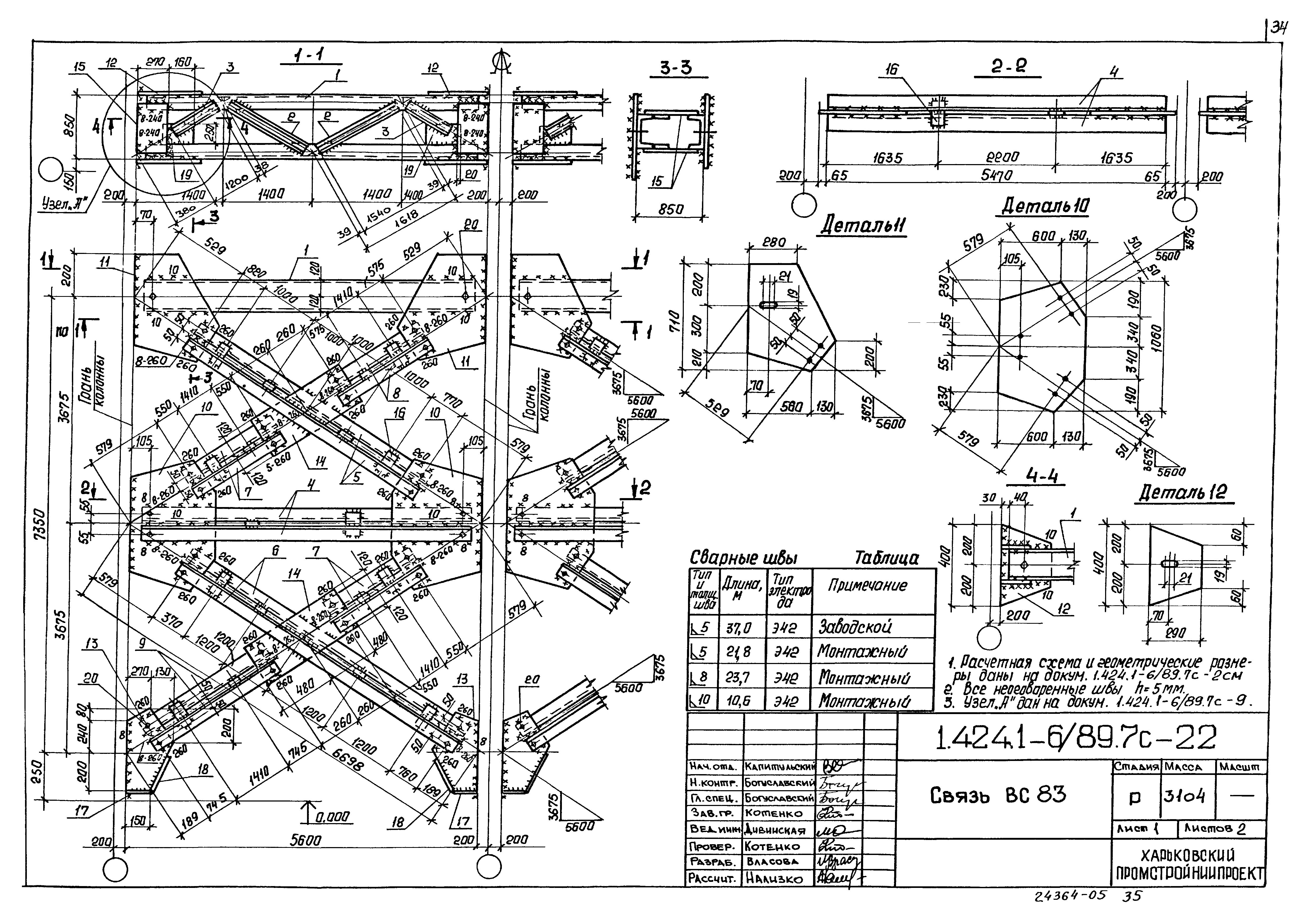
| Оглавление: | 1.424.1-6/89.7С-ТТ Технические требования 1.424.1-6/89.7С-1СМ Расчетная схема и геометрические размеры связей ВС 70...ВС82 1.424.1-6/89.7С-2СМ Расчетная схема и геометрические размеры связей ВС 83...ВС89 1.424.1-6/89.7С-3СМ Расчетная схема и геометрические размеры связей ВС 90...ВС101 1.424.1-6/89.7С-4СМ Расчетная схема и геометрические размеры связей ВС 102...ВС107 1.424.1-6/89.7С-5СМ Расчетная схема и геометрические размеры связей ВС 108...ВС125 1.424.1-6/89.7С-6СМ Расчетная схема и геометрические размеры связей ВС 126...ВС133 1.424.1-6/89.7С-7СМ Расчетная схема и геометрические размеры связей ВС 134...ВС146 1.424.1-6/89.7С-8СМ Расчетная схема и геометрические размеры связей ВС 147...ВС155 1.424.1-6/89.7С-9 Связь ВС 70 1.424.1-6/89.7С-10 Связь ВС 71 1.424.1-6/89.7С-11 Связь ВС 72 1.424.1-6/89.7С-12 Связь ВС 73 1.424.1-6/89.7С-13 Связь ВС 74 1.424.1-6/89.7С-14 Связь ВС 75 1.424.1-6/89.7С-15 Связь ВС 76 1.424.1-6/89.7С-16 Связь ВС 77 1.424.1-6/89.7С-17 Связь ВС 78 1.424.1-6/89.7С-18 Связь ВС 79 1.424.1-6/89.7С-19 Связь ВС 80 1.424.1-6/89.7С-20 Связь ВС 81 1.424.1-6/89.7С-21 Связь ВС 82 1.424.1-6/89.7С-22 Связь ВС 83 1.424.1-6/89.7С-23 Связь ВС 84 1.424.1-6/89.7С-24 Связь ВС 85 1.424.1-6/89.7С-25 Связь ВС 86 1.424.1-6/89.7С-26 Связь ВС 87 1.424.1-6/89.7С-27 Связь ВС 88 1.424.1-6/89.7С-28 Связь ВС 89 1.424.1-6/89.7С-29 Связь ВС 90 1.424.1-6/89.7С-30 Связь ВС 91 1.424.1-6/89.7С-31 Связь ВС 92 1.424.1-6/89.7С-32 Связь ВС 93 1.424.1-6/89.7С-33 Связь ВС 94 1.424.1-6/89.7С-34 Связь ВС 95 1.424.1-6/89.7С-35 Связь ВС 96 1.424.1-6/89.7С-36 Связь ВС 97 1.424.1-6/89.7С-37 Связь ВС 98 1.424.1-6/89.7С-38 Связь ВС 99 1.424.1-6/89.7С-39 Связь ВС 100 1.424.1-6/89.7С-40 Связь ВС 101 1.424.1-6/89.7С-41 Связь ВС 102 1.424.1-6/89.7С-42 Связь ВС 103 1.424.1-6/89.7С-43 Связь ВС 104 1.424.1-6/89.7С-44 Связь ВС 105 1.424.1-6/89.7С-45 Связь ВС 106 1.424.1-6/89.7С-46 Связь ВС 107 1.424.1-6/89.7С-47 Связь ВС 108 1.424.1-6/89.7С-48 Связь ВС 109 1.424.1-6/89.7С-49 Связь ВС 110 1.424.1-6/89.7С-50 Связь ВС 111 1.424.1-6/89.7С-51 Связь ВС 112 1.424.1-6/89.7С-52 Связь ВС 113 1.424.1-6/89.7С-53 Связь ВС 114 1.424.1-6/89.7С-54 Связь ВС 115 1.424.1-6/89.7С-55 Связь ВС 116 1.424.1-6/89.7С-56 Связь ВС 117 1.424.1-6/89.7С-57 Связь ВС 118 1.424.1-6/89.7С-58 Связь ВС 119 1.424.1-6/89.7С-59 Связь ВС 120 1.424.1-6/89.7С-60 Связь ВС 121 1.424.1-6/89.7С-61 Связь ВС 122 1.424.1-6/89.7С-62 Связь ВС 123 1.424.1-6/89.7С-63 Связь ВС 124 1.424.1-6/89.7С-64 Связь ВС 125 1.424.1-6/89.7С-65 Связь ВС 126 1.424.1-6/89.7С-66 Связь ВС 127 1.424.1-6/89.7С-67 Связь ВС 128 1.424.1-6/89.7С-68 Связь ВС 129 1.424.1-6/89.7С-69 Связь ВС 130 1.424.1-6/89.7С-70 Связь ВС 131 1.424.1-6/89.7С-71 Связь ВС 132 1.424.1-6/89.7С-72 Связь ВС 133 1.424.1-6/89.7С-73 Связь ВС 134 1.424.1-6/89.7С-74 Связь ВС 135 1.424.1-6/89.7С-75 Связь ВС 136 1.424.1-6/89.7С-76 Связь ВС 137 1.424.1-6/89.7С-77 Связь ВС 138 1.424.1-6/89.7С-78 Связь ВС 139 1.424.1-6/89.7С-79 Связь ВС 140 1.424.1-6/89.7С-80 Связь ВС 141 1.424.1-6/89.7С-81 Связь ВС 142 1.424.1-6/89.7С-82 Связь ВС 143 1.424.1-6/89.7С-83 Связь ВС 144 1.424.1-6/89.7С-84 Связь ВС 145 1.424.1-6/89.7С-85 Связь ВС 146 1.424.1-6/89.7С-86 Связь ВС 147-1 1.424.1-6/89.7С-87 Связь ВС 147-2 1.424.1-6/89.7С-88 Связь ВС 148-1 1.424.1-6/89.7С-89 Связь ВС 148-2 1.424.1-6/89.7С-90 Связь ВС 149-1 1.424.1-6/89.7С-91 Связь ВС 149-2 1.424.1-6/89.7С-92 Связь ВС 150-1 1.424.1-6/89.7С-93 Связь ВС 150-2 1.424.1-6/89.7С-94 Связь ВС 151-1 1.424.1-6/89.7С-95 Связь ВС 151-2 1.424.1-6/89.7С-96 Связь ВС 152-1 1.424.1-6/89.7С-97 Связь ВС 152-2 1.424.1-6/89.7С-98 Связь ВС 153-1 1.424.1-6/89.7С-99 Связь ВС 153-2 1.424.1-6/89.7С-100 Связь ВС 154-1 1.424.1-6/89.7С-101 Связь ВС 154-2 1.424.1-6/89.7С-102 Связь ВС 155-1 1.424.1-6/89.7С-103 Связь ВС 155-2 |
| Разработан: | Харьковский Промстройниипроект |
| Утверждён: | 02.08.1989 Госстрой СССР (Государственный комитет Совета Министров СССР по делам строительства) (USSR Gosstroy 4/5-1094) |
| Издан: | ЦИТП Госстроя СССР (CITP, Gosstroy (USSR) 1990 г. ) |
| Расположен в: |








































































































































