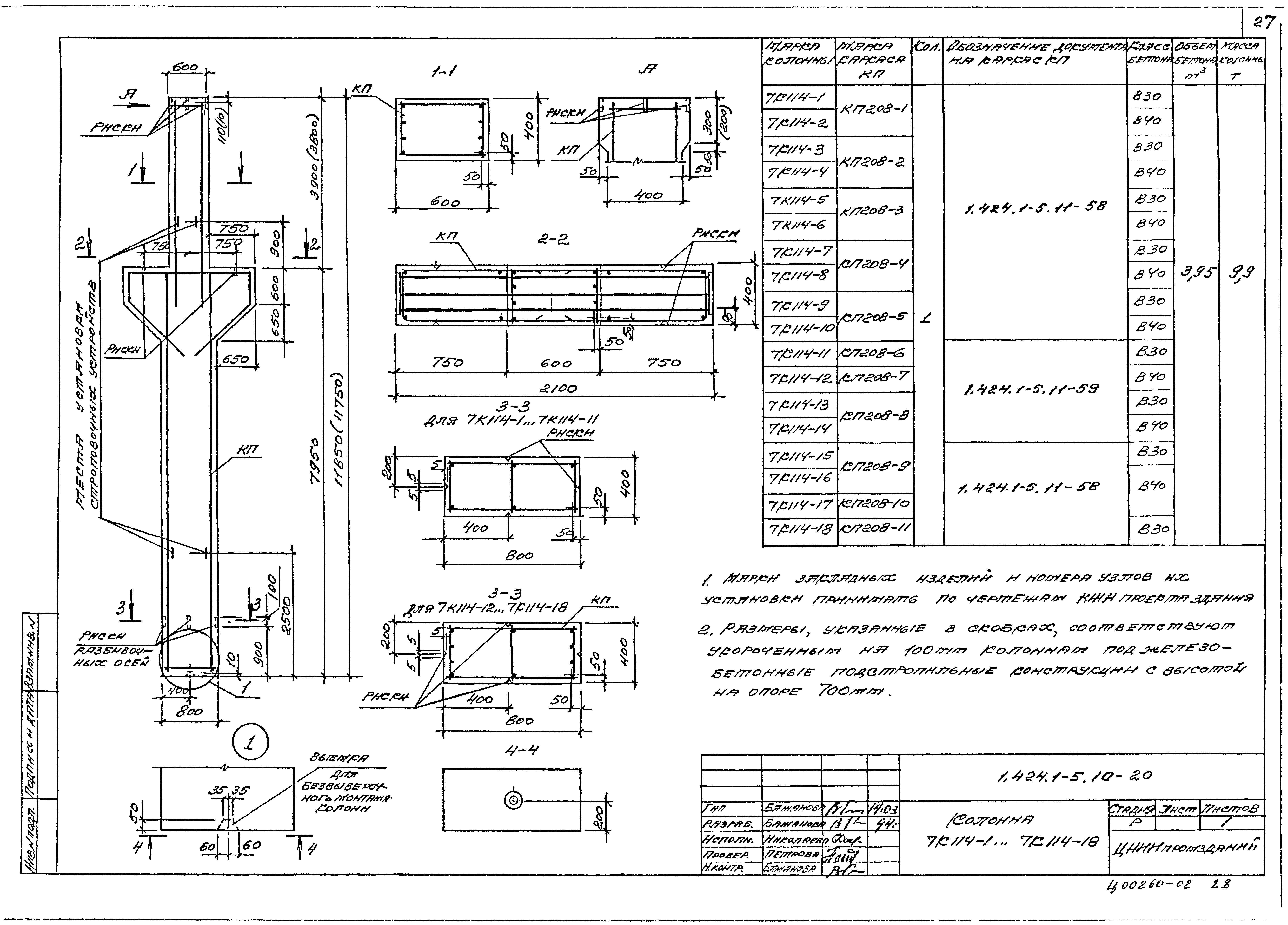
Скачать Серия 1.424.1-5 Выпуск 10. Колонны для зданий высотой 9,0; 10,2; 11,4; 12,6 и 13,8 м. Рабочие чертежиДата актуализации: 10.08.2017 Серия 1.424.1-5
Выпуск 10. Колонны для зданий высотой 9,0; 10,2; 11,4; 12,6 и 13,8 м. Рабочие чертежи| Обозначение: | Серия 1.424.1-5 | | Обозначение англ: | Series 1.424.1-5 | | Статус: | не определен законодательством | | Название рус.: | Выпуск 10. Колонны для зданий высотой 9,0; 10,2; 11,4; 12,6 и 13,8 м. Рабочие чертежи | | Дата добавления в базу: | 01.09.2013 | | Дата актуализации: | 05.05.2017 | | Дата введения: | 01.01.1995 | | Разработан: | АО ЦНИИпромзданий
| | Утверждён: | 19.05.1994 Главпроект Госстроя России (9-3-1/87)
| | Расположен в: |
|
                                                                            
|