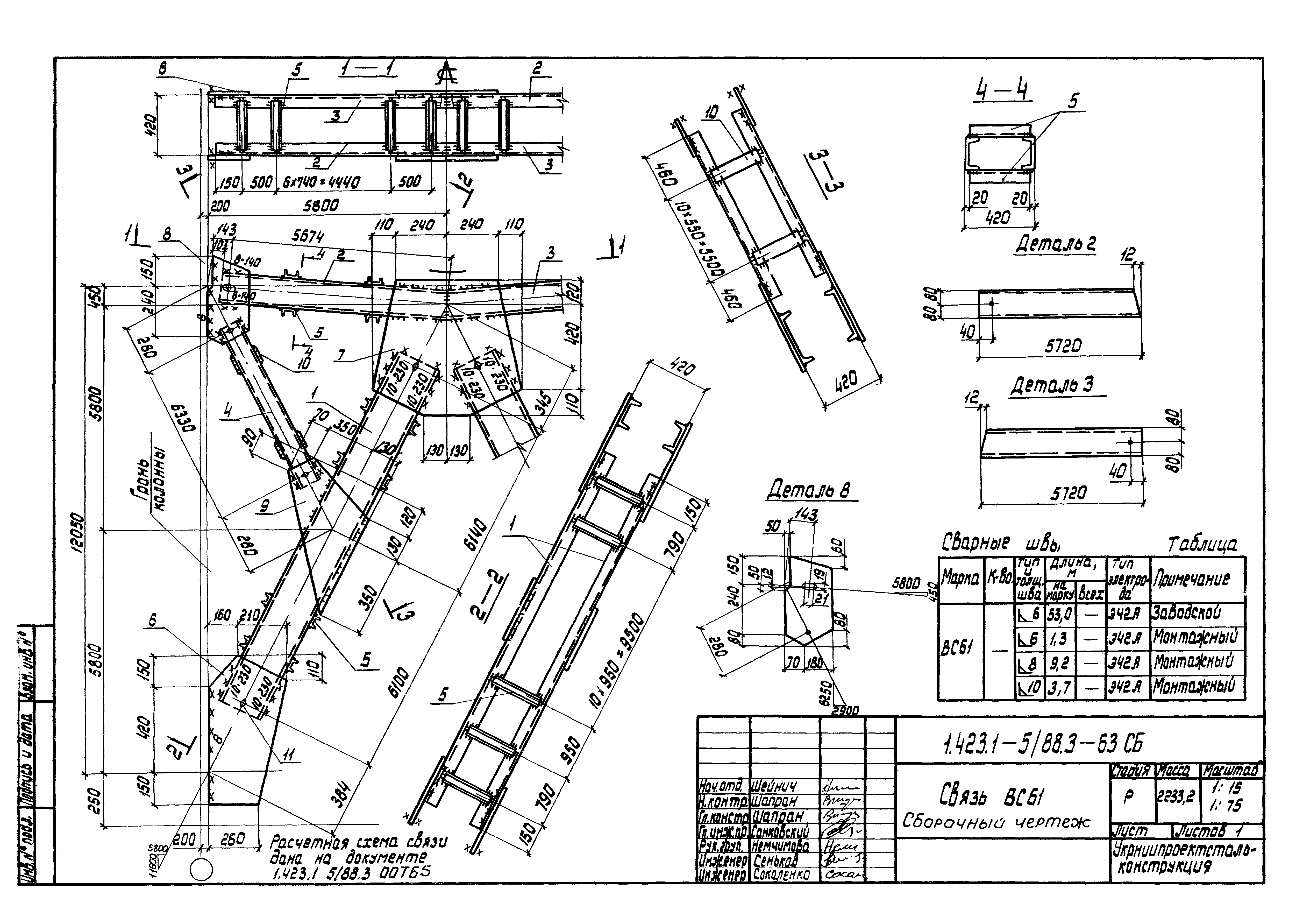
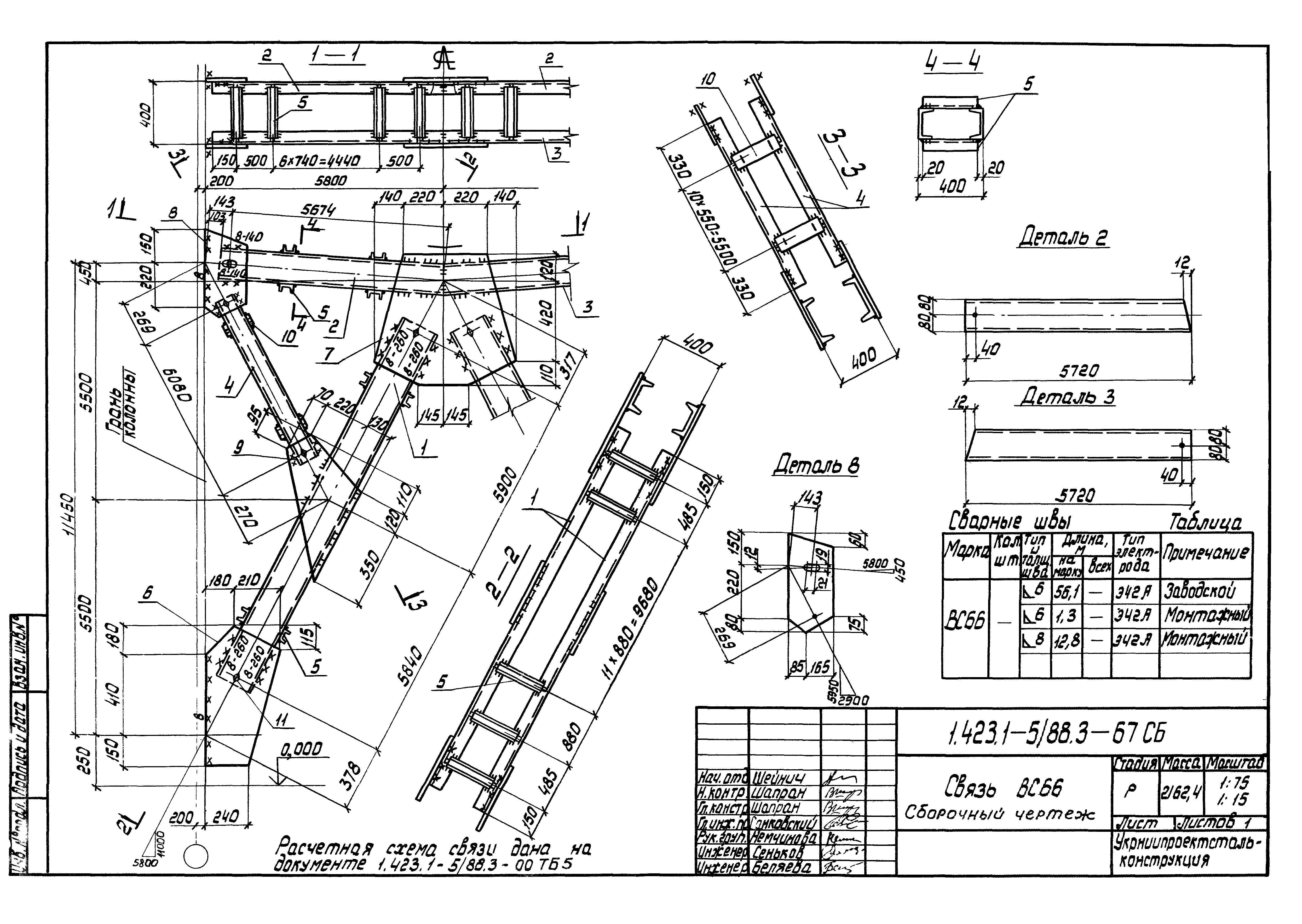
Скачать Серия 1.423.1-5/88 Выпуск 3. Книга II. Стальные связи по колоннам. Рабочие чертежиДата актуализации: 10.08.2017 Серия 1.423.1-5/88
Выпуск 3. Книга II. Стальные связи по колоннам. Рабочие чертежиОбозначение: | Серия 1.423.1-5/88 | Обозначение англ: | Series 1.423.1-5/88 | Статус: | не определен законодательством | Название рус.: | Выпуск 3. Книга II. Стальные связи по колоннам. Рабочие чертежи | Дата добавления в базу: | 01.09.2013 | Дата актуализации: | 01.12.2013 | Дата введения: | 01.04.1989 | Расположен в: |
|
                                                                                 
|