Информационная система
«Ёшкин Кот»

Скачать базу одним архивом
Скачать обновления
История создания базы
Карта сайта

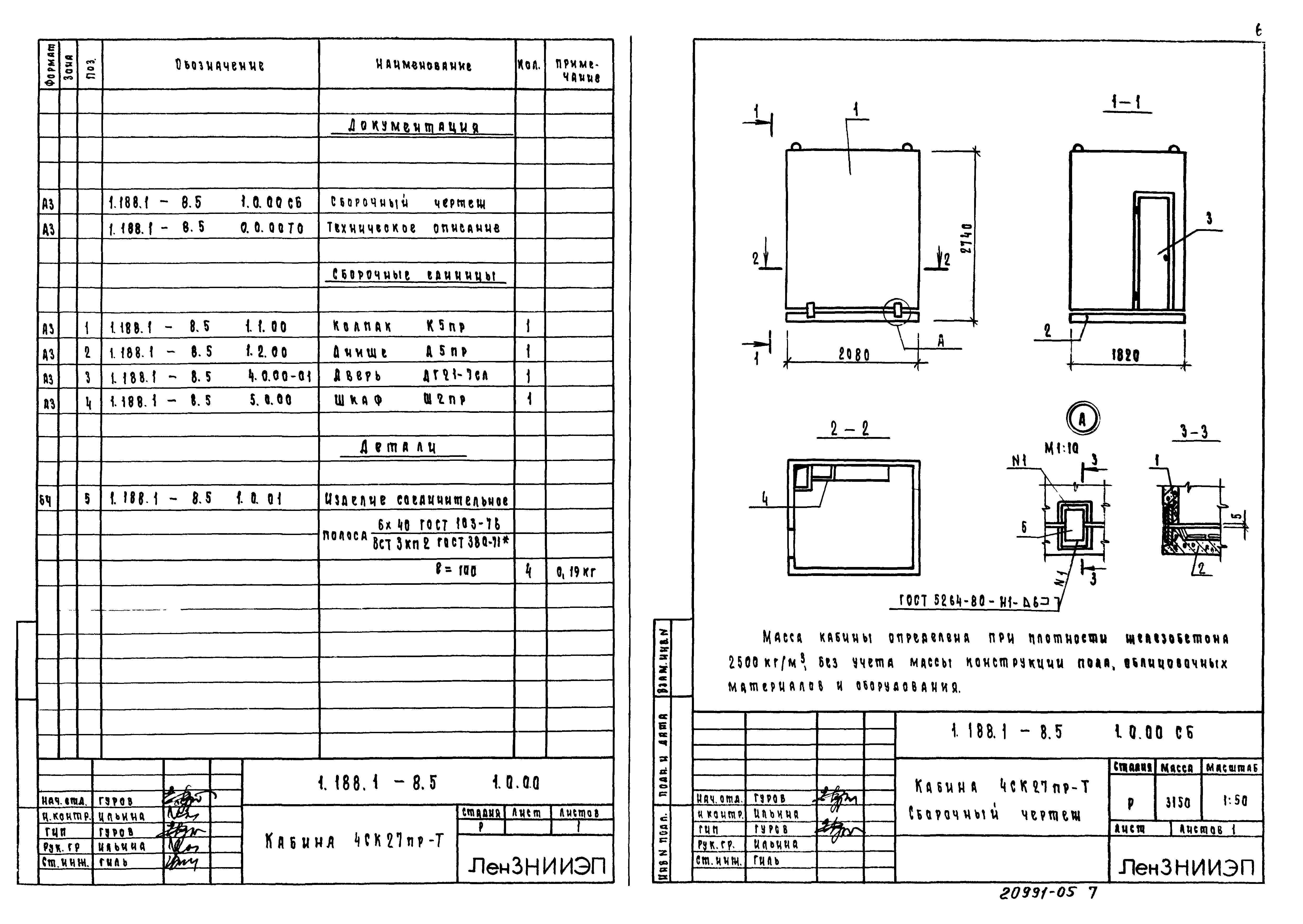
Скачать Серия 1.188.1-8 Выпуск 5. Строительные чертежи кабин типа 4СК из тяжелого цементного бетона. Рабочие чертежи

Дата актуализации: 10.08.2017

Серия 1.188.1-8

Выпуск 5. Строительные чертежи кабин типа 4СК из тяжелого цементного бетона. Рабочие чертежи

Обозначение: Серия 1.188.1-8
Обозначение англ: Series 1.188.1-8
Статус:действует
Название рус.:Выпуск 5. Строительные чертежи кабин типа 4СК из тяжелого цементного бетона. Рабочие чертежи
Дата добавления в базу:01.09.2013
Дата актуализации:05.05.2017
Дата введения:30.05.1985
Разработан: ЛенЗНИИЭП Госгражданстроя
Утверждён:08.05.1985 Госгражданстрой (Gosgrazhdanstroy 138)
Издан: ЦИТП Госстроя СССР (CITP, Gosstroy (USSR) 1986 г. )
Расположен в:Техническая документация Строительство Справочные документы Типовые строительные конструкции, изделия и узлы Общероссийский строительный каталог Строительные конструкции, изделия и узлы зданий и сооружений для всех видов строительства Конструкции, изделия и узлы зданий Ограждающие конструкции Санитарно-технические кабины
Серия 1.188.1-8Серия 1.188.1-8Серия 1.188.1-8Серия 1.188.1-8Серия 1.188.1-8Серия 1.188.1-8Серия 1.188.1-8Серия 1.188.1-8Серия 1.188.1-8Серия 1.188.1-8Серия 1.188.1-8Серия 1.188.1-8Серия 1.188.1-8Серия 1.188.1-8Серия 1.188.1-8Серия 1.188.1-8Серия 1.188.1-8Серия 1.188.1-8Серия 1.188.1-8Серия 1.188.1-8Серия 1.188.1-8Серия 1.188.1-8Серия 1.188.1-8Серия 1.188.1-8Серия 1.188.1-8Серия 1.188.1-8

© 2013 Ёшкин Кот :-) Карта сайта