Скачать Серия 1.188-5 Выпуск 11. Санитарно-техническое оборудование разобщенных и совмещенных кабин типа Колпак из тяжелого цементного бетона и керамзитобетона для жилых зданий с теплым чердакомДата актуализации: 10.08.2017 Серия 1.188-5
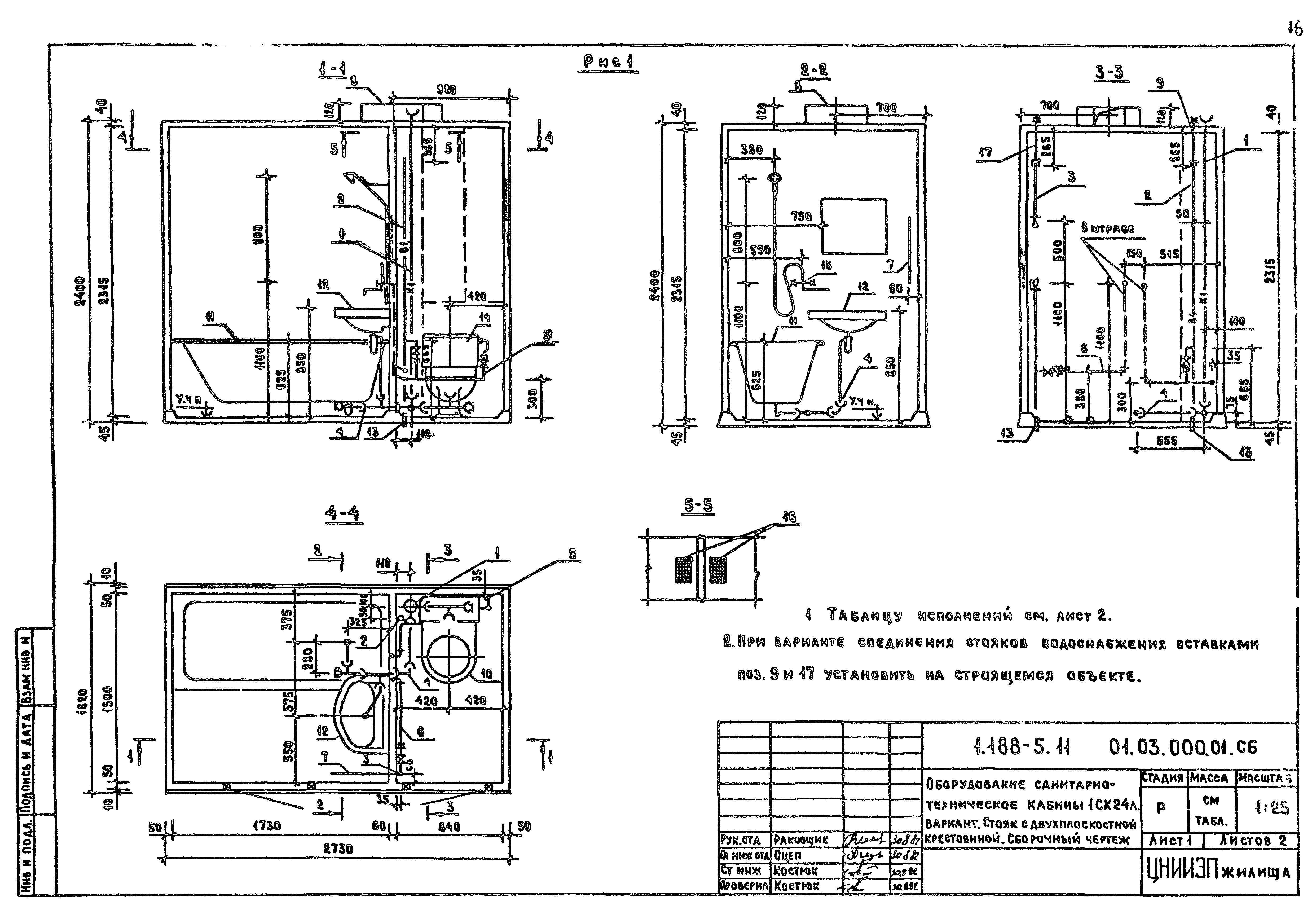
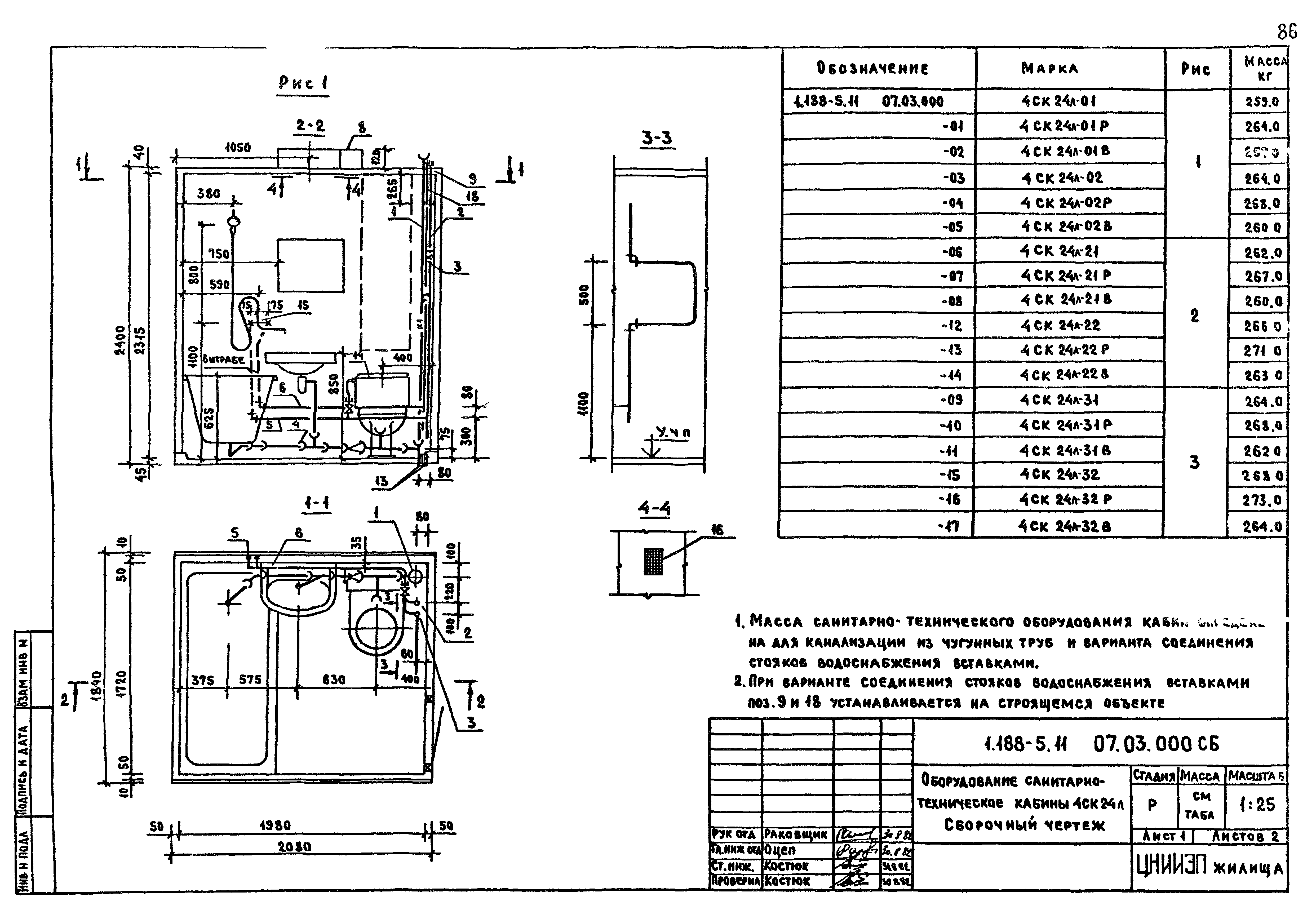
Выпуск 11. Санитарно-техническое оборудование разобщенных и совмещенных кабин типа "Колпак" из тяжелого цементного бетона и керамзитобетона для жилых зданий с теплым чердакомОбозначение: | Серия 1.188-5 | Обозначение англ: | Series 1.188-5 | Статус: | не определен законодательством | Название рус.: | Выпуск 11. Санитарно-техническое оборудование разобщенных и совмещенных кабин типа "Колпак" из тяжелого цементного бетона и керамзитобетона для жилых зданий с теплым чердаком | Дата добавления в базу: | 01.09.2013 | Дата актуализации: | 05.05.2017 | Дата введения: | 15.12.1983 | Разработан: | ЦНИИЭП жилища
| Утверждён: | 02.12.1983 Госкомитет по гражданскому строительству и архитектуре при Госстрое СССР (National Committee on Nonindustrial Construction and Architecture, USSR Gosstroy 369)
| Расположен в: |
|
                                                                                               
|