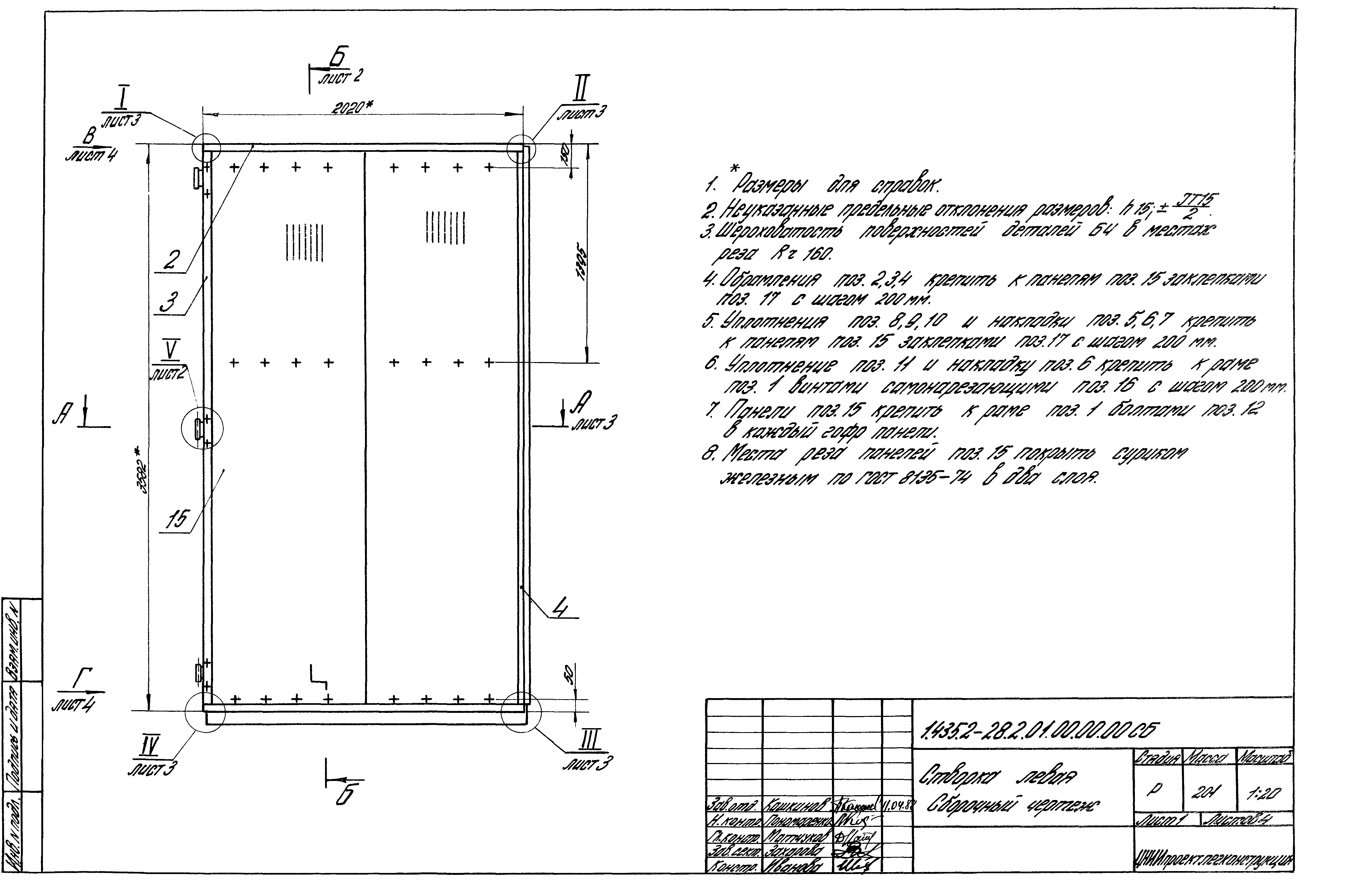
Скачать Серия 1.435.2-28 Выпуск 2. Ворота распашные для проема 3,6х3,6 м. Рабочие чертежиДата актуализации: 10.08.2017 Серия 1.435.2-28
Выпуск 2. Ворота распашные для проема 3,6х3,6 м. Рабочие чертежи| Обозначение: | Серия 1.435.2-28 | | Обозначение англ: | Series 1.435.2-28 | | Статус: | не определен законодательством | | Название рус.: | Выпуск 2. Ворота распашные для проема 3,6х3,6 м. Рабочие чертежи | | Дата добавления в базу: | 01.09.2013 | | Дата актуализации: | 05.05.2017 | | Дата введения: | 01.11.1988 | | Разработан: | АО ЦНИИпромзданий ЦНИИПроектлегконструкция
| | Утверждён: | 13.05.1988 Госстрой СССР (Государственный комитет Совета Министров СССР по делам строительства) (USSR Gosstroy 6/6-955)
| | Издан: | ЦИТП Госстроя СССР (CITP, Gosstroy (USSR) 1988 г. )
| | Расположен в: |
| | Заменяет собой: | |
                                                                       
|