Информационная система
«Ёшкин Кот»

Скачать базу одним архивом
Скачать обновления
История создания базы
Карта сайта

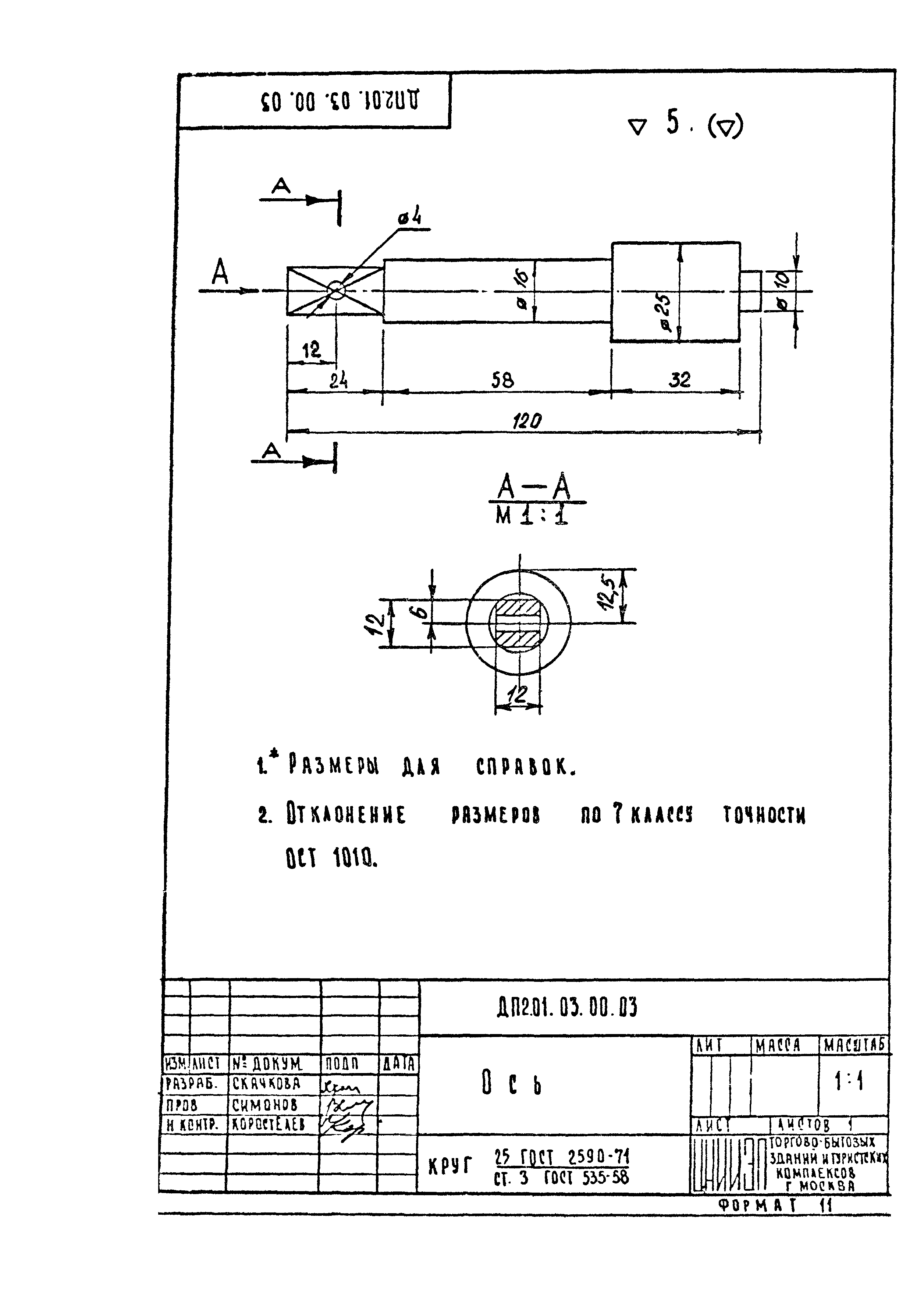
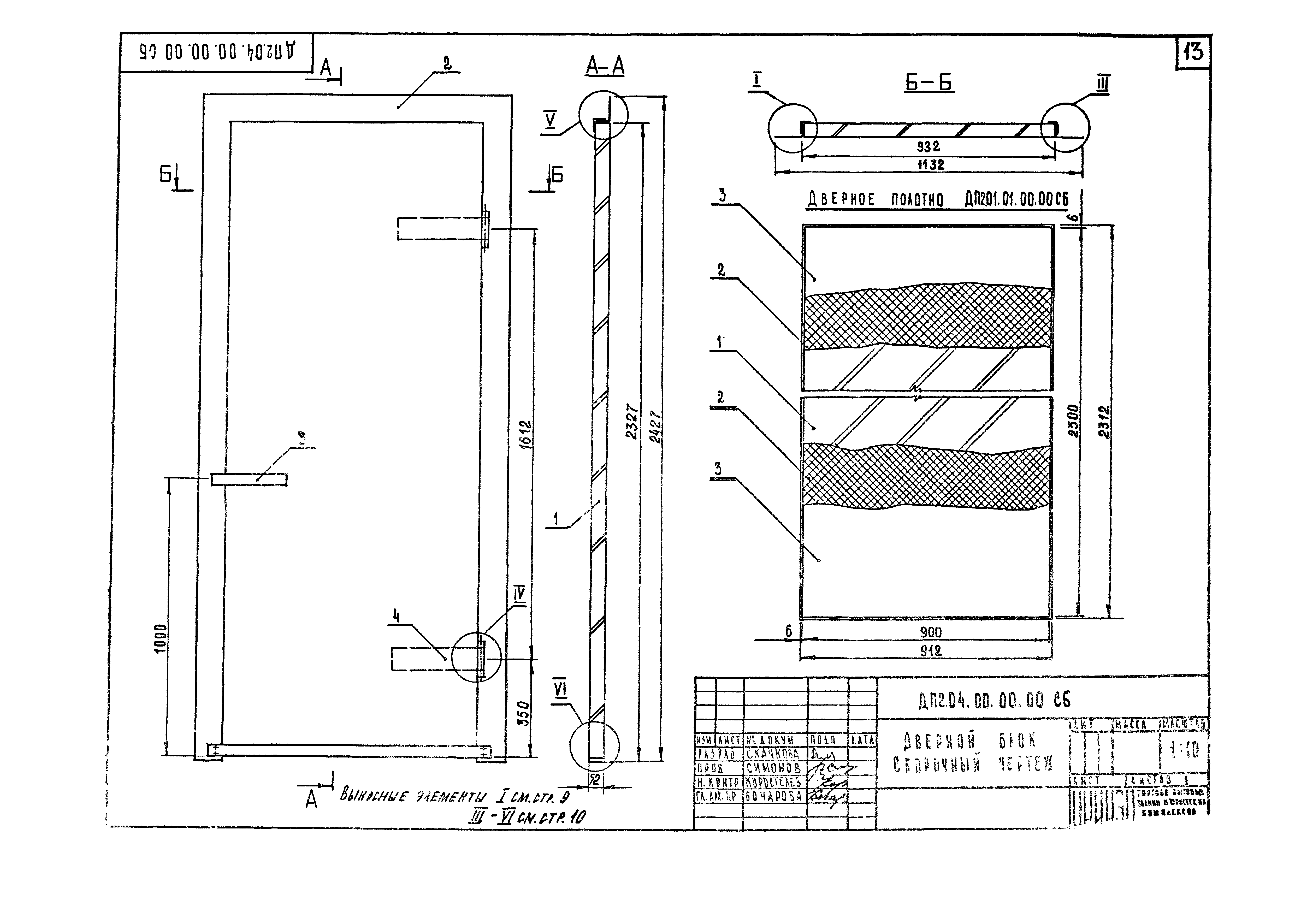
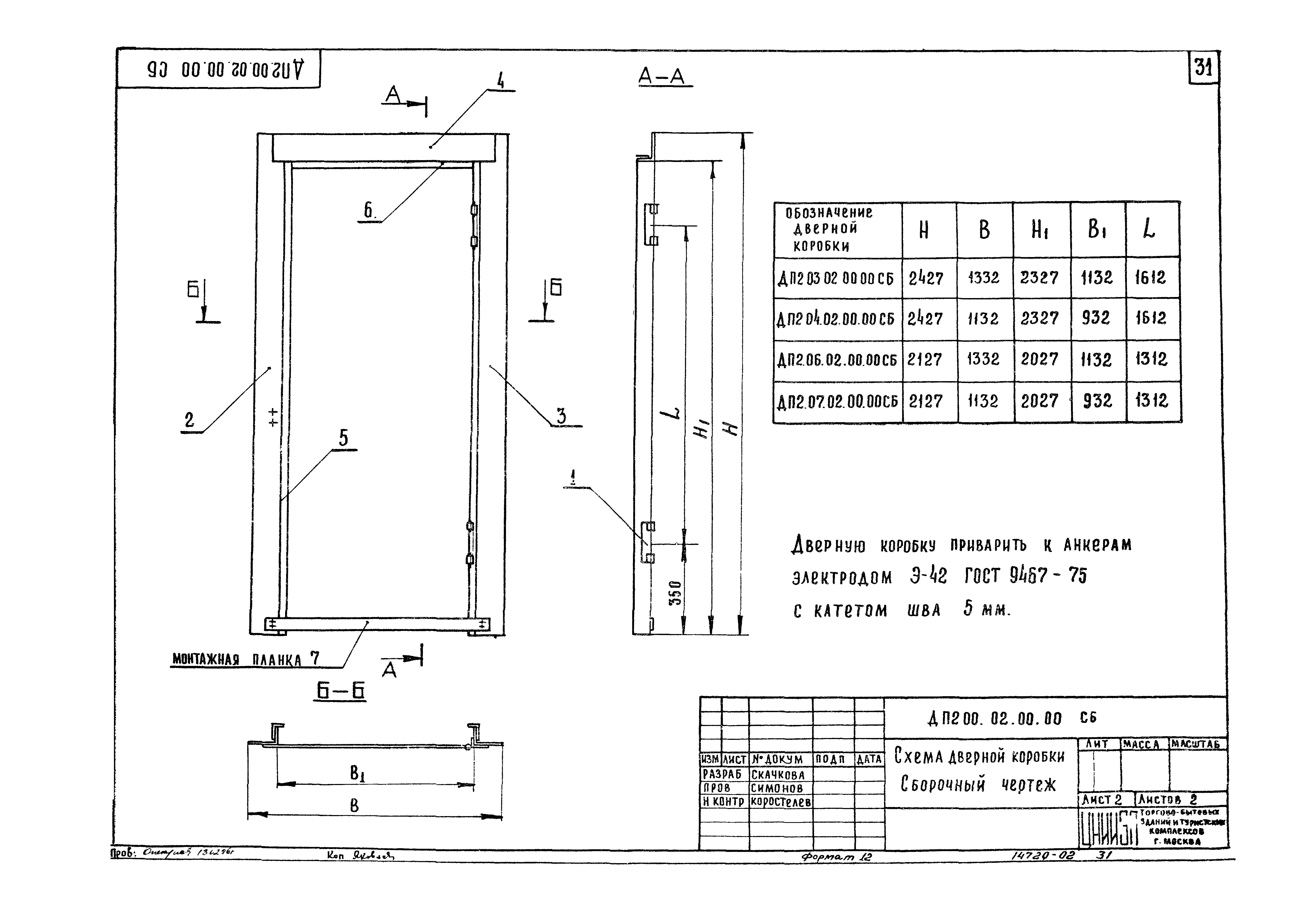
Скачать Серия 1.236-5 Выпуск 2. Противопожарные двери деревянные облицованные тонколистовой сталью

Дата актуализации: 10.08.2017

Серия 1.236-5

Выпуск 2. Противопожарные двери деревянные облицованные тонколистовой сталью

Обозначение: Серия 1.236-5
Обозначение англ: Series 1.236-5
Статус:не определен законодательством
Название рус.:Выпуск 2. Противопожарные двери деревянные облицованные тонколистовой сталью
Дата добавления в базу:01.09.2013
Дата актуализации:05.05.2017
Дата введения:01.07.1977
Разработан: ЦНИИЭП торгово-бытовых зданий и туристских комплексов
Утверждён:18.04.1977 Госгражданстрой (Gosgrazhdanstroy 71)
Издан: ЦИТП Госстроя СССР (CITP, Gosstroy (USSR) 1986 г. )
Расположен в:Техническая документация Строительство Справочные документы Типовые строительные конструкции, изделия и узлы Общероссийский строительный каталог Строительные конструкции, изделия и узлы зданий и сооружений для всех видов строительства Конструкции, изделия и узлы зданий Ограждающие конструкции Двери, в том числе противопожарные
Серия 1.236-5Серия 1.236-5Серия 1.236-5Серия 1.236-5Серия 1.236-5Серия 1.236-5Серия 1.236-5Серия 1.236-5Серия 1.236-5Серия 1.236-5Серия 1.236-5Серия 1.236-5Серия 1.236-5Серия 1.236-5Серия 1.236-5Серия 1.236-5Серия 1.236-5Серия 1.236-5Серия 1.236-5Серия 1.236-5Серия 1.236-5Серия 1.236-5Серия 1.236-5Серия 1.236-5Серия 1.236-5Серия 1.236-5Серия 1.236-5Серия 1.236-5Серия 1.236-5Серия 1.236-5Серия 1.236-5Серия 1.236-5Серия 1.236-5Серия 1.236-5Серия 1.236-5Серия 1.236-5Серия 1.236-5Серия 1.236-5Серия 1.236-5Серия 1.236-5Серия 1.236-5Серия 1.236-5Серия 1.236-5Серия 1.236-5Серия 1.236-5Серия 1.236-5Серия 1.236-5Серия 1.236-5Серия 1.236-5Серия 1.236-5Серия 1.236-5Серия 1.236-5Серия 1.236-5Серия 1.236-5Серия 1.236-5Серия 1.236-5Серия 1.236-5Серия 1.236-5Серия 1.236-5Серия 1.236-5Серия 1.236-5Серия 1.236-5Серия 1.236-5Серия 1.236-5Серия 1.236-5Серия 1.236-5Серия 1.236-5Серия 1.236-5Серия 1.236-5Серия 1.236-5Серия 1.236-5Серия 1.236-5Серия 1.236-5Серия 1.236-5Серия 1.236-5Серия 1.236-5Серия 1.236-5Серия 1.236-5Серия 1.236-5Серия 1.236-5Серия 1.236-5Серия 1.236-5Серия 1.236-5Серия 1.236-5Серия 1.236-5Серия 1.236-5Серия 1.236-5Серия 1.236-5Серия 1.236-5Серия 1.236-5Серия 1.236-5Серия 1.236-5Серия 1.236-5Серия 1.236-5Серия 1.236-5Серия 1.236-5Серия 1.236-5Серия 1.236-5Серия 1.236-5Серия 1.236-5Серия 1.236-5Серия 1.236-5Серия 1.236-5Серия 1.236-5Серия 1.236-5Серия 1.236-5

© 2013 Ёшкин Кот :-) Карта сайта